Taryn Tara Café & Stay
A modern look building on a steep cliff that respects nature and its original context.

On the way up the hill heading to Mae Kampong Village, Chiang Mai Province, along the road flanking the Mae Lai River, there is a new destination known as Taryn Tara Café & Stay, a vacation home and home café in a modern building design intermingled with trees, rocks, streams and nature. The project begins with the design challenge in which the architects from S.O.S Architects determine “whether it is possible if a distinctive modern building could respect the neighborhood as much as possible.”

Residential + Airbnb + Home Café

Before settling into this villa and café, the first brief started out as just a small vacation house where the owner’s parents planned to move after their retirement. However, after the team presented some of the perspective designs, both daughters suggested adding a home café, to serve as a destination for Mae Kampong tourists to stop for a coffee break along the way. Soon after the discussion, a one-bedroom house became three-or four- bedrooms house. This expansion is intended to support family or relatives gathering. When the house is not in use, it could be rented out as an Airbnb.

“What’s interesting about this place is the project location which is very challenging. At the beginning, I had to conduct a site visit, assess the site, and take lots of photos, and draw perspective sketches to determine where to open the view and where is the waterfall or the mountain top.”

The challenge, according to the architect, lies on the construction site, which cascades down the steep cliffs to a creek below the site. The architect then arranged the layout to be in harmony with the original context, with the top floor line adjacent to the road serving as the house’s living room. In descending order, there is a dining room and a compact pantry, extending the border of useable space vertically to reduce the expansion of horizontal space intruding on the original nature. The second level will include two bedrooms for parents and daughters, with a view of the natural treetops and the top of the mountain directly in front of them as a highlight.

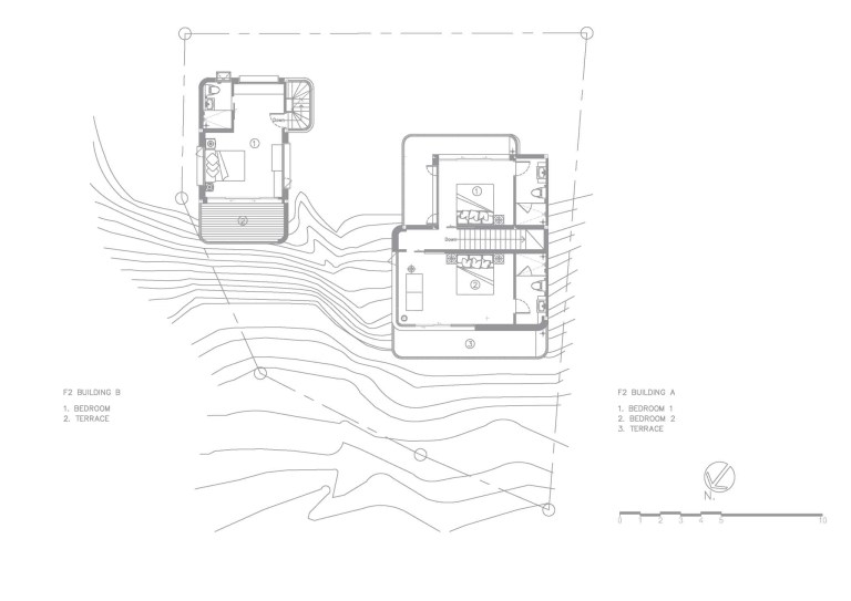
The ground floor plan
The first-floor plan
The second floor plan

The guest bedroom is intended to be detached from the house, placed at the bottom near to the stream to separate the area of usage from the main house in privacy. It also adds another dimension to the building’s view since the corner of the canopy becomes a view of the stream and shrubs instead.

As seen from the street, the building on the right, is a compact home café that focuses on simple functions. On the first floor, there is simply a bar and a small baking kitchen. As for the dining area, the owner wishes to focus on the outdoor zone, so that customers can fully appreciate nature. On the upstairs, there is a small room for the owner in case the house is rented out to Airbnb, there is still a space to sleep and guard the shop.

Materials from the previous wooden house
were used to create the new building’s appearance.

Another important challenge from the owner is the old teak wood that their parents have been collecting from the demolition of the previous house for a long time. However, the architect believes that it would not be suitable to be used as the main structure since it would not be durable enough. The newly designed main building structure is thus made of reinforced concrete. For the area near the stream, the architect employs steel structures that are easily dismantled, flexible and lightweight. This is to create contrast to make the interior appear more cozy by designing interior spaces and various details with wooden materials such as door frames, windows, handrails, balcony flooring or walls, It is noticeable that the walls and wooden floors are mixed in size since the architect chooses from the range of different old wood size of 4” 3” 2”.

“The difficulty is the construction technique. When the building is located on the slope, I have to consider the water from the road, the construction of the retaining wall, the channel and the drainage. In addition, when it is a cliff, there will be very little soil beneath the building. Most of them are stone. Therefore, I have to alter the design on the spot when building the foundation. For example, at some points when digging, we encountered really large stones and are unable to continue digging. I then worked with structural engineers who recommended drilling into the rock and pouring concrete over the shale to use natural stone as one of the foundations.”

The current building appearance is the result of the owner’s personal preference.  Inspired by the contour lines of the building’s top view and surrounding areas, the architect added curves to the building while creating a curved shape openings and moving the columns of the building inward so that the columns at the corners of the building do not obstruct the view and reduce the chance of more panoramic views.  The building therefore blends with the natural lines and along the rocks.  The architect reduced the smoothness and added a dimension of light and shadow from nature by designing wall textures that replicate natural stone lines with rough surfaces.

“From the creek area, I envisioned the building protruding somewhat beyond the original tree line at the location. The café structure will be built around the existing jackfruit tree. The balcony will be positioned according to the perspective. I would create a floor void to avoid the existing trees, such as the santol tree on the balcony of the guest bedroom. By doing so, I aim to position the building such that it merges in with the natural environment since I don’t believe I need to chop all the original items merely to place them here. But I would want the building to intrude in its native location as modestly and respectfully as possible.” recalled the architect.

Architect: S.O.S Architects
Design Team : Chaikla Dangboon, Alongkot Paophanit
Structure Engineer : Chaiwat Kaewkam
Construction Consultant : Creative Design
Photographer : Rungkit Charoenwat

Writer
Picture of Rangsima Arunthanavut

Rangsima Arunthanavut

Landscape Architect ที่เชื่อว่าแรงบันดาลใจในงานออกแบบ สามารถเกิดขึ้นได้จากทุกสิ่งรอบตัว และการบอกเล่าเรื่องราวการออกแบบผ่าน 'ตัวอักษร' ทำให้งานออกแบบที่ดี 'มีตัวตน' ขึ้นมาบนโลกใบนี้

Discover more from Design Makes A Better Life.

Subscribe now to keep reading and get access to the full archive.

Continue reading