Keep in Touch
รับข่าวสารเรื่องการออกแบบ สถาปัตยกรรม ไลฟ์สไตล์
ทางอีเมล ที่จะส่งตรงถึงคุณทุกเดือน ลงทะเบียนได้ที่ด้านล่างนี้เลย!
หากนึกถึงการเดินเล่นในสวนผลไม้ ได้เลือกผลที่ถูกใจ เด็ดใส่ตระกร้า ชิมกันสดๆ เชื่อว่านี่เป็นกิจกรรมที่หลายคนชื่นชอบ เพราะได้สัมผัสกับอากาศ ต้นไม้ และรวมถึงผลไม้แสนอร่อย แต่ในยุคสมัยนี้นอกจากอากาศที่เต็มไปด้วยฝุ่นแล้ว สวนผลไม้ก็ยังอยู่ห่างไกลไปอีก เพราะปัญหานี้เองจึงเกิดเป็นไอเดีย Farm To Table ขึ้นมา ซึ่งโครงการ CityFresh ที่เราเห็นอยู่นี้ก็คือ Flagship Store ของคนรักผลไม้ที่แรกในประเทศไทยนั่นเอง โดยเจ้าของต้องการสร้างกิจกรรมที่หลากหลาย สร้างชุมชนรวมคนที่สนใจในสิ่งเดียวกันขึ้นมาเพื่อดู ดม สัมผัส พูดคุย และสัมผัสประสบการณ์ที่ดีในโลกของผลไม้
FRUIT DELIVERY
ยินดีต้อนรัก
CityFresh เคยเป็นห้องแถวธรรมดาๆ ในย่านปรีดี พนมยงค์ แต่ถูกรีโนเวทให้กลายเป็นฮับใหม่ของคนรักผลไม้ด้วยฝีมือของทีมออกแบบจากสตูดิโอ SPACY ARCHITECTURE ซึ่งนอกจากภายนอกที่สวยงามแล้ว ถ้าพูดเรื่องฟังก์ชันการใช้งานของอาคาร ชั้นหนึ่งจะถูกจัดให้เป็น Commercial zone เพราะเป็นอาคารสาธารณะ ที่จะต้องเผยให้เห็นกิจกรรม การใช้งานในส่วนต่างๆ อย่างชัดเจน
ซึ่งเมื่อมาถึงหน้าโครงการก็จะพบกับส่วนจัดแสดงผลไม้ด้านขวามือเป็นสิ่งแรก เหมือนเป็นเจ้าของบ้านที่คอยรับแขก และทักทายลูกค้า ส่วนซ้ายมือเป็นที่นั่งชั่วคราว และเคาท์เตอร์ต้อนรับ-สั่งอาหาร-คิดเงิน ตรงกลางคือที่ปลูกและจัดแสดงผักไฮโดรโปนิกส์ที่ปลูกเองสดๆ ให้เลือก ในส่วนนี้เส้นสายของตัวเฟอร์นิเจอร์จะนำสายตาให้ทอดยาวไปสู่ผลิตภัณฑ์ เพราะพื้นที่ค่อนข้างจำกัดจากผังเดิมที่เคยเป็นตึกแถวมาก่อน
Circulation หรือการเส้นทางการสัญจรภายในอาคารเป็นเรื่องที่สำคัญมากสำหรับอาคารสาธารณะที่ต้องการแยกฟังก์ชันและทางเดินของพนักงานและลูกค้าออกจากกัน เริ่มจากการเข้าถึงของตัวร้าน มีการแยกเส้นทางให้พนักงานเดินมาเสิร์พไรเดอร์ได้โดยไม่ต้องผ่านหน้าร้าน และยังมีที่พักคอยแก่ไรเดอร์ในฝั่งซ้ายของอาคารด้วย ถ้าสังเกตในผังพื้นชั้น 1 ก็จะเห็นอีกว่ามีทางเดินแยกกันชัดเจนระหว่างพนักงานและลูกค้า รวมถึงมีส่วนที่ลูกค้าไม่สามารถเข้าถึงได้ เช่นที่พักคอยของพนักงาน ห้องเก็บของและพื้นที่ Service ซึ่งเป็นพื้นที่ที่มองไม่เห็นจากภายนอกอาคาร เพื่อซ่อนกิจกรรม Service ไว้ที่หลังร้านนั่นเอง
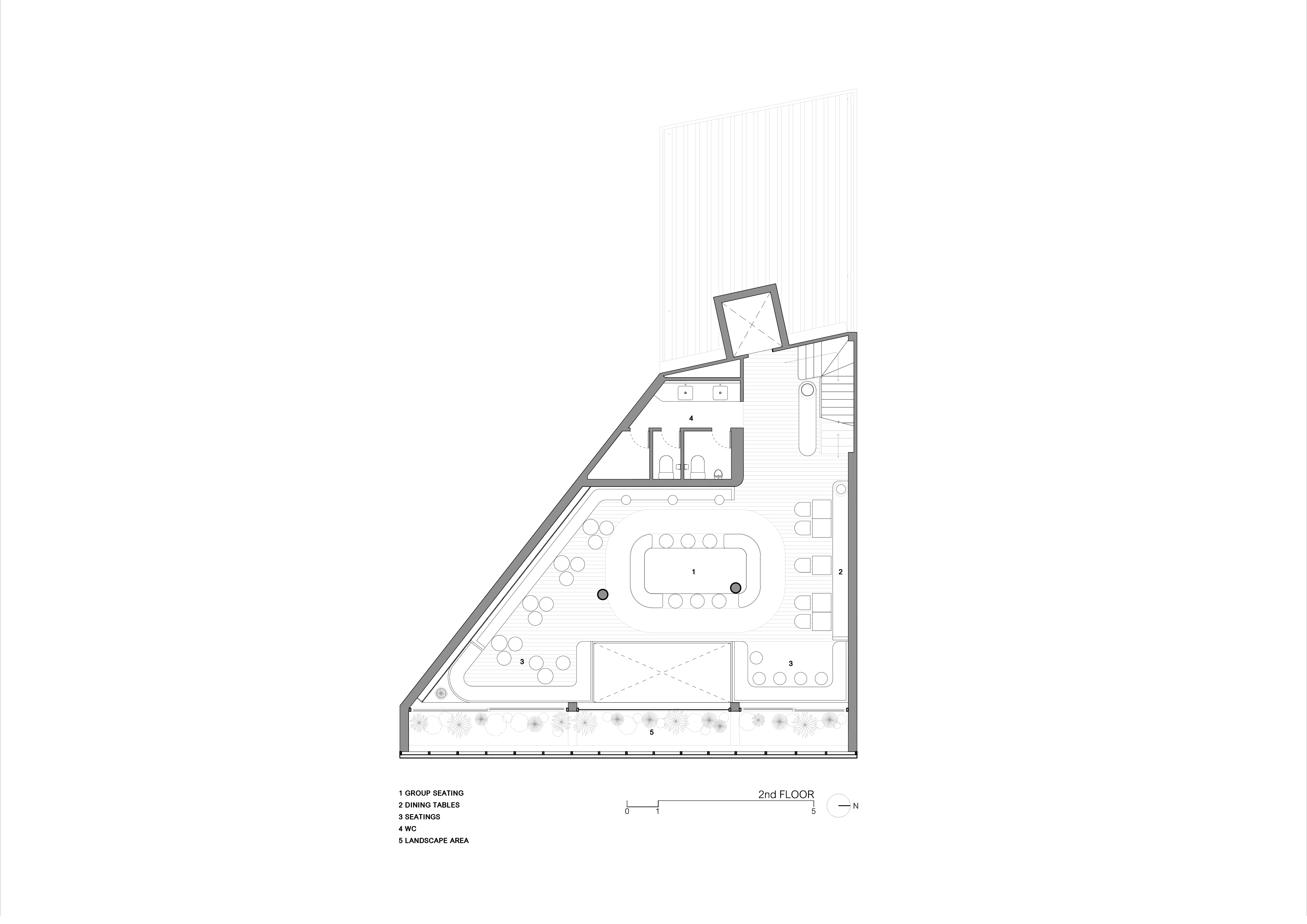
CO-FRUITING SPACE
Double Space ที่เชื่อมชั้น 1 ไปสู่ชั้นบน
ขึ้นบันไดมาถึงชั้นสอง ก็จะพบกับ Co-Working Space ที่ให้ลูกค้าได้มานั่งทำงาน หรือว่าให้คนในซอยได้มีที่พบปะพูดคุย ตามจุดประสงค์ของโครงการในการสร้างสังคม โดยจะมี Double Space ที่ช่วยเชื่อมชั้นล่างมาสู่ชั้นบน และสร้างความต่อเนื่องของกิจกรรมเพื่อให้ลูกค้าชั้น 1 ได้มองเห็นว่ากิจกรรมต่อไปจะเกิดอะไรขึ้นบ้าง เพื่อการตัดสินใจในการใช้บริการสถานที่
ภายในพื้นที่ชั้นนี้ มีการจัดโต๊ะให้มีการใช้งานครอบคลุมทุกรูปแบบไม่ว่าจะมาแบบคนเดียว มาเป็นคู่ หรือมาแบบกลุ่ม ก็มีที่รองรับสำหรับหลายกิจกรรมได้ อากาศหมุนเวียนได้ดี ไม่อุดอู้ สามารถมองวิวที่เป็น Landscape ของโครงการได้ รวมถึงวิวของถนนปรีดี พนมยงค์ด้วย แต่จะมีบัฟเฟอร์เล็กน้อยที่เป็น Facade อาคาร ที่รวมเอาวัสดุโปร่งใสไว้ภายในโครงสร้างเพื่อเพิ่มแสงธรรมชาติเข้ามาในพื้นที่และสร้างชั้นพื้นผิวที่สามารถมองเห็นได้สบายตา และสร้างความเป็นส่วนตัวของผู้ใช้งานไปพร้อมกัน ในขณะที่ยังคงมีช่องเปิดอยู่บ้างเพื่อไม่ให้ทึบจนเกินไป และเมื่อมองออกไปเห็นวิว ก็จะได้ภาพเหมือนช่องเปิดเป็นกรอบงานศิลปะด้วย
ในส่วนของผนังมีการทำ Doubble Skin โดยให้ผนังด้านในทำหน้าที่เป็นหน้าต่างทั้งหมด และช่องว่างระหว่างผนังจะปลูกต้นไม้ ให้อารมณ์เหมือนเป็นระเบียงหลอก เพื่อเพิ่มพื้นที่สีเขียว และความสบายตา อีกทั้งยังให้ความรู้สึกนุ่มนวลและทำให้พื้นที่มีขนาดที่กว้างขึ้น ไม่ใช่เพียงห้องโถงทึบๆ ธรรมดา
CO-TERRACE
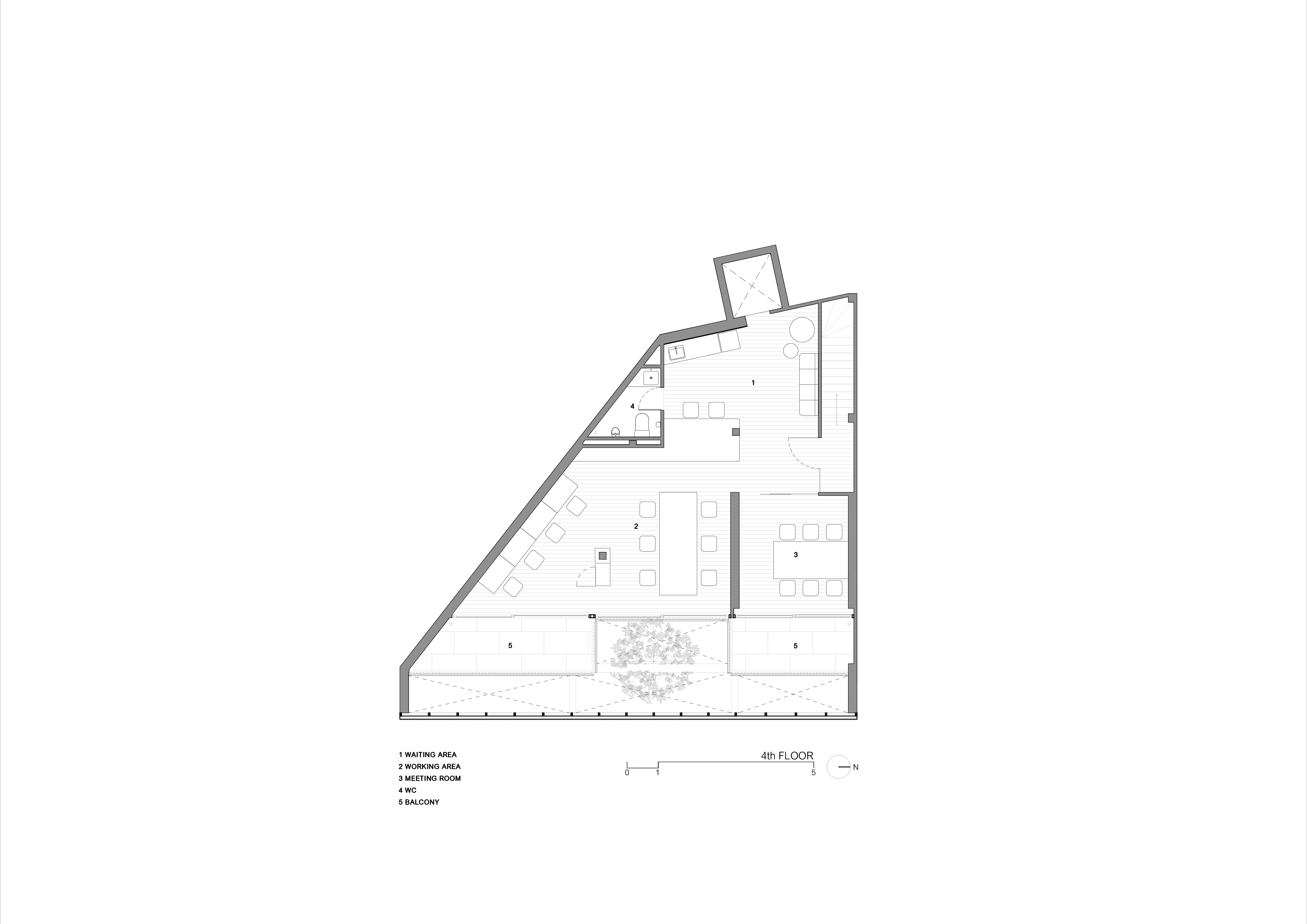
ครัวกลางและออฟฟิศที่มีพระเอกเป็นต้นหลิวลู่ลม
ชั้นสามเป็นส่วนของ Cooking Studio สำหรับใครที่มีความสนใจอยากทำเมนูที่เกี่ยวข้องกับสุขภาพ ต้องการมาพบปะเพื่อนฝูงหรือว่ามาแลกเปลี่ยนอะไรที่เกี่ยวข้องกับเมนูจานใหม่ๆ ก็สามารถมาใช้งานได้ โดยพวกวัตถุดิบผลไม้ผักสดต่างๆ ก็สามารถไปเลือกได้ในบริเวณชั้นหนึ่ง และมาทำอาหารกันที่ชั้นสาม และยังสามารถจ้างเชฟมาสอนหรือทำเพื่อรับประทานอาหารแบบ Chef Table ได้ด้วย
พื้นที่บริเวณนี้มี Terrace หรือชานที่เป็น Double Volume ปลูกต้นหลิวลู่ลม เพื่อดึงธรรมชาติเข้ามาที่ชั้น 3-4 เพื่อให้เกิดความผ่อนคลาย เป็นที่พักสายตาจากการทำงาน เนื่องจากชั้นสี่จะเป็นออฟฟิศของ CityFresh ซึ่งจะเป็นวิวที่มองเห็นส่วนใบของต้นหลิวได้ตลอดเวลา และยังช่วยทำหน้าที่เป็นม่านธรรมชาติให้แก่ผนังทิศตะวันออกอีกด้วย
เนื่องจากออฟฟิศต้องนั่งทำงานทั้งวัน จึงมีระเบียงสำหรับการออกไปรับลม เดินเล่น ได้ความเป็นส่วนตัวจากการที่ออฟฟิศอยู่ชั้นบนสุด เมื่อมองจากภายนอกต้นไม้ก็จะเป็นจุดรวมสายตาหรือ Center of point ที่สร้างจุดเด่นให้กับอาคารทำให้มีภาพจำที่ชัดเจน และด้วยความเป็นอาคารสำหรับธุรกิจ ก็จะสื่อสารภาพลักษณ์และจุดประสงค์ของโครงการได้ออกมาได้อย่างชัดเจนด้วยนั่นเอง
God is in the details
สร้างคาแรกเตอร์ให้อาคารด้วยการใส่รายละเอียด
“เราต้องการสร้างการเชื่อมต่อหรือความเกี่ยวเนื่องกันระหว่างภายในกับภายนอกให้มากที่สุด เพราะ ผมเชื่อว่างานคอมเมอร์เชียลที่ดีมันต้องเห็นกิจกรรมภายใน เพราะการสร้าง Community เริ่มมาจาก Acivity” สถาปนิกกล่าว
จะเห็นได้ว่าสิ่งที่โดดเด่นอย่างมากก็คือ Facade หรือผิวอาคารที่ใช้เป็นวัสดุโปร่งแสงเพื่อล้อคาแรกเตอร์ของ Glass House ที่เป็นโรงเรือนปลูกผัก และความโปร่งใสยังช่วยให้ภายในและภายนอกเชื่อมต่อกัน ตัวแผ่นจะมีลักษณะเป็นคลื่นลอนเล็ก เพื่อจำแนกความเป็นส่วนตัว-สาธารณะ ให้ได้ทึบขึ้นเล็กน้อยจากชั้นหนึ่งที่ต้องการสื่อสารกิจกรรมโดยตรงแนวระดับสายตา ส่วนชั้นสอง-สาม-สี่จะเป็นกิจกรรมที่เป็นส่วนตัวมากขึ้น แต่ยังคงให้เห็นแบบมีบัฟเฟอร์เพียงเล็กน้อย
และมีการใช้วัสดุจากผิวอาคารมาสู่ด้านในอาคาร ซึ่งก็คือความเป็นลอน ที่เป็นคาแรกเตอร์หลัก เพื่อให้เกิดความต่อเนื่องของการรับรู้พื้นผิวของผู้ใช้งาน
อีกหนึ่งสิ่งคือสีขาวของโครงการ เหตุผลหลักคือต้องการให้ตัวผลไม้หรือ Product ต่างๆ โดดเด่นขึ้นมา จินตนาการแอปเปิลสีแดงสด หากมีฉากหลังเป็นสีขาวก็จะช่วยในการมองเห็นแอปเปิล ช่วยผลักสินค้าให้เตะตาคนมากขึ้น
รูปฟอร์มของอาคารจะมีการลบเหลี่ยมทั้งในผังพื้น และเฟอร์นิเจอร์ด้วย เพื่อให้ลดความแข็งกระด้างของคอนกรีต เกิดความละมุนในการใช้งาน สร้างคาแรกเตอร์ความมน นุ่มนวลของผลไม้ให้เข้ามาอยู่ในอาคาร ทั้งยังลด Dark Shadow หรือแสงแข็งด้วย
สุดท้ายสิ่งที่โครงการสาธารณะหรือโครงการเพื่อธุรกิจต้องคำนึงถึงคือการสร้างความกลมกลืนไปกับบริบทรอบข้าง แต่ยังคงต้องออกแบบให้มีเอกลักษณ์ น่าจดจำแก่ลูกค้า ขับผ่านแล้วสะดุดตา นี่จึงเป็นโจทย์ที่ค่อนข้างยากเลยทีเดียวสำหรับสถาปนิก แต่โครงการ CityFresh ทำออกมาได้อย่างสวยงามและพอดีกับบริบทของชุมชนปรีดี พนมยงค์ แถมยังมีคาแรกเตอร์ที่ชัดเจนในการขายผลไม้อีกด้วย
รับข่าวสารเรื่องการออกแบบ สถาปัตยกรรม ไลฟ์สไตล์
ทางอีเมล ที่จะส่งตรงถึงคุณทุกเดือน ลงทะเบียนได้ที่ด้านล่างนี้เลย!
Subscribe now to keep reading and get access to the full archive.
Automated page speed optimizations for fast site performance