Factory & Co-Working Space
ฟื้นชีวิตโรงกลึงไม้เก่า

เดิมทีอาคารหลังนี้เป็นโรงกลึงไม้เก่าของคุณพ่อที่เคยเปิดใช้งานมาตั้งแต่อดีต แต่ในเวลาต่อมาโรงงานนี้ได้ผ่านกาลเวลามาถึงรุ่นลูกๆ ประกอบกับอาคารที่เสื่อมสภาพลงไป จากการปิดการใช้งานมาเป็นระยะเวลานาน ความตั้งใจของเจ้าของโครงการเริ่มแรกคือต้องการจะเก็บบรรยากาศความเป็นโรงกลึงโครงสร้างไม้เอาไว้ และปรับเปลี่ยนการใช้งานภายในใหม่ เป็นพื้นที่สำหรับการเป็นร้านกาแฟ พื้นที่ประชุม และการเวิร์คชอปงานช่างไม้ และในอนาคตอยากจะทำเป็น Local Community Space และต้องการแก้ปัญหาเรื่องน้ำรั่วซึม น้ำขัง โครงสร้างที่ผุพัง จึงเรียกผู้ออกแบบเข้าไปดูที่ตั้งอาคาร และเสนอไอเดียในการออกแบบเพื่อนำไปสู่การรีโนเวทอาคารเพื่อเล่าเรื่องในแบบใหม่

หลังจากได้ทำการเข้าไปดูที่หน้างาน จึงได้พบกับสภาพอาคารที่เก่าและทรุดโทรมลงไปมาก และมีเครื่องมือในการทำงานและแบบหล่องานกลึง รวมถึงอุปกรณ์ต่าง ๆ วางแยกเป็นกองๆอยู่ภายในอาคาร ผู้ออกแบบจึงได้เสนอไอเดียในการออกแบบทั้งในการออกแบบสถาปัตยกรรม และการออกแบบภายในที่จะดึงองค์ประกอบที่เคยมีอยู่ในอดีต กลับมาใหม่อีกครั้ง องค์ประกอบทางสถาปัตยกรรมที่ผู้ออกแบบค้นพบในอาคารเดิมประกอบด้วย 1.Double Space ภายในโรงงาน 2.ฝาไหลไม้บนผนัง 3.โครงสร้าง Truss ไม้ 4.ไม้เนื้อแข็งที่ติดอยู่บนฝาผนัง 5.รอยต่อของโครงสร้างไม้ และสิ่งประดับทางสถาปัตยกรรม อย่างเช่น 1.แบบชิ้นงานหล่อโลหะ 2.พู่เล่สำหรับเครื่องกลึง 3.สายไฟลูกถ้วย 4.แผ่นท้องพื้นวัสดุมุงหลังคา ผู้ออกแบบจึงได้นำองค์ประกอบ/สิ่งประดับ ทางสถาปัตยกรรมเหล่านี้มาเป็นเครื่องมือในการออกแบบ เพื่อสร้างบรรยากาศและการใช้งานแบบใหม่เข้าไปในอาคารเก่า

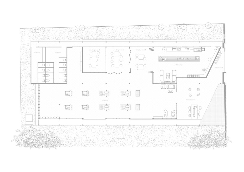
ในขั้นตอนการเริ่มต้นออกแบบ ผู้ออกแบบมองไปที่การขยับแนวผนังทั้งสองด้านร่นเข้ามา เพื่อทำให้ชายคาอยู่ในระนาบเดิม แต่ได้พื้นที่ทางเดินด้านข้างเพิ่มขึ้นมา ชายคาจะสามารถช่วยในเรื่องการกันฝนและกันแสงแดดได้พอประมาณ และการทำช่องแสงของหลังคา เพื่อดึงแสงธรรมชาติเข้ามาภายในอาคาร และการเปิดพื้นที่ด้านหน้าทางเข้าเพื่อรองรับการใช้งานที่อาจจะเกิดขึ้นใหม่ และสร้างแกนในการมองเห็นที่

หากเดินเข้ามาจากด้านหน้าทางเข้าหลักจะพบกับผนังต้อนรับที่นำแผ่นเหล็กและชิ้นงานเก่า มาจัดเรียง ในโถงทางเข้าที่ไม่สว่างมากนัก เป็นการสื่อให้เห็นถึงอดีตของอาคารเหล่านี้ผ่านการเรียงลำดับการเข้าถึงอาคาร เมื่อเข้ามาจะพบกับโถงโล่ง เป็นเหมือนทางเข้าโรงกลึงไม้แห่งนี้ และจะพบกับพื้นที่จัดแสดงเครื่องกลึง และเครื่องมือที่เคยถูกใช้งานในอาคารนี้ ซึ่งบางชิ้นสามารถใช้งานได้อยู่ และบางชิ้นไม่สามารถใช้งานได้อีกแล้ว

เมื่อเข้ามาถึงในส่วนร้านกาแฟ จะพบกับบาร์ขนาดใหญ่ ที่ทำจาก พู่เล่ (Pulley) เครื่องกลึง นำมาจัดเรียงเพื่อก่อตัวขึ้นเป็นฐานของบาร์ และไม้เนื้อแข็งที่ยาว 12 เมตร ชิ้นเดิมที่อยู่ภายในอาคาร ถูกนำมาใช้งานในบาร์หลัก และแนวผนังที่อยู่ด้านหลังบาร์เดิมทีจะเป็นแนวผนังไม้ ตรงส่วนนี้ผู้ออกแบบต้องการให้มีแสงภายนอกเข้ามาสู่ภายในอาคารแบบ Indirect Light จึงได้ทำการเปลี่ยนเป็นกระจก เพื่อดึงแสงภายนอกเข้ามา และในการแก้ปัญหาเรื่องความร้อนภายในอาคารผู้ออกแบบเลือกทำการซ่อนพัดลมดูดอากาศ ไว้ที่ผนังส่วนบนอาคาร เพื่อระบายความร้อนไปสู่ภายนอกอาคาร และทำการเปิดช่องเปิดขนาดใหญ่ด้านบริเวณทางเข้าด้านที่จอดรถ ประกอบกับการใช้ต้นใหญ่ไม้เดิมในโครงการที่เก็บไว้มาช่วยสร้างร่มเงาให้กับอาคารและมิติของแสงเงา ที่ปรากฏบนผนังไม้ในรูปแบบการใช้งานใหม่ของอาคารหลังนี้

การออกแบบสถาปัตยกรรมชิ้นนี้เป็นเหมือนการพยายามที่จะแก้ปัญหาในหลายมิติ ทั้งการกลับมามีชีวิตใหม่อีกครั้งของโรงกลึงเดิม และ การใช้งานในรูปแบบใหม่ที่ต่างออกไปจากเดิม โดยผ่านการออกแบบทางสถาปัตยกรรมโดยใช้สิ่งของเดิมที่มีอยู่เป็นสารตั้งต้น และการเพิ่มองค์ประกอบทางสถาปัตยกรรมเข้าไปเท่าที่จำเป็นต่อการใช้งานใหม่ แต่ยังคงเป็นสิ่งที่สามารถตอบโจทย์ที่ได้ตั้งไว้ตั้งแต่เริ่มต้นในการออกแบบอีกด้วย

*คำอธิบายทั้งหมดโดยผู้ออกแบบ (Text description by the architects)

Project Name: Weng’s Factory
Location : ถ.เอกชัย ซ.เอกชัย 7 แขวงบางขุนเทียน เขตจอมทอง กรุงเทพมหานคร
Architecture Firm: Architect Nonsense

Year: 2021-2023
Area : 750 Sq.m.
Lead Architects: พลพิพัฒน์ นากสวาท
Design Team: รถสกล ฉันทลักษ์สุข, ธีรกานต์ วัฒนายนต์ และ อนุวัฒน์ ปฐมเล็ก
Owner: ปิยะวัฒน์ จิรเทียนธรรม
Photographer : คุณากร ธีรธิติธรรม

Discover more from Design Makes A Better Life.

Subscribe now to keep reading and get access to the full archive.

Continue reading