The Cliff Cafe คาเฟ่จ.ตราด
เมืองครึ่งร้อยเกาะที่ถ่ายทอดผ่านโครงสร้างร่มกลับหัว

The Cliff Cafe คืออาคารสีสันสดใสโครงสร้างรูปทรงร่มกลับหัว เป็นคาเฟ่ตั้งอยู่ริมทะเลตราด  แนวคิดในการออกแบบโครงการนี้ ทาง Everyday Architect & Design Studio เลือกหยิบคำขวัญจังหวัดตราดที่ว่าคือ ”เมืองครึ่งร้อยเกาะ” นำมาใช้ในการออกแบบอาคารและวางผังทั้งหมดของโครงการนี้

เริ่มด้วยการออกแบบโครงสร้างร่มรูปทรงกลับหัว ทำจากโครงท่อเหล็กง่ายๆ ทาสีส้ม ยึดกับผืนผ้าใบกันสาดสีน้ำเงินที่เราคนไทยคุ้นเคย วางปักกระจายตัวบน Landscape สำหรับการกันแดดในพื้นที่ Outdoor ที่เมื่อเงยมองแล้วจะคล้ายเห็นหมู่เกาะที่กระจายตัวไปบนท้องฟ้า

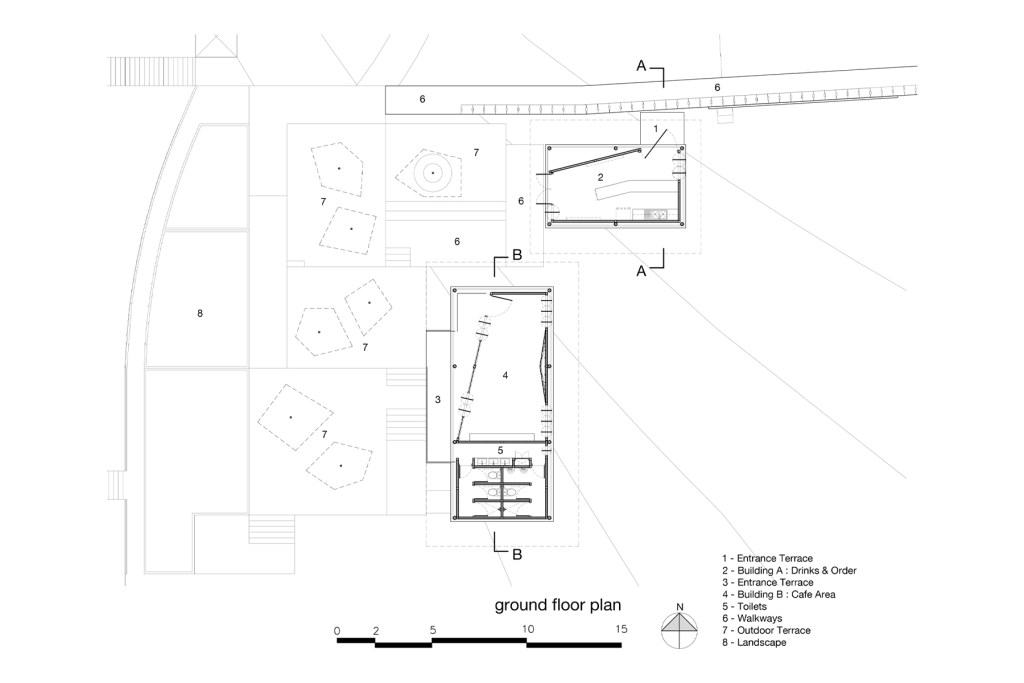
รูปทรงโครงสร้างร่มกลับหัว เมื่อนำมามัดรวมต่อกันก็จะมีลักษณะเป็นอาคารสถาปัตยกรรม ซึ่งถูกนำมาออกแบบเป็น 2 อาคารวางคู่กัน ได้แก่ ส่วนรับออเดอร์และที่นั่งรับประทานแบบ Indoor โดยมีการออกแบบโต๊ะกลางหน้ากระจกใส่ทรายไว้เป็นกิมมิค 

เมื่อสอดประสานโครงสร้างร่มกลับหัวทั้ง Outdoor และอาคาร Indoor ทั้งหมด จึงเกิดเป็นการออกแบบสถาปัตยกรรมและสเปซการใช้งานที่เป็นเนื้อเดียวกัน และสามารถเล่าเรื่องจังหวัดตราดด้วยรูปทรงสถาปัตยกรรมได้

การออกแบบวัสดุพื้นผิวของอาคาร ทาง Everyday Architect & Design Studio เลือกใช้เทคนิคตกแต่งท้องถิ่นที่ทางช่างก่อสร้างคุ้นเคย อย่างการกรีดลายบนผิวปูนให้เหมือนลายไม้ ทาทับด้วยสีเหลืองและตัดขอบด้วยสีส้มให้ดูสดใส ในขณะเดียวกันผนังภายในอาคารเลือกใช้เป็นผิวปูนลอฟต์ให้ดูเรียบง่ายร่วมสมัยแทน ส่วนตัวฝ้าอาคารที่เป็นรูปทรงร่มกลับหัว เลือกใช้สีลอฟต์ที่ผสมสีฟ้าทาทับลงไป เกิดเป็นเอฟเฟกต์คล้ายท้องฟ้าที่ล้อไปกับท้องฟ้าจริงๆ ด้านหลังนั่นเอง

*คำอธิบายทั้งหมดโดยผู้ออกแบบ (Text description by the architects)

Project Name: The Cliff Cafe
Location : ตำบลแหลมกลัด อำเภอเมือง จังหวัดตราด
Architecture Firm: Everyday Architect & Design Studio

Year: 2023
Area : 115 Sq.m.
Design Team: Chatchavan Suwansawat
Owner: Attapol Arunwuttipong
Landscape Designer: ฐานิกา สิทธิเวช Suankhongkwan
Construction: Panusith Srijaratthanon
Contractor: Pakul Chaweethai
Photographer : Beer Singnoi

Discover more from Design Makes A Better Life.

Subscribe now to keep reading and get access to the full archive.

Continue reading