Keep in Touch
รับข่าวสารเรื่องการออกแบบ สถาปัตยกรรม ไลฟ์สไตล์
ทางอีเมล ที่จะส่งตรงถึงคุณทุกเดือน ลงทะเบียนได้ที่ด้านล่างนี้เลย!
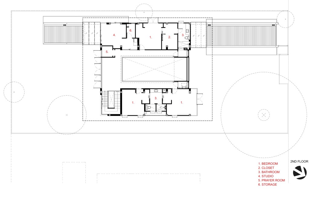
บ้านพักอาศัยขนาด 5 ห้องนอนหลังนี้ มีพื้นที่ใช้สอยรวมประมาณ 650 ตร.ม. ซึ่งตัวบ้านตั้งอยู่ในซอยส่วนบุคคล จึงทำให้สภาพแวดล้อมบริเวณโดยรอบของตัวบ้าน ให้ความรู้สึกของความสงบและปลอดภัย อีกทั้งทางเจ้าของบ้านเอง ยังมีความชื่นชอบรูปแบบของสวนหินญี่ปุ่น ที่อยู่ในวัดเรียงอังจิ ประเทศญี่ปุ่น เลยอยากให้มีบรรยากาศของสวนหินในบ้านหลังนี้ แต่ทั้งนี้ในบริเวณข้างเคียงมักจะมีเสียงประกอบพิธีกรรมทางศาสนาจากมัสยิดในบางช่วงเวลา และเรื่องของกลิ่นของน้ำขยะในเวลาฝนตก
ด้วยสภาพภูมิอากาศของประเทศไทย ที่มีแสงแดดจัดและอากาศร้อน การออกแบบพื้นที่ส่วนใหญ่จึงมักจะหลีกเลี่ยงการทำพื้นที่ปิด แต่บ้านหลังนี้ผู้ออกแบบเลือกที่จะออกแบบในทิศทางที่แตกต่างออกไป โดยการนำพื้นที่ภายนอกเข้ามาสู่พื้นที่ภายใน โดยนำสวนหินญี่ปุ่นเข้ามาไว้ภายในตัวบ้าน เพื่อลดการได้รับเสียงรบกวนและกลิ่นเหม็นที่เข้ามากระทบจากบริเวณโดยรอบในขณะที่กำลังใช้งานพื้นที่ของสวนหินญี่ปุ่นอยู่
ทางผู้ออกแบบนั้น ได้จัดสรรพื้นที่ตรงกลางภายในตัวบ้านโดยทำให้เป็นลานสวนหินญี่ปุ่นขนาดใหญ่ ซึ่งเป็นพื้นที่ที่เป็นจุดเด่นของตัวบ้านหลังนี้ โดยเป็นพื้นที่ปิดที่ตรงกับตำแหน่งของช่องแสงที่เป็น SKYLIGHT ขนาดใหญ่ และมีขนาดเท่ากันกับสวนหินด้านล่าง เพื่อนำแสงจากภายนอกเข้ามายังภายในตัวบ้าน ทำให้เกิดรูปแบบของแสงและเงาตกกระทบลงบนพื้น ที่มีหินกรวดรายรอบอยู่ แบบเดียวกับภาพต้นแบบของสวนหินญี่ปุ่นในวัดเรียงอังจิ โดยรูปแบบของ SKYLIGHT จะถูกทำให้ยกขึ้นสูง พร้อมกับติดตั้งบานหน้าต่างที่สามารถขึ้นไปเปิดปิดได้ผ่านช่องเปิดและทางเดินโดยรอบหลังคา เพื่อควบคุมในเรื่องของกลิ่นและเสียงจากภายนอก อีกทั้งยังช่วยให้เกิดการไหลเวียนของการระบายอากาศจากด้านล่างสู่ด้านบน เพื่อออกไปยังภายนอกของตัวบ้าน
ผู้ออกแบบพยายามวางตำแหน่งประตูและหน้าต่างหลายบานในฝั่งทิศเหนือและทิศใต้ เพื่อระบายอากาศและความร้อนภายในบ้าน เมื่อเปิดประตูและหน้าต่าง ผู้อยู่อาศัยจะสัมผัสได้ถึงลมธรรมชาติที่พัดผ่านเข้ามายังภายในตัวบ้าน จึงไม่มีความจำเป็นที่จะต้องใช้เครื่องปรับอากาศในพื้นที่บริเวณตรงนี้ อีกทั้งมีการออกแบบให้มีหน้าต่างที่มีขนาดกว้างขวางอยู่ด้านหลังผนังระแนงอลูมิเนียม จึงสามารถที่จะเปิดรับลมธรรมชาติได้ทั้งกลางวันและกลางคืนได้อย่างปลอดภัย
ทางผู้ออกแบบเองมีการจำลองทิศทางของรูปแบบแสงและเงาจากช่องแสง SKYLIGHT ด้านบน และลดขนาดของเฟรมหลังคานี้ เพื่อให้เกิดรูปแบบความเรียบง่ายของเงาที่ตกกระทบกับผนังในตำแหน่งที่ต้องการ ซึ่งในระหว่างวัน รูปแบบของเงาที่ตกกระทบกับผนังนี้ ก็จะมีการเคลื่อนที่ไปจากฝั่งหนึ่งไปอีกฝั่งหนึ่ง บริเวณผนังชั้นบนที่อยู่รอบลานสวนหินกลางบ้านจะแยกออกจากส่วนที่เป็นฝ้า โดยเว้นช่องว่างขนาดเล็กเพื่อระบายอากาศบริเวณทางเดิน และดึงแสงธรรมชาติเข้ามาภายใน จึงทำให้ไม่จำเป็นต้องเปิดไฟในเวลากลางวัน ซึ่งช่องว่างตรงนี้ยังทำให้เกิดรูปแบบที่คล้ายโคมไฟกระดาษญี่ปุ่นกำลังลอยอยู่ในอากาศ รวมถึงผนังฝั่งโถงทางเดิน จะมีช่องเปิดที่ตัดเป็นเส้นตรงขนาดเล็ก ที่สร้างความเป็นส่วนตัวให้กับห้องนอน และเน้นมุมมองไปสู่พื้นที่ลานสวนหินด้านล่าง
ตัวบ้านจะใช้สีขาวเป็นหลักและสีไม้ธรรมชาติ เพื่อแสดงถึงความเรียบง่ายและความสงบ ลานสวนหินกลางบ้านจะเป็นพื้นที่เชื่อมต่อกันระหว่างชั้นวางหนังสือยาวตามทางเดิน ไปยังห้องนั่งเล่น และห้องรับประทานอาหาร ซึ่งจากเดิมที่เป็นเพียงแค่สวนหินญี่ปุ่นเล็กๆกลางบ้าน (4×6 ม.) จนกลายเป็นส่วนหนึ่งของพื้นที่สำหรับพักผ่อน ของผู้อยู่อาศัยทุกคนไปในเวลานี้
*คำอธิบายทั้งหมดโดยผู้ออกแบบ (Text description by the architects)
Project Name: CPK75 House
Location : ถนน เฉลิมพระเกียรติ ร.9 ซอย 75 แขวงประเวศ เขตประเวศ กรุงเทพมหานคร 10250
Architecture Firm: AOMO (Architecture of My Own)
Year: 2021
Area : 650 Sq.m.
Lead Architects: สิวิชัย อุดมวรนันท์
Design Team: AOMO (Architecture of My Own)
Owner: คณิต กิตติโกวิท
Interior Designer: AOMO (Architecture of My Own)
Construction: ฐิตินนท์ โชติวิรวัฒน์
Contractor: G.A.House
Sanitation Engineer: วิทยา แปงนุจา
Electrical engineer: สุชาดา นิลจันทร์
Photographer : DOF Sky Ground
รับข่าวสารเรื่องการออกแบบ สถาปัตยกรรม ไลฟ์สไตล์
ทางอีเมล ที่จะส่งตรงถึงคุณทุกเดือน ลงทะเบียนได้ที่ด้านล่างนี้เลย!
Subscribe now to keep reading and get access to the full archive.
Automated page speed optimizations for fast site performance