Keep in Touch
รับข่าวสารเรื่องการออกแบบ สถาปัตยกรรม ไลฟ์สไตล์
ทางอีเมล ที่จะส่งตรงถึงคุณทุกเดือน ลงทะเบียนได้ที่ด้านล่างนี้เลย!
หากพูดถึงอาคารราชการ หลายคนอาจคุ้นตากับสถาปัตยกรรมที่มีหน้าตาคล้าย ๆ กัน เช่น ที่ว่าการอำเภอ สำนักงานเขต โรงเรียนสมัยก่อน แต่ Lanna Rice Research Center ของมหาวิทยาลัยเชียงใหม่ มีหน้าตาอาคารที่แตกต่างออกไป ด้วยฝีมือการออกแบบของ Hanabitate Architect ที่ทลายกรอบความคิดของการออกแบบอาคารราชการ
อาคารราชการรูปแบบใหม่ เพื่ออนาคต
ศูนย์วิจัยพันธุ์ข้าวล้านนาแห่งนี้ มีสถานภาพเทียบเท่ากับคณะหนึ่ง ภายใต้มหาวิทยาลัยเชียงใหม่ ซึ่งเป็นแหล่งค้นคว้า และพัฒนาพันธุ์ข้าวบนดอย ให้สามารถปลูกบนพื้นที่ราบได้ ศาสตราจารย์ด็อกเตอร์ ณวิทย์ อ่องแสวงชัย อาจารย์จากคณะสถาปัตยกรรมศาสตร์ มหาวิทยาลัยเชียงใหม่ และสถาปนิกผู้ก่อตั้ง Hanabitate Architect ได้รับหน้าที่ในการออกแบบงานสถาปัตยกรรมครั้งนี้ มีแนวคิดว่าคนที่มาใช้งานอาคารนี้ มีหลากหลายกลุ่ม ตั้งแต่คณบดี พนักงานของหน่วยงานรัฐบาลนักศึกษา และเกษตรกร จึงออกแบบให้อาคารเข้าถึงได้ง่าย หนึ่งพื้นที่สามารถปรับเป็นได้หลายฟังก์ชัน และพร้อมต่อการขยายอาคารต่อไปในอนาคต
“เราเริ่มออกแบบตั้งแต่เลือกไซต์ จนถึงการเลือกเฟอร์นิเจอร์ภายใน ใจผม อยากให้คนลืมภาพอาคาราชการไป ราชการต้องเป็นแบบนี้ ๆ อยากให้ลืมความคิดนั้นไป ไม่อยากให้เป็นลักษณะเดิมที่ของมันไม่เข้ากัน ”
ศาสตราจารย์ด็อกเตอร์ ณวิทย์ อ่องแสวงชัย กล่าวถึงแนวความคิดแรกในการออกแบบ
การเลือก Site เพื่อส่งเสริมการวิจัย
เมื่อสถาปนิกเป็นคนในพื้นที่ รู้จักพฤติกรรมของคนที่เข้ามาใช้งานอาคารเป็นอย่างดี ทำให้การออกแบบครั้งนี้ ริเริ่มวางแผนตั้งแต่การเลือก Site ที่ช่วยอำนวยความสะดวกให้แก่การวิจัยพันธุ์ข้าว
จึงเลือกก่อสร้างบริเวณ ใกล้โรงสีชุมชน โรงเก็บข้าวเปลือก และอาคารสำนักงานเก่า โดยสร้างถนนเข้าโครงการให้อยู่กึ่งกลางระหว่างอาคารเดิม และอาคารใหม่ เพื่อจะได้แชร์ Facility แก่กัน นอกจากนี้สถาปนิกก็เลือกที่จะร่นระยะอาคารเข้าไปจากถนนหน้าโครงการ เพื่อเว้นบริเวณด้านหน้าให้เป็นแปลงข้าวทดลอง ซึ่งมีแปลงข้าวเดิมอยู่ฝั่งตรงข้ามถนน เพื่อความสะดวกในการเก็บตัวอย่างทดลอง เมื่ออยู่ด้านหน้าแล้วมองเข้าไปยังอาคารวิจัยพันธุ์ข้าว จะเห็นแปลงข้าวเป็นสองสีของการปลูกข้าวระยะทดลอง ทั้งระยะใกล้ และระยะไกลหน้าอาคาร ส่วนด้านหลังอาคารเป็นวิวทัศน์ของดอยสุเทพ เสมือนอาคารนี้ถูกโอบล้อมด้วยธรรมชาติ
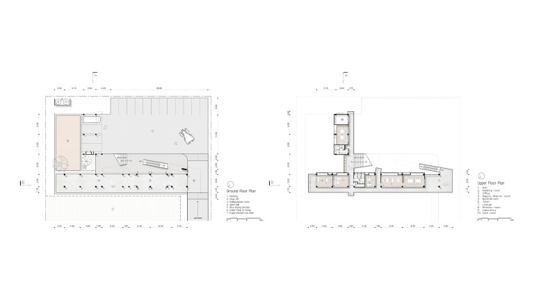
สัดส่วนอาคารที่ชัดเจนต่อผู้ใช้งาน
ด้านล่างอาคารบริเวณใต้ถุนเป็นพื้นที่ Multi-Functional Space ที่มีประตูบานเฟี้ยมแบ่งกั้นพื้นที่เมื่อต้องทำกิจกรรมที่ต่างกัน แต่สามารถเปิดออกได้ เมื่อต้องการเชื่อมต่อพื้นที่เป็นหนึ่งเดียวกัน ส่วนด้านบนของอาคารจะแยกเป็น 2 ส่วน คือส่วนสำนักงาน และส่วนของงานวิจัยพันธุ์ข้าวล้านนา โดยบริเวณอาคารที่หันหน้าเข้าถนน ถูกแบ่งเป็น 2 ฝั่ง ด้านขวาเป็นห้องสำนักงาน และห้องรองผู้อำนวยการ ส่วนด้านซ้ายเป็นห้องรับรองแขก และห้องผู้อำนวยการ ซึ่งทั้ง 4 ห้องมีหัวมุมของตัวเอง เพื่อให้อากาศถ่ายเทสะดวก เมื่อถึงเวลาที่แดดส่องสามารถดึงม่านที่เป็นวัสดุจักสานลงบังแดดได้ เพื่อลดทอนความร้อนที่เข้าสู่อาคาร รวมถึงสร้างความเป็นส่วนตัวให้แต่คนที่อยู่ทำงานในเวลากลางคืนด้วย ส่วนพื้นที่ของงานวิจัยจะเป็นบริเวณที่มีการยื่นออกไปจากแนวตัว I ของอาคาร ประกอบไปด้วยห้องวิจัย และห้องเย็นสำหรับเก็บตัวอย่างงานวิจัย การแบ่งแยก 2 พื้นที่ให้ชัดเจนทำให้ ผู้มาติดต่องานไม่สับสน และงานต่อการทำงาน
วัสดุที่บ่งบอกถึงกาลเวลา
เนื่องจากอาคารนี้จะมีการใช้งานอย่างหนัก ผู้ออกแบบจึงคิดว่าควรใช้วัสดุที่มีความคงทน และง่ายต่อการดูแลรักษา จึงใช้บล็อกคอนกรีตที่ไม่ปิดผิว ตั้งใจโชว์รอยต่อของวัสดุ สถาปนิกตั้งใจใส่ตัวอย่างของข้าว ลงไปในบล็อกบางช่วง เพื่อสร้างกำแพงเป็นพื้นที่โชว์งานทดลองของ และใช้กระเบื้องวิบูลย์ศรี (กระเบื้องซีเมนต์ปั๊มด้วยมือ) มุงหลังคาบริเวณที่มีการใช้งาน ซึ่งเป็นกระเบื้องกลางเก่ากลางใหม่ วัสดุที่ยิ่งเก่า ยิ่งมีร่องรอย กลายเป็นเสน่ห์ของวัสดุที่ใช้ทำหลังคา เมื่อเวลาผ่านไป วัสดุเหล่านั้นสามารถบ่งบอกร่องรอยของกาลเวลาได้ ส่วนบริเวณที่เป็นทางเดิน ใช้เป็นหลัง Flat Slab
หนึ่งพื้นที่เป็นได้มากกว่าหนึ่งฟังก์ชัน
ในการใช้งานอาคาร สถาปนิกตั้งใจออกแบบให้ หนึ่งพื้นที่ หรือหนึ่ง Object มีหลายฟังก์ชัน เพราะการใช้งานพื้นที่แต่ละส่วน อาจมีการเปลี่ยนแปลงไปตามกิจกรรมที่เกิดขึ้น บันไดเป็นทางเดินหลักที่คนใช้เข้าถึงตัวอาคารชั้น 2 แต่ในขณะเดียวกัน บันไดจะกลายเป็นอัฒจันทร์ เมื่อเกิดการชุมนุม หรือให้ความรู้เกษตรกร ส่วนระเบียงที่เตรียมสร้างเป็นทางเดิน Shortcut จะกลายเป็นเวทีให้แก่แขกคนสำคัญ การออกแบบลักษณ์นี้ไม่เพียงแต่ใช้ภายนอกเท่านั้น แต่ภายในก็เช่นเดียวกัน ตู้เก็บของไม้สักที่เราเห็นในทุกห้องสำนักงาน เมื่อเปิดออกมาจะกลายเป็นโต๊ะให้คนเขียนหนังสือได้ ทั้งระดับนั่ง และยืน การใช้งานในแต่ละส่วนของอาคารจึงเต็มไปด้วยความคุ้มค่าที่เกิดขึ้น
การออกแบบ เพื่อการต่อขยายในอนาคต
เนื่องจากศูนย์วิจัยพันธุ์ข้าวล้านนา อาจมีการขยายต่อในอนาคต สถาปนิกจึงออกแบบให้มีพื้นที่รองรับการต่อขยายอาคารในภายภาคหน้า โดยแบ่งการต่อเติมเป็น ทีละ Phase อาคารจะถูกสร้างเพิ่มเป็นตัว U และตัว O ตามลำดับ ดีไซเนอร์ได้เตรียมทางเดินสำหรับเป็น Shortcut หากมีการต่อเติมครบทุก Phase เพื่อให้คนที่มาใช้งานอาคารเดินทางสะดวก ไม่ต้องเดินวนรอบอาคาร จาก Phase 0 ไป Phase 3 ถือเป็นการประหยัดเวลาอย่างหนึ่ง
สถาปนิกสามารถลบภาพจำของอาคารราชการที่เคยติดตามาตั้งแต่อดีต ด้วยการจัดวางพื้นที่ให้ตอบโจทย์การใช้งานที่หลากหลาย จากผู้ใช้งานมากมายหลายกลุ่ม และการใช้วัสดุที่เรียบง่าย และยิ่งเก่ายิ่งดูดี ทำให้ศูนย์วิจัยพันธุ์ข้าวล้านนา ดูกลมกลืนไปกับบริบทเดิมที่มีอยู่ก่อน กลายเป็นงานสถาปัตยกรรมต้นแบบที่ใช้งานได้คุ้มค่า ในแง่ของพื้นที่การใช้งาน และฟังก์ชันที่เหมาะสม ช่วยอำนวยความสะดวกให้งานวิจัยพันธุ์ข้าวที่เป็นจุดประสงค์ในการก่อสร้างสถาปัตยกรรมแห่งนี้
Project Name : ศูนย์วิจัยข้าวล้านนา มหาวิทยาลัยเชียงใหม่
Lanna Rice Research Center, Chiang Mai University
Location : มหาวิทยาลัยเชียงใหม่ วิทยาเขตแม่เหียะ ตำบลแม่เหียะ อำเภอเมือง จังหวัดเชียงใหม่
Mae Hia Campus, Chiang Mai University, Chiang Mai, Thailand
Architecture Firm : Hanabitate Architect
Year : Design: 2012-2018 / Construction: 2019-2020 / Completion: July 2020
Area : 575 Sq.m.
Lead Architects : ณวิทย์ อ่องแสวงชัย Nawit Ongsavangchai
Interior Designer : ณวิทย์ อ่องแสวงชัย Nawit Ongsavangchai
Landscape Design : –
Construction : Thepbhurapa Yothakran
Photographer : Kanthamanee
รับข่าวสารเรื่องการออกแบบ สถาปัตยกรรม ไลฟ์สไตล์
ทางอีเมล ที่จะส่งตรงถึงคุณทุกเดือน ลงทะเบียนได้ที่ด้านล่างนี้เลย!
Subscribe now to keep reading and get access to the full archive.
Automated page speed optimizations for fast site performance