Keep in Touch
รับข่าวสารเรื่องการออกแบบ สถาปัตยกรรม ไลฟ์สไตล์
ทางอีเมล ที่จะส่งตรงถึงคุณทุกเดือน ลงทะเบียนได้ที่ด้านล่างนี้เลย!
หากเราเป็นสถาปนิก มีประสบการณ์ออกแบบอาคารต่าง ๆ มากมายนับไม่ถ้วน เมื่อโอกาสได้สร้างงานสถาปัตยกรรมที่ตัวเองเป็นผู้อาศัย เราจะออกแบบมาเป็นอย่างไร Studio Miti ใช้โอกาสนี้ในการนำวัสดุมาทดลอง หาความเป็นไปได้ใหม่ ๆ ให้แก่งานสถาปัตยกรรม จนเกิดเป็นออฟฟิศ Studio Miti
จุดเริ่มต้นของการรีโนเวท
เดิมทีบริษัท Studio Miti อยู่ในละแวกสังคมสงเคราะห์ 6 ซึ่งห่างจากตำแหน่งปัจจุบัน 2 กิโลเมตร คุณเติ้ล เผดิมเกียรติ สุขกันต์ Co-Founder ของ Studio Miti อยากย้ายออฟฟิศมาอยู่ในหมู่บ้าน เพราะ ปกติพนักงานจะชอบอยู่ทำงานกันดึก ๆ เหมือนเป็นบ้านหลังที่สองของพวกเขา จึงอยากให้ความรู้สึกปลอดภัย และ ความสะดวกแก่พนักงานในบริษัท จนมาเจอทาวน์โฮมในหมู่บ้านแห่งนี้
“ ตึกแถวรอบ ๆ ตัวเราเป็นบ้านเก่า มันอาจจะไม่ตอบโจทย์เรา เพราะว่าผมอยากให้น้องมีสมาธิ จากการที่เคยทำออฟฟิศก่อนหน้านี้ ตอนแรกเราอยู่ในชุมชน และก็ปิดล้อมทั้งหมดให้มีแค่คอร์ท ที่มีมุมมองข้างนอก เราอยากให้มีสมาธิในการทำงาน มาที่นี่ เราทำคอร์ทไม่ได้ เพราะเราเป็นตึกแถว แต่เราชอบวิธีการ Control View ให้เห็นงานเยอะกว่าสิ่งเร้าภายนอก อย่างหนึ่งคือ Architect เป็นเด็กซน เราก็เลยทำดีไซน์เป็นกำแพงที่เปิดปิดได้ ”
คุณเติ้ล กล่าวถึงครั้งแรกที่มาเห็นตึก และ แนวทางในการรีโนเวท
ปรับพื้นที่ตาม อุปนิสัยของผู้ใช้งาน
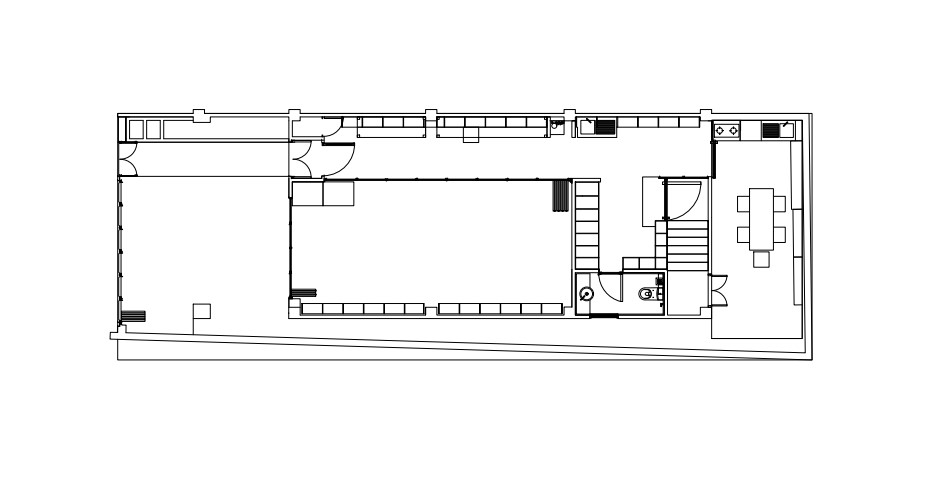
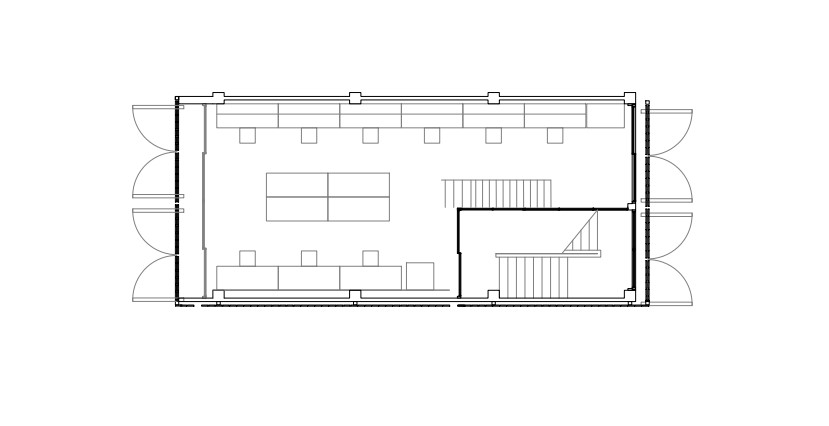
เมื่อต้องรีโนเวท คุณเติ้ล และทีมพนักงานเริ่มปรึกษากันเรื่องการปรับพื้นที่ ตามนิสัยของการใช้งานของคนในออฟฟิศเป็นหลัก ทีมสถาปนิกจึงแบ่งพื้นที่ชั้น 1 ด้วยประตูบานเฟี้ยมเพื่อใช้เป็น Muti Function Area เมื่อประชุม หรือ คุยงานก็จะปิดประตู แต่เมื่อต้องการทำกิจกรรมที่ใช้บริเวณกว้าง เช่น การสังสรรค์ ก็เปิดประตูเพื่อให้พื้นที่เชื่อมเข้าหากัน ส่วนชั้น 2 ทำห้องเก็บ Material สำหรับให้พนักงานมาเลือกวัสดุเพิ่มขึ้นมา และมีคอร์ทอยู่ข้าง ๆ พนักงานจะได้เห็นวัสดุเมื่อโดนแสงแดด ส่วนชั้น 3 สถาปนิกเอาทุกอย่างออกหมด เพื่อเป็นพื้นที่ทำงานทั้งหมด แล้วยกหลังคาเดิมขึ้นสูง ให้ได้พื้นที่ทำชั้นลอยเป็นพื้นที่เก็บเอกสารต่าง ๆ
การทดลองวัสดุที่ได้รับยินยอมจากตัวเอง
“ด้วยความที่เป็นเต็ค เราก็อยากหา Material ใหม่ๆ มาใช้กับอาคาร ผมใช้ Material ตัวหนึ่ง เป็น บล็อกมวลเบา เผอิญว่า ไซต์ที่เราไปดู อิฐมันหัก มันแตก แล้วเขาก็ไปก่อพอดี เราพบว่าข้างใน ความเป็นรูกลวงของมันน่าสนใจ เราคิดว่า ถ้าเราตัดแล้วผ่าครึ่ง แล้วก็มากลับด้านก่อ มาแปะเป็นฟาซาด หรือแปะเป็นเนื้อของอาคาร มันก็น่าจะเกิดเอฟเฟคใหม่ๆ”
คุณเติ้ลพูดถึง การค้นหาวัสดุที่จะนำมาใช้ในอาคาร
เมื่อนำบล็อกมวลเบาครึ่งก้อน มาทำผนังทำให้น้ำหนักเบากว่าที่คำนวณไว้ จึงหมดปัญหาเรื่องงานโครงสร้างที่กังวล คุณเติ้ลเล่าว่า ในการทำงาน เขามักหาวัสดุใหม่ ๆไปใส่ในสถาปัตยกรรมที่สร้าง แต่ก็อาจทดลองได้ไม่มากนัก เพราะ มีข้อจำกัดเรื่อง งบ การใช้งาน ที่เจ้าของอาคารกังวล เมื่อมีโอกาสทำออฟฟิศตัวเอง คุณเติ้ลคิดว่าเป็นการดีที่เราจะได้ทลายข้อจำกัดหลาย ๆ อย่างที่เคยเผชิญ หากเกิดข้อผิดพลาดบ้าง เขาเป็นเจ้าของเองก็ยินดียอมรับ
อาคารที่เล่นกับแสง และเงา
เนื่องจากบล็อกมวลเบา มีพื้นผิวที่ขรุขระ เมื่อมีแสงแดดมากระทบจึงเกิด เอฟเฟคที่เห็นได้ชัด ในแต่ละช่วงเวลาของวัน แสงที่มาตกกระทบจะเป็นเปลี่ยนไป กลายเป็นผลลัพธ์ที่แตกต่างกัน
“จริงๆ ที่เห็นตอนนี้มันยังไม่เสร็จ ที่เสร็จจริงๆ คือผมจะมีผนังด้านข้าง สูง 3-4 ชั้น คือผนังมันเล่นเงา เป็นทิศใต้ ใจอยากจะทำเป็น Message อะไรสักอย่างไปแปะที่ผนังแล้วให้เงามันทำงาน ให้สื่อสารกับคนข้างนอก”
นอกจากวัสดุที่เล่นกับแสง และเงาแล้ว การทำให้ Facade เปิด-ปิดได้ ก็สามารถควบคุมแสงที่เข้ามาส่องในอาคารได้ เหมือนกับว่าอาคารให้เล่นกับเงา ทั้งวัสดุ และ องค์ประกอบของอาคาร
วัสดุที่เกิดจากความเชื่อ
เมื่อเห็นอาคารจริง ๆ รู้สึกว่าเป็นการนำวัสดุที่เราคุ้นตามาทำให้สถาปัตยกรรมดูสวยงามมากยิ่งขึ้น สถาปนิกกลุ่มหนึ่งสร้าง Facade ที่โดดเด่น โดยมีวัสดุที่แตกหักจากไซต์ก่อสร้างเป็นแรงบันดาลใจ
“ผมว่าคือความเชื่อสำคัญนะ ผมเห็นภาพนี้จากที่เราประทับใจตัวอิฐก่อน ทั้งๆ ที่เราไม่ได้อยากให้มันดู Strong อะไรขนาดนั้น ผมแค่เชื่อว่า ถ้าเราปล่อยให้ Material ทำงาน มันก็น่าจะเป็นผลลัพธ์ที่ดี ที่แย่ที่สุดคือการประคับประคองความเชื่อให้มันออกมาเป็นอย่างนั้น มันอาจจะไม่เหมือนเขาบ้าง อาจจะมี Defect ที่ต้องแก้เยอะหน่อย”
คุณเติ้ลฝากถึงเรื่องความเชื่อในการทำงาน ที่สามารถก่อตัวออกมาเป็นสิ่งที่จับต้องได้
ในการออกแบบมีหลายอย่างที่ดีไซเนอร์อยากลองทำสิ่งใหม่ ๆ แต่อาจมีข้อจำกัดบางประการ แต่สถาปนิกจาก Studio Miti ใช้โอกาสในการทดลองวัสดุได้อย่างคุ้มค่าในการสร้างออฟฟิศของตัวเอง Studio Miti กลายเป็นออฟฟิศที่เด่นชัดเมื่อมีคนผ่านไปมา โดยวัสดุและการใช้งานของอาคาร ที่เล่นไปกับแสงเงา
Project : STUDIO MITI (Head Office)
Location : 7 Soi.naknivas25 Lad Phrao Bangkok 10230
Architecture Firm : STUDIO MITI
Year : 2020
Area : 420 Sq.m.
Lead Architect : STUDIO MITI
Interior Designer : STUDIO MITI
Construction : Khun Suwat Srisomkroa , Khun Jarin Dechchutraku
Photographer :Tanatip Chawang
รับข่าวสารเรื่องการออกแบบ สถาปัตยกรรม ไลฟ์สไตล์
ทางอีเมล ที่จะส่งตรงถึงคุณทุกเดือน ลงทะเบียนได้ที่ด้านล่างนี้เลย!
Subscribe now to keep reading and get access to the full archive.
Automated page speed optimizations for fast site performance