Phuffle Cafe คาเฟ่ที่ใช้จังหวะการเล่น "ระดับบันได"
สร้างปฎิสัมพันธ์การรับรู้สเปซให้ผู้ใช้งาน

ในยุคสมัยที่คาเฟ่ไม่ได้เป็นเพียงสถานที่สำหรับการนั่งดื่มกาแฟ รับประทานอาหารอีกต่อไป แต่กลายเป็นพื้นที่ทางสังคมที่เชื่อมโยงผู้คนผ่านงานออกแบบ Phuffle หนึ่งในตัวอย่างที่ชัดเจนของการขยายขอบเขตนิยามของร้านอาหารออกไปสู่ความเป็นสถาปัตยกรรมที่มีชีวิต

ภายใต้แนวคิดการออกแบบที่มอง “พื้นที่” เป็นมากกว่าฉากหลัง แต่เป็นตัวขับเคลื่อนประสบการณ์ การออกแบบที่นี่จึงท้าทายขอบเขตของสถาปัตยกรรมร้านอาหารทั่วไป พร้อมสะท้อนการตีความใหม่ของ “บันได” ซึ่งไม่ใช่เพียงโครงสร้างสำหรับการสัญจร แต่กลายเป็นหัวใจของการสร้างปฏิสัมพันธ์ทางสังคม โดยได้รับการออกแบบจาก Too.architects

Phuffle ถูกออกแบบให้เป็นพื้นที่ที่เชื่อมโยงศิลปะ สถาปัตยกรรม พื้นที่ และผู้คนเข้าด้วยกัน กลายเป็นประสบการณ์ที่ครบวงจรซึ่งผู้มาเยือนสามารถสัมผัสได้ในทุกมิติ แรงบันดาลใจสำคัญมาจากความไหลลื่นและพลวัตทางสังคมของ “บันไดสาธารณะ” Phuffle จึงหยิบยกแก่นแท้ของการเชื่อมโยงผู้คนมาแปลงเป็นแพลตฟอร์มทางสังคมรูปแบบใหม่ที่แตกต่าง

                                               บันไดและ ช่องว่าง ที่สร้างความเคลื่อนไหวในสถาปัตยกรรม

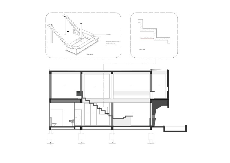
ขณะเดินผ่านแต่ละมุมมองในพื้นที่ บันไดหลักกลางร้านจะค่อย ๆ ปรากฏเป็นองค์ประกอบหลักที่กำหนดเอกลักษณ์ ไม่เพียงแต่เป็นโครงสร้างที่จำเป็น แต่เป็นสัญลักษณ์ของการเชื่อมโยงจุดเริ่มต้นและจุดสิ้นสุด สะท้อนมิติของเวลาและพื้นที่ในทุกก้าวย่าง บันไดนี้ทำหน้าที่เป็นทั้งสะพานเชื่อมระหว่างชั้นล่างและชั้นบน และเป็นจุดสร้างมุมมองที่เปลี่ยนแปลงตลอดเวลา ทั้งในด้านแสง เงา และการเคลื่อนไหว

โครงสร้างพื้นที่ถูกกำหนดโดย Void “ช่องว่าง” หลัก 3 จุดที่ทำหน้าที่ส่งเสริมการเชื่อมต่อทั้งทางกายภาพและสายตา ช่องว่างแรกคือบันไดหลักที่เป็นทางขึ้นสู่ชั้นสอง กระตุ้นให้เกิดการเคลื่อนไหวและสร้างจังหวะของกิจกรรมในพื้นที่ ช่องว่างที่สองคือคอร์ตกลางซึ่งนำธรรมชาติเข้ามาเป็นส่วนหนึ่งของภายใน ช่วยกรองแสงธรรมชาติและลดความร้อน เสริมให้บรรยากาศภายในเต็มไปด้วยความสงบ ช่องว่างที่สามคือการเชื่อมต่อระหว่าง “Slow Bar” ที่ชั้นล่างกับ “Main Bar” บริเวณต้อนรับบนชั้นบน ทำหน้าที่เชื่อมโยงทั้งเชิงการมองเห็นและการใช้งานจริง ตอกย้ำแนวคิดพื้นที่ทางสังคมของ Phuffle อย่างชัดเจน

ในแง่ของวัสดุและสีสัน การออกแบบของ Phuffle เน้นความโมโนโทนด้วยพาเลตสีเทา เช่น ผนังทรายล้าง เหล็กสแตนเลสขัดเงา และผนังคอนกรีตพิมพ์ลายไม้ ซึ่งสร้างความเรียบง่ายแต่ทันสมัย ผนังและพื้นผิวทรายล้างให้สัมผัสที่หยาบตัดกับผิวสแตนเลสที่สะท้อนแสง ช่วยสร้างมิติของประสบการณ์สัมผัส วัสดุสำเร็จรูปถูกนำมาใช้เพื่อความแม่นยำ โดยเฉพาะในส่วนบันไดที่ต้องดูเหมือนลอยตัวแต่ยังคงความมั่นคงและสามารถรองรับกิจกรรมที่หลากหลายได้

การออกแบบแสงถือเป็นองค์ประกอบสำคัญที่สร้างบรรยากาศให้พื้นที่มีชีวิต แสงไฟสามารถปรับเปลี่ยนจากโทนเย็น (12000K) ที่เปรียบเสมือนท้องฟ้าสดใส ไปสู่โทนอุ่น (1800K) ที่เหมือนแสงเทียนในยามค่ำคืน ช่วยสร้างจังหวะที่เปลี่ยนไปตามกิจกรรม ตั้งแต่มื้อกลางวันแบบสบาย ๆ ไปจนถึงการสังสรรค์และจัดนิทรรศการศิลปะ

                                            เรื่องราวของแสง เสียง และความสัมพันธ์ในระหว่างขั้นบันได

นอกจากนั้นการออกแบบของคาเฟ่แห่งนี้ยังถูกออกแบบมาเพื่อรองรับต่อสภาพแวดล้อมภายนอก โดยเฉพาะปัญหาการจราจรและเสียงรบกวนจากถนนใหญ่ ถูกแก้ไขด้วยการออกแบบฟาซาดคอนกรีตทึบในชั้นบนเพื่อบดบังมุมมองจากภายนอก ขณะเดียวกันยังคงความโปร่งโล่งที่ชั้นล่างด้วยกระจกใส เพื่อสร้างสมดุลระหว่างการเปิดรับแสงธรรมชาติและการปกป้องความเป็นส่วนตัว

ซึ่งทำให้ Phuffle ไม่ใช่เพียงแค่ร้านอาหาร แต่เป็นการตีความใหม่ของพื้นที่ที่บูรณาการงานออกแบบกับปฏิสัมพันธ์ทางสังคมอย่างแยบยล โดยมีบันไดเป็นตัวขับเคลื่อนหลักทั้งในเชิงการจัดสรรพื้นที่และการสร้างประสบการณ์ผู้ใช้ ร้านอาหารแห่งนี้จึงเป็นเหมือนสนามทดลองที่ทลายกรอบเดิม ๆ ของสถาปัตยกรรมร้านอาหารในย่านปทุม กรุงเทพฯ

สะท้อนพลังของการออกแบบที่ไม่ได้หยุดอยู่แค่รูปลักษณ์ ขับเน้นบทบาทของสถาปัตยกรรมในการสร้างปฏิสัมพันธ์และประสบการณ์ที่เป็นเอกลักษณ์ การดึงบันไดมาเป็นหัวใจหลักของพื้นที่ ไม่เพียงเปลี่ยนมุมมองต่อองค์ประกอบพื้นฐานทางสถาปัตยกรรม แต่ยังขยายขอบเขตการใช้งานไปสู่การเป็นพื้นที่สาธารณะย่อม ๆ ที่ทุกการขึ้นลงเต็มไปด้วยเรื่องราว

Project Name : Phuffle
Architecture Firm : Too.architects
Completion Year : 2024
Gross Built Area : 477 sq.m2.
Photographer credits : Jatupoom Srimuang
Lead Architects : Peerapat Klinhuan

Picture of Heamarat C.

Heamarat C.

สถาปนิกจำเป็น ที่ทำงานออกแบบเป็นงานอดิเรก มีความสนใจในการทำความเข้าใจแนวคิดและที่มาของงานออกแบบต่าง ๆ ที่พบเจอ ให้กลายเป็นเรื่องเล่า

Writer

Discover more from Design Makes A Better Life.

Subscribe now to keep reading and get access to the full archive.

Continue reading