Pierre Koening เปล่งประกายภายใต้งบที่จำกัด
ผู้นำเทรนด์บ้านโมเดิร์นแห่งแคลิฟอร์เนีย

Architecture Magazine ฉบับปีค.ศ. 1959 นำเสนอหนึ่งในไอคอนของงานสถาปัตยกรรมที่มีเสน่ห์เหนือกาลเวลา อาคารเหล็กที่ดูเรียบง่ายทอดยาวออกไปริมหน้าผาราวกับลอยอยู่กลางอากาศ หญิงสาวสองคนนั่งพูดคุยกันอย่างผ่อนคลายในห้องกระจกที่ประดับประดาด้วยเฟอร์นิเจอร์รูปทรงเรขาคณิต โดยมีแสงไฟระยับของลอสแอนเจลิสยามค่ำคืนเป็นฉากหลัง ภาพนี้สะท้อนเสน่ห์ของสถาปัตยกรรม Mid-Century Modern ที่เบ่งบานในแคลิฟอร์เนียช่วงศตวรรษที่ 20 ได้อย่างสมบูรณ์แบบ บ้านเลขที่ 22 หรือ Stahl House แห่งนี้เป็นผลงานออกแบบของ ปิแอร์ เคอนิก (Pierre Koenig) สถาปนิกผู้มีบทบาทในการขับเคลื่อนกระแสสถาปัตยกรรมโมเดิร์นหลังสงครามโลกครั้งที่สองในอเมริกา นำเสนอเสน่ห์อันหรูหราภายใต้งบประมาณจำกัด แนวคิดอันทรงพลังที่ยังคงเป็นแรงบันดาลใจมาถึงปัจจุบัน

ทหารศึกสู่สถาปนิก

ปิแอร์ เคอนิก เกิดเมื่อปี 1925 ที่ซานฟรานซิสโก เขาเติบโตท่ามกลางกลุ่มเพื่อนที่สนในสถาปัตยกรรมโดยเฉพาะสไตล์โมเดิร์น แต่หนทางสู่อาชีพสถาปนิกของเขาต้องชะงักลงเมื่อสงครามโลกครั้งที่สองประทุขึ้น เคอนิกในวัยเพียง 17 ปีถูกเกณฑ์เข้าร่วมโปรแกรมวิศวกรรมกองทัพ ก่อนถูกส่งไปประจำการในแนวหน้าเยอรมันและฝรั่งเศสในตำแหน่ง “ผู้สังเกตการณ์ยิง” (Flash Ranging Observer) ในกองพันสังเกตการณ์ปืนใหญ่ภาคสนามที่ 292 (292nd Field Artillery Observation Battalion) ภายหลังสงครามเขากลับมาอาศัยที่แอลเอและสำเร็จการศึกษาจากมหาวิทยาลัยเซาเทิร์นแคลิฟอร์เนีย (USC) ซึ่งเป็นสถาบันแนวหน้าด้านสถาปัตยกรรม

ในยุคหลังสงครามที่ความต้องการบ้านราคาย่อมเยาเพิ่มขึ้นอย่างรวดเร็วเพื่อตอบสนองการขยายตัวของจำนวนประชากร เคอนิกให้ความสนใจกับระบบก่อสร้างสมัยใหม่โดยเฉพาะวัสดุอุตสาหกรรมและเทคนิค Prefabrication เคอนิกเฮ้าส์หมายเลขหนึ่ง (Koenig House No.1) บ้านโครงเหล็กที่เขาออกแบบขณะที่ยังเป็นนักศึกษา ได้กลายเป็นหนึ่งในเครื่องพิสูจน์ว่านวัตกรรมอาคารแบบใหม่สามารถใช้สร้างอาคารงบต่ำและประสิทธิภาพสูงได้ไม่แพ้แนวทางอาคารดั้งเดิม ผลงานนี้ทำให้เขาได้รับรางวัล Award of Merit สาขาบ้านและที่อยู่อาศัย จากสถาบันสถาปนิกแห่งอเมริกา AIA และเป็นจุดเริ่มต้นในเส้นทางสายอาคารโครงสร้างเหล็กของเขาในเวลาต่อมา

เคอนิกสั่งสมประสบการณ์ภายใต้สถาปนิกแนวหน้าหลายคนอย่าง ราฟาเอล โซเรียนโน ผู้ให้ความสนใจในสถาปัตยกรรมเหล็กเช่นเดียวกับเขา เอ็ดเวิร์ด ฟิคเก็ตต์ และสถาปนิกโมเดิร์นคนอื่นๆเป็นเวลากว่าเจ็ดปี ก่อนจะเริ่มต้นอาชีพสถาปนิกอย่างเต็มตัว โดยมีผลงานในนิทรรศการเบียนนาเล่ São Paulo Art Biennial ที่บราซิล และผลงานมากมายภายใต้แนวคิดโมเดิร์นต้นทุนต่ำที่สัมพันธ์กับบริบทสภาพแวดล้อม กระทั่งในปี 1950 เขาได้รับเชิญจาก จอห์น เอนเทนซา ให้เข้าร่วมโครงการ Case Study House Program ซึ่งกลายเป็นหมุดหมายสำคัญที่ทำให้เคอนิกกลายเป็นหนึ่งในผู้กำหนดทิศทางสถาปัตยกรรมโมเดิร์นของอเมริกาเลยทีเดียว

เพื่อทดลองแนวทางการใหม่ของที่อยู่อาศัยหลังสงครามโลกครั้งที่สอง ทางนิตยสารจะช่วยสนับสนุนงบการก่อสร้างจำนวนหนึ่งแลกกับสิทธิ์ในการเผยแพร่ภาพถ่ายและกระบวนการออกแบบ โดยมีเงื่อนไขคือบ้านแต่ละหลังต้องออกแบบภายใต้แนวคิดร่วมสมัย ใช้งบประมาณจำกัด และสามารถผลิตซ้ำได้จริง ในบรรดาบ้านที่ถูกตีพิมพ์ทั้งหมด ผลงานของเคอนิกทั้งสองหลังได้แก่ บ้านหมายเลขที่ 21 และ 22 ได้รับความสนใจเป็นอย่างมาก ด้วยความเรียบง่ายของรูปลักษณ์แต่แฝงไว้ด้วยความพิถีพิถันในการออกแบบแต่ละองค์ประกอบอย่างลึกซึ้ง

เบลีย์ เฮ้าส์ จากสายพานสู่บ้านหมายเลข 21

Bailey House หรือเป็นที่รู้จักกันในชื่อ Case Study House No.21 สร้างเสร็จในปี 1958 บ้านเบลลีย์แทรกตัวท่ามกลางธรรมชาติของย่านฮอลลีวูดฮิลส์ ของคู่สามีภรรยาเจ้าของบ้าน วอลเตอร์ และ แมรี่ เบลลีย์ ต้องการที่อยู่อาศัยแบบ Mid-century Modern ซึ่งหลอมรวมความงามเข้ากับนวัตกรรมเข้าไว้ด้วยกัน บ้านหลังนี้ได้รับการยกย่องว่าเป็นต้นแบบบ้านยุคใหม่ที่เหมาะกับการผลิตในเสกลใหญ่ (Mass Production) โดยใช้วัสดุอุตสาหกรรม นั่นคือคอนกรีต โครงสร้างเหล็ก แผ่นเหล็กลอน และกระจกบานใหญ่ ตามความต้องการขจองเคอนิกสถาปนิกผู้ออกแบบ โดยต่อมาการนำวัสดุอุตสาหกรรมเพียว ๆ มาสร้างบ้านกลายเป็นหนึ่งในเอกลักษณ์ของสถาปัตยกรรมโมเดิร์นตะวันตก (West Coast) ซึ่งแตกต่างจากฝั่งตะวันออกที่มักผสมผสานกับวัสดุธรรมชาติและพื้นถิ่นเข้าไปด้วย

บ้านเบลลีย์พื้นที่ใช้สอย 122 ตร.ม. มีลักษณะเป็นตัวแอล (L) ขนาด 60×40 ฟุต วางตัวในแนวเหนือ-ใต้ เพื่อรับแสงธรรมชาติและเปิดให้อากาศถ่ายเทได้อย่างมีประสิทธิภาพ พื้นคอนกรีตหล่อในที่รับโครงสร้างเหล็ก H-Beam คาน I-Beam ลึก 20 ซม. รับระบบหลังคา Steel Deck บ่อน้ำตื้นล้อมรอบตัวบ้านสะท้อนทิวทัศน์ธรรมชาติโดยรอบ พร้อมทั้งช่วยลดอุณหภูมิภายในบ้านสร้างบรรยากาศน่าสบาย สะพานทางเข้าบ้านเชื่อมไปยังโถงทางเข้าที่มีบ่อน้ำอีกแห่งตรงกลางสะท้อนท้องฟ้าสีครามนำแสงธรรมชาติเข้าสู่ภายใน ห้องครัวและโซนรับประทานอาหารอยู่ถัดจากทางเข้าต่อไปยังโซนนั่งเล่นด้านหลัง เฟอร์นิเจอร์ต่าง ๆ ถูกออกแบบไม่ให้ชนฝ้าตามแนวคิดผังแบบเปิด (Open Plan) เพื่อให้แสงธรรมชาติสามารถกระจายไปอย่างทั่วถึง และยังทำให้สเปซดูกว้างขึ้นอย่างเห็นได้ชัด เส้นสายของโครงหลังคากลายเป็นองค์ประกอบส่วนหนึ่งภายในบ้าน ถักทอพื้นที่ต่าง ๆ ให้ต่อเนื่องกันเป็นหนึ่งเดียว

ผนังด้านทิศตะวันออกของบ้านปิดด้วยผนังทึบเพิ่มความเป็นส่วนตัว ด้านเหนือและใต้เป็นกระจกบานเลื่อนขนาดใหญ่สูงจากพื้นจรดฝ้า เปิดรับวิวธรรมชาติได้เต็มที่ ตรงกลางของบ้านเป็นห้องน้ำสองห้อง คั่นด้วยโถงขนาดเล็กและน้ำพุเพิ่มบรรยากาศ มีสกายไลท์เปิดปิดได้เพื่อระบายอากาศ ห้องนอนเล็กเปิดออกสู่สวนมองเห็นจอดรถ ขณะที่ห้องนอนใหญ่หันไปทางชานหลังบ้านซึ่งเชื่อมกับโซนนั่งเล่นผ่านสระน้ำตื้นอีกแห่ง การจัดวางองค์ประกอบทุกส่วนของบ้านตั้งแต่การวางอาคาร ความสัมพันธ์กับบริบทธรรมชาติอย่างวิว แสง ลม ไปจนถึงรายละเอียดการก่อสร้างล้วนสะท้อนแนวคิดโมเดิร์นของเคอนิกที่เรียบง่ายแต่ลึกซึ้ง ในปี 1999 ก็ได้รับการขึ้นทะเบียนเป็นอนุสรณ์สถานทางประวัติศาสตร์และวัฒนธรรมลำดับที่ 669 โดยรัฐบาลเมืองลอสแอนเจลิส

Stahl House ไอคอนแห่งสถาปัตยกรรมโมเดิร์นตะวันตก

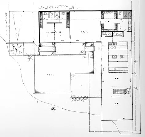
Stahl House หรือบ้านเลขที่ 22 อีกหนึ่งผลงานที่โด่งดังของเคอนิกร่วมกับวิศวกรคู่หู วิลเลียม พอรุซ (Willam Porush) สร้างเสร็จเมื่อปี 1960 เคอนิกพลิกแพลงนำความลาดชันของพื้นที่มาเป็นจุดเด่นของอาคารสู่ผลงานชิ้นโบว์แดงที่ใครเห็นก็ต้องตาลุกวาว ฐานรากคอนกรีตและพื้นหล่อในที่ฝังงานระบบ เสาเหล็ก H-Beam รับคานหลังคา I-Beam และระบบหลังคา Steel Deck เช่นเดียวกับบ้านหมายเลข 21 ช่วงเสา 20×20 ฟุตและการใช้วัสดุอุสาหกรรมทั้งหมดทำให้การก่อสร้างเป็นไปได้อย่างมีประสิทธิภาพสูงสุด ช่างห้าคนกับรถเครนอีกหนึ่งคันสามารถสร้างส่วนของโครงเหล็กได้ในเวลาเพียงเก้าชั่วโมง บ้านสตอลมีผังรูปตัวแอล จอดรถได้สองคัน มีพื้นที่ใช้สอยประมาณ 210 ตร.ม. ค่าก่อสร้างทั้งหมดรวมค่าที่ดิน และค่าทำสระว่ายน้ำขนาด 6×8 เมตร ราว 50,000 ดอลล่าห์ ซึ่งถือว่าประหยัดมากเมื่อพิจารณาตำแหน่งที่ตั้งและขนาดอาคาร สตอลเฮ้าส์กลายเป็นกรณีศึกษาที่แสดงให้เห็นถึงความเป็นไปได้ของระบบก่อสร้างแบบ Pre-Fabrication ซึ่งต่อมาได้รับความนิยมอย่างแพร่หลายในงานออกแบบบ้านยุคหลังสงครามในเวลาต่อมา

อีกหนึ่งจุดขายของบ้านสตอลคือการใช้ประโยชน์จากบริบทพื้นที่ สู่สเปซที่เปิดรับมุมมองทัศนียภาพเมืองลอสแอนเจลิสแบบพาโนรามาไร้สิ่งกีดขวาง ผนังด้านตะวันออกทั้งหมดใช้กระจกบานเลื่อนขนาดใหญ่ที่สุดที่สามารถหาได้ เชื้อเชิญทิวทัศน์ภายนอกสู่ภายใน แกนสเปซสาธารณะประกอบด้วยพื้นที่นั่งเล่นและครัววางตัวทอดยาวออกสู่หน้าผา ส่วนห้องนอนสองห้องวางเรียงกันถัดจากโรงจอดรถ ผนังด้านหลังทั้งหมดปิดด้วยแผ่นเหล็กทึบเพิ่มความเป็นส่วนตัว ห้องน้ำ โซนซักล้าง และห้องเก็บของอยู่ที่จุดตัดของแกนบ้านซึ่งต้องการแสงธรรมชาติน้อยกว่า

ชายคายื่นออกมาทำหน้าคล้ายกรอบรูปภาพทำหน้าที่จัดองค์ประกอบทิวทัศน์พร้อมเชื่อมระหว่างภายนอกและภายใน กริดเสาและองค์ประกอบอาคารจัดวางล้อไปกับเนื้อเมืองสร้างความรู้สึกว่าบ้านเป็นส่วนต่อขยายของกันและกัน
เฟอร์นิเจอร์ทรงเราขาคณิตและเส้นสายอาคารสื่อถึงความหรูหราที่เรียบง่ายอย่างมีเสน่ห์ ในยุคที่บ้านเรือนส่วนใหญ่ยังใช้ไม้และอิฐ บ้านหมายเลข 22 แห่งนี้กลายเป็นสัญลักษณ์ของ “บ้านรสนิยมสูงสำหรับคนรายได้จำกัด” ตามแนวคิดหลักของเคอนิก  

อีกหนึ่งบุคคลผู้ควรค่าแก่การกล่าวถึงคือช่างภาพงานสถาปัตยกรรม จูเลียส ชูลแมน (Julius Shulman) ผู้บันทึกภาพนักศึกษาสองคนในห้องนั่งเล่นท่ามกลางแสงไฟพร่างพรายของเมืองลอสแอนเจลิสยามค่ำคืน ภาพนี้สื่อถึงวิถีชีวิตใหม่หลังสงครามโลกออกมาได้อย่างสวยงามจนกลายเป็นที่รู้จักกันอย่างกว้างขวางในภาพจำบ้านสไตล์ Mid-Century Modernism นอกจากนี้บ้านเลขที่ 22 ยังได้รับการขึ้นทะเบียนเป็นอนุสรณ์สถานทางประวัติศาสตร์และวัฒนธรรมลำดับที่ 670 โดยเมืองลอสแอนเจลลิส เช่นเดียวกับบ้านเบลลีย์ เรียกได้ว่างานออกแบบทั้งสองหลังของเคอนิกกลายเป็นตัวแทนสำคัญของยุคทองบ้านสมัยใหม่ในแคลิฟอร์เนียก็ว่าได้

มรดกสู่สถาปนิกรุ่นต่อไป

เคอนิกฝากผลงานบ้านโครงเหล็กกระจกเอาไว้กว่า 40 หลัง โดยเฉพาะ Schwartz House และ Koenig House No.2 ที่ได้รับรางวัลมากมาย เขายึดมั่นในแนวคิดโมเดิร์นและเชื่อว่าสถาปัตยกรรมสามารถช่วยยกระดับคุณภาพชีวิตผู้คนได้ เคอนิกยังมีบทบาทสำคัญในแวดวงการศึกษา เขาเป็นอาจารย์สอนที่มหาวิทยาลัย USC School of Architecture และต่อมาได้รับตำแหน่งเป็นรองผู้อำนวยการสถาบันวิจัยอาคาร

รวมถึงก่อตั้ง Natural Forces Laboratory และหลักสูตร Building Science Program ผลงานของเขาได้รับการยกย่องในระดับสากลและถูกนำไปจัดแสดงในนิทรรศการหลายแห่ง บ้านของเขายังถูกใช้เป็นสถานที่ถ่ายทำภาพยนตร์และแฟชั่นอีกมากมาย รูปถ่ายสีขาวดำอันโด่งดังของบ้านหมายเลข 22 ยังคงตราตรึงในฐานะตัวแทนของวิถีชีวิตสมัยใหม่ และที่อยู่อาศัยแบบ Mid-Century Modern ซึ่งส่งอิทธิพลต่อสถาปัตยกรรมอเมริกาฝั่งตะวันตก และขยายสู่สากลในเวลาต่อมา

References

A Quiet Side. (2025, February). Inside LA’s Legendary Stahl House: 1960 The Mid-Century Dream That Redefined Modern Living. Retrieved from https://www.youtube.com/watch?v=FHgzndRXorQ&t=376s

John Lautner Architecture Videos. (2024, February). CaseStudyHouse 21 / Bailey House by Pierre Koenig, complete overview and walkthrough. Retrieved from https://www.youtube.com/watch?v=Khm93iTZDd0&t=700s

mariathuroczy. (2021, August). Pierre Koenig. Architectuul. Retrieved from https://architectuul.com/architect/pierre-koenig

PIERRE FRANCIS KOENIG, FAIA (1925-2004). (n.d.). US Modernist. Retrieved from https://usmodernist.org/koenig.htm

The Stahl House by Pierre Koenig | Case Study House #22. (2024, April). ArchEyes. Retrieved from https://archeyes.com/the-stahl-house-by-pierre-koenig-case-study-house-22/

Picture of Panon Sooksompong

Panon Sooksompong

สถาปนิกที่หลงใหลในการค้นคว้าสู่นักเขียนผู้ถ่ายทอดเรื่องราว จากกองหนังสือที่เอามารองนอน ตอนนี้ได้ฤกษ์จะถูกหยิบมาเปิดอ่านไปพร้อมกัน
Writer

Discover more from Design Makes A Better Life.

Subscribe now to keep reading and get access to the full archive.

Continue reading