บ้าน ภ (ดิบ) พอดี
ที่บรรจุความทรงจำและความหมายที่มีคุณค่าของครอบครัว

จากผืนที่ดินร้อยกว่าตารางวา บริเวณปลายซอยเล็ก ๆ แห่งหนึ่งในย่านพระเก้า สู่การเป็น บ้าน ภ ซึ่งเป็นที่อยู่อาศัยร่วมกันของครอบครัวใหญ่ของ เหลียง-ศัลยเวทย์ ประเสริฐวิทยาการ ผู้เป็นทั้งสถาปนิกผู้ออกแบบจาก Atelier of Architects และเป็นเจ้าของบ้านในเวลาเดียวกัน บ้านของครอบครัวที่มีชื่อว่า บ้าน ภ แห่งนี้ จึงถูกออกแบบและสร้างให้ตรงกับโจทย์ความต้องการของคนในครอบครัวอย่างคุ้มค่า และ ‘มีความสุขมากที่สุด’

คุณเหลียงเล่าถึงที่มาของการริเริ่มคิดสร้างบ้านหลังนี้ว่า “เมื่อสักสี่ห้าปีก่อน คุณพ่อผมป่วย ผมก็อยู่คอนโดมานาน เลยคิดว่าน่าจะมาอยู่รวมกัน จะได้ดูแลกันแบบทั่วถึง แชร์สิ่งอำนวยความสะดวก เรื่องคน รถ การดูแลความสะอาดพื้นฐาน แต่ที่ดินจริงๆ ก็ถือว่าค่อนข้างจะเล็ก 130 ตารางวา ในช่วงบ้านยังไม่ทันสร้างเสร็จดี ผมก็ได้ลูกสาวเพิ่มมาอีกคน กลายเป็นว่ามีคุณแม่ผมอยู่ พ่อตาแม่ยายผมอยู่ แล้วก็ลูกอีกสามคน เป็นบ้านที่คนอยู่เยอะ แล้วก็อยู่ในพล็อตที่เล็ก ผมก็พยายามที่จะทำให้บ้านหลังนี้มันอยู่สบายๆ คนในครอบครัวเห็นกันเองเยอะๆ เหมือนจุดที่เรามาอยู่ด้วยกันคือการได้เจอกัน ก็ให้คนรุ่นปู่ย่าตายายเจอกับรุ่นหลานๆ มันก็เปลี่ยนชีวิตไปพอสมควร มีชีวิตชีวาขึ้นเยอะ”

บ้านแสนอบอุ่นหลังนี้มีทั้งหมด 6 ห้อง ประกอบด้วยห้องนอนของคุณเหลียงและภรรยา ห้องนอนของคุณตาคุณยา ห้องนอนของคุณย่า และห้องนอนของลูก ๆ อีกสามคน ด้วยความที่พื้นที่ค่อนข้างมีขนาดเล็ก เมื่อเทียบกับความต้องการ และจำนวนห้องที่ตั้งเป้าหมายไว้ คุณเหลียงจึงออกแบบให้ใช้พื้นที่ดินให้คุ้มค่ามากที่สุด เพื่อให้ครอบครัวได้เห็นได้เจอกัน มีปฏิสัมพันธ์ต่อกัน แต่ในขณะเดียวกันก็มีความเป็นส่วนตัว และให้ความรู้สึกปลอดภัยจากภายนอก

สร้างสมดุลให้กับความเป็นส่วนตัวและสายสัมพันธ์ของคนในบ้าน

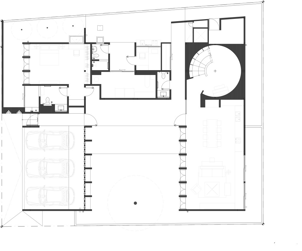
แผนผังของบ้านได้รับการออกแบบให้มีลักษณะเป็นรูปตัว “C” เพื่อให้สมาชิกแต่ละคนในครอบครัวสามารถมองเห็นกันได้ แต่ในขณะเดียวกันก็ปิดล้อมบ้านไว้อย่างเป็นส่วนตัว เพื่อปกป้องสายตาจากผู้คนภายนอก และปกป้องจากสิ่งที่ควบคุมไม่ได้ซึ่งอาจจะเกิดขึ้นได้ในอนาคต อย่างคอนโดหรืออาคารสร้างใหม่ ซึ่งจากผังรูปตัว C ยังก่อให้เกิดพื้นที่สวนตรงกลางบ้านที่ครอบครัวสามารถทำกิจกรรมต่างๆ ด้วยกัน และเติมบรรยากาศอันอบอุ่นร่มเย็นไว้ได้อย่างลงตัวอีกด้วย

“บ้านก็เป็น Courtyard ตัว C ง่ายๆ หัน Courtyard ไปทางทิศตะวันตก ช่วงครึ่งเช้าก็จะร่ม วงบ่ายตึกเนี่ยที่เป็นอพาร์ทเม้นต์ของเราเองมันก็บัง ตรงนี้ก็เลยจะอยู่ในสภาวะสบายๆ อยู่ได้ทั้งวัน เราพยายามจะเป็นบ้านที่มองเห็นกันเองเยอะๆ แต่อพาร์ทเม้นต์ไม่เห็นเรา ก็เลยใช้เสาโครงสร้างของบ้านที่เป็นครีบ เป็นตั้งๆ มันทำให้มองเข้ามา ไม่ได้เห็นบริเวณห้องนอนหรือห้องนั่งเล่นเท่าไหร่ แต่เรามองกันเองฝั่งห้องนั่งเล่นกับห้องนอนเห็นกันพอสมควร”

เนื่องจากบริเวณที่ดินแปลงนี้ของบ้าน มีรูปร่างเป็นสี่เหลี่ยมผืนผ้า มีถนนผ่านหน้าที่ดิน ทางด้านทิศเหนือ ด้านทิศตะวันออกกับทิศใต้ติดกับบ้านข้างเคียง ส่วนทิศตะวันตกนั้นอยู่ติดกับอาคารพักอาศัยสูง 5 ชั้นที่คุณเหลียงเป็นผู้ออกแบบเองเมื่อ 15 ปีก่อน ทั้งสี่ด้านนี้มีเพียงฝั่งตะวันตกเท่านั้นที่พอจะควบคุมสิ่งที่จะเกิดขึ้นในอนาคตได้ เพราะเป็นของตัวเอง ส่วนอีกสามด้านที่เหลือนั้นไม่สามารถควบคุมได้ เพราะในวันข้างหน้าอาจจะมีการสร้างอาคารใหญ่ หรืออาคารที่ติดกับพื้นที่ของบ้านก็เป็นได้

นอกจากจะพยายามวางบ้านให้ชิดเขตที่ดินมากที่สุด แล้วเปิดด้านทิศตะวันตกเป็นลานโล่งเข้าหาอาคารพักอาศัย 5 ชั้น ซึ่งในขณะเดียวกันก็ทำหน้าที่บังแสงอาทิตย์และไอร้อนจากทิศตะวันตกเข้าหาตัวบ้านไปด้วย ยังจัดห้องหรือพื้นที่ใช้งานหลักของบ้าน ให้อยู่ในปีกทิศใต้กับทิศเหนือ เพื่อให้หลบแดดและเปิดรับลม ส่วนผนังด้านที่อยู่ติดกับภายนอกอย่างทิศเหนือและทิศใต้ถูกจัดให้มีหน้าต่างทรงผอมยาว ดันบึกเข้ามาในผนังบ้านและใช้พื้นที่ใต้หน้าต่างเป็นตู้เสื้อผ้า ซึ่งวิธีนี้จะทำให้บังแดดได้ดีได้ รับลมได้ สามารถเช็ดกระจกได้ง่าย และใช้พื้นที่ได้คุ้มค่า

คุณเหลียงยังเล่าเสริมอีกว่า  “เราเป็นบ้านที่ดูปิดทึบจากภายนอก แต่เปิดโล่งเข้าหาลานกลางบ้านภายใน ที่มีรายละเอียดของผนังครีบแนวตั้งเพื่อบังแดด และบังไม่ให้อาคารพักอาศัยสูงห้าชั้นมองเข้ามาเห็นในตัวบ้าน แต่เราสามารถเห็นกันเองได้”

แปลนบ้านชั้นที่ 1
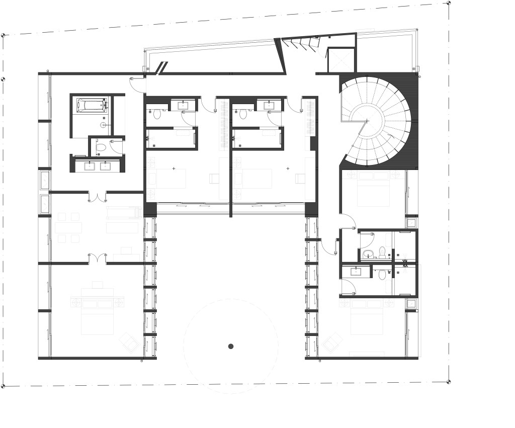
แปลนบ้านชั้นที่ 2

ฟังก์ชันที่คิดมาอย่างถี่ถ้วนเพื่อคนในครอบครัว

ขณะที่บริเวณมุมด้านในของบ้าน ถูกจัดวางให้เป็นพื้นที่โถงบันไดเวียนทรงกลม มีสัดส่วนชานพัก มีขั้นบันไดให้เดินสบายพอสมควร และใช้พื้นที่รอบรูปทรงกลมนี้ เป็นชั้นหนังสือสูงใหญ่ เป็นพื้นที่ที่ทุกคนต้องเดินผ่านทุกวัน ซึ่งเป็นโอกาสที่จะได้เห็นหนังสือที่ดีมีคุณค่า และให้ความสนใจหลังคาของโถงนี้ นอกจากนี้ ยังจัดให้มีช่องแสงเป็นวงแหวนล้อมรอบ นำแสงธรรมชาติ ไล้ผิวผนัง ต่อเนื่องลงมาที่ชั้นหนังสือ ทำให้สามารถใช้พื้นที่นี้ตอนกลางวันได้ด้วยแสงธรรมชาติ ซึ่งมีลักษณะเดียวกันกับการให้แสงของห้องทุกห้อง ที่ชั้นสองของบ้านหลังนี้

“เราต้องการบ้านที่สงบสบาย และดูแลรักษาง่ายองค์ประกอบทางสถาปัตยกรรมจึงเรียบง่าย มีเส้นตั้งที่ไม่เกาะคราบ น้ำคราบฝุ่น มากกว่าเส้นนอน จะได้ไม่จับคราบน้ำ น้ำลงมาก็ถ่ายลงมาข้างล่างไม่เป็นคราบ อะไรที่มันใกล้มือใกล้ตาก็เป็นอิฐ หรือวัสดุกับพื้นส่วนใหญ่ที่อยู่ข้างล่างก็เป็นหินล้าง หินขัด กระเบื้องดินเผา มันเป็นวัสดุที่ผมรู้สึกว่าถ้าเห็นไปรอยแตกบ้าง มันก็สวยไปตามวัสดุธรรมชาติของมัน มองมันเหมือนเป็นกางเกงยีนส์ที่เห็นรอยใช้แล้วสวยขึ้นเป็นเรื่องให้จำว่าบ้านหลังนี้มีการใช้งาน”

เพื่อเป็นบ้านที่มีความสงบมีสมาธิและให้พลังชีวิตกับทุกคน แต่ละห้องจัดวางพื้นที่และออกแบบให้เปิดรับลมและแสงธรรมชาติ กันฝนกันแดดได้ดี ในส่วนของโทนสีก็เลือกใช้สีเรียบง่าย ดูสบายตา ใช้วัสดุที่ทนกับดินฟ้าอากาศอย่างอิฐโบราณกับบริเวณที่ใกล้มือไกลตาของบ้าน เช่น รั้ว โรงรถ และลานกลางบ้าน ที่มีลักษณะการเรียงตัวแตกต่างกันไปตั้งแต่ผนังทึบ หรือการสร้างพื้นผิวและมิติที่สวยงามบนผนังอิฐด้วยการเรียงตัวให้มีช่องลมระบายอากาศได้จนถึงเรียงตัวกันเป็นสัญลักษณ์ตัวอักษร ภ ที่หน้าบ้านให้เป็นสัญลักษณ์เป็นคุณค่าความหมายกับบ้านไปตลอด

เหลียง-ศัลยเวทย์ ประเสริฐวิทยาการ เจ้าของบ้านและสถาปนิกผู้ออกแบบจาก Atelier of Architects

บ้านที่เป็นมากกว่างานออกแบบบ้าน แต่ยังออกแบบชีวิตไปด้วยกัน

บ้านหลังนี้ถูกคิด ถูกออกแบบมาจากโจทย์ที่เราตั้งไว้ เราต้องการดูแล ต้องการที่จะเห็นสมาชิกในครอบครัว ถ้ามองในแง่นี้ก็ตอบโจทย์ทุกประการ ทำให้ชีวิตมันนิ่งขึ้น มีพลัง ทุกคนก็ดูมีความสุขมากขึ้นมาก

“เรื่องหนึ่งที่ผมพยายามทำคือการเอาเรื่องเล็กๆ น้อยๆ ที่เป็นเรื่องส่วนตัวของสมาชิกครอบครัวมาใส่ในงาน จากหน้ารั้วบ้านที่เห็นเป็นรูปเรียงเป็นตัวอักษร ภ สำเภา จริงๆ ก็คือชื่อลูกสามคนที่ใช้ตัว ภ เป็นตัวสะกดนำ บางจุดในโถง ผมก็จะมีหมุดอยู่กลางโถงบันได ก็จะมีบันทึกว่า เริ่มสร้างบ้านหลังนี้ที่วันเกิดพ่อผม แล้วก็เข้าอยู่แล้วเสร็จที่วันเกิดแม่ มันก็เป็นเรื่องเล็กๆ น้อยๆ ที่ทำให้เราจำได้ตลอด แล้วในหมุดนี้ผมก็พยายามเอารูปร่างมือของลูกๆ กับผมและภรรยาสลักเป็นลายไว้ด้วย”

บ้าน ภ ไม่เพียงแต่จัดการพื้นที่เล็กๆ ให้ใช้งานได้ดี เกิดพื้นที่ใช้สอยได้อย่างคุ้มค่า และเปิดโอกาสให้เกิดปฏิสัมพันธ์ระหว่างคนในครอบครัวมากที่สุด แต่ยังบรรจุความทรงจำ และความหมายของบ้านที่มีคุณค่าของครอบครัวไว้อย่างครบถ้วน

Owner & Architect: ศัลยเวทย์ ประเสริฐวิทยาการ จาก Atelier of Architects
Photographer: จิณณวัตร บริหารกิจอนันต์

Writer
Picture of Saovapak Ayasanond

Saovapak Ayasanond

อดีตกองบรรณาธิการนิตยสารบันเทิงที่ไม่เคยคิดว่าตัวเองจะผันตัวมาเป็นนักเล่าเรื่องสายบ้านและสถาปัตยกรรม จนกระทั่งพบว่าการออกแบบเต็มไปด้วยคุณค่าและเรื่องราวที่น่าสนใจไม่แพ้กัน

Discover more from Design Makes A Better Life.

Subscribe now to keep reading and get access to the full archive.

Continue reading