มองสถาปัตยกรรม Neo-Futurism และ Brutalist
ผ่านคุกแห่งเวลาในซีรีส์ LOKI

โลกิ น้องของธอร์ บุตรแห่งโอดิน หรือเทพเจ้าแห่งการหลอกลวง ไม่ว่าจะชื่อไหนทุกคนคงคุ้นเคยตัวละครนี้จากหนังของค่าย Marvel ที่เขาเคยปรากฏตัวอยู่ในเรื่อง รวมถึงซีรีส์ยาวเรื่องแรกของโลกิที่ถูกปล่อยใน Disney+ Hotstar ทำให้เกิดกระแสเกี่ยวกับโลกิมากมายรวมไปถึงสถาปัตยกรรมของ TVA คุกแห่งเวลาที่โลกิโดนต้องโทษข้อหาเป็นวายร้ายที่ทำเส้นเวลาปั่นป่วนด้วย เรื่องนี้เป็นที่พูดถึงของกลุ่มคนที่สนใจงานสถาปัตยกรรมว่ามีความเกี่ยวของกับโลกดิสโทเปียหรือไม่ หรือมีความเกี่ยวข้องกับสถาปัตยกรรม Neo-Futurism และ Brutalist อย่างไร  วันนี้ Dsign Something จะพาไปหาคำตอบพร้อมๆ กัน !

(WU Vienna, Library & Learning Center by Zaha Hadid)

อะไรคือสถาปัตยกรรมแบบ Neo-Futurism ?

ฟังดูแล้วต้องเกี่ยวข้องกับโลกอนาคตอย่างแน่นอน คุณมาถูกทางแล้ว สถาปัตยกรรมแบบ Neo-Futurism คือสถาปัตยกรรมแห่งอนาคตใหม่ เป็นแนวคิดในยุคปลายศตวรรษที่ 20 ถึงต้นศตวรรษที่ 21 ยกตัวอย่างสถาปนิกที่เราคุ้นเคยอย่าง Zaha Hadid ก็เป็นสถาปนิกหญิงคนสำคัญที่เป็นต้นแบบของงานในลักษณะนี้ ซึ่งเธอเสียชีวิตลงในปี 2016 สถาปัตยกรรมยังมีแนวความคิดที่แสดงออกถึงเทคโนโลยีการก่อสร้างที่ก้าวหน้าและมีความซับซ้อนมากขึ้นกว่าเดิม มันแสดงออกถึงความสามารถของมนุษย์ที่ออกแบบตึกตามจินตนาการได้และมีเทคโนโลยีที่ล้ำสมัยจนสามารถสร้างอาคารขึ้นมาได้อย่างสวยงามและปลอดภัย แต่ก็มีกระแสตอบกลับในทางลบว่าเป็นงานที่รับใช้เผด็จการและระบบทุนนิยมที่แสดงออกถึงความยิ่งใหญ่มากเกินไปเช่นเดียวกับสถาปัตยกรรมแบบ Brutalism

นอกจากการงานสถาปัตยกรรมที่เรามักจะนึกถึง Zaha Hadid แล้ว โลกอนาคตที่หลายคนคุ้นเคยมักล้วนออกมาจากความคิด และปลายปากกาของเขาทั้งนั้น เขาคือ Syd Mead (Neo-Futurist concept artist ) นักออกแบบโลกอนาคตคนสำคัญในวงการภาพยนตร์ที่ผลงานเกี่ยวกับดิสโทเปียของเขาเป็นที่รู้จักของผู้คนมากมาย อาธิ Blade runner , Star Trek , Tron เป็นต้น แต่ก็มีนักวิจารณ์กล่าวถึงงานของเขาว่าจริงๆ แล้วเป็นแนวคิดแบบยูโทเปียมากกว่า สังเกตจากผู้คนที่ใช้ชีวิตอย่าง Hi-Tect แต่ไม่ Low-Life ที่ผลงานในภาพยนตร์เป็นดิสโทเปียส่วนมากคืองานของเขาผนวกกับบริบทดิสโทเปียของเรื่องจึงเกิดงานเหล่านั้นขึ้นแทนที่จะเป็นโลกยูโทเปีย ซึ่งแนวคิดแบบโลกอนาคตใหม่ใครๆ ในวงการออกแบบก็ต้องนึกถึงเขาเป็นคนแรก

นักออกแบบฉากรุ่นหลังติดภาพจำจากเขาไปไม่มากก็น้อย เพราะงานของเขาถือเป็นงานที่ทรงอิทธิพลที่สุดในยุค 70-80 เลยก็ว่าได้ อีกทั้งรูปทรงและเส้นสายอันโฉบเฉี่ยวในงานออกแบบของ Syd Mead ได้แรงบันดาลใจมาจากงานออกแบบสไตล์ Stream Line ที่เฟื่องฟูอยู่ในยุค ค.ศ.1930 ซึ่งในยุคนั้น Stream Line กลายเป็นสัญลักษณ์ของความก้าวหน้าและการพัฒนาด้านเทคโนโลยีและสังคม และมีผลถึงขั้นส่งให้สหรัฐอเมริกาผงาดขึ้นมาเป็นผู้นำด้านการออกแบบของโลกเป็นครั้งแรก

SPOIL ALERT*

สถาปัตยกรรมคุกแห่งเวลา: Time Variance Authority (TVA) 

เปิดเรื่องมาที่โลกิถูกจับในขณะที่เขากำลังขโมยเทรสเซอร์แลคและหนีจากอเวนเจอร์ใน Avengers Endgame (2019) จากนั้นเขาถูกองค์กรที่ชื่อ TVA หรือ Time Variance Authority ที่อ้างว่าตัวเองคือผู้ผดุงความยุติธรรมจับมาและพบว่าเขาผิดข้อหาทำเส้นเวลาแตกออกจากกัน เขามีหน้าที่ตามหาตัวโลกิอีกคนหนึ่งเพื่อความสงบของโลกเพราะโลกิอีกคนนั้นเป็นตัวสุดท้ายที่TVAยังจับไม่ได้และเป็นตัวอันตรายที่อาจทำเส้นเวลาอันศักดิ์สิทธิ์ปั่นป่วน

เมื่อเขาได้เข้ามาที่TVA ก็พบว่าที่นี่เป็นเหมือนศูนย์ราชการข้ามมิติที่ไร้กาลเวลา ภายใต้ความไร้กาลเวลานั้นเราจึงสังเกตได้ว่า TVA มีทั้งอุปกรณ์ที่ทันสมัยมากอย่างตัวมาสคอตนาฬิกาที่ถูกโปรแกรมมาให้เหมือนเป็น Google ที่มีชีวิต แต่ก็มีความอะนาล็อกมากอย่างพิมพ์ดีด ประกอบเข้าด้วยกัน ทำให้เราไม่สามารถคาดเดายุคสมัยของ TVA ได้

Kasra Farahani นักออกแบบที่ทำภาพ Visual ต่างๆ ให้กับ LOKI เขาเคยทำงานในภาพยนตร์เรื่อง Black Panther, Captain Marvel และ Guardians of the Galaxy 2 งานของเขาคือแปลจินตนาการให้กลายเป็นภาพและโลกที่ตัวละครสามารถมีประสบการณ์ทางอารมณ์ร่วมไปกับฉากได้ เขาได้ออกแบบเมือง TVA ให้มีเทคโนโลยีล้ำสมัย แต่ในขณะเดียวกันก็แสดงถึงอำนาจขององค์กรผ่านหุ่นคอนกรีตขนาดยักษ์ที่เหมือนคอยจับตาดูผู้คนอยู่ และการปั้นหุ่นขนาดยักษ์ก็ยังถูกพบเห็นในประเทศที่ปกครองด้วยระบอบคอมมิวนิสต์ (นานาชาตินิยามว่าเผด็จการลัทธิสตาลินแบบเบ็ดเสร็จ) อย่างเกาหลีเหนืออีกด้วย

Farahani ให้สัมภาษณ์ถึงกระบวนการเบื้องหลังการสร้างโลกของโลกิที่แตกต่างกันนี้ว่า TVA มีพื้นฐานมาจาก Mad Men พบกับ Blade Runner และมันก็พัฒนาไปไกลมากขึ้นเมื่อต้องทำTVAให้เป็นที่ที่ไม่มียุคสมัยหรือไม่สามารถอ้างอิงสมัยได้ ทำให้งานของ Terry Gilliam กลายเป็นแหล่งข้อมูลวิจัยที่สำคัญสำหรับเขา โดยเฉพาะอย่างยิ่งในภาพยนตร์เรื่อง Brazil (1985) เป็นหนังที่น่าทึ่งในการรวมองค์ประกอบแห่งอนาคตและองค์ประกอบในอดีตเข้ากับองค์ประกอบในปัจจุบันเข้าด้วยกัน ทำให้คาดเดายุคไม่ถูกแต่ให้ความรู้สึกเหมือนจริง

นอกจากนี้ TVA ยังมีแรงบันดาลใจมากมายที่นำมาจากการออกแบบอาคารและสถาปัตยกรรมสมัยใหม่ เขาเติบโตมาบนชายฝั่งตะวันตกของสหรัฐอเมริกาในแคลิฟอร์เนียตอนใต้ ที่นั่นเป็นพื้นที่ที่มีความเจริญทางสถาปัตยกรรมอย่างมาก และประกอบกับจำนวนประชากรที่เฟื่องฟูในยุคหลังสงคราม ทำให้ในเมืองมีสถาปัตยกรรมสมัยใหม่ในช่วงกลางศตวรรษมากมาย รวมไปถึงโรงเรียนที่เขาเข้าเรียน ที่ทำการไปรษณีย์ ล้วนมีสถาปัตยกรรมคอนกรีตที่เรียบง่าย เขาจึงได้ผสมผสานสิ่งนั้นเข้ากับสถาปัตยกรรม Brutalist จนกลายมาเป็นฉากในเรื่องอย่างที่เราเห็นกัน

ห้องที่โลกิเข้ามาเป็นห้องแรกถือเป็นสถาปัตยกรรมภายในที่ทำให้คนดูตื่นตาตื่นใจเป็นอย่างมาก และแน่นอนว่าเป็นสถานที่ที่มีอยู่จริงคือ Breuer Building ที่ออกแบบโดย Marcel Breuer สถาปนิกชาวฮังการี ให้ความหมายเหมือนมีสายตานับร้อยคอยจับจ้องผู้กระทำความผิดอยู่ตลอดเวลา ถือเป็นจิตวิทยาอย่างหนึ่งของ TVA ที่สร้างความกดดันแก่โลกิและผู้กระทำความผิดคนอื่นๆ (ในเรื่องจะเรียกเหล่าผู้กระทำความผิดว่าเน็กซัส) แต่ในความเป็นจริงแล้ว อาคารนี้มีการใช้งานเป็นพิพิธภัณฑ์ศิลปะอเมริกัน Whitney ในนิวยอร์ก

ภายนอกอาคารดูอึมครึม หนักอึ้ง และถึงกับเป็นสถาปัตยกรรมที่โหดร้ายเมื่อสร้างเสร็จในปี 1966 และนักวิจารณ์กล่าวว่าเหมือนสถาปัตยกรรมของบาบิโลนที่กลับหัวกลับหาง ซึ่งในปัจจุบันอาคารของ Breuer ได้รับการยอมรับว่าเป็นอาคารที่กล้าหาญ แข็งแกร่ง และสร้างสรรค์ ถือได้ว่าเป็นอาคารที่โดดเด่นที่สุดแห่งหนึ่งของนครนิวยอร์ก

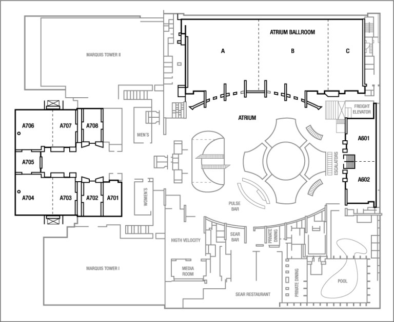
งานของ Syd Mead ก็เป็นส่วนหนึ่งของ John Portman ผู้ออกแบบตึกที่ใช้ถ่ายทำภายนอกเป็นTVA ทั้งคู่เป็นคนGenerationเดียวกันทำให้เป็นแรงบันดาลใจในการเกิดสถาปัตยกรรมในลักษณะโลกอนาคตขึ้น อาคารที่เห็นไม่ใช่ CG ทั้งหมด แต่เป็นโรงแรมที่มีชื่อว่า Marriott Marquis ในแอตแลนตา และยังเป็นสถานที่ถ่ายภาพยนตร์เรื่องอื่นนอกจากโลกิ เช่น Mission Impossible lll

เป็นโรงแรมที่ปฏิเสธวิวภายนอก แต่กลับหันระเบียงเข้ามาที่ภายในอาคารแทน เป็นงานที่ไม่ได้ปฏิสัมพันธ์กับตึกรอบข้างและดูไม่เป็นมิตรเท่าไหร่ รูปลักษณ์คล้ายกับภายในร่างกายของมนุษย์ที่มีคอร์ลิฟต์เป็นกระดูกสันหลังและระเบียงเหมือนโครงกระดูก

ด้วยความเป็น Brutalism มีคอนกรีตที่หนาและสูงใหญ่ แต่กลับไม่ได้รู้สึกถึงความเก่าและหมดสมัยไป หากยังคงรู้สึกทันสมัยเหมือนกับโลกอนาคตทั้งๆ ที่ปัจจุบันตัวเราก็ได้มาถึงอนาคตที่สถาปนิกคาดการณ์ไว้แล้ว จึงกล่าวได้ว่าตึกนี้คืออนาคตของอนาคตก็ว่าได้

การผสมผสานทั้งเก่าและใหม่ทำให้เกิดเป็นสถานที่ในภาพยนตร์ขึ้นมา ต้องยอมรับว่าผู้ออกแบบตีโจทย์แตกและเป็นที่พึงพอใจของเหล่าแฟนหนังที่รักโลกิเป็นอย่างมาก มีวรรคหนึ่งในพระคัมภีร์ไบเบิลกล่าวไว้ว่า ไม่มีอะไรใหม่ภายใต้ดวงอาทิตย์  เพราะสิ่งใดที่มีอยู่แล้วก็จะมีขึ้นอีก สิ่งที่ทำกันแล้วคือสิ่งที่จะต้องทำกันอีก เหมือนกับกระแสนิยมของสถาปัตยกรรมที่วนไปวนมาไม่รู้จับ คำว่าอนาคตในปัจจุบันก็ยังไม่ใช่อนาคตจริงๆ เสมอไป กาลเวลาจึงทำหน้าที่สะท้อนเนื้อเรื่องและสถาปัตยกรรมออกมาได้อย่างดีเยี่ยมในซีรีส์เรื่องนี้ นอกจากนั้นยังมีปรัชญาทางการเมืองและสังคมซ่อนอยู่ในTVA หน่วยงานที่รักษาเส้นเวลาอันศักดิ์สิทธิ แต่ใครล่ะที่ตัดสินความถูกต้องว่าเส้นเวลานั้นไม่ควรถูกเปลี่ยนแปลง การที่บ้านเมืองสงบทำให้โลกิในหลากเส้นเวลาขาด Free will คือเจตจำนงเสรีที่มนุษย์หรือเทพควรจะมี ทำให้เกิดการระเบิดของเวลาขึ้นในตอนจบ ซึ่งเป็นสิ่งที่น่าขบคิดเป็นอย่างมากว่าอะไรสำคัญกว่ากันระหว่าง ความสงบของโลก หรืออิสระภาพที่ประชาชนควรจะได้รับ

ขอบคุณรูปภาพและข้อมูลจาก
https://www.flickr.com/photos/mustafakasapoglu/39406312392
https://www.wurkon.com/blog/186-syd-mead
http://hiddenarchitecture.net/atlanta-marriott-marquis-hote/
https://www.theartnewspaper.com/interview/loki-s-production-designer-on-the-modernist-inspiration-behind-the-show-s-stunning-visuals
https://www.lofficielsingapore.com/Culture/loki-series-brutalist-architecture-time-variance-authority
https://www.hotelmanagement.net/design/remembering-architect-john-portman-s-life-achievements-and-hotels
https://www.news18.com/news/movies/loki-production-designer-kasra-farahani-on-creating-the-many-worlds-challenging-but-a-dream-job-3951581.html

Writer
Picture of Prawpisut Tiangphonkrang

Prawpisut Tiangphonkrang

From the River to the Sea, Palestine will be Free !

Discover more from Design Makes A Better Life.

Subscribe now to keep reading and get access to the full archive.

Continue reading