‘เวหา’
บ้านฟอร์มไม่จัด แต่ชัดเจนในตัวเอง

คนไทยหลายคนไม่ค่อยถูกกับแสงแดด อาจเพราะอากาศบ้านเราที่ร้อนชื้น อบอ้าว จนบางครั้งก็ทำให้อารมณ์ร้อนไปตามอากาศ แต่สำหรับครอบครัวจารยะพันธุ์ ‘แสงแดด’ คือองค์ประกอบธรรมชาติที่แสนจะโปรดปราน การทำกิจกรรมร่วมกันในพื้นที่เอาท์ดอร์ หรือกึ่งเอาท์ดอร์ กลายเป็นชั่วโมงแสนสำคัญของครอบครัวมากกว่าการแยกย้ายและใช้ชีวิตภายในห้องที่มีเครื่องปรับอากาศเพียงอย่างเดียว ไลฟ์สไตล์ดังกล่าวจึงนำมาสู่โจทย์ของการออกแบบบ้านเวหา บ้านสุดโปร่ง โล่งบนพื้นที่ดินส่วนต่อขยายของบ้านหลังเก่าย่านสายไหมที่ตั้งตามชื่อของลูกชายและคุณพ่อผู้เป็นนักบิน โดยมีจูน เซคิโน จาก Junsekino Architect and Design เพื่อนสนิทสมัยมัธยมปลายรับหน้าที่ออกแบบ

“บ้านเขาเนี่ย…สายแอดเวนเจอร์เลย ชอบออกกำลังกาย ชอบอยู่กลางแจ้ง สิ่งแรกที่เรามอง แน่นอนบ้านต้องโปร่ง แสงและอากาศธรรมชาติเข้าถึงเยอะ ๆ อีกอย่างหนึ่งคือ เขาอยู่อาศัยกันเอง 3 คน ดูแลบ้านและทำอาหารเอง เราเลยเสนอว่าพื้นที่ใช้สอยประมาณ  400 ตารางเมตร เป็นขนาดที่กำลังพอดี ซึ่งยังคงใช้ชีวิตแบบมองเห็นกันได้ในขณะที่บ้านก็ไม่ได้แคบเกินไป ส่วนอย่างสุดท้าย เขาต้องการให้บ้านหลังใหม่ยังมีความเชื่อมโยงกับบ้านหลังเดิม เพื่อให้คุณพ่อคุณแม่สามารถไปมาหาสู่กันได้ง่ายดาย” คุณจูนเล่า

สเปซในแบบ ‘กลางๆ’ ที่สร้างความรู้สึกสบาย

ด้วยความที่พื้นที่ดินไม่ได้มีขนาดใหญ่มากนัก ประกอบกับอยู่ในรูปทรงสี่เหลี่ยมผืนผ้าที่ลึกขนานไปกับตัวไซต์ ทีมสถาปนิกจึงเริ่มต้นด้วยการวางผังฟังก์ชันภายในให้ใช้งานสเปซได้อย่างเต็มที่มากที่สุด 

ทางฝั่งซ้ายของที่ดินซึ่งเป็นสวนของบ้านหลังเก่าทำหน้าที่เป็นมุมมองที่ดีของบ้าน พื้นที่สีเขียวช่วยกรองแสงและสร้างความร่มรื่นตลอดวัน ส่วนด้านขวาของบ้านซึ่งอยู่ทางทิศเหนือ สถาปนิกออกแบบให้เป็นสระว่ายน้ำ ซึ่งเปิดรับแสงธรรมชาติในปริมาณที่กำลังพอดี และลดความชื้นที่เกิดจากพื้นที่สระว่ายน้ำไปด้วยในตัว “เวลานั่งอยู่ในบ้าน ด้านขวาเป็นสระว่ายน้ำ ด้านซ้ายเป็นต้นไม้ มันเป็นข้อดีที่ว่า Perspective ที่เรามองไป มัน Inside-out มากๆ คือนั่งในบ้าน ทีวีแทบไม่ได้เปิดเลยนะ แทบไม่ได้โฟกัสเลยว่าตัวบ้านจะเป็นยังไง กลายเป็นว่าสเปซมันแกมบังคับให้เราต้องมองออกไปหาธรรมชาติที่อยู่รายล้อม อันนี้คือสิ่งที่เราตั้งใจ” สถาปนิกเล่า

(แปลนบ้านเวหาชั้น 1)
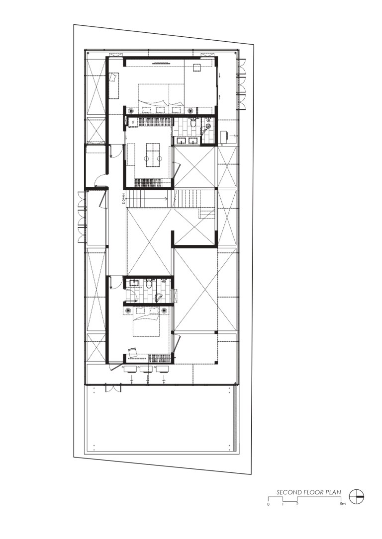
(แปลนบ้านเวหาชั้น 2)

การออกแบบสเปซภายใน สถาปนิกพยายามทำให้เกิดความรู้สึก ‘กลางๆ’ กล่าวคือ พื้นที่รับประทานอาหาร ส่วนนั่งเล่น ไม่ได้แยกขาดจากกันอย่างชัดเจน แต่ถูกเบลอและรวมเป็นส่วนหนึ่ง หรือเป็น Sharing Space ของครอบครัวที่ทุกคนมาใช้ชีวิตร่วมกัน ซึ่งพื้นที่ส่วนนี้ออกแบบในลักษณะ Open Plan และมีระยะของฝ้าที่สูงแบบ Double Space ทำให้พื้นที่หลักของบ้านทั้งหมดโปร่ง โล่ง  พร้อมรับแสงและอากาศธรรมชาติได้อย่างเต็มประสิทธิภาพ

ช่องว่างระหว่างฟาซาด และหลังคาบริเวณพื้นที่สระว่ายน้ำ ยังถูกออกแบบให้เป็นพื้นที่ Semi-Outdoor โดยเจาะช่องเปิดหลังคาให้กลายเป็น Skylight ที่นำพาแสงแดดให้เข้าสู่ตัวบ้าน และเป็นตัวช่วยหล่อเลี้ยงให้สิ่งมีชีวิตอย่างต้นโอ๊คเติบโตภายในบ้านได้อย่างสมบูรณ์ โดยพื้นที่ Double Space ยังช่วยเพิ่มระยะ ทำให้แสงแดดที่ส่องผ่าน Skylight อยู่ในปริมาณที่พอดี ไม่สร้างความร้อนโดยตรงให้กับตัวบ้านจนเกินไป

ถัดเข้ามาอีกหน่อย พื้นที่ด้านหลังของบ้านจะเป็นห้องครัว และห้องอเนกประสงค์ ซึ่งมีบันไดเป็นตัวคั่นกลางระหว่างสเปซ เติมบรรยากาศด้วยมุมพักผ่อนเล็กๆ อย่างเทอเรซล้อมรอบต้นโอ๊ค ที่พ่อ แม่ ลูกสามารถมานั่งพักผ่อน นั่งชมธรรมชาติร่วมกันได้ในระหว่างวัน เรือนยอดของต้นโอ๊คยังเป็นผลพลอยได้ ที่สร้างบรรยากาศ เติมความอบอุ่นให้กับห้องน้ำมาสเตอร์ที่บริเวณชั้นสอง แสงที่ส่องผ่านเรือนยอดเหล่านั้นยังสร้างความมีชีวิตชีวากับบ้าน นอกเหนือไปจากองค์ประกอบของงานสถาปัตยกรรมเพียงอย่างเดียว

สำหรับชั้นสอง พื้นที่ถูกแบ่งออกเป็นสองปีกอย่างชัดเจน โดยปีกของมาสเตอร์จะอยู่บริเวณด้านหลัง  ส่วนด้านหน้าซึ่งเชื่อมต่อกับด้านบนของที่จอดรถจะเป็นพื้นที่ของลูกชาย เผื่อสำหรับการต่อเติมเทอเรซส่วนตัวในอนาคตก็สามารถทำได้อย่างเป็นสัดส่วนและสะดวกสบาย

ห่อหุ้มสถาปัตยกรรมด้วยธรรมชาติและเรื่องราวของการอยู่อาศัย

อย่างที่เราเห็นว่าพื้นที่ภายในให้ความรู้สึกอบอุ่นด้วยโทนสีขาว และไม้ ซึ่งทางเจ้าของชื่นชอบเป็นการส่วนตัว แต่สำหรับการออกแบบสถาปัตยกรรมภายนอกกลับให้อารมณ์ที่ต่างไป ด้วยความที่ผืนที่ดินอยู่ในลักษณะลึก อาคารจึงไม่ได้แสดงตัวตนผ่าน Elevation (รูปด้านอาคาร) เท่าไรนัก ตัวบ้านจึงถูกออกแบบมาในลักษณะของกล่อง ฟอร์มของอาคารทรงจั่วที่ชัดเจนในตัวเอง  แต่ทิ้งระยะห่างของอาคารผ่านฟาซาดเหล็กบางๆ ทำให้เมื่อเรามองจากภายนอก อาคารจะจางหายไป ราวกับโดนห่อหุ้มไว้ด้วยธรรมชาติและเรื่องราวของการอยู่อาศัย

“เราไม่อยากบ้านมันเป็นสถาปัตยกรรมที่ฟอร์มจัดมาก อยากให้ยิ่งอยู่อาศัยไป ตัวอาคารค่อยๆ จางลงไปมากกว่า” ฟาซาดเหล็กส่วนนี้ยังทำหน้าที่เป็นตัวกรองแสง กรองอากาศ กันนก และที่สำคัญ เมื่อการอยู่อาศัยผ่านไปสักช่วงระยะเวลาหนึ่ง ตัวบ้านจะเปลี่ยนไปในแต่ละช่วงเวลา เช้า กลางวันหรือเย็น การเปิด-ปิดช่องเปิดของอาคาร หรือต้นไม้ที่ปลูกไว้เกิดการเจริญเติบโต ปัจจัยเหล่านี้จะทำให้ บ้านเวหา มีชีวิตและมีการเคลื่อนไหวในแบบของตัวเองที่พร้อมเปลี่ยนแปลงไปพร้อมกัน

“ผมรู้สึกว่าบ้านหลังนี้  เราไม่ได้ดีไซน์รูปด้านของบ้านที่มองเห็นแค่ภายนอก แต่มันคือสเปซ คือความเป็นอยู่ภายในจริงๆ ทุกครั้งที่ไปตรวจงาน มันมีความรู้สึกที่ไม่ต้องเกร็ง เป็นบ้านที่ไม่ต้องเซ็ตอะไรกันมาก ไม่ต้องพยายามให้มันใหม่ เป็นสไตล์ไหนๆ หรือไม่ต้องพยายามให้มันเป็นอะไรในการเล่าเรื่อง เวลาเราเข้าไปที่บ้านหลังนี้ เราจะนั่งเงียบๆ นิ่งๆ มองไปเห็นลูกเขาเล่นน้ำ มองเห็นสวน นั่งรับประทานอาหารกัน มันเป็นพื้นที่ที่เรารู้สึกว่า เออ…นี่แหละ คือ พื้นที่สบายตัว สบายใจ เป็นบ้านที่พร้อมโตไปกับผู้อยู่อาศัยจริงๆ” คุณจูน สถาปนิกกล่าว

Location: เขตสายไหม แขวงสายไหม กรุงเทพฯ
Architect :
Junsekino Architect and Design
Interior : Junsekino Interior Design co.,ltd
Owner : ศักรภพน์ จารยะพันธุ์
Main contractor : GA house Amnaj Amornchaiprasith
Interior contractor : Khun Rangson
Civil Engineer : NEXT Engineering Design
Building Area: 403 sq.m
Photo : Nantiya Busabong

Writer
Picture of Rangsima Arunthanavut

Rangsima Arunthanavut

Landscape Architect ที่เชื่อว่าแรงบันดาลใจในงานออกแบบ สามารถเกิดขึ้นได้จากทุกสิ่งรอบตัว และการบอกเล่าเรื่องราวการออกแบบผ่าน 'ตัวอักษร' ทำให้งานออกแบบที่ดี 'มีตัวตน' ขึ้นมาบนโลกใบนี้

Discover more from Design Makes A Better Life.

Subscribe now to keep reading and get access to the full archive.

Continue reading