Chia Tai Farm
จากเมล็ดพันธุ์เจียไต๋ งอกงามสู่ร้านอาหารฉบับ “Farm to Table”

ร้าน Chia Tai Farm เป็น “Concept Farm Store” แรกที่บริษัท เจียไต๋ จำกัด ให้ แนวคิด “Farm to Table” เป็นโจทย์สำคัญในการออกแบบ  

ตัวอาคารตั้งอยู่ด้านหน้าของสำนักงานใหญ่ บริษัท เจียไต๋ จำกัด อาคารถูกออกแบบให้ล้อไปกับอาคารสำนักงานใหญ่โดยอ้างอิงรูปแบบความเป็นอาคารโมเดิร์น และมีสีโทนเข้ม แต่ทั้งนี้เพื่อให้อาคารมีความแตกต่างและตอบแนวคิดของร้านที่ต้องการให้ ร้าน Chia Tai Farm มีความทันสมัยและแตกต่าง ให้เป็น stand alone restaurant ที่อยู่ร่วมกับอาคารสำนักงานใหญ่แต่โดดเด่นเพียงพอสำหรับอาคารที่เป็นเสมือนหน้าบ้านของโครงการ  การออกแบบสถาปัตยกรรมจึงใส่มิติความทับซ้อนของมวลอาคารและ “Seed Gallery” เส้นเฉียงสำคัญ ที่พาดผ่านพื้นที่ตั้งแต่ชั้นล่างจนถึงชั้นบนสุดของอาคาร 

พื้นที่ภายในอาคารถูกแบ่งสัดส่วนออกเป็น 4 ส่วน โดยทุกพื้นที่ว่างจะสร้างความเชื่อมโยงให้ลูกค้าและผู้ใช้อาคารเพื่อให้เข้าใจเจตนาของแนวคิด “Farm to Table” ให้ชัดเจนมากยิ่งขึ้น

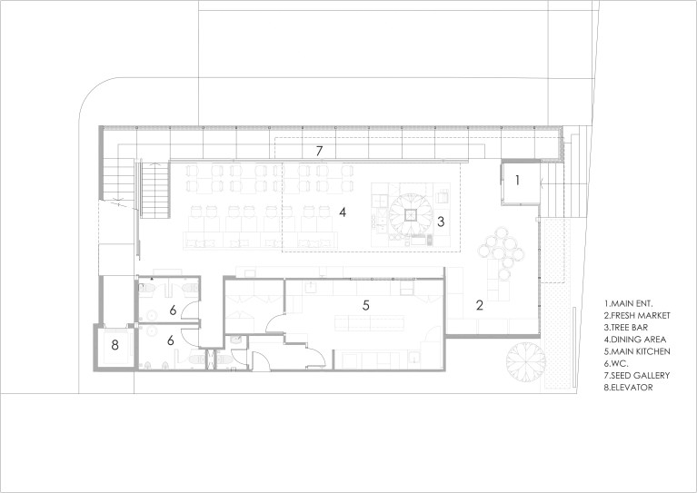
โดยพื้นที่ชั้นล่างด้านหน้าเป็นบริเวณจำหน่ายผลผลิตจากเกษตรกรผู้ผลิต ถัดเข้ามาจะเป็นพื้นที่ร้านอาหารที่มี  “Tree Bar” เป็นบาร์กลาง และที่นั่งพร้อม open kitchen  พื้นที่ต่อมาเป็นที่ว่างสำคัญที่เชื่อมโยงทั้งชั้น 1 ชั้น 2 และยังเชื่อมโยงเรื่องราวและบอกเล่าที่มาของผลผลิตต่างๆ ในร้าน “Seed Gallery” เป็นทั้ง circulation และ installation ไปในเวลาเดียวกัน เมล็ดทั้งหมดทุกชนิดพันธุ์ของเจียไต๋ ถูกนำมาบันทึกไว้ใน อะคริลิคใสและติดตั้งให้เป็นเหมือนม่านเมล็ดพันธุ์ บอกเล่าเรื่องราวต่าง ๆ ของบริษัท

Master Plan
1st Floor Plan
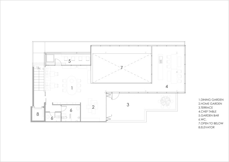
2nd Floor Plan

ถัดมาในชั้นที่ 2 พื้นที่จำหน่ายเมล็ดพันธุ์ “Chia tai HOME GARDEN” ที่ออกแบบให้เหมือนผู้ใช้งานอยู่ในสวน มีต้นไม้ ชั้นเก็บอุปกรณ์ทำสวน และ เมล็ดพันธุ์ ต่าง ๆ ให้เลือก โดยจะมีบริเวณ ระเบียงภายนอกเหมือนเป็นระเบียงหลังบ้านเชื่อมพื้นที่เข้าด้วยกัน  

ส่วนสุดท้ายเป็นพื้นที่เปรียบเสมือนห้องทดลองทางอาหาร และห้องสร้างสรรค์เมนูใหม่ๆ ที่มาจากผลผลิตของเกษตกร ทำให้เกิดจินตนาการใหม่ ๆ ที่สามารถนำมาสู่เมนูอาหารได้จริง

*คำอธิบายทั้งหมดโดยผู้ออกแบบ (Text description by the architects)

Location : สุขุมวิท 60 พระขโนง กรุงเทพฯ
Gross Built Area: 300 ต.รม.
Completion Year : 2021

Architects : FORX DESIGN STUDIO 
Lead Architects:
อัทธา พรสุมาลี
Design Team: กัญญาวรีย์ พิสปิงคำ
Owner: CHIA TAI FARM
Interior Designer: วรวุฒิ เอกสุวรรเจริญ และลดาวัลย์ อ่อนสุด
Landscape Designer:  FORX DESIGN STUDIO X FLORA LANDSCAPE
Construction & Civil Engineer: สิริชัย แซ่ซิ่น
Contractor: IN CONSTRUCTION
Sanitation Engineer: มนเทพ พุทธโชติ
Electrical engineer: ประพัฒน์ คงนันทะ
Photographer credits: PANORAMIC STUDIO

Writer
Picture of Rangsima Arunthanavut

Rangsima Arunthanavut

Landscape Architect ที่เชื่อว่าแรงบันดาลใจในงานออกแบบ สามารถเกิดขึ้นได้จากทุกสิ่งรอบตัว และการบอกเล่าเรื่องราวการออกแบบผ่าน 'ตัวอักษร' ทำให้งานออกแบบที่ดี 'มีตัวตน' ขึ้นมาบนโลกใบนี้

Discover more from Design Makes A Better Life.

Subscribe now to keep reading and get access to the full archive.

Continue reading