Sonny Coffee & Juice
คาเฟ่ที่รีโนเวทด้วยชิ้นส่วนของบ้าน และเรื่องราวของวัสดุในมิติที่แตกต่าง

หากเราลองสังเกต ส่วนประกอบสำคัญของบ้านหรืออาคารแทบทุกประเภท เราจะพบว่า “วงกบ” เป็นชิ้นส่วนหนึ่งที่ล้อมรอบช่องเปิดอย่างประตูและหน้าต่างอยู่เสมอไม่ว่าจากภายในหรือภายนอก หน้าที่ของวงกบ คือตัวประสานระหว่างผนังกับช่องเปิดที่ทำให้รอยต่อระหว่างวัสดุมีความสมบูรณ์แบบ แม้ว่าปัจจุบันวงกบจะถูกผลิตขึ้นมาด้วยวัสดุหลากหลายประเภท แต่วงกบที่ผลิตจากไม้ ก็เรียกได้ว่าเป็นวัสดุต้นตำรับที่คนไทยนิยมนำมาใช้ตั้งแต่โบราณมาจนถึงปัจจุบัน

ซึ่งสำหรับ Sonny Coffee & Juice คาเฟ่ที่ถูกรีโนเวทจากบ้านทาวเฮาส์เก่าในย่านใจกลางเมืองอยุธยา ฝีมือการออกแบบของสตูดิโอสถาปนิก BodinChapa ซึ่งคุณบดินทร์ เมืองลือ และคุณพิชชาภา โล่ห์ทอง เจ้าของสตูดิโอก็ได้ใช้วงกบไม้มาออกแบบด้วยวิธีการที่แตกต่าง โดยเปลี่ยนหน้าที่และนิยามของวงกบให้มีมิติมากขึ้น ผ่านเอกลักษณ์เฉพาะตัวที่เราไม่เคยพบเห็นที่ไหนมาก่อนในการรีโนเวททาวเฮาส์

เรื่องราวชิ้นส่วนของบ้าน ในมิติที่ต่างอย่างอบอุ่น

ในการค้นหาแนวคิดการออกแบบเริ่มต้นจากการสำรวจพื้นที่ซึ่งเป็นบ้านทาวน์โฮมสองชั้นที่ขนาบข้างไปด้วยบ้านในรูปแบบเดียวกัน ถนนด้านหน้าค่อนข้างกว้าง และฝั่งตรงข้ามมีพื้นที่สีเขียวขนาดใหญ่ ความต้องการที่จะเชื่อมโยงกับบริบทโดยรอบ และยังคงกลิ่นอายที่อบอุ่นเป็นกันเองไว้ สถาปนิกจึงเลือกชิ้นส่วนต่างๆของความเป็นบ้านมาเล่าในมิติที่แตกต่างออกไป ผ่านการออกแบบกรอบอาคารด้านหน้าที่มีความน่าสนใจและเปิดมุมมองสู่ธรรมชาติให้มากที่สุดเท่าที่เป็นไปได้

วงกบไม้โดยสังเกต กับความพิเศษที่เกิดจากช่างและสถาปนิก

 “เราไปเจอวงกบไม้วางกองเรียงกันอยู่ในตลาดในอยุธยา ซึ่งเป็นวัสดุที่หาได้ง่ายในท้องถิ่นมีหลายขนาดและรูปแบบ เราสังเกตเห็นว่าหน้าตัดของมันมี Pattern ที่น่าสนใจ เลยอยากทดลองนำมาออกแบบในรูปแบบใหม่กับอาคาร” สถาปนิกเริ่มเล่าที่ไปที่มาของชิ้นส่วนแรกของบ้านที่จะนำมาถ่ายทอดในการรีโนเวทครั้งนี้ นั่นคือ “วงกบไม้” ซึ่งแน่นอนว่าความพิเศษในการนำรูปตัดและรูปด้านของวงกบที่เกิดจากการเรียงต่อกันอย่างไม่ได้ตั้งใจ มาถ่ายทอดส่วนต่างๆ ของอาคาร ไม่ว่าจะเป็นผนัง พื้น ฝ้า เคาท์เตอร์ ชั้นวางของ หรือเฟอร์นิเจอร์ โดยวิธีการในการประกอบชิ้นส่วนเหล่านี้ถูกคิดให้สื่อสารกับช่างพื้นถิ่น และในระหว่างการก่อสร้างสถาปนิกเลือกที่จะเก็บลวดลายและผิวสัมผัสของหน้าตัดวงกบไม้ที่เกิดจากใบเลื่อยวงเดือนไว้ให้ได้มากที่สุด เพราะเป็นภาษาที่เกิดขึ้นร่วมกันระหว่างสถาปนิกและช่างที่มีความเรียบง่ายไม่ซับซ้อน

ไดอะแกรมโมดูลของวงกบไม้ที่วางต่อกันจนเกิดเป็นลวดลาย
สถาปนิกเลือกใช้ไม้เต็ง ซึ่งเป็นประเภทไม้ที่นิยมนำมาทำวงกบ เพราะเป็นไม้เนื้อแข็งที่มีความแข็งแรงและทนต่อสภาพแวดล้อมได้ดี ใช้ได้ทั้งภายในและภายนอก

บริเวณชั้น 1 ด้านหน้าเราจะพบกับเคาท์เตอร์บาร์ที่โดดเด่นด้วย Pattern ของวงกบไม้ มีเส้นสายสถาปัตยกรรมที่เชื่อมต่อจากภายนอกสู่ภายในอาคาร ดึงดูดสายตาต่อผู้พบเห็น ภายในร้านยังมี Pattern ของวงกบไม้ในรูปแบบเดียวกันอีกหลายๆ จุด เช่น ผนังขนาดใหญ่ที่กั้นพื้นที่ระหว่างเคาท์เตอร์บาร์และที่นั่ง เพราะส่วนนี้เป็นเสาและช่องสำหรับงานระบบ จึงถูกออกแบบให้มีความหนาเท่ากับความกว้างของเคาท์เตอร์ เพื่อลดเหลี่ยมมุมที่ไม่ลงตัวและสร้างกริดไลน์ที่ทำให้พื้นที่ดูเรียบร้อยมากที่สุด

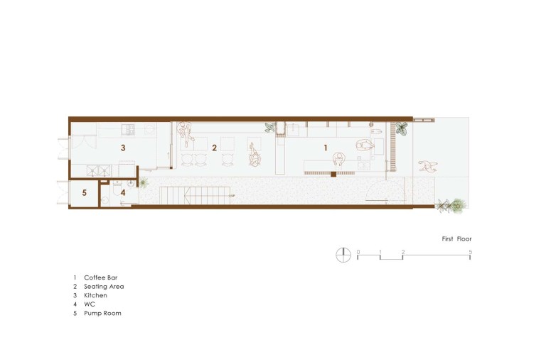
แปลนชั้น 1 Sonny Coffee & Juice cr: BodinChapa Architects
แปลนชั้น 2 Sonny Coffee & Juice cr: BodinChapa Architects

สร้างกรอบให้รอบระเบียง

ระเบียงไม้ขนาดใหญ่ชั้น 2 เป็นหัวใจสำคัญของการออกแบบ โดยมีแนวคิดมาจาก ระเบียงบ้าน ซึ่งเป็นชิ้นส่วนที่สองของความเป็นบ้านที่สถาปนิกเลือกมาสร้างพื้นที่ให้มีกลิ่นอายและความรู้สึกเหมือนชานบ้าน เราสามารถนั่งพักผ่อนพร้อมกับมองวิวธรรมชาติฝั่งตรงข้ามที่ร่มรื่นได้ โดยมีกรอบนำสายตา เหมือนภาพวาดสามมิติที่เป็นไม้ในรูปแบบเดียวกับวงกบ มีลักษณะเป็นกรอบสี่เหลี่ยม พื้นพุ่งออกไปในตำแหน่งของระเบียงเดิม ซึ่งทำหน้าที่เป็นกันสาดไปในตัว และมีการปรับระดับให้สูงขึ้นกว่าระดับพื้นชั้น 2เดิม เพื่อเน้นพื้นที่และเพิ่มความโปร่งให้กับพื้นที่ชั้นล่าง

ราวกันตกระเบียงถูกออกแบบให้มีลักษณะเป็นเส้นโค้ง เป็นความตั้งใจของสถาปนิกที่อยากให้มีเส้นสายตัดกับฟอร์มสี่เหลี่ยมของระเบียง นอกจากทำหน้าที่กั้นพื้นที่เพื่อความปลอดภัยในการใช้งานแล้ว ราวระเบียงนี้ก็ยังกลายเป็นโต๊ะบาร์แมชท์เข้ากับเก้าอี้ไม้ในระดับความสูงที่ถูกคิดมาแล้วอย่างพอดิบพอดี

ดีเทลและเส้นสายภายใต้ทิศทางเดียวกัน

ที่นั่งภายในชั้น 2 ถูกแบ่งออกเป็นสามส่วน ส่วนด้านหน้าบนระเบียง ด้านข้าง และส่วนด้านหลังที่มีที่นั่ง Built-in ติดกำแพง มีความสูงในระดับเดียวกับระเบียงที่ถูกยกขึ้น เพื่อให้เส้นสายการออกแบบเป็นไปในทิศทางเดียวกัน โดยเฟอร์นิเจอร์ลอยตัวภายในร้าน ส่วนใหญ่เป็นเฟอร์นิเจอร์ไม้แบบ custom made

บางชิ้นผลิตขึ้นจากส่วนประกอบจากวงกบไม้เช่นกัน อย่างโต๊ะวางกาแฟ ที่ขาโต๊ะทำมาจากวงกบไม้ส่วนท็อปโต๊ะเป็นอะคริลิคใสเพื่อโชว์ดีเทลการออกแบบ

สะท้อนภาพวัสดุด้วยวัตถุทรงสี่เหลี่ยม

เฟอร์นิเจอร์ลอยตัวชิ้นเดียวภายในชั้น 2 ที่ไม่มีส่วนประกอบของไม้คือ แท่นสแตนเลสเงาทรงสี่เหลี่ยม ถูกออกแบบให้เป็นเก้าอี้นั่งและประติมากรรม (sculpture) เพื่อสะท้อนภาพความเป็นไม้และชิ้นส่วนต่างๆ ซึ่งเป็นสิ่งที่สถาปนิกต้องการให้เห็น ในขณะเดียวกันถ้ามองในแง่ของวัสดุ การสะท้อนก็ทำให้พื้นที่ดูโล่งและกว้างมากยิ่งขึ้น

ขัดเกลาของเก่าและประกบของใหม่ ให้สะท้อนเอกลักษณ์

ในความหมายของการรีโนเวท แน่นอนว่าสถาปนิกก็ยังคงเก็บรักษาดีเทลที่น่าสนใจของอาคารเดิมไว้ เช่น อาร์คโค้งในชั้นแรก ตั้งแต่บริเวณด้านหน้าอาคารมาจนถึงพื้นที่ภายใน ถูกขัดเกลาใหม่ด้วยสีขาว และประกบเข้ากับวัสดุไม้ที่ทำให้การออกแบบดูน่าสนใจยิ่งขึ้น เป็นการอนุรักษ์รูปแบบของอาคารเก่าที่สะท้อนถึงเอกลักษณ์เดิมได้เป็นอย่างดี

อีกหนึ่งร่องรอยอาคารเก่าที่ถูกเก็บไว้ คือ ผนังอิฐที่อยู่ใต้หลังคา ซึ่งเกิดจากความบังเอิญเจอในระหว่างการรื้อถอนฝ้าเดิมออกเพื่อเพิ่มความโปร่งโล่งให้กับพื้นที่ สถาปนิกจึงเก็บผนังเก่าส่วนนี้ไว้และผสมผสานเข้ากับการออกแบบใหม่ เพิ่มพื้นที่ปลูกต้นไม้ภายใน พร้อมเปิดช่องแสงด้านบนให้บรรยากาศเป็นไปอย่างอบอุ่นแบบที่ตั้งใจไว้

เชื่อมรอยต่อระหว่างวัสดุ เพื่อระบุความเป็นหนึ่งเดียว

สิ่งหนึ่งที่เห็นได้ชัดเจนในเรื่องของวัสดุ นอกจากมีการจับคู่ไม้ในโทนสีที่เข้มและอ่อนผสมผสานสลับกันไปเพื่อเพิ่มมิติในการออกแบบแล้ว เรื่องรอยต่อระหว่างวัสดุก็เป็นสิ่งที่สถาปนิกให้ความสนใจไม่แพ้กัน ไม่ว่าจะเป็นส่วนกำแพงวงกบไม้ด้านหน้าที่ไหลต่อเนื่องจากด้านนอกเข้าสู่ด้านใน บวกกับหน้าต่างและประตูเป็นกระจกใสไร้วงกบ ราวกับว่าไม้ภายในและภายนอกเชื่อมต่อกันเป็นหนึ่งเดียว

รอยต่อระหว่างวัสดุของผนังด้านซ้าย เป็นอีกหนึ่งส่วนที่คอนทราสกันอย่างเห็นได้ชัด ตั้งแต่พื้นและกำแพงด้านหน้าไปจนถึงบันไดที่ถูกเปลี่ยนทิศทางใหม่ให้เหมาะกับฟังก์ชันของคาเฟ่มากขึ้น โดยวัสดุครึ่งล่าง คือเทอรอสโซ่สีส้มอ่อน ซึ่งเป็นวัสดุที่เห็นได้ทั่วไปตามบ้านทาวเฮาส์เก่า ให้ความรู้สึกอบอุ่นและเป็นวัสดุที่คุ้นเคยกับคนไทยมานาน ส่วนผนังครึ่งบนผนังปูนสีขาวฉาบเรียบธรรมดา แต่เมื่อตัดกับวัสดุปูนที่ไม่ผ่านการขัดและทำสีของคานและพื้นชั้นสองเดิม ก็ยิ่งเห็นได้ชัดเจนว่ารอยต่อระหว่างวัสดุนี้ทำให้เกิดเส้นสายทางสถาปัตยกรรมในทุกทิศทาง ถึงแม้จะดูเรียบง่ายแต่ก็สร้างมิติให้กับทาวน์เฮาส์หนึ่งคูหาได้อย่างน่าสนใจเลยทีเดียว

พื้นที่สำหรับทุกคน ภายใต้บรรยากาศอบอุ่นเป็นกันเอง

ชื่อร้าน “Sonny” ที่แปลว่าลูกชาย เป็นสิ่งที่มีความหมายกับครอบครัวของเจ้าของร้านมาก โดยการออกแบบพื้นที่ให้สอดคล้องกับเรื่องราวนั้นสถาปนิกมองว่า ระเบียงบ้านเป็นเหมือนพื้นที่วิ่งเล่นสำหรับเด็ก และเป็นพื้นที่ที่ครอบครัวมาใช้เวลาร่วมกัน ซึ่งตอบโจทย์ด้วยการสร้างบรรยากาศอบอุ่นเป็นกันเอง ต้อนรับคนทุกเพศทุกวัย บวกกับเมนูของทางร้านที่ไม่ได้มีแค่กาแฟ แต่มีน้ำผลไม้ที่ทุกคนสามารถทานได้ ทั้งหมดนี้จึงเป็นแนวคิดที่สอดคล้องกันระหว่างร้านและการออกแบบ

หลายครั้งที่เราแทบไม่เคยสังเกตดีเทลต่างๆ ของวัสดุหรือองค์ประกอบชิ้นส่วนของบ้านเลย เพราะสิ่งใกล้ตัวมักเป็นสิ่งที่มักถูกมองข้ามเสมอ แต่สำหรับโปรเจ็กต์รีโนเวทคาเฟ่ Sonny Coffee & Juice นี้ BodinChapa กลับสังเกตเห็นอีกมุมหนึ่งของวัสดุที่พบเจอจากในท้องถิ่นใกล้ๆ และนำมาสร้างมิติใหม่โดยเปลี่ยนวงกบธรรมดาๆ ให้กลายเป็นงานออกแบบที่สะท้อนความเป็นตัวเองอย่างเห็นได้ชัด ซึ่งเราเองก็เชื่อว่าคงมีอีกหลายๆ การสังเกตในโลกนี้ ที่เป็นจุดเริ่มต้นในการสร้างสรรค์สิ่งธรรมดานำมาพลิกแพลงใหม่ให้ไม่ธรรมดาและมีความสวยงามในแบบของตัวเองเหมือนดัง Sonny Coffee & Juice แห่งนี้เป็นอย่างแน่นอน

Architects : BodinChapa Architects
Area : 100 m²
Photographs : Rungkit Charoenwat

Writer
Picture of Janjitra Horwongsakul

Janjitra Horwongsakul

สถาปนิก ผู้หลงใหลในการเดินทางและสเปซคลีนๆบนภาพฟิล์ม อดีต'นักคิดคำถาม'ของปริศนาฟ้าแลบ ที่ผันตัวเองมาเป็น'นักเล่าความรู้(สึก)'ผ่านตัวหนังสือ

Discover more from Design Makes A Better Life.

Subscribe now to keep reading and get access to the full archive.

Continue reading