House Between the Wall
ปฏิสัมพันธ์ระหว่างที่ว่าง กำแพง และเรื่องราวการอยู่อาศัยภายใน

บ้านที่สมบูรณ์แบบอาจไม่ใช่บ้านที่มีขนาดใหญ่กว้างขวาง หรืออาจไม่ใช่บ้านที่สวยงาม โดดเด่น แต่เป็นบ้านที่ตอบรับความต้องการและแสดงถึงตัวตนของผู้อยู่อาศัยได้อย่างเต็มที่ House Between the Wall บ้านของสองคู่รักนักออกแบบอย่างคุณเอ-ธนัทเกียรติ จงเกรียงไกร และคุณกาญจน์-กนกกาญจน์ เฮงอุดมทรัพย์ ผู้ก่อตั้ง ANATOMY ARCHITECTURE + ATELIER เป็นตัวอย่างของบ้านที่ว่า โดยทั้งคู่เลือกเติมเต็มตัวตนภายใน ‘บ้านระหว่างกำแพง’ สุดเรียบง่ายหลังนี้ให้อบอุ่นและมีเสน่ห์ เป็นส่วนตัว และซ่อนรายละเอียดต่าง ๆ ที่บ่งบอกความเป็นตัวตนได้อย่างลงตัว

Between the Wall ‘ผนัง’ สร้างความเป็นส่วนตัว

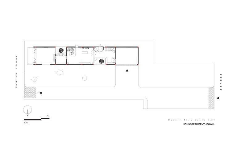
ด้วยบริบทของพื้นที่ซึ่งตั้งอยู่บนที่ดินของครอบครัวในลักษณะสี่เหลี่ยมผืนผ้าขนาด 324 ตารางวาที่ยาวถึง 80 เมตร รวมถึงมีถนนกว้าง 4 เมตรตัดผ่านเข้าไปถึงบ้านของครอบครัว ทำให้สองนักออกแบบจำเป็นต้องล่นระยะการวาง Planning เข้าไปอีก บ้านจึงเลี่ยงไม่ได้ที่จะอยู่ในลักษณะรูปทรงสี่เหลี่ยมผืนผ้ายาวขนานไปกับที่ดิน เมื่อมีข้อจำกัดดังนั้น ผู้ออกแบบจึงเลือกใช้ผนังกว้าง 6 เมตรเพียงสแปนเดียวในการออกแบบบ้านหลังนี้ ทำให้ตัวบ้านและเรื่องราวของการอยู่อาศัยถูกซ่อนเอาไว้ภายในเส้นยาวระหว่างกำแพงทั้งหมด เป็นที่มาของชื่อบ้าน House Between the Wall

House Between the Wall Master Plan

ในการวางเลย์เอาท์ ทั้งคู่ ซึ่งต่างก็ต้องการความเป็นส่วนตัวในการอยู่อาศัย จึงออกแบบแปลนในลักษณะยาวนี้ให้แบ่งออกเป็นสองโซนอย่างเรียบง่าย ชัดเจน โดยปีกด้านซ้ายจะเป็นของผู้อยู่อาศัยหลักซึ่งก็คือคุณเอและคุณกาญจน์ ส่วนปีกขวาของอาคารจะเป็นพื้นที่รองรับคุณแม่และแขกที่แวะเวียนมาเยี่ยมเป็นบางครา โดยที่ชั้นสองบริเวณห้องนอนจะไม่สามารถเดินเชื่อมถึงกันได้ ในขณะที่สามารถแชร์พื้นที่ส่วนรวมได้ในบางฟังก์ชัน เช่น พื้นที่รับประทานอาหาร หรือห้องครัว

House Between the Wall Plan
ภาพแสดงแนวคิดการออกแบบ

นอกจากนั้น ด้วยความที่หน้าบ้านเป็นทิศเหนือ ส่วนหลังบ้านเป็นทิศใต้ ผนังสองชิ้นนี้ จึงทำหน้าที่เป็นตัวบังแดด ช่วยบล็อกแสง และความร้อนที่เข้าสู่ภายในได้ส่วนหนึ่ง

เติมเต็มส่วนที่ขาด และเพิ่มความเป็นตัวเอง

การจัดวางฟังก์ชันที่เรียบง่ายนั้น ยังเป็นการเติมเต็มส่วนที่ขาดจากการเคยอยู่อาศัยภายในคอนโดมิเนียม โดยหากเราดูจากแปลน จะเห็นว่าบริเวณทางเข้าและโถงทางเข้าหลักจะมีห้องน้ำ ห้อง Laundry ที่ทั้งคู่เติมเข้ามาอำนวยความสะดวกในการอยู่อาศัย เพื่อให้ไม่ต้องแย่งกันใช้ห้องน้ำในเวลาเร่งด่วนที่ต้องออกไปทำงานพร้อมกัน ซึ่งพื้นที่ทั้งหมดตรงนี้จะถูกซ่อนอยู่ด้านหลังบานเปิด Hidden Wall ที่กลืนไปกับผนัง ทำให้บ้านดูเรียบง่ายและคลีนจนเราแทบไม่เห็นว่ามีฟังก์ชันต่าง ๆ ซ่อนอยู่

ถัดไปอีกนิดเป็นประตูไม้อัดบานหมุนที่ทำขึ้นพิเศษ สามารถเปิด-ปิดได้กว้างเพื่อให้พื้นที่โซนนี้กลายเป็น Open Space เมื่อเปิดถึงกัน หรือจะแยกส่วนชัดเจนเมื่อปิดก็ทำได้ตามต้องการ นอกจากนั้น ประตูไม้นี้ ยังทำหน้าที่เป็นพาร์ทิชันในการกั้นส่วนที่กำลังจะเข้าสู่บ้านหลักอย่าง ห้องครัว Pantry และ Dining Area

ด้วยความที่คุณเอเป็นอินทีเรียดีไซน์ ส่วนคุณกาญจน์เป็นโปรดักต์ดีไซน์เนอร์ ของใช้ในบ้านแต่ชิ้นจึงผ่านการเลือกสรร และเป็นของสะสมที่ทั้งคู่รัก สิ่งต่าง ๆ ที่นำมาตกแต่งจึงเป็นไอคอนิกในกลิ่นอาย Mid Century Modern ที่ส่งเสริมให้สเปซ ที่ว่างสวยงามลงตัวไปพร้อม ๆ กัน อย่างเช่น ครัว Pantry หรือ Dining Area เองที่ออกแบบตามการใช้งานของทั้งคู่ โดยครัวจะประกอบไปด้วยตู้เคาน์เตอร์ไม้ที่ออกแบบให้เป็นท็อปลายหมากรุกเพื่อให้ได้กลิ่นอายของงานคราฟต์แบบศิลปะ และยังมีครัวไอซ์แลนด์ขนาดใหญ่อยู่บริเวณใจกลางตามไลฟ์สไตล์และการใช้งาน ส่วนพื้นที่นั่งรับประทานอาหารมี 5 ที่นั่ง ดิสเพลย์ด้วยชั้นวางของและ Sculpture ที่ทั้งคุณเอและคุณกาญจน์สะสมไว้ รวมถึงเฟอร์นิเจอร์เก้าอี้ที่ไม่ซ้ำแบบกันเลยสักตัว

ไม่ใกล้ไม่ไกล เป็น Spiral Staircase หรือบันไดวนขึ้นสู่ห้องมาสเตอร์เบดรูม ซึ่งเป็นโครงสร้างสีขาวที่สองดีไซน์เนอร์ตั้งใจให้เป็นไฮท์ไลท์ของบ้าน ประกอบกับมีอาร์มแชร์จาก  B&B Italia’s Iconic UP Celebrates 50 Years เอาไว้เป็นกิมมิกสำหรับแวะนั่งเล่น นั่งพักและยังเติมเต็มให้พื้นที่นี้ดูสมบูรณ์มากยิ่งขึ้น ด้วยของตกแต่งดีไซน์และแฟชั่นที่ทั้งคู่ต่างหลงใหล และสะสม ลักษณะงานดีไซน์ อินทีเรียของบ้าน จึงถูกออกแบบให้คล้ายกับแกลลอรี่โชว์ศิลปะ ผ่านการออกแบบระนาบทางสถาปัตยกรรมให้เรียบง่าย มินิมอลที่สุด รวมถึงการออกแบบแสงสว่างที่ส่องไปยังตัววัตถุที่ต้องการสื่อสารโดยตรง ต่างจากบ้านทั่ว ๆ ไป ที่วางตามกริดไลน์ในแบบกระจายตัว

ถัดจากบันไดวน หากเราไม่ขึ้นชั้นสอง จะเจอกับห้องทำงานซึ่งดีไซน์เป็นโต๊ะสองที่นั่ง ซึ่งสามารถมองออกไปเห็นต้นไม้ และมีกระจกบานเปิดที่สามารถเลือกเปิด-ปิด พร้อมรับลมในวันอากาศดี ถัดไปยังห้องสุดท้าย เป็น Living Space ซึ่งความพิเศษอยู่ที่การดีไซน์ Sofa Island วางที่ใจกลางห้อง และมีระนาบผนังของห้องที่ไม่เหมือนกัน เพื่อให้ได้บรรยากาศที่แตกต่าง และสร้างมุมมองได้หลายทิศทาง ด้านหนึ่งเป็นผนังทึบสำหรับทีวี ด้านถัดมาเป็นผนังของทำงาน ซึ่งออกแบบให้เป็นบล็อกแก้วที่กรองแสงและยังเห็นต้นไม้เลือนราง เพื่อให้พื้นที่ยังมีความอ่อนโยนและไม่แข็งจนเกินไป ส่วนผนังอีกด้านจะเป็นที่นั่งริมหน้าต่างสำหรับอ่านหนังสือ ชมวิวพักสายตา

ย้อนกลับมาขึ้นบันไดสู่พื้นที่ชั้นสอง เราจะพบกับ Rooftop Space ซึ่งเป็นการใช้งานพื้นที่ด้านบนของ Living Space ให้คุ้มค่า โดยคุณเอและคุณกาณจน์ เล่าว่ากิจกรรมส่วนมากจะเอาไว้ทำช่วงหน้าหนาว อย่างการเอาเสื่อมาปูนั่งคุยกัน หรือนั่งรับประทานอาหารกับคุณแม่ ซึ่งผนังที่เกิดขึ้นก็ช่วยกั้นวิวจากบ้านโครงการที่อยู่ด้านหลัง ไม่ให้มองเข้ามาเห็นกิจกรรมที่เกิดขึ้นภายใน

สำหรับห้องนอนมาสเตอร์ ด้วยความที่ทั้งคู่เป็นคนที่มีเสื้อผ้าค่อนข้างเยอะ ผนังด้านหนึ่งจึงออกแบบให้เป็น Walkin-closet ทั้งหมดตั้งแต่พื้นจรดเพดาน ซ่อนห้องน้ำและพื้นที่แต่งตัวเอาไว้ภายใน โดยในส่วนของห้องน้ำจะไม่มีประตู เพื่อให้สามารถเปิดรับแอร์บางส่วนที่ไหลจากห้องนอนได้ การออกแบบภายในห้องน้ำ ยังแบ่งอุปกรณ์ทั้งหมดออกเป็นสองเซ็ต เพื่อสะดวกต่อการใช้งาน อีกทั้งยังมีการออกแบบซ่อนเรื่องราวของดีไซน์ไว้อย่างเคาน์เตอร์หินอ่อนสีแดง

“ตอนที่เราออกแบบภายในและภายนอก เราคิดพร้อมกันเลยตั้งแต่แรก อย่างเช่นห้องน้ำ เราเจอปัญหาตอนอยู่คอนโดที่ต้องแย่งกันใช้ เดินชนกัน เราเลยจัดห้องน้ำให้เป็นทางเดินซ้ายขวา แยกกัน มีฝักบัวแบบ His and Her ที่สามารถใช้พร้อมกันได้ บ้านหลังนี้ออกแบบเพื่อแก้จากประสบการณ์การอยู่อาศัยที่เราเคยพบเจอมาให้ได้ฟังชั่นที่เหมาะสมทั้งภายในและภายนอก” คุณกาญจน์ เล่า

ต้นไม้ และความร่มรื่นที่ต้องใช้ให้คุ้มค่า

เชื่อว่าคุณเอและคุณกาญจน์ ก็มีไลฟ์สไตล์คล้ายกับใครหลายคน นั่นคือ ต้องการมีต้นไม้ในบ้านเพื่อสร้างความร่มรื่น แต่ไม่ค่อยมีเวลาดูแล ดังนั้นการออกแบบพื้นที่สำหรับต้นไม้จึงต้องคุ้มค่า และใช้เวลาดูแลน้อยที่สุด การวางตำแหน่งต้นไม้ของบ้านหลังนี้จึงมีแค่สองจุด โดยผู้ออกแบบพยายามเจาะช่องเปิดที่สัมพันธ์กัน ทำให้ไม่ว่าจะอยู่ในพื้นที่ใดก็ตามในบ้านก็สามารถมองเห็นต้นไม้ได้ทั้งหมด อีกทั้งช่องแสงที่เจาะตามมุมมองต้นไม้ยังทำหน้าที่กระจายแสงทั่วบ้าน

“ทางเข้าหน้าบ้านหลักจะมีต้นไม้หนึ่งต้น อีกต้นจะอยู่ที่ห้องทำงาน เนื่องจากแปลนมันเป็นตัว U ครอบต้นไม้ ทำให้มันจะเห็นสองต้นนี้จากทุกมุม ไม่ว่าจะอยู่ชั้นหนึ่งหรือชั้นสอง นั่นคือแนวคิดที่เราตั้งใช้ต้นไม้จำนวนน้อยที่มีอยู่ ให้ได้เยอะที่สุดในการมองเห็น” คุณเอเล่า

“เนื่องจากเราเป็นอินทีเรียดีไซน์เนอร์ที่ออกแบบงานสถาปัตยกรรมด้วย ส่วนมากคอนเซ็ปต์ เราจะออกแบบจากข้างในก่อน คือ เรานึกฟังก์ชันทั้งหมดก่อน แล้วค่อยมาดูดีเทลฟังก์ชันเหล่านั้น การวาง Positioning ของฟังก์ชัน หรือแม้แต่ของตกแต่ง เราต้องคอยจินตนาการว่าของพวกนี้ถ้าใช้งานจริง ๆ มันจะออกมาประมาณไหน รวมถึงองค์ประกอบเรื่องแสงที่เราคิดไว้แล้ว เราอยากให้องค์ประกอบทุกส่วนลงตัว ตรงตามเรื่องราวที่เราต้องการ”

เรียกได้ว่า House Between the Wall คือส่วนผสมที่ลงตัวระหว่างงานออกแบบภายนอกและภายใน และยังเป็นบ้านที่บ่งบอกตัวตนของคู่รักนักออกแบบได้อย่างลงตัว เพราะในทุกองค์ประกอบตั้งแต่ระนาบทางสถาปัตยกรรม ไปจนถึงปัจจัยธรรมชาติอย่างแสง ลม และธรรมชาติ หรือแม้กระทั่งของตกแต่ง ของสะสมทางด้านดีไซน์ ทั้งหมดล้วนบรรจุลงในที่ว่างระหว่าง ‘Wall’ ได้อย่างสมบูรณ์แบบ ซึ่งคุณเอและคุณกาณจน์ ก็เล่าเสริมว่า แขกไปใครมาก็ต่างบอกเป็นเสียงเดียวกันว่า นี่คือบ้านนี่เหมาะสมและบ่งบอกถึงความเป็นพวกเขาได้จริงๆ

Location: Srinakarin, Bangkok
Building Area: 400 sq.m
Architect & Interior designer : AA+A Architect co.,ltd
Design Team: ธนัทเกียรติ จงเกรียงไกร / กนกกาญจน์ เฮงอุดมทรัพย์ / ศุภฤกษ์ รอดนิกร
Landscape designer:  AA+A Architect co.,ltd
Photographer: VARP Photo

Writer
Picture of Rangsima Arunthanavut

Rangsima Arunthanavut

Landscape Architect ที่เชื่อว่าแรงบันดาลใจในงานออกแบบ สามารถเกิดขึ้นได้จากทุกสิ่งรอบตัว และการบอกเล่าเรื่องราวการออกแบบผ่าน 'ตัวอักษร' ทำให้งานออกแบบที่ดี 'มีตัวตน' ขึ้นมาบนโลกใบนี้

Discover more from Design Makes A Better Life.

Subscribe now to keep reading and get access to the full archive.

Continue reading