Kaomai Tea Barn ร้านชาที่เสิร์ฟกลิ่นอายของโรงบ่มใบยาสูบ

อาคารสี่เหลี่ยมที่ปกคลุมด้วยหลังคาสังกะสีเก่าๆ สูงชะลูดขึ้นไป แข่งกับต้นไม้น้อยใหญ่ในพื้นที่สีเขียวที่แน่นขนัดจนแทบเรียกได้ว่าเป็นป่า แม้จะดูหน้าตาคล้ายกัน แต่หากสังเกตดีๆ จะเห็นถึงความแตกต่างของวัสดุ บ้างก็ทำจากไม้สานฉาบปูนหมัก บ้างก็ทำจากอิฐมอญทั้งหลัง บ้างก็ทำจากคอนกรีตบล็อก แต่ละหลังเรียงรายเกาะกันบนถนนเล็กๆ ซึ่งบรรยากาศเหล่านี้เองที่เป็นภาพจำของ ‘Kaomai Estate 1955’ โครงการออกแบบเชิงอนุรักษ์ที่เปลี่ยนโรงบ่มใบยาสูบเก่าให้กลายมาเป็น Community space ของคนยุคใหม่

และวันนี้เราจะพาทุกคนมานั่งจิบชาหอมๆ ผ่อนคลายอารมณ์กันที่ร้านชาแห่งใหม่ในโครงการ อย่าง ‘Kaomai Tea Barn’ (หรือที่อ่านว่า เก๊าไม้ ที บาร์น) พร้อมกับไปทำความรู้จักที่มาของร้านชาแห่งนี้จากคุณทริส-พชรพรรณ รัตนานคร หนึ่งในผู้ก่อตั้ง PAVA architects ผู้ออกแบบโครงการ

จากโรงบ่มใบยาสูบที่ถูกเปลี่ยนผ่านตามกาลเวลา

หากจะเล่าที่มาคงต้องย้อนไปที่จุดแรกเริ่ม เดิมพื้นที่นี้ถูกเปลี่ยนผ่านมาแล้ว 3 รุ่น โดยเริ่มจากการเป็นเพียงโรงบ่มใบยาสูบในยุคแรก เมื่อรุ่นสองเข้ามาจึงค่อยๆ มีการปลูกเพาะพันธุ์ต้นไม้และทำพื้นที่เกษตรควบคู่กับโรงบ่มใบยาสูบ ทว่าเมื่อความนิยมของใบยาสูบลดลง จึงส่งผลให้เตาเผาโรงบ่มถูกปิดลงอย่างถาวร แล้วนำมาสู่การรีโนเวทเป็น ‘Kaomai Lanna’ รีสอร์ทที่ใช้ไม้เลื้อยพรางตัวไปกับธรรมชาติอย่างแนบเนียน และเมื่อพื้นที่นี้ถูกส่งผ่านมายังรุ่นปัจจุบัน เจ้าของโครงการมีความตั้งใจอยากให้พื้นที่นี้กลับไปเป็นศูนย์รวมผู้คนเหมือนในอดีตได้อีกครั้ง จึงเกิดเป็นโครงการ ‘Kaomai Estate 1955’ Community space ท่ามกลางธรรมชาติ ซึ่งปัจจุบันประกอบด้วยพิพิธภัณฑ์, ร้านกาแฟ, Amphitheater หรือลานจัดงานกลางแจ้ง และร้านชาที่เพิ่งเปิดบริการไปเมื่อเร็วๆนี้

“ทาง PAVA เราอยู่เก็บโปรเจกต์มานาน เราดูตั้งแต่ Master plan ช่วยกันวางแผนกับเจ้าของว่าพื้นที่นี้จะพัฒนาไปในทางไหน พอเจ้าของมีไอเดียให้ทาง PAVA ทำมิวเซียม เราก็มองว่าพื้นที่ทั้งหมดตรงนั้นมันมีคุณค่าในตัวเองเด่นชัดมากๆ เราเลยไม่ได้มองว่ามิวเซียมจะถูกจำกัดอยู่ในแค่ตึกใดตึกหนึ่ง จึงเป็นที่มาของแนวคิด The site as a museum” – คุณทริสเล่าย้อนถึงจุดเริ่มต้นของโครงการ

นอกจากตัวอาคารเก่าแล้ว จุดเด่นอีกอย่างของที่นี่คือ ‘ต้นไม้ใหญ่’ ที่เจ้าของดูแลเป็นอย่างดี ทำให้ต้นไม้ที่นี่เติบโตอย่างเขียวชะอุ่มอุดมสมบูรณ์ ซึ่งหาได้ยากในปัจจุบัน ดังนั้นสถาปนิกจึงให้ความสำคัญกับการอนุรักษ์ประวัติศาตร์ควบคู่กับธรรมชาติเป็นอย่างมาก ไม่ว่าจะมีการปรับเปลี่ยนหรือเพิ่มเติมฟังก์ชันการใช้งานใดๆ แต่คุณค่าของทั้งสองสิ่งนี้จะต้องยังคงอยู่ 

ในการออกแบบ Master plan ทีมสถาปนิกจึงได้วิเคราะห์พื้นที่อย่างละเอียด มีการตรวจเช็คสภาพอาคารทุกหลัง ว่าหลังไหนควรเก็บอนุรักษ์ไว้เหมือนเดิม หลังไหนสามารถปรับเปลี่ยนฟังก์ชันการใช้งานได้ ในแง่ของธรรมชาติเองก็มีการทำงานร่วมกับทีมที่ปรึกษาด้านต้นไม้ใหญ่และรุกขกรเพื่อตรวจสุขภาพต้นไม้และหาหนทางที่จะสามารถรักษาต้นไม้ให้แข็งแรงได้ต่อไป แม้ว่าจะมีผู้คนเข้ามาใช้งานในพื้นที่มากขึ้นก็ตาม

นำมาสู่การออกแบบร้านชาที่คงกลิ่นอายเดิมเอาไว้

เพื่อดำเนินโครงการให้ไปต่อได้ในอนาคต จึงต้องมีการเพิ่มพื้นที่ดึงดูดให้ผู้คนเข้ามาเรียนรู้และสัมผัส Sense of Place ของดินแดนเก๊าไม้แห่งนี้ และ ‘Kaomai Tea Barn’ ก็เป็นหนึ่งในจิ๊กซอว์ที่มาเติมเต็มภาพที่วาดไว้ให้สมบูรณ์ยิ่งขึ้น

“คอนเซ็ปต์ในการออกแบบ คือ เราอยากคงคุณค่าความแท้ของโรงบ่มใบยาสูบไว้ ตอนเราเข้าไปในอาคารครั้งแรกแล้วเงยหน้าขึ้นไป ได้เห็นแสงสลัวๆ ที่ส่องลงมาจากช่องแสงช่วงบนอาคารที่สูงชะลูด แล้วเราประทับใจกับโมเมนต์นั้นมาก ก็เลยอยากเก็บความรู้สึกนั้นไว้ในโรงชา”

จากความตั้งใจของสถาปนิกที่อยากเก็บคุณค่าของ Sense of Place ที่เป็นเอกลักษณ์ของโรงบ่มใบยาสูบเอาไว้ เราจึงยังคงเห็นเสน่ห์ของแมสตัวอาคารโรงบ่มหลังคาจั่วขนาด 6×6 เหมือนเดิมแทบทุกอย่าง ทั้ง Volume ความสูง, ผนังอิฐ, ประตูและหลังคาสังกะสี, โครงสร้างคอนกรีตเสริมเหล็ก, โครงสร้างหลังคาไม้ และช่องเสียบไม้ราวยา โดยโครงสร้างที่เห็นทั้งหมดมาจากเทคนิคการก่อสร้างแบบ Reconstruction ซึ่งเป็นการสร้างใหม่ให้กลับมาเหมือนเดิม เนื่องจากว่าอาคารผุพังไปมากตามกาลเวลา เมื่อเทียบกับอาคารโรงบ่ม ‘Kaomai Museum’ ที่ค่อนข้างสมบูรณ์ 

และที่สำคัญอาคารเดิมนั้นถูกออกแบบมาให้รองรับน้ำหนักของไม้ราวและตัวใบยาสูบเพียงเท่านั้น โครงสร้างเสาคอนกรีตเสริมเหล็กก็จะเล็กๆ บางๆ ผนังก็ไม่ได้รับน้ำหนักมาก แต่เมื่อมีการปรับเปลี่ยนฟังก์ชันให้รองรับผู้ใช้งานได้มากขึ้น จึงต้องมีการทำฐากรากขึ้นมาใหม่ เสริมโครงสร้างเหล็กเข้าไปข้างในช่วยรับน้ำหนักได้เต็มที่ ในขณะเดียวกันก็พยายามทำให้โครงสร้างเดิมมีขนาดเท่าเดิม

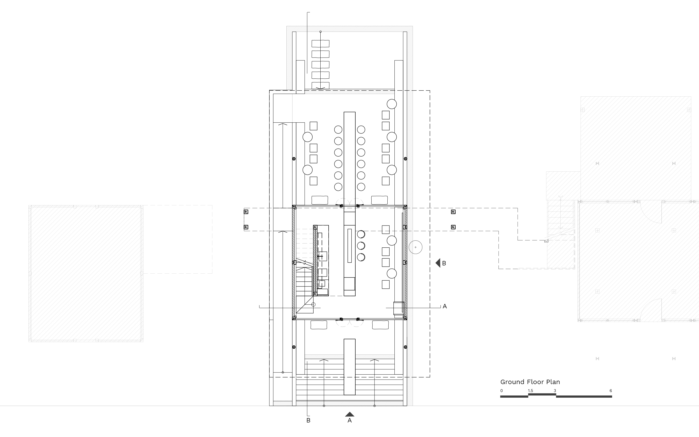
การเปิดมิติมุมมองใหม่ในสเปซเดิม

‘Sunken Space’ เป็นองค์ประกอบสำคัญในการสร้างมิติของสเปซให้ลุ่มลึกกว่าเดิม ช่วยขับเน้น Volume ความสูงตัวโรงบ่มใบยาสูงดูชะลูดขึ้นไปอีก และ Sunken space เองยังทำหน้าที่เชื่อมต่อสเปซจากถนน Kaomai Avenue ที่มีทิวโรงบ่มตลอดแนว ไปยัง Amphitheater เวิ้งตรงกลางซึ่งเป็นการเชื่อมต่อทั้งในเชิงการเข้าถึงและธรรมชาติ 

เมื่อหย่อนกายนั่งดื่มชาตรงที่นั่ง Sunken space ข้างนอก เราก็จะเห็นมุมมองธรรมชาติรอบตัวที่เปลี่ยนไป ซึ่งเกิดจากความตั้งใจของสถาปนิกที่ออกแบบกำแพงกันดินคอนกรีตให้เป็นที่นั่งในตัว เพื่อให้ตัวผู้ใช้งานได้อยู่ใกล้กับระดับดินมากกว่าปกติ ทำให้รู้สึกใกล้ชิดกับธรรมชาติมากขึ้น ราวกับเน้นย้ำถึงการอยู่ร่วมกับธรรมชาติอย่างถ่อมตน

หากมองกลับไปยังอาคารเราจะเห็นว่าสเปซภายในถูกออกแบบมาอย่างเรียบง่าย ในชั้นแรกมีเพียงแค่กลุ่มโต๊ะเก้าอี้เล็กๆ จับคู่กับม้านั่งติดผนัง เคาน์เตอร์ และชั้นวางโหลใบชาที่อยู่ด้านหลังเพียงเท่านั้น แต่ในความเรียบง่ายนี้กลับมีดีเทลซ่อนความหมายเอาไว้มากมาย อย่างเคาน์เตอร์ที่ถูกออกแบบให้เป็นจุดชงชาไปในตัว โดยมีช่องเทน้ำชาตรงกลางที่เชื่อมต่อกับรางน้ำใต้เคาน์เตอร์ด้านล่าง ทำให้เราสามารถนั่งจิบชาพลางชมวิธีการชงชาแต่ละขั้นตอนอย่างละเมียดละไม และความเงาของวัสดุท็อปเคาน์เตอร์ยังช่วยสะท้อนบรรยากาศภายในโรงบ่มใบยาสูบและธรรมชาติรอบตัวเรา

เมื่อขึ้นไปยังสเปซชั้นลอยจะพบกับโต๊ะดื่มชาแบบนั่งพื้น ซึ่งบรรยากาศจะดูสงบนิ่งและมีความส่วนตัวมากกว่าชั้นล่าง ถึงแม้สเปซร้านชาจะไม่กว้างมากนัก แต่สถาปนิกก็ตั้งใจออกแบบให้บรรยากาศการนั่งดื่มชาในแต่ละมุมไม่เหมือนกัน

อิฐ – ความงามดั้งเดิมของยุคเก่า

‘อิฐ’ ถือเป็นวัสดุเจ้าถิ่นของโรงบ่มใบยาสูบแห่งนี้ สถาปนิกเลยเลือกที่จะเก็บของเดิมเอาไว้ทั้งหมด ซึ่งอิฐเหล่านี้ไม่สะท้อนเพียงแค่ประวัติศาสตร์ของโรงบ่มใบยาสูบในรุ่นสอง แต่ยังสะท้อนถึงความทุ่มเทของสถาปนิกและช่างฝีมือที่ร่วมมือกันรักษาคุณค่าของสถาปัตยกรรมเอาไว้

“ก่อนที่เราจะรื้ออาคาร ทางทีมไปวัดทุก Dimension อย่างละเอียด ดูว่าลักษณะการก่อผนัง 1 เซ็ตมีอิฐกี่ก้อน ปูนก่อขนาดเท่าไหร่ หลังจากนั้นช่างต้องค่อยๆ กระเทาะเอาอิฐออกมาแยกเป็นเซ็ตแล้วทำสัญลักษณ์กำกับไว้เพื่อที่จะได้ทำใหม่ให้เหมือนเดิมมากที่สุด อิฐที่เหลือจากผนังช่วงล่างที่ถูกเอาออกก็นำมาทำเป็นฐานเคาน์เตอร์ที่เราเห็นกัน” – คุณทริสเล่าถึงขั้นตอนการเก็บรักษาอิฐเดิม

เหล็ก – ตัวแทนของวัสดุยุคใหม่

จากโจทย์ที่เจ้าของต้องการให้พื้นที่นี้สามารถรองรับคนได้จำนวนมาก ทางสถาปนิกจึงมองว่า ‘เหล็ก’ สามารถตอบโจทย์กับพื้นที่นี้ เพราะเหล็กมีความทนทาน แข็งแรง สามารถรองรับการเกิดแผ่นดินไหว ขณะเดียวกันก็ไม่ได้ดูหนาเทอะทะจนบดบังคุณค่าของอาคารเดิม อีกทั้งยังดูแลง่าย จึงถูกใช้เป็นวัสดุสำคัญรองลงมาจากอิฐ 

นอกจากตัวโครงสร้างแล้ว เหล็กยังถูกออกแบบให้อยู่ในองค์ประกอบต่างๆ อย่างระเบียงชั้นสองที่ทำหน้าที่เป็นทั้งสเปซจัดอีเวนต์ของชั้นบนและเป็นหลังคาให้กับที่นั่ง Sunken space ชั้นล่าง ทั้งพื้นระเบียงและราวกันตกล้วนทำมาจากเหล็ก ด้วยความบางของพื้นเหล็กนั้นทำให้รูปด้านแมสอาคารไม่ถูกตัดขาดออกจากกัน แถมยังขับเน้นให้เห็นความ Contrast ระหว่างอิฐและกระจกชัดเจนยิ่งขึ้น ในส่วนราวกันตกนั้นสถาปนิกก็ได้ออกแบบให้มีท็อปบาร์เล็กๆ ผสานเข้าไปในดีไซน์ สร้างบรรยากาศการนั่งดื่มชาพร้อมกับรับลมเอื่อยๆ เคล้าแสงแดดที่ส่องลอดผ่านช่องว่างเรือนยอดต้นไม้

ไม้  วัสดุสะท้อนคุณค่าของท้องถิ่น

งานไม้ของที่นี่หากจะพูดว่ามีชิ้นเดียวในโลกก็คงไม่เกินจริงนัก เพราะไม่ว่าจะเป็นม้านั่ง โต๊ะ เก้าอี้ล้วนเป็นงานฝีมือของช่างในท้องถิ่น ไม้ที่ใช้ส่วนใหญ่ก็เป็นไม้เก่าในโครงการ ดังนั้นเราจะเห็นว่าเฟอร์นิเจอร์บางชิ้นถูกจำกัดขนาดเอาไว้ ซึ่งสถาปนิกเองก็ได้ออกแบบ และมองว่าการใช้วัสดุที่หาง่ายในท้องถิ่นก็เป็นเสน่ห์อย่างหนึ่งของโครงการ เพราะตัวโรงบ่มเองก็ถูกสร้างด้วยวัสดุที่หาง่ายในแต่ละยุคเช่นกัน เราจึงเห็นว่าแม้อาคารจะมีรูปร่างคล้ายกันแต่วัสดุที่ใช้ในบางหลังอาจไม่เหมือนกัน

กระจก  วัสดุที่บอกเล่าเรื่องราวของช่องว่าง

สถาปนิกเล่าว่าการบ่มใบยาสูบต้องควบคุมความร้อนข้างใน ดังนั้นประตูเดิมของโรงบ่มใบยาสูบจึงมีเพียงแค่ประตูสังกะสีบานเล็กๆ เท่านั้น เมื่อมีการปรับฟังก์ชันมาเป็นร้านชา จึงเลือกเจาะผนังช่วงล่างบางส่วนออกเพื่อเพิ่มขนาดพื้นที่ทางเข้าและโอบรับแสงธรรมชาติเข้ามา โดยใช้กระจกเต็มบานเป็นตัวสื่อสารบรรยากาศระหว่างภายในและภายนอกอาคาร รวมถึงสามารถมองทะลุผ่านไปยังอีกฝั่งได้ และที่น่าสนใจคือผืนกระจกที่เพิ่มมาใหม่นี้กลับช่วยเน้นประตูสังกะสีของเก่าให้ดูเด่นชัดขึ้นกว่าเดิม

และหากมองด้านข้างของอาคาร เราจะพบกับจะช่องแสงเล็กๆ เรียงรายกันบนผนัง และนั่นก็คือช่องเสียบไม้ราวยาเดิมที่ถูกขยายขนาดเพื่อออกแบบให้สามารถมองเห็นสเปซได้จากข้างนอกแต่ในขณะเดียวกันก็ยังเคารพคุณค่าเดิมเอาไว้ สถาปนิกจึงออกแบบช่องแสง 2 ขนาด โดยช่องด้านล่างจะใหญ่กว่าช่องด้านบนซึ่งมีขนาดใกล้เคียงกับของเดิม

การออกแบบแสงที่พาเราย้อนเวลาไปในอดีต

แสงแดงๆ ที่ลอดออกมาจากช่องเสียบไม้ราวยาตัดกับท้องฟ้ายามโพล้เพล้ เป็นอีกหนึ่งเสน่ห์ของโรงบ่มใบยาสูบที่หาดูไม่ได้แล้วในยุคนี้ แต่ทางทีมสถาปนิกก็ได้ฟื้นบรรยากาศนี้คืนกลับมาในรูปแบบ ‘Lighting Design’ ของ Kaomai Tea Barn ให้เราได้สัมผัสกัน

“เดิมพื้นที่เก๊าไม้ค่อนข้างมืด แต่พอมี Lighting เข้ามาก็ทำให้บรรยากาศน่านั่งมากขึ้น ซึ่งเราได้รับแรงบันดาลใจจากแสงไฟจากการบ่มใบยาสูบ และที่สำคัญคือเราพยายามซ่อนไม่ให้เห็นตัวหลอดไฟ เพื่อให้อาคารมีความ Glow ในตัวเอง แล้วเราก็ใช้แสงนี้ในการไล้ผนังอิฐ ส่งเสริมให้อิฐดูมีมิติมากขึ้น”

จากที่สถาปนิกเล่ามา เราจะเห็นว่าหลอดไฟแทบทั้งหมดถูกซ่อนเอาไว้ตามใต้เคาน์เตอร์ ม้านั่ง ชั้นวาง และผนัง มีเพียงโคมไฟแท่งไม้ที่ห้อยลงมาในชั้นสองเท่านั้นที่ถูกโชว์ให้เห็น ซึ่งสถาปนิกได้แรงบันดาลใจจากไม้โรงเลื่อยที่ใช้ในการช่วยยึดไม้ราวยา นำมาออกแบบใหม่โดยใช้ไม้ขนาดใกล้เคียงเดิมแล้วซ่อนไฟเข้าไปเป็นดาวน์ไลท์ให้พื้นที่นั่งด้านบน

นอกจากดีไซน์การออกแบบที่กล่าวถึง ยังมีดีเทลต่างๆ ที่สถาปนิกตั้งใจออกแบบในงานนี้ ไม่ว่าจะเป็นการปรับหลังคาให้มีเลเยอร์ 2 ชั้นพร้อมฉนวนเพื่อลดปริมาณความร้อนที่เข้ามาสู่ตัวอาคาร การออกแบบทางลาดและซ่อนรางระบายน้ำและถังเก็บน้ำใน Sunken space และสะพานคอนกรีตที่เป็นตัวเชื่อมระหว่างร้านกาแฟ ร้านชาและโรงบ่มใบยาสูบหลังอื่นเข้าไว้ด้วยกัน ในขณะเดียวกันสะพานนี้ก็ทำหน้าที่เป็นตัวเก็บงานระบบอย่างรางสายไฟและรางท่อเครื่องปรับอากาศ

ความประทับใจและบทเรียนที่ได้จากโรงบ่มใบยาสูบ

ความประทับใจในการออกแบบ Kaomai Tea Barn แห่งนี้คืออะไร ?

“เราประทับใจที่ผลลัพธ์สุดท้ายออกมามันยังรักษาความแท้เอาไว้ได้ ถึงแม้จะเป็นการ Reconstruction ก็ตาม เพราะเราตั้งใจเก็บรักษาไว้ให้คนรุ่นหลังได้เรียนรู้ ในขณะเดียวกันเราก็ไม่อยากให้คุณค่ามันตายไปกับยุคสมัย อยากให้คนรุ่นใหม่สามารถจับต้องได้ และเจ้าของเค้าตั้งใจให้พื้นที่นี้สามารถสร้างงานให้คนในท้องถิ่น อย่างชา ข้าว ดอกไม้ พืชพรรณต่างๆ ก็มาจากพื้นที่เพาะปลูกตรงนั้น งานฝีมือในงานออกแบบก็มาจากช่างฝีมือในพื้นที่มาช่วยกันทำ เรามองว่าเป็นอีกหนึ่งวิธีช่วยชุบชีวิตให้ชุมชนได้”

ช่วยเล่า ‘การอนุรักษ์คุณค่าของพื้นที่’ ในมุมมองของ PAVA architects ได้ไหม ?

“แน่นอนว่าอะไรที่เก็บได้ เราก็อยากให้เก็บ เรารู้สึกว่ามันเป็นความงามตามกาลเวลาที่ไม่สามารถหาทดแทนได้ แต่ก็ไม่ได้ฝืนการพัฒนาไปซะทีเดียว การประยุกต์เพื่อให้สามารถตอบโจทย์การใช้งานในปัจจุบันได้ ก็เหมือนการที่เรายอมรับพลวัตทางสังคมที่เปลี่ยนแปลงตลอดเวลา และที่สำคัญเราเชื่อว่าการเรียนรู้ประวัติศาสตร์ที่ดีที่สุดคือการที่เราเห็นวัตถุพยานทางประวัติศาสตร์ประจักษ์แก่สายตาจริงๆ” 

Kaomai Tea Barn เป็นอีกหนึ่งตัวอย่างงานออกแบบที่เกิดจากการมองเห็นและเข้าใจถึงคุณค่าของพื้นที่ร่วมกันทั้งเจ้าของ ผู้ออกแบบ ช่างฝีมือและทีมงานอื่นๆ ทำให้ความงามเหล่านั้นถูกส่งผ่านมายังผู้ใช้งานอย่างสมบูรณ์ แม้จะมีการนำวัสดุใหม่มาใช้แต่สถาปนิกก็ได้ออกแบบให้วัสดุนั้นอยู่กับของเดิมอย่างถ่อมตัวที่สุด

Location: Kaomai Estate 1955 (เก๊าไม้ เอสเตท 1955)
Built Area: 210 ตารางเมตร
Client: Kaomai Estate 1955 (เก๊าไม้ เอสเตท 1955)
Architects Firm: PAVA architects (ภาวะ อาร์คิเทคส์)
Lead Architects: วารัตน์ ลิ่มวิบูลย์ และ พชรพรรณ รัตนานคร 
Interior Architect: พชรพรรณ รัตนานคร 
Landscape Architect: วารัตน์ ลิ่มวิบูลย์ 
Lighting Design Consultant: วัศพล ธีรวนพันธุ์ 
Construction Consultant: นิล กามอ้อย และ ทีมเก๊าไม้ 
Photo Credit: Spaceshift Studio

Writer
Picture of Nara Aunjai

Nara Aunjai

อดีตนักเรียนสถาปัตย์ที่ดำรงอาชีพนักเขียนเป็นงานหลัก นักแปลเป็นงานรอง และรับออกแบบภูมิสถาปัตยกรรมเป็นงานพาร์ทไทม์

Discover more from Design Makes A Better Life.

Subscribe now to keep reading and get access to the full archive.

Continue reading