เมื่อสถาปนิกและดีไซน์เนอร์รองเท้าหนังจับมือกันจึงเกิดเป็นสตูดิโอสีขาว เรียบง่าย ภายใต้การเลือกใช้วัสดุและการออกแบบสเปซที่แตกต่างอย่างลงตัว
Location: เชียงใหม่
Owner: สุเมธ กล้าหาญ
Architect: สุเมธ กล้าหาญ, พงศกร ณ พัทลุง, พิสิฐ ฟุ้งสุข
Photographer: ธฤตยา กล้าหาญ
นอกจากที่บ้าน ออฟฟิศเป็นสถานที่ ที่เราใช้เวลาอยู่ด้วยมากที่สุดในแต่ละวัน ยิ่งออฟฟิศมีบรรยากาศที่เหมาะสมต่อการทำงานมากเท่าไหร่ ก็ยิ่งส่งผลต่อคุณภาพการทำงานและการใช้ชีวิตของผู้ใช้งานมากขึ้นเท่านั้น …

Materior Studio ตั้งอยู่ที่จังหวัดเชียงใหม่ โดยเป็นทั้งออฟฟิศของสถาปนิก Materior Studio และสตูดิโอออกแบบพร้อมทั้งผลิตรองเท้าหนัง แบรนด์ Wariya ภายในอาคารจะมีบรรยากาศอบอุ่น เรียบง่ายจากการผสานวัสดุต่างชนิดเช่นใช้ไม้เก่า คอนกรีต และอะลูมิเนียม ประกอบกับการออกแบบที่คำนึงถึงผู้ใช้งาน จนเกิดเป็นสถาปัตยกรรมที่มีความน่าสนใจ ทั้งในสเปซและฟังก์ชัน

เมื่อสถาปนิกและดีไซน์เนอร์รองเท้ามีสตูดิโออยู่ในอาคารเดียวกัน
จุดเริ่มต้นของ Materior Studio คือการร่วมมือกันระหว่างคุณสุเมธ กล้าหาญ คุณพงศกร ณ พัทลุงและคุณพิสิฐ ฟุ้งสุขด้วยการเปิดสตูดิโอร่วมกันบนที่ดินของคุณสุเมธในจังหวัดเชียงใหม่โดยพวกเขาต้องการพื้นที่สำหรับทำงานออกแบบร่วมกัน มากไปกว่านั้นคุณวริยา กล้าหาญ ภรรยาของคุณสุเมธ ยังเป็นเจ้าของและดีไซน์เนอร์รองเท้าหนังแบรนด์ Wariya อาคารแห่งนี้จึงประกอบด้วยออฟฟิศของ Materior Studio และ Wariya โดยเป็นอาคารออฟฟิศ 2 ชั้น ซึ่งชั้น 1 จะเป็นส่วนของสตูดิโอ ชั้น 2 เป็นห้องเก็บของและห้องนอน
โดยแต่ละสตูดิโอจะมีทางเข้าอาคารด้านหน้าเป็นคอร์ทส่วนตัว ซึ่งมีการออกแบบที่แตกต่างกัน เช่น คอร์ทของ Materior Studio จะโรยหินล้างสีดำ ให้ความรู้สึกเรียบ เท่ สไตล์ออฟฟิศออกแบบ ส่วนฝั่งของ Wariya จะใช้กระเบื้องสีสดมาประดับบริเวณทางเข้า ให้ความรู้สึกสนุก สดใสตามภาพลักษณ์ของแบรนด์

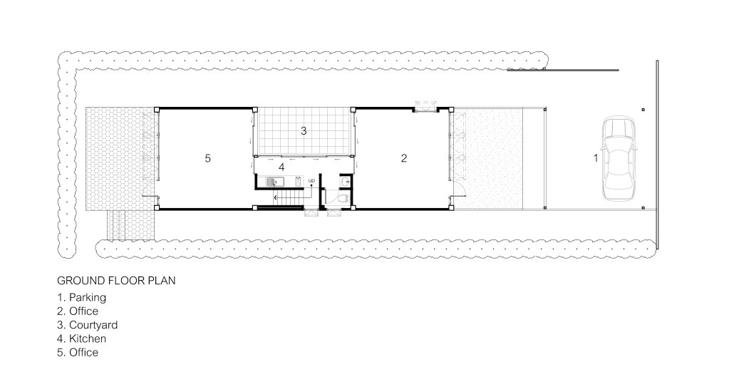
ผังอาคารชั้น 1

ข้อจำกัดในพื้นที่จำกัด
“ความท้าทายของการออกแบบออฟฟิศนี้ คือการมีอาคารกว้างเพียง 5 เมตร และมีด้านยาว 15 เมตร ซึ่งเป็นสี่เหลี่ยมผืนผ้าขนาดใหญ่” คุณพงศกรกล่าวกับเรา
จากข้อจำกัดในเรื่องพื้นที่ ผู้ออกแบบจึงเริ่มจากการแบ่งฟังก์ชันออกเป็น 2 ส่วน โดยแบ่งเป็นสตูดิโอสำหรับงานออกแบบและสตูดิโอทำรองเท้า ซึ่งแต่ละสตูดิโอจะมีการแบ่งพื้นที่ระหว่างกันอย่างชัดเจน มีทางเข้า-ออก ทางเดิน และห้องทำงานเป็นส่วนตัวแยกออกจากกัน เสมือนออกแบบฟังก์ชันของแต่ละสตูดิโอให้อยู่ในก้อนรูปทรงสี่เหลี่ยม จากนั้นจึงเชื่อมต่อแต่ละก้อน ด้วยการสร้างพื้นที่ Public Space เพื่อให้เกิดปฎิสัมพันธ์ระหว่างผู้ใช้งานด้วยกัน

แม้พื้นที่อาคารภายนอกจะดูทึบตันแต่ภายในกลับเปิดโล่ง เชื่อมต่อ และมีคอร์ทกลางอาคารทำหน้าที่เปิดรับธรรมชาติ รับแสงแดดและสายลมจากภายนอก โดยช่องเปิดภายในอาคารจะอยู่ตรงกับทิศทางลม เมื่อทำการเปิดประตูและหน้าต่างทั้งหมด จะช่วยให้เกิดลมพัดผ่านตลอดวัน

ผังอาคารชั้น 2

ในส่วนของบริเวณห้องนอนชั้น 2 จะเป็น Double Façade โดยมีระแนงไม้เป็นเปลือกอาคารชั้นนอกสุด เพื่อสร้างความเป็นส่วนตัวให้กับผู้พักอาศัย แต่ในขณะเดียวกันก็มีช่องเปิดเพื่อให้ลมพัดผ่านเข้ามาในอาคาร โดยในส่วนห้องนอนนี้ คุณสุเมธออกแบบให้สามารถประยุกต์การใช้งาน เพื่อรองรับการขยายพื้นที่สตูดิโอในอนาคตได้อีกด้วย

ปิด – เปิด ความแตกต่างที่เกิดจากบริบท
เนื่องจากถนนบริเวณด้านหน้าอาคารเป็นทางลัดเข้าสู่ตัวเมือง จึงทำให้มีรถวิ่งผ่านตลอดทั้งวัน และด้านหลังอาคารนั้นก็อยู่ติดกับโกดังขายวัสดุก่อสร้าง ซึ่งจะมีการเคลื่อนย้ายวัสดุ อุปกรณ์ก่อสร้างอยู่ตลอด ที่ตั้งของอาคารจึงค่อนข้างวุ่นวายและมีมลภาวะ ผู้ออกแบบจึงแก้ปัญหาด้วยการออกแบบอาคารภายนอกให้มีลักษณะทึบตัน และมีช่องเปิดเท่าที่จำเป็นเท่านั้น ส่วนภายในอาคารจะมีความโปร่ง โล่ง จากการออกแบบคอร์ทกลางอาคารในฝั่งติดถนน อีกทั้งยังปลูกต้นไม้ทั้งส่วนด้านหน้าและด้านหลังอาคาร เช่น ต้นปีป ต้นแคนา เพื่อช่วยกรองฝุ่นและมลพิษจากภายนอก


จากรูปด้าน ด้านหน้าและด้านหลังอาคาร จะเห็นว่าด้านหลังอาคารมีหน้าต่างในส่วนห้องน้ำและบันไดทางขึ้นเท่านั้น เพื่อช่วยป้องกันเสียงดังรบกวนและมลพิษจากภายนอก

ภาพตัดแสดงความเชื่อมต่อภายในอาคาร

ระแนงและหน้าต่างไม้ในส่วนทางขึ้นบันไดด้านหลังอาคาร

เชื่อมต่อพื้นที่ ด้วยคอร์ทกลางอาคาร
คอร์ทกลางอาคารหรือพื้นที่ Public Space เป็นคอร์ทกึ่งภายใน-ภายนอก และเป็น Double Space ที่ทำหน้าที่เชื่อมต่อแต่ละสตูดิโอไว้ด้วยกัน โดยเป็นช่องเปิดขนาดใหญ่ ที่เปิดรับแสงธรรมชาติและระบายอากาศได้ในเวลาเดียวกัน คล้ายกับหน้าต่างขนาดใหญ่กลางอาคารนั่นเอง

แม้คอร์ทกลางอาคารจะเป็นพื้นที่กึ่งภายใน-ภายนอก แต่ก็มีระแนงไม้แผงใหญ่ช่วยพรางสายตาจากผู้คนภายนอก สร้างความเป็นส่วนตัว และยังช่วยกันแดด กันฝน โดยเฉพาะอย่างยิ่งเมื่อแสงแดดตกกระทบกับระแนงไม้ ก็จะทำให้เกิดความสวยงามจากเส้นสายของเงาที่สาดส่องเข้ามาภายในอาคารอีกด้วย

‘ไม้’ รีไซเคิล
ทางผู้ออกแบบได้นำไม้เก่าที่ถูกรื้อทิ้ง จากโปรเจคบ้านที่ทางออฟฟิศได้ออกแบบ มารีไซเคิลและนำมาใช้เป็นองค์ประกอบของอาคารออฟฟิศแห่งใหม่ เช่นประตู หน้าต่าง โต๊ะทำงาน ตู้ครัว โดยหน้าต่างกับประตูภายนอกอาคารจะเป็นไม้รีไซเคิลทั้งหมด เป็นการสร้างบรรยากาศอาคารให้ดูอบอุ่น ผ่อนคลายมากยิ่งขึ้น ส่วนภายในจะใช้บานประตู หน้าต่างจากอะลูมิเนียม เนื่องจากการดูแลรักษาง่ายกว่านั่นเอง
“ไม้เก่าผมคิดว่านำมาใช้ยังไงก็สวย และจะเป็นการดียิ่งขึ้น ถ้าเรานำไม้รีไซเคิลมาใช้ ช่วยให้เกิดประโยชน์และไม่ต้องทิ้งไม้เก่าไปครับ” คุณพงศกร สถาปนิกผู้ออกแบบกล่าว

มีการนำหน้าต่างมาสลับทิศทาง จากแนวตั้งเปลี่ยนเป็นแนวนอน ผู้ใช้งานต้องเปิดหน้าต่างในลักษณะบานกระทุ้งแทนการเปิดโดยทั่วไป

แผงระแนงไม้ในส่วนคอร์ทกลางอาคารและห้องนอน ก็เป็นไม้รีไซเคิลจากโปรเจคบ้านเก่าด้วยเช่นกัน

Materior Studio สตูดิโอที่เกิดจากข้อจำกัดในเรื่องพื้นที่ และอบอุ่นด้วยไม้เก่ารีไซเคิล พร้อมทั้งมีความลงตัวด้วยสเปซและการใช้งานที่เรียบง่าย ซึ่งทั้งหมดนี้ ล้วนเป็นองค์ประกอบที่เกิดการเชื่อมต่อ ณ บริเวณคอร์ทกลางอาคาร ซึ่งนำพาธรรมชาติและความสงบเข้าสู่ผู้ใช้งานในอาคารได้เป็นอย่างดี





