FOOD VILLA – VILLA ZONE
เจ้าของ : บริษัท บีที กรุ๊ป คอร์ปอเรชั่น จำกัด
สถาปนิก : I Like Design Studio โดย ณฤชา คูวัฒนาภาศิริ
ภาพ : ศุภกร ศรีสกุล
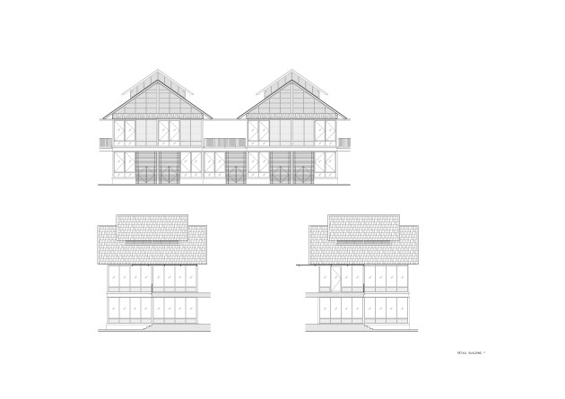
กลุ่มอาคารกับแนวคิดโรงนาในชนบท ใช้เหล็กโครงสร้างรูปพรรณรีดร้อน วัสดุเดียวที่สามารถสร้างเอกลักษณ์ที่ทันสมัย ก่อสร้างได้ตรงความต้องการและรวดเร็ว
การออกแบบที่ดี สามารถสะท้อนแนวคิดเพื่อให้ผู้ใช้งานอาคาร เกิดการรับรู้ถึงพื้นที่ กิจกรรม และความรู้สึกที่สถาปนิกผู้ออกแบบตั้งใจไว้ ได้ไม่ยาก เช่นเดียวกับอาคาร Community Mall แนวคิด “เปิดโล่ง” นี้ที่ชื่อ FOOD VILLA – VILLA ZONE โดยส่วนที่เราจะพาไปชมนี้ คือเฟส 2 ที่ออกแบบโดยใส่แนวคิดของการประยุกต์รูปแบบ “สถาปัตยกรรมพื้นถิ่น” ไว้อย่างแยบยล
ที่มาแห่งอาคารเหล็ก FOOD VILLA, VILLA ZONE
ด้วยการแข่งขันที่ดุเดือดของห้างสรรพสินค้าขนาดใหญ่ มีรูปแบบอาคารอีกประเภทหนึ่ง ที่มีความน่าสนใจและมาแรงไม่แพ้กัน คือ Community Mall ซึ่งที่ FOOD VILLA แห่งนี้ ดึงเอาความเป็นธรรมชาติเข้ามาผสานกับตัวอาคาร เพื่อให้เป็นห้างสรรพสินค้ากึ่งเอ้าท์ดอร์ ที่มีความน่าสนใจทั้งแนวคิดในการออกแบบ วางผัง และฟังก์ชั่นที่อยู่ภายใน โดยโครงการตั้งอยู่ที่ถนนราชพฤกษ์ กรุงเทพฯ
สถาปนิกคือ I Like Design Studio โดยคุณ ณฤชา คูวัฒนาภาศิริ เล่าให้เราฟังว่า “รูปด้านของอาคารถูกพัฒนารูปแบบมาจาก กลุ่มบ้านเรือนของชาวนาที่บ้านโอบล้อมพื้นที่สวนหรือเกษตรกรรม ซึ่งเป็นรูปแบบอาคารบ้านเรือนที่พบได้ทั่วไปในชนบท โดยมีลักษณะเป็นอาคาร 1 – 2 ชั้น หลังคาจั่ว มีชายคายื่นยาว มีการออกแบบส่วนช่องเปิดหรือประตูหน้าต่างที่เปิดกว้าง หรือเปิดโล่งทั้งอาคาร อีกทั้งยังพยายามออกแบบให้กลมกลืน และสอดคล้องกับอาคารตลาดสด (เฟส 1) ที่พัฒนารูปแบบมาจากรูปด้านของโรงนา เพื่อสื่อให้เข้าใจถึงจุดเด่นของโครงการที่เน้นการขายอาหารเป็นหลัก”
การวางกลุ่มของอาคาร ถูกแบ่งพื้นที่ออกเป็น 2 ส่วน คือ กลุ่มอาคารสูง 1 ชั้น ออกแบบโดยเน้นพื้นที่เปิดโล่งให้เป็นสวนและบ่อปลา เพื่อเป็นการเปิดมุมมองเป็นจุดพักผ่อนและเป็นการเชื่อมต่อพื้นที่กับบริเวณ Food court ของอาคารตลาดสด , กลุ่มอาคารสูง 2 ชั้น ออกแบบอาคารโอบล้อมพื้นที่สวน บ่อปลา ลานกิจกรรมและเวที บริเวณนี้เป็นคอร์ทหลักของอาคาร โดยมีแกนเส้นทางสัญจรคอยแบ่งพื้นที่ของกลุ่มอาคาร และเชื่อมต่ออาคารหลักของโครงการแต่ละส่วนเข้าหากัน

เสน่ห์แห่งเหล็ก
วัสดุเหล็กโครงสร้างรูปพรรณรีดร้อนคือวัสดุที่สถาปนิกเลือกใช้เป็นโครงสร้างหลักของอาคารทั้งหมด โดยนำแนวคิดหลักเรื่องกลุ่มอาคารโรงนา แปรเปลี่ยนมาเป็นอาคารที่ดูทันสมัยขึ้น ดูบางเบา ไม่ทึบตัน ซึ่งเหล็กรูปพรรณรีดร้อน สามารถถ่ายทอดแนวคิดได้อย่างตรงจุด แถมยังก่อสร้างได้รวดเร็ว เหมาะกับอาคารเพื่อการพานิชย์ ที่ต้องการการคืนทุนเร็วที่สุด และเหล็กก็เป็นวัสดุที่สามารถเข้าได้กับวัสดุอื่นมากมาย ทำให้กรอบในการออกแบบนั้นสลายหายไป
การใช้งาน ประสานความงาม
สถาปนิกเลือกใช้เหล็กรูปพรรณรีดร้อนในรูปแบบที่ต่างกันไปในแต่ละจุด เช่นเสาหลังคาทางเดินภายนอกที่ต้องการความบางเบา ก็จะออกแบบให้โชว์เส้นสาย ชัดเจนเพื่อให้รู้สึกไม่ทึบตัน ส่วนเสาของอาคารก็จะสลับด้านที่ทึบออกมาเพื่อให้ดูคล้ายอาคารปูน เป็นการใช้วัสดุอย่างชาญฉลาด เหล็กรูปพรรณรีดร้อน สามารถทำสีได้มากมายตามต้องการ เช่นโครงการนี้ต้องการให้มีความเป็นธรรมชาติ จึงเลือกทำสีน้ำตาลเข้ากับวัสดุไม้จริงที่ใช้

วัสดุเหล็ก ยังสื่อสารกับผู้ใช้งานอาคารด้วยภาษาทันสมัย ในท่าทีที่อ่อนโยน เพราะเหล็ก เป็นตัวแทนของความมีรสนิยม ความแข็งแรง และไม่ล้าสมัย บวกกับรูปแบบอาคารที่ออกแบบมาเพื่อคนไทย ตัวอาคารที่คนไทยคุ้นเคย จึงไม่ใช่เรื่องยากเลย หากคนที่ได้มาเยือน จะต้องชอบหน้าตาและรูปแบบของอาคารเหล่านี้
อีกทั้งงานเหล็ก ยังเหมาะกับการก่อสร้างที่มีเรื่องของระยะเวลาเข้ามาเป็นตัวกำหนด โดยเฉพาะงานอาคารพานิชย์ ที่ต้องเปิดทำการให้ตรงตามเวลาที่ตั้งไว้ การก่อสร้างที่หน้างานก็เป็นไปอย่างรวดเร็ว สะอาด แม้จะมีราคาต่อหน่วยมากกว่าโครงสร้างคอนกรีตเสริมเหล็กแบบเก่า แต่ก็สามารถประหยัดค่าแรงช่าง ได้มากกว่าเช่นกัน
นอกจากรูปแบบของอาคารที่ลงตัว ใช้งานได้อย่างสะดวกสบายแล้ว สิ่งที่น่าสนใจอีกสิ่งหนึ่งที่เป็นสิ่งสำคัญของสถานที่ประเภทนี้ คือร้านค้า และ กิจกรรมที่เจ้าของโครงการ ตั้งใจเลือกสรรค์มาไว้ภายในได้อย่างครบครัน ทั้งเรื่องความเหมาะสมของราคา ความหลากหลาย และความเป็นมิตรของแม่ค้าพ่อค้าทุกคน
ใครมีโอกาสผ่านไปแถวถนนราชพฤกษ์ อย่าลืมแวะไปใช้บริการกันนะครับ รับรองว่าจะติดใจในตัวอาคาร บรรยากาศ และทุกร้านค้าที่ได้สัมผัสครับ
ขอขอบคุณ
เจ้าของ : บริษัท บีที กรุ๊ป คอร์ปอเรชั่น จำกัด
สถาปนิก : I Like Design Studio โดย ณฤชา คูวัฒนาภาศิริ
ภาพ : ศุภกร ศรีสกุล











