“ถ่ายทอดความเป็นพื้นถิ่นสมัยใหม่ ไม่ละทิ้งภูมิปัญญา สร้างสรรค์มูลค่าของวัสดุที่เรียบง่าย”
Pasang ป่าซาง
Location: อำเภอนางแล, เชียงราย
Architects: BodinChapa Architects
Photographs: Rungkit Charoenwat
ท่ามกลางสภาพแวดล้อมที่อุดมไปด้วยธรรมชาติในอำเภอนางแล จังหวัดเชียงราย พื้นที่ซึ่งยังคงวิถีชีวิตแบบดั้งเดิมและอยู่ร่วมกับการพัฒนาเมืองใกล้มหาวิทยาลัยแม่ฟ้าหลวงกำลังเติบโตพร้อมๆกัน ยังมี “Pasang (ป่าซาง)” คาเฟ่เล็กๆที่ซ่อนตัวอยู่ในหมู่บ้านเศรษฐกิจพอเพียง ผ่านฝีมือการออกแบบของคุณป้อง-บดินทร์ เมืองลือ และคุณว่าน-พิชชาภา โล่ห์ทอง สองสถาปนิกหนุ่มสาวจาก BodinChapa Architects ได้สร้างสรรค์สถาปัตยกรรมโครงสร้างเหล็กดีไซน์ร่วมสมัย และคงความพื้นถิ่นจากวัสดุที่หาได้ง่ายในพื้นที่
คุณป้อง-บดินทร์ เมืองลือ และคุณว่าน-พิชชาภา โล่ห์ทอง สถาปนิก BodinChapa Architects
จุดเริ่มต้นของชื่อคาเฟ่ “ป่าซาง” มาจากชื่อของหมู่บ้านแห่งนี้ ซึ่งเป็นหมู่บ้านที่มีสับปะรดเป็นผลไม้เศรษฐกิจหลักของชุมชน และด้วยความที่เจ้าของร้านมีพื้นที่เดิมอยู่แล้ว บริบทรอบๆมีความเป็นทุ่งนาชนบท จึงเกิดเป็นโจทย์การออกแบบที่ต้องการให้คาเฟ่เป็นเหมือนสื่อกลางเชื่อมต่อระหว่างคนในชุมชนและต้อนรับผู้มาเยือนอย่างเป็นกันเอง ผ่านสถาปัตยกรรมพื้นถิ่นที่กลมกลืน และเมนูสร้างสรรค์ที่แปรรูปจากสับปะรดในชุมชน
– ผนังบานเกล็ดไม้ จากท้องถิ่น –
ภาพแรกที่สัมผัสอาคารผ่านสายตา คือ “บานเกล็ดไม้” ซึ่งนำวัสดุพื้นถิ่น เช่น ไม้แดง โดยเลือกไม้เก่าที่เจ้าของมีอยู่เดิมและที่หาเพิ่มเติมจากในชุมชน มาผสมผสานกันด้วยฝีมือของช่างพื้นถิ่นให้กลายเป็นองค์ประกอบหลักของอาคารที่มีคุณค่า ซึ่งนอกจากจะทำหน้าที่ห่อหุ้มเป็นผนังอาคารแล้ว ยังเป็นช่องเปิด-ปิดที่อนุญาตให้ลมและแสงธรรมชาติพัดผ่านเข้าไปยังพื้นที่ภายในได้อย่างเหมาะสม
นอกจากนี้ พื้น เสา และวงกบหน้าต่างบานเกล็ดยังทำจากไม้เก่า แสดงถึงภูมิปัญญาของสถาปัตยกรรมท้องถิ่น
หากสังเกตดีๆ ไม่เพียงแต่มีบานเกล็ดเท่านั้น แต่ยังมีบานเกล็ดกระจกใสแทรกตัวอยู่ด้วยในทิศเหนือของอาคารที่ติดสนามหญ้ากว้าง ซึ่งเป็นมุมมองไปยังธรรมชาติรอบๆ ส่วนในทิศใต้จะเน้นการใช้บานเกล็ดไม้เป็นหลักเพื่อบดบังแสงแดดในตอนกลางวัน แต่ยังมีการใช้บานเกล็ดกระจกใสแทรกไปในแนวเฉียงตามแนวบันได เพื่อเปิดรับแสงสว่าง และวิวทิวทัศน์จากธรรมชาติบ้าง
– อะไร ซ่อนไว้หลังบานเกล็ด –
ความลับทางรูปทรงสถาปัตยกรรมที่เผยออกมาให้เห็นเมื่อเปิดบานเกล็ดไม้ทั้งหมดทางทิศเหนือ คือ ภาพของหลังคาจั่วใหญ่และเล็กเชื่อมต่อกันอยู่ รวมถึงพื้นที่ภายในได้อย่างชัดเจน ซึ่งได้แรงบันดาลใจมาจาก “ฝาไหล” องค์ประกอบผนังของบ้านไทย ที่เป็นผนังเวลาปิด และเป็นช่องหน้าต่าง เพียงแต่แทนที่เป็นบานเกล็ดเเพราะเปิดปิดได้ง่าย และเมื่อเปิด ก็เผยให้เห็นรูปลักษณ์ภายในอาคารที่เป็นหลังคาจั่วแสดงถึงรูปทรงของสถาปัตยกรรมไทยที่ทุกคนเข้าใจได้ ภูมิปัญญา และความกลมกลืนกับบริบทรอบข้างอย่างแนบเนียน
ส่วนเชื่อมต่อระหว่างหลังคาเล็กและใหญ่ ที่ใช้วัสดุโปร่งแสง เพื่อให้พื้นที่ภายในอาคารสามารถใช้งานจากการเปิดรับแสงจากธรรมชาติในเวลากลางวันได้
โครงสร้างออกแบบให้เป็นระบบ Modular ที่เป็นโครงสร้างเหล็กเรียบง่าย สร้างได้อย่างรวดเร็ว ประหยัด และมีความแข็งแรง โดยรูปลักษณ์ของร้านได้แรงบันดาลใจจากยุ้งข้าวล้านนาที่มีโครงสร้างขนาดกะทัดรัด ออกแบบให้ช่วงเสามีระยะห่างทุก 1 เมตร ทั้งหมด 12 ต้น และเชื่อมเข้ากันด้วยตัวบานเกล็ดไม้
– นั่งทุกระดับ ประทับใจทุกมุมมอง –
เนื่องจากเป็นอาคารขนาดเล็ก พื้นที่ใช้สอยภายในถูกเชื่อมต่อเข้าหากันหมด แต่จะมีการลดหลั่นกันต่างระดับกัน เพื่อรองรับการใช้งานที่หลากหลาย ทำให้เกิดการเคลื่อนไหวของพื้นที่แต่ละชั้น โดยแบ่งฟังก์ชันเป็น 4 ระดับคร่าวๆ แต่ละฟังก์ชั่นมีการเชื่อมต่อ จุดร่วมคือการมองเห็นวิวธรรมชาติภายนอกที่จะทำให้ทุกคนสัมผัสธรรมชาติได้อย่างใกล้ชิดมากขึ้นผ่านช่องเปิดต่างๆนั่นเอง
Section ภายในอาคาร แสดงให้เห็นถึงการเล่นระดับ
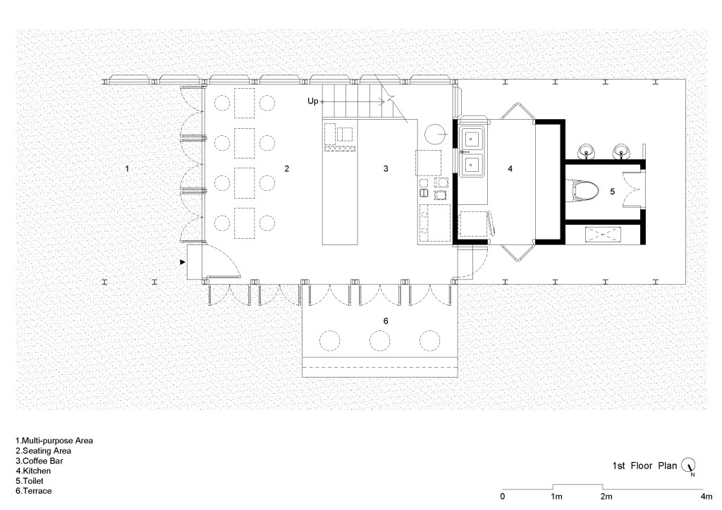
ในส่วนของระดับแรกจะเป็นส่วนของ เซอร์วิส ห้องครัว ห้องน้ำด้านหลัง ที่ลดหลั่นลงมาเล็กน้อยจากระดับที่ 2 ที่มีเคาน์เตอร์บาร์ และมีโต๊ะเล็กๆไว้ต้อนรับลูกค้า รวมถึงเชื่อมต่อจากลานนั่งเล่นภายนอกเข้าสู่ภายในอาคาร
พื้นที่นั่งชั้นแรก และห้องน้ำที่อยู่ด้านข้างเชื่อมต่อกับส่วนเซอร์วิสของร้าน
แปลนชั้นแรกของคาเฟ่
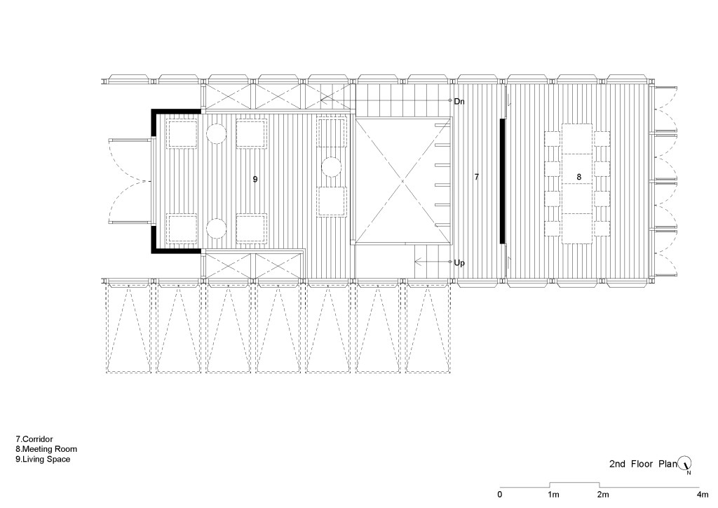
ถัดขึ้นไปเป็นพื้นที่ Co-Working Space พื้นที่นั่งทำงาน 4 โต๊ะ สำหรับรองรับการใช้งานของนักศึกษา หรือคนทำงาน ซึ่งสามารถเปลี่ยนแปลงได้เอง สามารถเคลื่อนย้ายโต๊ะได้ตามต้องการ ส่วนระดับบนสุดเป็นมุมนั่งเล่น มีเก้าอี้โซฟา ที่เน้นการดื่มด่ำบรรยากาศสบายๆ เห็นวิว เห็นทุ่งนา

แปลนชั้นสองของคาเฟ่ ที่แสดงให้เห็นพื้นที่ทำงาน Co-Working Space และ มุมนั่งเล่น
– ประตูและชายคา 90 องศา –
บานกระทุ้งลูกฟักบานเกล็ดไม้ขนาดใหญ่ถึง 2 x 0.9 เมตร ที่บริเวณด้านล่างสุดของอาคารฝั่งทิศ มีด้วยกันทั้งหมด 7 บาน เมื่อปิดจะทำหน้าที่เป็นประตูของร้าน และสามารถเปิดขึ้นมา 90 องศา เพื่อเป็นชายคาของส่วนระเบียงปูนที่มีที่นั่งเล่นภายนอกได้ โดยเป็นการเปิดด้วยโช๊คเปิดประตูรถยนต์มาช่วยค้ำยันบานที่มีน้ำหนักมาก
โครงสร้างค้ำยันที่ใช้หลักการของโช๊คประตูรถยนต์
– สับปะรดซิกเนเจอร์ –
เมนูซิกเนเจอร์ทั้งหมด เป็นความคิดสร้างสรรค์ของทางเจ้าของร้าน โดยนำสับปะรด ซึ่งเป็นผลไม้พื้นถิ่นของอำเภอนางแล มาเป็นส่วนประกอบหนึ่งในแต่ละเมนู ไม่ว่าจะเป็นอาหารคาวอย่างข้าวอบสับปะรด ของหวานอย่างภูแลทาร์ต หรือเครื่องดื่มอย่างกาแฟสับปะรดนางแล ที่ผสมผสานความเป็นพื้นถิ่นร่วมสมัยแปลกใหม่ไม่เหมือนใคร และถูกคัดสรรด้วยคุณภาพมาเป็นอย่างดี
เมนูป่าซาง กาแฟเอสเพลสโซผสมสับปะรด100 % วางท็อปปิ้งด้วยสับปะรดภูแลสด และข้าวเงี้ยว หรือ ข้าวกั้นจิ้น อาหารพื้นเมืองของทางภาคเหนือ เป็นการนำเลือดหมูและเนื้อหมูมาคั้นกับใบตะไคร้ และนำมาผสมกับข้าวสวยแล้วนำไปนึ่ง
ภูแลทาร์ต (Photo credit : @guide_nitikorn)
เมนูขนมขายดีของร้านป่าซาง ด้านบนเป็นเนื้อสับปะรดภูแล และเนื้อเค้กเข้มข้นพร้อมทาร์ตกรุบกรอบ ที่รสชาติหวานกำลังดี
“ส่วนที่ยากในการออกแบบ คือการเล่าเรื่องของอาคารที่จะแสดงออกออกมา การสร้างพื้นถิ่นที่ร่วมสมัยที่อยากให้คนรุ่นใหม่สนใจกับสิ่งที่เป็นอยู่เดิม วัฒนธรรมและวัสดุพื้นถิ่น” คุณบดินทร์กล่าวทิ้งท้ายกับเรา ในฐานะสถาปนิกที่ต้องการถ่ายทอดงานออกแบบพื้นถิ่นให้คนรุ่นใหม่ได้สัมผัสอย่างแท้จริง ผ่านการออกแบบตัวตนของสถาปัตยกรรมภายใต้คาเฟ่ป่าซางแห่งนี้
Dtip
- การที่สถาปนิกเลือกไม้เก่าทั้งหมดมาใช้ในงานนี้ เพราะไม้เก่ามีความแข็งแรงและโก่งตัวได้ยากกว่าไม้ใหม่





























