“ลานกลางบ้าน สานสัมพันธ์ทุกกิจกรรมในครอบครัว”
Location: พระรามสอง, กรุงเทพฯ
Architect: Lamoonta Architects
Photographs: Spaceshift, จิณณวัตร บริหารกิจอนันต์
นับว่าเป็นเสน่ห์อย่างหนึ่งของคนที่มีเชื้อสายจีน ที่ส่วนใหญ่มีการอยู่อาศัยกันเป็นครอบครัวใหญ่ เพื่อสร้างความสัมพันธ์อันแน่นแฟ้นของเครือญาติไว้ในพื้นที่แห่งความอบอุ่น การจะสร้างบ้านสักหลังที่ตอบโจทย์การอยู่อาศัย จึงต้องออกแบบด้วยความเข้าใจกิจกรรมของสมาชิกในครอบครัวเป็นอย่างดี เช่นเดียวกันกับครอบครัวของคุณไฮ่-เจตน์สินธุ์ โลหะนาคะกุล ที่วาดภาพชีวิตของครอบครัวเชื้อสายจีนของตนภายในบ้านหลังนี้ไว้ว่า มีลานพิเศษขนาดใหญ่ที่สามารถเติมเต็มความสุขให้ตัวเอง ภรรยาและลูกๆทั้งสี่ได้อย่างลงตัว
-หัวใจในบ้าน-
โดยสถาปนิกผู้ทำหน้าที่เปลี่ยนภาพความฝันให้เป็นจริง อย่างคุณบี๊บ-ณัฐพนธ์ จิตต์หมวด Lamoonta เริ่มต้นออกแบบพื้นที่แห่งนี้จากการมองที่ดินเปล่า ด้วยการออกแบบ “ลานกว้าง” ให้เป็นหัวใจสำคัญของบ้านหลังนี้ ซึ่งเสมือนพื้นที่อเนกประสงค์ ทั้งเป็นสนามเด็กเล่นของลูกทั้งสี่คนที่อายุไล่เลี่ยกัน วิ่งเล่นกันได้อย่างมีความสุข และสามารถเปลี่ยนเป็นพื้นที่จัดงานปาร์ตี้ ต้อนรับแขกผู้มาเยือนได้อย่างสะดวกสบายนั่นเอง
คุณบี๊บ-ณัฐพนธ์ จิตต์หมวด Lamoonta สถาปนิกผู้ออกแบบบ้านหลังนี้
“ภาพแรกที่เราคิด ถ้าบ้านหลังนี้มีลานให้เด็กๆได้วิ่งเล่นก็คงดี” คำตอบของคุณบี๊บ เมื่อเราถามถึงความเป็นมาของพื้นที่ลานโล่งที่มีพื้นที่มากกว่าครึ่งนึงของบ้าน และเป็นลานภายในแทนที่จะเป็นภายนอก ซึ่งเป็นลานในรูปแบบ Hardscape หรืองานภูมิทัศน์ที่ใช้วัสดุโครงสร้างที่แข็ง เพื่อการดูแลที่ง่ายกว่าลานภายนอกแบบหญ้า และสามารถใช้พื้นที่นี้ทำกิจกรรมได้ทุกช่วงเวลาของวัน รวมถึงทุกสภาพอากาศอีกด้วย
พื้นที่ลานนี้แม้จะอยู่ภายใน แต่ก็สามารถเปิดรับธรรมชาติให้ผ่านเข้าออกได้อย่างเต็มที่ มีสระว่ายน้ำที่ทอดยาวไปจนสุดกำแพงบ้านด้านหน้า เพิ่มบรรยากาศแห่งสุนทรีย์ภาพของการอยู่อาศัยภายในบ้านมากขึ้น
-ผสานฮวงจุ้ยในแบบจีน ๆ-
ด้วยความที่เจ้าของบ้านมีเชื้อสายคนจีน การวางฟังก์ชันต่างๆภายในบ้านจึงต้องมีเรื่องของ “ฮวงจุ้ย”เข้ามาเกี่ยวข้อง ซึ่งหลังจากกำหนดขอบเขตและที่ตั้งของลานกว้างหรือส่วนสำคัญของบ้านแล้ว การวางพื้นที่อยู่อาศัยต่างๆล้อมรอบลานนี้จึงขึ้นอยู่กับความเหมาะสมและฮวงจุ้ยประกอบกัน
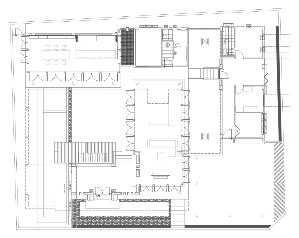
แปลนชั้น 1 ของบ้าน
พื้นที่ภายในบ้านถูกแยกเป็น 2 แมสอย่างชัดเจน แมสแรกเป็นพื้นที่อยู่อาศัยหลักอย่างลานและพื้นที่รองรับกิจกรรมของครอบครัว โดยมีห้องนั่งเล่นเชื่อมต่อไปยังอีกแมส ซึ่งชั้นล่างเป็นส่วนของเซอวิส ส่วนชั้นเป็นเป็นพื้นที่ของลูกๆทั้งสี่นั่นเอง
ทางเข้าหลักของบ้าน ออกแบบให้มีลักษณะเป็นโถงต้อนรับเล็กๆ ให้เป็นที่ตั้งของ “ตี่จู้เอีย” ที่เสมือนเป็นพระประจำบ้าน เพื่อความเป็นศิริมงคลเป็นพื้นที่เปลี่ยนถ่ายเมื่อเดินเข้าสู่ตัวบ้านที่แท้จริงตามหลักความเชื่อของคนจีน
ห้องครัว ห้องรับประทานอาหาร และห้องทำงาน ถูกวางไว้ท้ายสุดของตัวบ้าน ส่วนห้องนั่งเล่นออกแบบให้เป็นพื้นที่เปิดโล่งจนถึงชั้นสองหรือดับเบิ้ลสเปซวางขนาบข้างลานนี้ไว้ โดยทุกห้องสามารถเปิดเพื่อเชื่อมต่อเข้ากับพื้นที่ของลานเป็นหลัก ส่วนห้องน้ำถูกวางไว้ค่อนข้างมิดชิดอยู่ด้านหลัง เพราะตามหลักของฮวงจุ้ย
ห้องครัวและห้องรับประทานอาหาร ที่ส่วนใหญ่เปิดโล่งสู่พื้นที่ลานโดยตรง ทำให้ลมจากภายนอกสามารถไหลเข้าสู่พื้นที่ต่างๆได้โดยไม่ร้อน แต่มีประตูบานเฟี้ยมที่สามารถเลือกปิด เพื่อการใช้งานที่เป็นสัดส่วนและต้องการความเป็นส่วนตัวมากขึ้น
-มองทะลุ ปรุโปร่ง-
ห้องนั่งเล่น ที่เป็นพื้นที่เปิดโล่งถึงชั้นสอง ถูกล้อมรอบด้วยกระจกใสทั้งสองด้าน เพื่อเปิดรับแสงธรรมชาติในตอนกลางวันจากลาน ซึ่งนอกจากจะเป็นพื้นที่โปร่งโล่งเชื่อมถึงกันได้หมดแล้ว ยังเป็นการเชื่อมต่อทางสายตาไปยังพื้นที่ชั้นบนของอีกอาคารหนึ่ง ซึ่งทำให้ทุกพื้นที่สามารถมองเห็นกันได้ เจ้าของบ้านสามารถมองเห็นลูกๆวิ่งเล่น หรือทำกิจกรรมต่างๆภายในบ้านได้ตลอดเวลา
บวกกับการลดหลั่นของแมสก้อนเล็กในส่วนของเซอวิสให้เตี้ยกว่าแมสของลาน ทำให้จากลานสามารถมองเห็นพื้นที่ชั้นสามหรือพื้นที่ของลูกๆได้อย่างชัดเจนมากขึ้น
บันไดทางขึ้นหลักของบ้าน ถูกจัดวางให้อยู่ในลานนี้ เพื่อความสะดวกสบายในการเข้าถึงพื้นที่ชั้นสอง ซึ่งเมื่อขึ้นมาแล้วจะมีสะพานเล็กๆเชื่อมต่อไปยังห้องนอนหลักของบ้าน และเมื่อเลี้ยวขวาก็จะเจอทางเชื่อมไปยังอีกแมส ซึ่งเป็นบันไดทางเดินช่องกระจก
แปลนชั้น 2 ของบ้าน
ทางเดินช่องกระจกใส พื้นที่ระหว่างแมสที่เชื่อมต่อกันโดยต้องเดินลง
-ผืนแผ่นเดียวกัน-
ตามความเชื่อของฮวงจุ้ยที่ว่าหลังคาของบ้านจะต้องเป็นผืนเดียวกัน ซึ่งทำให้ต้องแหงนขึ้นเล็กน้อยเพื่อเปิดรับลมด้านบน และสร้างระแนงสีขาวเพื่อเปิดให้แสงและลมผ่านเข้าออกได้อย่างสะดวก ในขณะที่ยังมีความเป็นส่วนตัวบดบังสายตาจากภายนอกได้ ส่วนโครงสร้างของหลังคานั้น เป็นโครงสร้างเหล็กและหลังคาเมทัลชีท ที่ให้ความรู้สึกที่โปร่งโล่ง
ส่วนวัสดุภายในบ้านเป็นสีโมโนโทนเป็นหลัก เน้นความเรียบง่ายในสไตล์โมเดิร์น ผสานเข้ากับสีขาวของอิฐบล็อกช่องลม ซึ่งเป็นเหมือนผนังอีกชั้นหนึ่งภายในบ้าน อยู่บริเวณโถงทางเข้า ทำให้สามารถสัมผัสกับบรรกาศของสระว่ายน้ำได้ และอยู่ด้านข้างของบ้าน ที่เป็นเครือญาติกัน
“บ้านที่ดี จะต้องประกอบกันระหว่างสถาปนิก ผู้ซึ่งออกแบบให้เกิดพื้นที่ใช้งานที่เหมาะสม และอีกส่วนเป็นส่วนของผู้อยู่อาศัยเอง” เหตุผลที่เฟอร์นิเจอร์ต่างๆภายในบ้านเป็นของสะสมของเจ้าของบ้าน จัดวางตามการใช้งานที่สมาชิกในครอบครัวพึงพอใจ ซึ่งทำให้บ้านกลายเป็นบ้านที่ตรงความต้องการ การใช้ชีวิตภายใต้บ้านหลังนี้จึงเป็นไปอย่างมีความสุข


























