OUI J’AIME
Location: แปดริ้ว, ฉะเชิงเทรา
Owner: ตั้ง เซ่ง จั้ว
Architects: สุริยะ อัมพันศิริรัตน์ และ ขยาย นุ้ยจันทร์ Walllasia + Kyai&Suriya Architecture
Interior: วิชชาธร ประเสริฐสุข Storage Studio
Photograph: จิณณวัตร บริหารกิจอนันต์
“ฉะเชิงเทรา” หนึ่งในจังหวัดที่ไม่ไกลจากกรุงเทพมากนัก ขึ้นชื่อในเรื่องของวัดวาอารามและอาหารที่อร่อย ไม่ยากนักหากใครหลายคนอาจรู้จัก ขนมเปี๊ยะของ “ตั้ง เซ่ง จั้ว” ของฝากชื่อดังของจังหวัด ซึ่ง “OUI J’AIME” ที่พักในเมืองแปดริ้วในจังหวัดฉะเชิงเทรา จุดหมายที่เราตั้งใจมาในวันนี้ เป็นอีกหนึ่งโปรเจกต์ใหม่ล่าสุดของตระกูลของตั้งเซ่งจั้ว ที่หวังใจว่าพื้นที่แห่งนี้จะเป็นเหมือนเพื่อนที่ยินดีต้อนรับนักเดินทางที่มาเยี่ยมเยือนฉะเชิงเทราเป็นอย่างดี พร้อมทั้งให้ประสบการณ์ใหม่ๆแบบไม่คาดคิดกลับไป
“OUI J’AIME” ในภาษาฝรั่งเศส แปลว่า “ใช่! ฉันชอบ”
ออกเสียงแบบไทยๆว่า “อุ้ยแจม” ซึ่งไปพ้องเสียงกับชื่อของ “คุณอุ้ย ปิยะพร ตันคงคารัตน์” ทายาทรุ่นที่ 3 ที่เป็นแรงขับเคลื่อนด้วยความรักที่ทำให้เกิดโปรเจกต์นี้ขึ้น
“เป็นบ้านเกิดเรา เราก็อยากทำอะไรที่ดีๆ ซึ่งธรรมชาติของเมืองแปดริ้ว คนส่วนใหญ่จะมาหาของอร่อยทาน หรือทำบุญไหว้พระที่วัด ไม่ได้เป็นเมืองที่คนตั้งใจมาพักแรมจริงจัง เราก็คิดอยากทำเพราะอยากให้ที่นี่ประสบการณ์กับนักท่องเที่ยว หรือมีความรู้สึกร่วมบางอย่างกับฉะเชิงเทรา” คุณอุ้ยเล่าให้ฟังถึงที่มาที่ไปของการเริ่มต้นโปรเจกต์นี้ บวกกับการได้สถาปนิกที่ตนชื่นชอบอย่าง “คุณสุริยะ อัมพันศิริรัตน์” สถาปนิกแห่ง Walllasia + Kyai&Suriya Architecture มาเปลี่ยนภาพความคิดให้เป็นความจริงแล้ว ยิ่งทวีคูณความน่าสนใจให้อุ้ยแจมมากขึ้นไปอีก
คุณสุริยะ อัมพันศิริรัตน์ สถาปนิกแห่ง Walllasia + Kyai&Suriya Architecture
ความพิเศษของพื้นที่
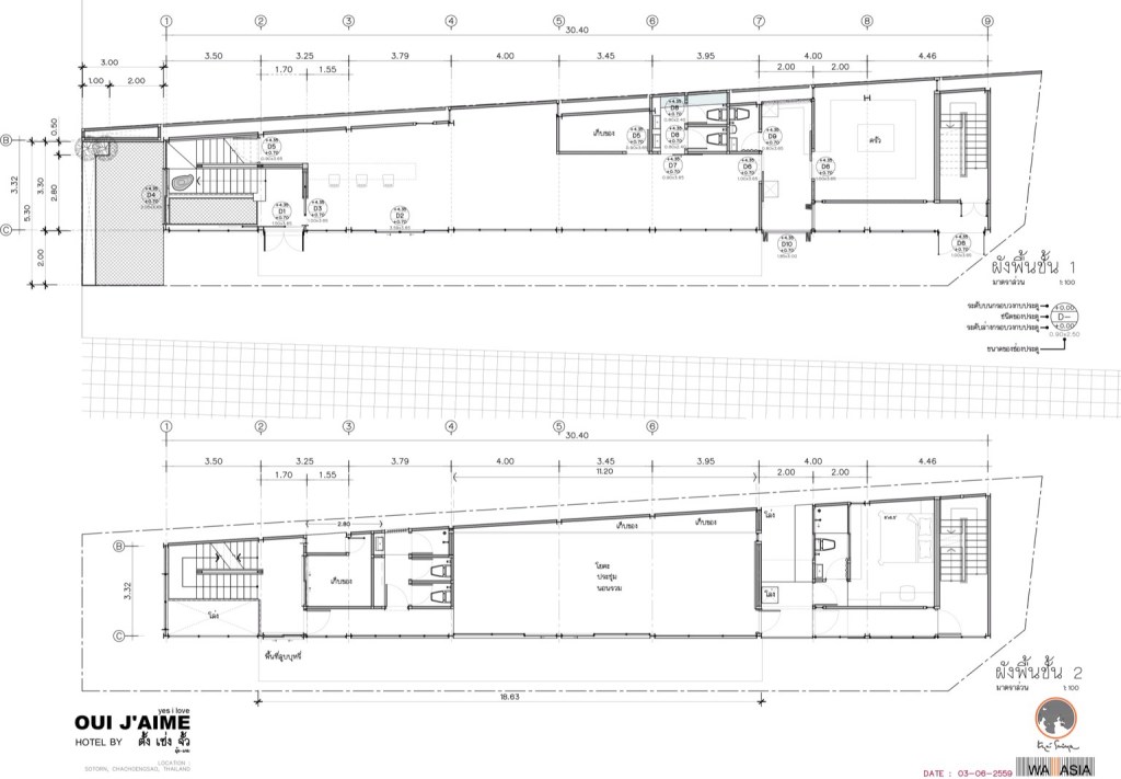
ด้วยลักษณะพิเศษของที่ดินแปลงนี้ ที่มีความกว้างกว่า 30 เมตร แต่ลึกเพียง 7 เมตร นับว่าเป็นความท้าทายหลักในการออกแบบ เพราะหากจะสร้างอาคารจริงๆตามกฏหมายระยะล่นหน้าหลังแทบจะไม่เหลือตัวพื้นที่อาคารแล้ว หากจะทำแค่ชั้นเดียวดูแล้วมันไม่คุ้มค่า สุดท้ายจึงกลายมาเป็นอาคารเหล็กสูง 4 ชั้น ข้างหลังทึบ และเว้นระยะเข้ามา 50 เซนติเมตรตามกฏหมายกำหนด ซึ่งเป็นตัวแปรสำคัญที่ทำให้อาคารออกมาเรียวเล็ก และมีพื้นที่ภายในส่วนแคบสุดเพียง 5 เมตร ซึ่งนั่นส่งผลต่อการเลือกใช้ “โครงสร้างเหล็ก” และรูปแบบพื้นที่ภายในที่จะออกแบบอย่างไรให้โล่งที่สุด
แปลนชั้น 1 และแปลนชั้น 2 ที่แสดงให้เห็นพื้นที่อาคารที่มีความแคบและยาว
“เหล็ก” ที่ให้ความรู้สึกเหมือน “ไม้”
“พอทางเดินอยู่ด้านหน้า เราก็ไม่อยากให้คนข้างนอกมองเห็นอย่างชัดเจน” คุณสุริยะเล่าให้เราฟังถึงความตั้งใจสร้างความกำกวมในการมองเห็น ด้วยFaçade เหล็กสนิมเจาะรูเล็กๆที่เอามาซ้อนกัน เพื่อบดบังมุมมองจากภายนอก ซึ่งในตอนเช้านั้นยังทำให้พื้นที่เกิดมิติของแสงเงาตกกระทบเข้ามาด้านในอีกด้วย
เพื่อไม่ให้วัสดุหลักอย่างเหล็กดูแข็งจนเกินไป การทำให้เกิดสีสนิมจะช่วยสลายความเป็นเหล็กออกไปบ้าง ทำให้องค์ประกอบต่างๆดูไม่แข็งทื่อไปหมด อีกนัยหนึ่งยังให้อารมณ์คล้ายกับอาคารไม้เก่าๆ ที่เราจะสัมผัสถึงความรู้สึกได้มากกว่า
เนื่องจากด้านหน้ามีสายไฟพาดผ่านหน้าอาคาร สถาปนิกจึงเลือกปลูกต้นประยูง ที่มีความสูงและใบค่อนข้างโปร่ง เพื่อให้มีส่วนบดบังสายไฟเล็กน้อย ในขณะที่ยังมองทะลุผ่านไปยังตัวอาคารได้บ้าง สร้างบรรยากาศที่สัมผัสถึงธรรมชาติ
ทำลายความคาดหวังระหว่างความรู้สึกและพื้นที่
“เราอยากจะรีเซทความคิดใหม่ ความคาดหวังของคนใหม่ ทำลายความเล็ก ที่คนคิดว่าพื้นที่ภายในอาคารหลังนี้ ห้องพักน่าจะเล็กมาก ปกติห้องทั่วไปเวลาเปิดไปจะเจอเตียงนอนใช่ไหมครับ ของเราจะไม่เจอ เปิดเข้าไปจะเจอกับต้นไม้ต้นหนึ่งแล้วก็มีที่นั่ง” คุณสุริยะกำลังพูดถึงพื้นที่ภายในห้องพักทั้ง 9 ที่มีการวางผังโดยมีพื้นที่ตรงกลางสำหรับนั่งพัก นั่งถอดรองเท้า วางถ้วยกาแฟและเป็นทางลมสามารถพัดผ่านเข้ามาได้ ฝั่งซ้ายจะเป็นห้องน้ำ ฝั่งขวาจะเป็นห้องนอน
ภายในห้องนอน ตกแต่งด้วยไม้เป็นหลัก ทั้งพื้นและผนัง ทำให้ห้องดูอบอุ่น
แปลนห้องพักทั้ง 9 ห้อง
ห้องนอนฝั่งส่วนที่แคบที่สุดของอาคาร เนื่องจากห้องมีขนาดเล็ก จึงออกแบบให้มีฝ้าเพนดานสูง ใช้เตียงสองชั้นเพื่อประหยัดพื้นที่ “มันอาจจะไม่เหมือนโรงแรมทั่วๆไป เพราะมันเป็นห้องพักเหมือนมาพักบ้านเพื่อน อาจจะไม่ได้สะดวกสบาย แต่มันมีประสบการณ์ร่วมบางอย่างที่มันเกิดขึ้นมา” คุณปืน วิชชาธร ประเสริฐสุข ผู้ออกแบบภายในกล่าว
ในส่วนของชั้นแรก เป็นร้านอาหาร และร้านขายขนมของฝากของแบรนด์ตั้งเซ่งจั้ว ด้วยขนาดพื้นที่ทำให้วางโต๊ะอาหารได้เพียงไม่กี่โต๊ะ สถาปนิกจะใช้วิธีการง่ายๆอย่างการติดกระจกเงา เพื่อสะท้อนองค์ประกอบภายในให้ดูกว้างขึ้น
ความพิเศษของการตกแต่งอยู่ที่กรงนกจีน ซึ่งเป็นการผสมผสานความเก่าและใหม่ คือ นกที่ทำจากอะคริลิคสีแดง และจัดแสงสะท้อนออกมาจากด้านใน
ชั้นสองที่เป็นห้องอเนกประสงค์ให้คนเข้ามาเช่าทำกิจกรรมต่างๆ สถาปนิกได้ออกแบบให้มีกันสาดที่ด้านบนเป็นบ่อน้ำล้น ต่อเนื่องออกมาจากพื้นไม้ ซึ่งนอกจากจะช่วยสร้างบรรยากาศอันร่มรื่นแล้ว บ่อน้ำนี้ยังสะท้อนภาพฉากธรรมชาติของท้องฟ้าและต้นประยูงด้านล่าง โดยบ่อน้ำนี้ ยังรองรับน้ำจากเครื่องปรับอากาศที่หยดลงมาจากด้านบนอีกด้วย
“จริงๆแล้วมันไม่เล็กหรอก มันอยู่ที่ว่าในความเล็กนั้น คุณเห็นอะไร” คุณสุริยะกล่าวทิ้งท้าย เกี่ยวกับวิธีการคิดที่ไม่เหมือนสถาปนิก หรือดีไซน์เนอร์ แต่เป็นการคิดแบบคนใช้ชีวิตจริงๆ เพราะว่าประเด็นเรื่องความคาดหวัง การรีเซทความคิดระหว่างความรู้สึกกับขนาดของพื้นที่ รวมถึงประสบการณ์ที่ผู้มาเยือนจะได้รับในจังหวัดฉะเชิงเทราที่แตกต่างออกไป
OUI J’AIME
เจ้าของ: ตั้ง เซ่ง จั้ว
สถาปนิก: สุริยะ อัมพันศิริรัตน์ และ ขยาย นุ้ยจันทร์ บริษัท วอลลาเซีย จำกัด
ทีมงานสถาปนิก: ปรีณาพร แสงศรี พนมพร พรมแปง
ออกแบบและจัดทำภูมิทัศน์: สุริยะ อัมพันศิริรัตน์ และ ประวิทย์ พูลกำลัง บริษัท วอลลาเซีย จำกัด
อินทีเรียดีไซน์: วิชชาธร ประเสริฐสุข บริษัท สตอเรจ สตูดิโอ จํากัด
กราฟฟิคดีไซน์เนอร์: ชาญชัย บริบูรณ์
วิศวกรโครงสร้าง: วิทยา บุญสุข
ผู้รับเหมาก่อสร้าง: สิทธา แผ่นทอง บริษัท สามพัฒนาก่อสร้าง จำกัด (สถาปัตยกรรม)
บริษัท มิลเลี่ยน เอ็กซ์ กรุ๊ป จำกัด (ตกแต่งภายใน)

































