OPENING HOURS: MONDAY – SUNDAY: 10.00 AM TO 8.00 PM

info@sitename.com | 987654321

Design Makes A Better Life.

การออกแบบ สถาปนิก สถาปัตยกรรม ไลฟ์สไตล์

พื้นที่แห่งความสุขขนาดกระทัดรัด ภายใต้สถาปัตยกรรม(พอ)ดิบพอดี

Paper Series A
Location: เชียงใหม่
Owner & Architects: สาริน นิลสนธิ D KWA DESIGN STUDIO
Photograph: จิณณวัตร บริหารกิจอนันต์

การออกแบบที่อยู่อาศัยภายในพื้นที่ที่มีอยู่อย่างจำกัด อาจเป็นหนึ่งเหตุผลที่เป็นอุปสรรคต่อความต้องการพื้นที่ใช้สอยที่หลากหลาย แต่สำหรับ คุณสาริน นิลสนธิ สถาปนิกแห่ง D KWA DESIGN STUDIOแล้วกลับกลายเป็นความท้าทาย ซึ่งผลลัพธ์ที่ปรากฏออกมาเป็นบ้านขนาดกะทัดรัดที่ใส่หลากหลายฟังก์ชันลงไปอย่างเต็มพื้นที่ ไม่ว่าจะเป็นที่อยู่อาศัยของตนเอง ออฟฟิศ ร้านกาแฟ หรือแม้แต่พื้นที่สวนเล็กๆหลังบ้าน บวกกับการออกแบบผ่านแนวคิด “Compact Tropical” สร้างบรรยากาศอันแสนร่มรื่นในการอยู่อาศัย

“ผมเริ่มออกแบบกระดาษ A4 แผ่นหนึ่ง แล้วเริ่มเขียนฟังก์ชันที่เราต้องการให้อยู่ภายในกระดาษ A4 นั้น” คุณเอกเริ่มเล่าเรื่องราวความสนุกในการออกแบบบ้านหลังนี้ ว่าสัดส่วนของพื้นที่แห่งนี้มีขนาดคล้ายคลึงกับขนาดของ A4 จึงลองขีดเขียนและวางฟังก์ชันทั้งหมดในกระดาษ A4 ซึ่งเป็นที่มาของชื่อบ้าน “PSA” หรือ Paper Series A นั่นเอง

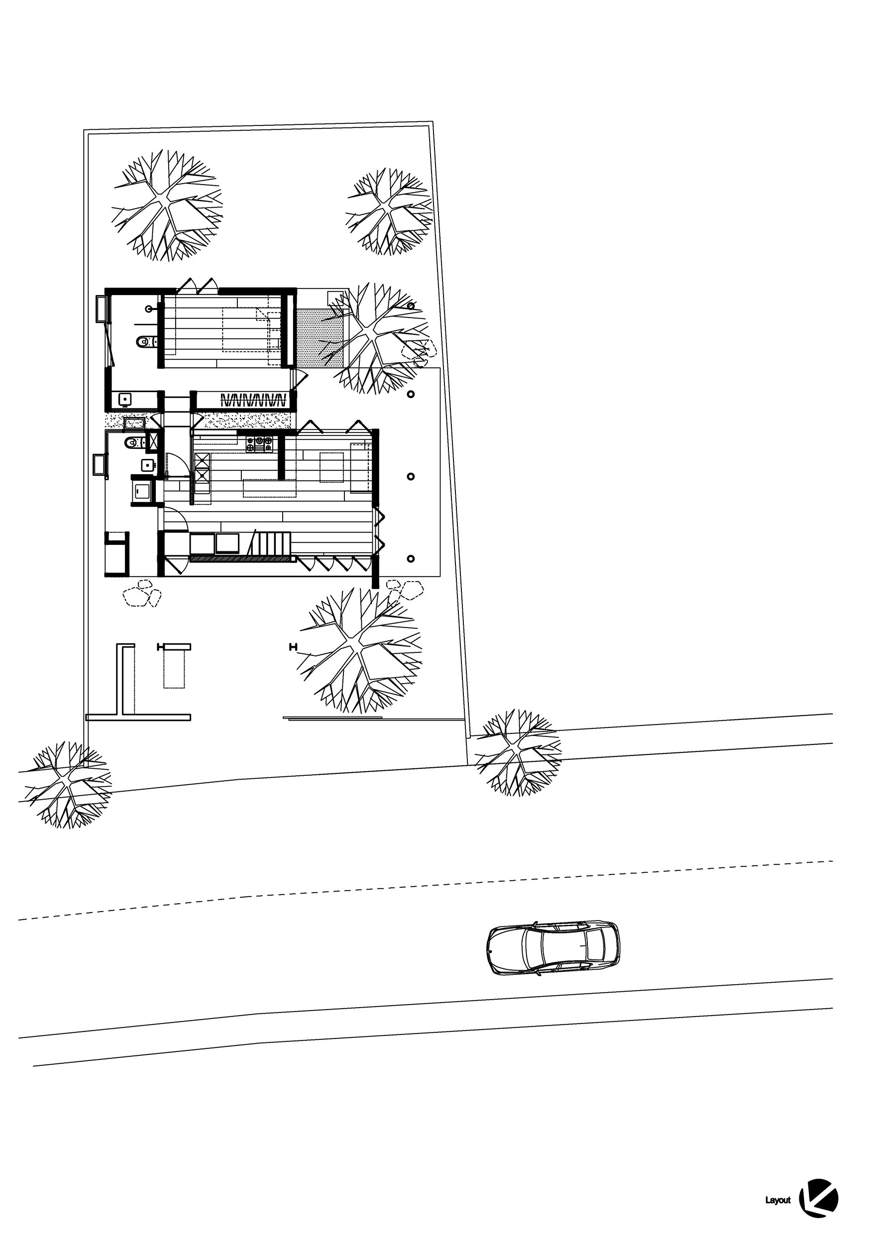
เลเอาท์พื้นที่ทั้งหมดของบ้าน

พื้นที่ทั้งหมด แบ่งออกเป็น 3 โซน โซนด้านหน้าจะเป็นโซนร้านอาหารที่กำลังวางแผนจะเปิดในอนาคต ด้านบนเป็นโซนออฟฟิศสถาปนิก ถัดเข้ามาโซนกลางก็จะเป็น ส่วนของที่อยู่อาศัย ห้องนั่งเล่น ห้องครัว ต่อเนื่องไปยังโซนหลังบ้านที่เป็นพื้นที่ส่วนตัว อย่างห้องนอนโอบล้อมไปด้วยสวนเล็กๆ

วางตำแหน่ง ยกใต้ถุน ในแบบฉบับ Tropical

“มันเป็นภูมิปัญญาเดิมของคนไทยอยู่แล้วล่ะครับ เรื่องยกใต้ถุน เรื่องการวางที่ตั้งของอาคาร ก็เป็นการออกแบบ Compact Tropical อยู่แล้ว” คุณเอกเริ่มต้นเล่าเกี่ยวกับการออกแบบโดยคำนึงถึงบริบทโดยรอบ ซึ่งเมื่อก้าวเท้าเข้าไปสู่พื้นที่ภายใน จะพบกับห้องนั่งเล่นที่สูงโปร่ง มีบาหน้าต่างกระจกทั้งด้านล่าง และด้านบน เพื่อเปิดรับแสงธรรมชาติในเวลากลางวัน

ด้านทิศใต้ของบ้าน สถาปนิกออกแบบให้เป็นพื้นที่สีเขียวทั้งหมดเชื่อมต่อออกไปจากห้องนั่งเล่น รวมถึงมีบ่อปลา บ่อน้ำ และเก็บรักษาต้นไม้ใหญ่ที่มีอยู่เดิมภายในพื้นที่ทุกต้นไว้ เพื่อสร้างบรรยากาศแห่งความร่มรื่น รวมถึงสร้างร่มเงาให้แก่ตัวบ้านในเวลากลางวัน ส่วนฝั่งทิศตะวันตก เปิดหลังคาให้มีช่องเปิดปิด เพื่อระบายอากาศ เมื่อมีลมเย็นๆพัดเข้ามาจากด้านทิศใต้ ความร้อนที่มันลอยตัวอยู่ด้านบนนั้นจะถูกพัดพาออกไป ทำให้อากาศไหลเวียนภายในบ้านตลอดทั้งวัน

แปลนบ้านชั้น 1 และชั้น 2

ทางเดินเชื่อมต่อจากห้องครัวไปสู่ห้องนอน

หากสังเกตดีๆห้องนอนหลักของที่นี่จะอยู่ชั้นล่างของบ้าน โดยพื้นที่ถูกแยกออกจากตัวบ้านหลักอย่างชัดเจน เสมือนบ้านอีกหนึ่งหลังย่อยๆ เพื่อเว้นระยะให้เกิดช่องที่ลมและแสงธรรมชาติสามารถเข้ามาได้ รวมถึงยกระดับของห้องนอนให้สูงกว่า ทำให้มีพื้นที่ใต้ถุนเล็กน้อย ข้อดีคือลมมันสามารถผ่านนำความชื้นที่อยู่ใต้พื้นออกไปได้

สัดส่วนพอดิบพอดีกับผู้อยู่อาศัย

“สัดส่วนของบ้านหลังนี้จะเป็นสัดส่วนที่ไม่สูงมากนัก เราออกแบบตามความสูงของเจ้าของบ้านครับ” คุณเอกอธิบายเรื่องสัดส่วนของบ้านอย่างอารมณ์ดีว่า ออกแบบจากสเกลของผู้อยู่อาศัยเองจริงๆนั่นคือ คุณเอกกับแฟน โดยพื้นที่ที่มีการใช้ร่วมกัน อย่างห้องนั่งเล่น ก็จะออกแบบให้เป็น Double Space ที่ให้ความรู้สึกโปร่งโล่ง ส่วนห้องครัวที่แฟนของคุณเอกใช้เพียงคนเดียวก็ไม่จำเป็นต้องสูงมาก ทำให้พื้นที่ต่างๆมีขนาดพอดีกับการใช้งาน แถมยังดูอบอุ่นมากขึ้นอีกด้วย

เรียบๆ แต่อบอุ่น

วัสดุหลักของบ้านหลังนี้ เน้นเป็นวัสดุธรรมชาติ ไม่ว่าจะเป็นไม้ ที่ถูกนำมาใช้ทั้งพื้นและผนัง คอนกรีตเปลือยที่เป็นทั้งโครงสร้างหลักของบ้านและผนังของบ้านในบางส่วน ผนังฉาบขัดมัน ผนังก่ออิฐโชว์แนว ผสมผสานปนเปกันอย่างลงตัว หาได้ง่าย ดูแลรักษาไม่ยาก ให้ความรู้สึกที่อบอุ่น ซึ่งเป็นความชอบส่วนตัวของคุณเอกอยู่แล้วด้วย อีกทั้งยังออกแบบลูกเล่นด้วยการใส่พื้นที่สีเขียวนานาพรรณที่แทรกแซงอยู่ในทุกพื้นที่ ช่วยสร้างบรรยากาศแห่งความร่มรื่นให้กับพื้นที่ทั้งภายในและภายนอกของบ้าน

แผ่นเหล็กสนิม” วัสดุพระเอกที่เราสามารถมองเห็นได้ตั้งแต่หน้าบ้าน ห่อหุ้มและช่วยกรองแสงแดดเข้ามาในส่วนของออฟฟิศในลักษณะของตู้คอนเทรนเนอร์ที่วางอยู่บนชั้นสอง ต้นไม้ใหญ่ที่อยู่หน้าบ้าน ซึ่งเป็นต้นไม้เดิมที่อยู่มาตั้งแต่แรก ปลายยอดของต้นสูงขึ้นไปถึงชั้นสอง ทำให้มุมมองที่มองผ่านหน้าต่างบานใหญ่ของออฟฟิศไปยังต้นไม้ รายล้อมไปด้วยสายลมและแสงแดดที่ช่วยเติมเต็มความน่าอยู่ให้กับบ้าน พร้อมทั้งสร้างความรู้สึกเชื่อมโยงระหว่างผู้อยู่อาศัยและธรรมชาติภายนอก

พื้นที่ทำงานในตู้คอนเทรนเนอร์

ด้วยความนึกสนุก อยากใช้ตู้คอนเทรนเนอร์ในการออกแบบภายในบ้านหลังนี้ คุณเอกจึงได้ตัดสินใจซื้อตู้คอนเทรนเนอร์มาก่อน 1 ตู้ เพื่อใช้สำหรับเก็บของในตอนก่อสร้าง แต่เมื่อการออกแบบและก่อสร้างนี้เสร็จสมบูรณ์ ตู้คอนเทรนเนอร์นี้ก็ได้กลายมาเป็นออฟฟิศ พื้นที่นั่งทำงานที่เชื่อมต่อออกมาจากชั้นสอง โดยออกแบบคานคอนกรีตยื่นออกมารับ ซึ่งข้อดีของการใช้ตู้คอนเทรนเนอร์นี้ นอกจากจะมีน้ำหนักเบาแล้ว ยังไม่ต้องทำโครงสร้างเพิ่มเติมอะไรมากมายอีกด้วย

ภายในปูพื้นและกรุผนังด้วยไม้ มีการเจาะช่องใส่กระจกบางส่วนเพื่อเชื่อมต่อบรรยากาศธรรมชาติภายนอก

พื้นที่ระหว่างตู้คอนเทรนเนอร์และตัวบ้าน ที่ออกแบบให้เป็นพื้นที่ว่างภายนอก สำหรับนั่งเล่นได้

“ผมเชื่อว่าทุกฟังก์ชันที่เราใช้อยู่ มันมีของมันอยู่แล้ว มันมีที่ไปที่มา เราแค่เรียบเรียงมันขึ้นมาใหม่ด้วย กายภาพเชิงที่ตั้ง ความต้องการ และก็งบประมาณ เพราะฉะนั้นทุกอย่างมันต้องถูกคิดมาด้วยเหตุผล ทั้งที่ว่าง วัสดุ ทำไมเลือกใช้วัสดุ เชื่อว่าการดีไซน์ที่ดี มันต้องตอบคำถามได้” คุณเอกกล่าวทิ้งท้ายเกี่ยวกับเหตุผลของผลลัพธ์ความลงตัวที่อยู่ตรงหน้า และทำให้เราสัมผัสถึงความเป็นไปได้ที่ว่า แม้มีพื้นที่จำกัด แต่ก็ไม่อาจจำกัดความสร้างสรรค์ในการออกแบบ

Discover more from Design Makes A Better Life.

Subscribe now to keep reading and get access to the full archive.

Continue reading