Location : กรุงเทพฯ
Area : 650 ตารางเมตร
Architect & Interior Designer : ธนวินทร์ พัฒนวงศ์ V2in Architects
Landscape Designer : พิณ อุดมเจริญชัยกิจ
Photographer : รุ่งกิจ เจริญวัฒน์
เมื่อความต้องการที่แตกต่างของคนสองวัยและสองครอบครัวมาบรรจบกัน และนี่คือจุดเริ่มต้นของบ้าน “RNEOC” หรือ Residence Neocity บ้านสไตล์มินิมอลสีขาวสุดเรียบง่ายสองหลังภายในพื้นที่เดียว โดยมีคุณวิน-ธนวินทร์ พัฒนวงศ์สถาปนิกจาก ”V2IN Architects” มาออกแบบบ้านทั้งสองหลังนี้ให้ตรงความต้องการของผู้อยู่อาศัยที่แตกต่างกัน ภายใต้ความสัมพันธ์ของพื้นที่ที่รวมเป็นหนึ่งเดียวกันได้อบอุ่นและลงตัวที่สุด
ความต้องการที่หนึ่ง-เจ้าของบ้านเป็นหนุ่มสาววัยกำลังเริ่มต้นสร้างครอบครัว ชื่นชอบการเล่นระดับของพื้นที่ ต้องการให้ทุกพื้นที่ภายในบ้านมองเห็นกันและกัน และมีพื้นที่สังสรรค์เพื่อต้อนรับเพื่อนๆที่มาเยี่ยมเยียน รวมถึงมีพื้นที่รองรับสมาชิกใหม่อีกสองคนที่จะเพิ่มขึ้นในอนาคตด้วย
ความต้องการที่สอง-เจ้าของบ้านเป็น คุณพ่อคุณแม่วัยเกษียณ ที่ชอบความภูมิฐานเรียบง่าย ต้องการความส่วนตัว พื้นที่สำหรับพักผ่อนร่วมกับธรรมชาติ
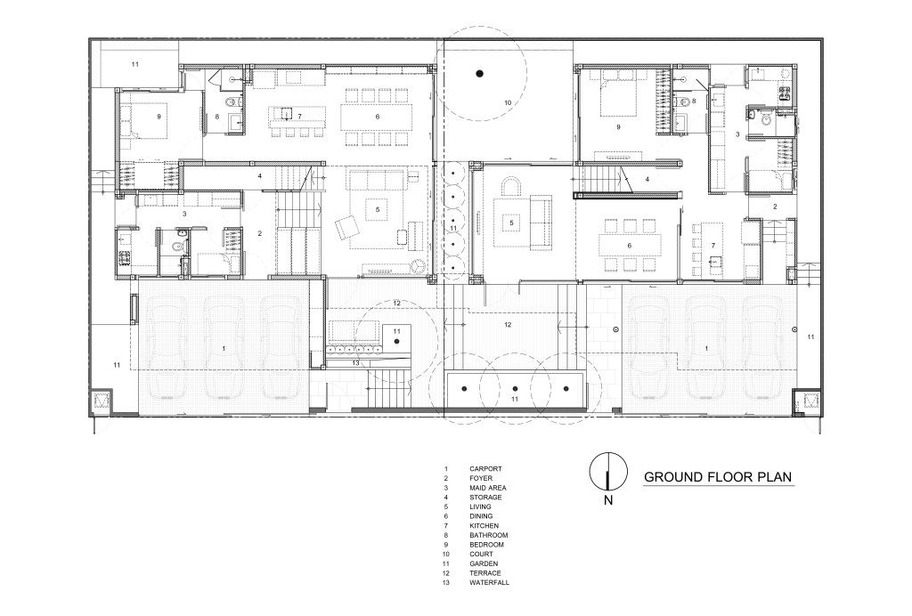
ภายใต้พื้นที่15×15 เมตรต่อกันสองแปลง ซึ่งมีขนาดเล็กเมื่อเทียบกับความต้องการทั้งหมดที่มีอยู่ สถาปนิกจึงเริ่มต้นออกแบบบ้านจากการใช้ชีวิตและความชอบของสมาชิกในแต่ละบ้านอย่างถี่ถ้วน โดยบ้านหลังแรก(ฝั่งซ้ายมือ)เป็นบ้านของครอบครัวหนุ่มสาว ที่มีการจัดเรียงระดับพื้นที่สัดส่วนการใช้งานใหม่ มีส่วนซ้อนทับกันเพื่อให้สามารถใช้พื้นที่ระหว่างชั้นได้อย่างคุ้มค่าและในขณะเดียวกันก็ช่วยลดทอนระดับความสูงรวมให้ใกล้เคียงกับบ้านอีกหลังซึ่งความสูงเท่ากับบ้านสองชั้นปกติ
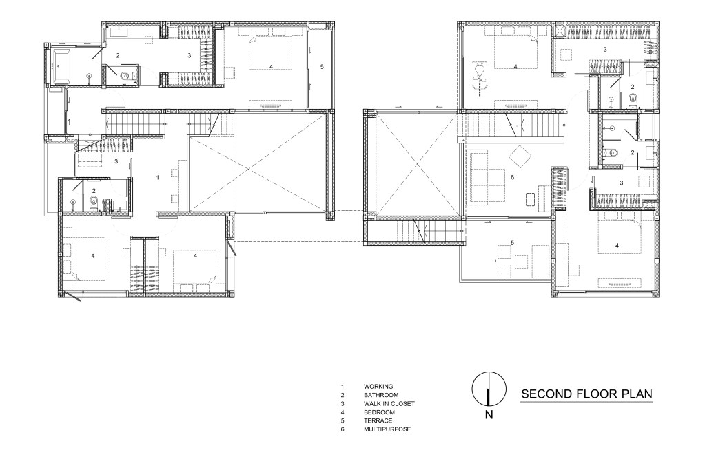
ห้องรับแขกหลักถูกยกตัวสูงขึ้นมากกว่าบ้านอีกหลังเล็กน้อยเพื่อสร้างความเป็นส่วนตัว และออกแบบพื้นที่ให้เป็น Double Volumn ในลักษณะโถงสูงที่เชื่อมต่อไปยังส่วนรับประทานอาหารและห้องครัวในด้านหลังแบบเปิดโล่ง ทำให้บ้านดูโปร่งและน่าอยู่มากยิ่งขึ้น บันไดที่เกิดขึ้นจากการยกระดับภายในบ้านถูกออกแบบให้เป็นชั้นวางรองเท้าไปในตัว ถัดขึ้นไปชั้นลอยเป็นส่วนของห้องทำงานและห้องนอน ส่วนชั้นบนสุดเป็นห้องMultipurpose
ส่วนบ้านฝั่งขวาเป็นบ้านสองชั้น จัดเรียงฟังก์ชันแบบเรียบง่ายไม่ซับซ้อน ไม่มีการเล่นระดับเพื่อให้เหมาะสมกับการใช้งานของผู้อยู่อาศัยที่เป็นผู้สูงอายุ รวมถึงเปิดมุมมองสู่พื้นที่ธรรมชาติให้มากที่สุดตามโจทย์ที่เจ้าของบ้านต้องการ
แปลนบ้านRNEOCชั้น 1 Credit : V2in Architects
แปลนบ้านRNEOCชั้น 2 Credit : V2in Architects
แปลนบ้านRNEOCชั้น 2 ครึ่ง Credit : V2in Architects
จุดเชื่อมต่อและความลื่นไหลของพื้นที่
แม้รูปแบบการใช้ชีวิตจะต่างกัน แต่บ้านทั้งสองก็มี ‘ความลื่นไหลของพื้นที่’ จากจุดหนึ่งไปยังบ้านอีกหลังหนึ่งเสมอ เช่น บ้านทั้งสองมีทางเข้าสู่ตัวบ้านสองทางด้วยกัน หนึ่งคือจากโรงจอดรถ และสองจากระเบียงหน้าบ้านกว้างที่เชื่อมถึงกันและกัน ซึ่งเป็นพื้นที่ที่ถูกออกแบบไว้เพื่อให้สมาชิกของทั้งสองบ้านไปมาหาสู่กันได้อย่างสะดวกสบาย รวมถึงดาดฟ้าชั้นบนสุดที่เชื่อมต่อออกมาจากห้องmulti-purpose ของบ้านทั้งสองหลัง นอกจากจะเป็นพื้นที่กิจกรรมของครอบครัวแล้ว ยังสามารถใช้พื้นที่เหล่านี้เพื่อต้อนรับเพื่อนที่มาเยี่ยมเยียนได้อีกด้วย
พื้นที่ระเบียงไม้หน้าบ้านที่สอดแทรกสวนและน้ำตกเล็กๆเพื่อเพิ่มบรรยากาศดีๆให้กับตัวบ้าน ซึ่งแม้มีระดับที่แตกต่างกันเล็กน้อย แต่ด้วยวัสดุที่ใช้ก็ทำให้พื้นที่กลายเป็นหนึ่งเดียวกัน
พื้นที่ระเบียงที่เชื่อมต่อออกมาจากห้อง multi-purpose
พื้นที่ดาดฟ้าระหว่างสองบ้าน
มุมมองที่ผสานความอบอุ่น
อีกหนึ่งจุดเชื่อมต่อสำคัญที่ผสานบ้านสองหลังให้กลายเป็นหนึ่งเดียวคือ บางมุมมองทุกคน ‘สามารถมองเห็นความเคลื่อนไหวซึ่งกันและกันได้’ เช่น ภายในห้องรับแขก ของทั้งสองบ้านที่เปิดมุมมองเข้าหากันและกัน แม้จะมีระดับความสูงห้องต่างกันและมีคอร์ทต้นไผ่กั้น เพื่อสร้างความเป็นส่วนตัว แต่หากยืนขึ้นแล้วมองไปยังบ้านอีกหลัง จะพบว่าสามารถมองเห็นกันและกันได้ ซึ่งทำให้การอยู่อาศัยเป็นไปอย่างพอดิบพอดีและเกิดปฏิสัมพันธ์ที่อบอุ่นระหว่างครอบครัวในขณะเดียวกัน
ภาพของมุมมองเมื่อยืนมองจากห้องนั่งเล่นบ้านของคุณพ่อคุณแม่(ฝั่งขวา)ไปยังบ้านของลูก(ฝั่งซ้าย)
เส้นสายเชื่อมต่อพื้นที่ธรรมชาติ
“ถ้ามองจากภายนอกจะมีเพียงแมททีเรียลสีขาว กระจก เพราะเราพยายามออกแบบให้บ้านดูคลีนที่สุด หมายความว่า ช่องเปิด จะเปิดเมื่อต้องการเชื่อมต่อผู้อยู่อาศัย แสง และต้นไม้เท่านั้น” สถาปนิกกล่าว นั่นคือเหตุผลว่าทำไมเราจึงเห็นบ้านทั้งสองหลังเส้นสายเฉียบคมตรงไปตรงมา หน้าต่างเป็นกระจกเปิดกว้างตั้งแต่พื้นจรดฝ้า และเชื่อมต่อมุมมองออกไปสู่พื้นที่ธรรมชาติ อย่างคอร์ทยาดที่ถูกออกแบบไว้ทั้งหน้าบ้าน กลางบ้าน และหลังบ้าน เติมเต็มบรรยากาศร่มรื่นภายในบ้านและทำให้บ้านดูชีวิตชีวามากยิ่งขึ้น
ภายในเน้นการตกแต่งสีขาวสุดเรียบง่ายเหมือนกันทั้งสองหลัง ใช้วัสดุไม้ในสีอ่อนเพื่อให้ดูโปร่ง และสบายตา ออกแบบชั้นวางของและตู้ต่างๆแบบบิวท์อิน รวมถึงออกแบบระบบปรับอากาศแบบฝังฝ้า เพื่อทำให้บ้านดูสวยงามและเรียบร้อยมากที่สุด
นอกจากความเรียบง่ายของเส้นสายการออกแบบ แสง และพื้นที่สีเขียวภายในบ้านที่ผสมผสานกันอย่างละมุนละม่อมแล้ว คงปฏิเสธไม่ได้ว่า บ้านหลังนี้ เป็นบ้านอีกหนึ่งหลังที่ใส่ใจการอยู่ร่วมกันระหว่างครอบครัวสองครอบครัวในช่วงวัยต่างกันได้อย่างลงตัว ตอบสนองการใช้งานตามแบบฉบับของสมาชิก ในขณะมีจุดเชื่อมต่อที่พอดีสำหรับการอยู่อาศัยได้อย่างกลมกล่อม

























