OPENING HOURS: MONDAY – SUNDAY: 10.00 AM TO 8.00 PM

info@sitename.com | 987654321

Design Makes A Better Life.

การออกแบบ สถาปนิก สถาปัตยกรรม ไลฟ์สไตล์

PLATINUM PLACE HOTEL โรงแรมที่สะท้อนดีเอนเอของอำเภอปลวกแดง ผ่านก้อนอิฐสีแดงที่ไม่เป็นระเบียบแต่เรียบร้อย

Location : อำเภอปลวกแดง จังหวัดระยอง
Architect : คุณณัฐพนธ์ จิตต์หมวด Lamoonta Architects
Photographs : DOF Sky|Ground

“ปลวกแดง” คือชื่ออำเภอหนึ่งในจังหวัดระยอง ที่รายล้อมไปด้วยนิคมอุตสาหกรรมซะเป็นส่วนใหญ่ ทำให้ปัจจุบันเปอร์เซนต์การอยู่อาศัยของคนต่างถิ่นเข้ามาทำงานเพิ่มมากขึ้นกว่าเดิม นี่อาจเป็นสัญญาณที่ดีในการพัฒนาหลายๆสิ่ง แต่ในทางกลับกันอาจทำให้ความตระหนักรู้ถึงพื้นที่ปลวกแดงค่อยๆจางลงไป ซึ่งสำหรับโรงแรม “Platinum Place Hotel” ที่เจ้าของมีดีเอนเอของอำเภอปลวกแดงไหลเวียนอยู่ในร่างกาย ก็อยากจะให้พื้นที่แห่งนี้กลายเป็นแรงขับเคลื่อนเล็กๆต่อไป ผ่านฝีมือการรีโนเวทของคุณบี๊บ-ณัฐพนธ์ จิตต์หมวด สถาปนิกแห่ง Lamoonta Architects ที่สร้างภาพจำใหม่ให้กับอาคารผ่านฟาซาดอิฐที่แสดงตัวตนของพื้นที่ปลวกแดงได้อย่างสวยงาม

Platinum Place Hotel เป็นโรงแรมที่ตั้งอยู่ริมถนนสายระยอง.3013 อำเภอปลวกแดง จังหวัดระยอง เดิมทีเป็นสำนักงานขายคอนโดที่เป็นกิจการหลักของเจ้าของ ซึ่งหลังจากโครงการถูกขายหมดแล้ว ก็ยังคงใช้เป็นออฟฟิศและแบ่งพื้นที่ให้เช่าบางส่วน สุดท้ายมีความคิดริเริ่มอยากจะปรับเปลี่ยนพื้นที่แห่งนี้ให้เป็นโรงแรม โดยมีข้อจำกัดเรื่องของงบประมาณและอยากรองรับลูกค้าที่มาพักในมาตรฐานที่ดีขึ้น พร้อมทั้งอยากให้อาคารสื่อถึงความเป็นปลวกแดงได้ด้วยในคราวเดียวกัน

รูปอาคารก่อนการรีโนเวท Credit : Lamoonta Architects

ฟาซาดแนวหน้าของปลวกแดง

“แนวของคานเดิมค่อนข้างไม่เป็นระเบียบ พื้นที่ภายในถูกกั้นเป็นออฟฟิศและห้องตัวอย่าง ไม่ได้เหมาะกับการเอามาทำโรงแรมสักเท่าไหร่ บวกกับมีการคุมเรื่องบัดเจท ถ้าเรามานั่งแก้ปัญหาเปลี่ยนรูปด้านทุกด้านมันจะเป็นเรื่องใหญ่ เลยทำฟาซาดล้อมไปเลย” สถาปนิกกล่าวถึงเรื่องราวเริ่มต้นในการรีโนเวทอาคารหลังนี้ โดยเก็บโครงสร้างพื้นฐานไว้ทั้งหมดแม้กระทั่งหลังคาจั่วและแนวคานที่ไม่เป็นระเบียบสักเท่าไหร่ แต่สร้างภาพใหม่ด้วยการออกแบบฟาซาดด้วยวัสดุท้องถิ่นในจังหวัดระยองอย่าง “อิฐแดง” ปกคลุมไว้แนวหน้าอาคาร ภายใต้การเชื่อมโยงบริบทกับคำว่า “ปลวกแดง” ให้โดดเด่นสะดุดตาแก่ผู้คนที่ผ่านไปมา และสร้างความเป็นส่วนตัวให้กับห้องพักภายในชั้นสองไปพร้อมๆกัน

ก่อร่างสร้างความไม่เป็นระเบียบแต่เรียบร้อย

สถาปนิกถ่ายทอดแนวคิดจากรูปฟอร์มของรังปลวกที่มีรูพรุนและความไม่เป็นระเบียบ ผ่านการเรียงอิฐของฟาซาดในรูปแบบที่ดูแรนดอม เพื่อให้เกิดมิติที่หลากหลาย แต่เนื่องจากช่างก่อสร้างเป็นช่างท้องถิ่นที่ต้องอาศัยการสื่อสารและรูปแบบที่เข้าใจง่าย ดีเทลของฟาซาดที่แท้จริงจึงมีแพทเทิร์นที่ชัดเจนซ่อนอยู่ โดยแบ่งออกเป็น 3 เลเยอร์หลักๆ ได้แก่ บน กลาง และล่าง ไล่ระดับความถี่-ห่างของช่องว่างระหว่างก้อนอิฐจากน้อยไปมาก และเรียงอิฐบางส่วนให้ยื่นออกมา เพื่อสร้างมิติของแสงและเงา รวมถึงเน้นสถาปัตยกรรมให้มีความเด่นชัดสะดุดตาเมื่อตัดกับสีฟ้าของท้องฟ้าในเวลากลางวัน

ไดอะแกรมแพทเทิร์นการเรียงอิฐของฟาซาดโรงแรม Platinum Place Hotel Credit : Lamoonta Architects

รูปแบบการเรียงอิฐเช่นนี้ ยังทำให้เกิดเอฟเฟคแสงและเงาจากธรรมชาติที่สวยงามด้วย แต่ปัญหาที่เกิดขึ้นคืออิฐแต่ละก้อนจะมีพื้นที่สัมผัสกันน้อย อาจส่งผลเรื่องความแข็งแรงของโครงสร้างในภายหลังได้ ซึ่งการเสริมโครงคร่าวเหล็กด้านหลังฟาซาดทุกๆ 1 เมตร แทนการก่อปูนในปริมาณที่มากกว่าปกติ(ที่อาจทำให้แพทเทิร์นที่ออกแบบไว้ผิดเพี้ยนได้) ก็เป็นอีกหนึ่งวิธีแก้ปัญหาที่ยังสามารถคงรูปแบบความสวยงาม ไปพร้อมๆกับเสริมสร้างความแข็งแรงให้กับตัวอาคารได้อย่างลงตัว

เฉพาะเจาะจงเป็นพิเศษ

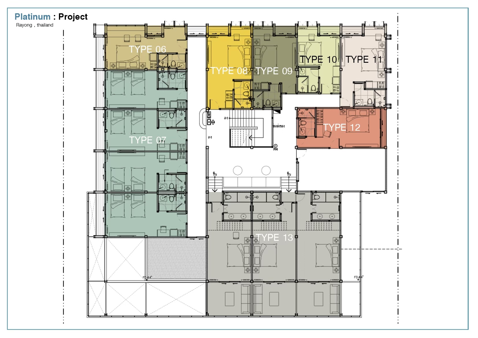
สำหรับการรีโนเวทภายใน เดิมทีพื้นที่ถูกกั้นผนังเป็นห้องๆ เพื่อให้เป็นสำนักงานขายและห้องตัวอย่างคอนโด รวมถึงกริดของเสาและคานมีระยะห่างที่ไม่เท่ากัน การแบ่งสัดส่วนของห้องพักจึงเป็นอีกงานหินที่ผู้ออกแบบต้องเจอ ผลลัพธ์ของการออกแบบคือ “18 ห้องนอน 13 รูมไทป์” ซึ่งแบ่งหลักๆได้เป็นรูปแบบ Studio และ Duplex ที่มีชั้นลอย นอกจากจะมีพื้นที่การใช้งาน การจัดเฟอร์นิเจอร์ และวิวทิวทัศน์ที่แตกต่างกันในแต่ละห้องแล้ว ยังมีภาพวาดกราฟิคในโทนสีแดงตกแต่งเฉพาะตัว โดยทีมออกแบบตั้งใจสร้างสรรค์ออกมาเป็นพิเศษ ด้วยการลดทอนเส้นสายมาจากกราฟิคหลักของทางราชการในอำเภอปลวกแดง ที่ทำร่วมกับคณะมัณฑนศิลป์ เพื่อให้ภาพรวมที่ต้องการสื่อถึงตัวตนปลวกแดงเป็นไปในทิศทางเดียวกัน

ตัวอย่างรูปแบบกราฟิคในรูมไทป์ 7 และ 8 Credit : Lamoonta Architects

ห้องในรูปแบบสตูดิโอ ถูกวางแปลนให้ห้องน้ำมาติดชิดประตูทางเข้า
เพื่อทำให้ห้องพักดูกว้าง สัมผัสได้ถึงความโปร่งโล่ง และเปิดรับแสงเข้ามาได้มากที่สุด

ส่วนห้อง Duplex มีทั้งหมด 3 ห้อง ตำแหน่งอยู่ภายใต้หลังคาจั่วที่ถูกรื้อฝ้าทิ้งไป ทำให้ได้สเปซเพิ่ม เพียงพอที่จะสร้างชั้นลอยภายในห้องพัก และออกแบบระเบียงให้มีพื้นที่ติดกับฟาสาดอิฐแดงด้านหน้าอาคาร เพื่อเพิ่มลูกเล่นพิเศษให้บรรยากาศเหมาะสำหรับการพักผ่อนมากยิ่งขึ้น

แปลนชั้น 1 ของโรงแรม Platinum Place Hotel Credit : Lamoonta Architects

แปลนชั้น 2 ของโรงแรม Platinum Place Hotel Credit : Lamoonta Architects

สื่อความหมายตรงไปตรงมาด้วยโทนสีแดง

การตกแต่งภายในเน้นบรรยากาศให้ดูอบอุ่นเป็นกันเอง เฟอร์นิเจอร์และของตกแต่งต่างๆ ส่วนใหญ่ได้มาจากของภายในพื้นถิ่น พื้นกระเบื้องในส่วนล็อบบี้และทางเดินเป็นกระเบื้องยาง ถูกออกแบบลวดลายสีขาวดำคล้ายผ้าขาวม้า ส่วนกำแพงถูกทาสีในโทนสีแดงในบางจุด และมีกราฟิคลายการ์ตูนน้องปลวกที่เข้ามาเพิ่มสีสันให้กับพื้นที่ดูสดใสมากยิ่งขึ้น เป็นการสื่อความหมายถึงอำเภอปลวกแดงอย่างตรงไปตรงมา

ตัวอย่างไดอะแกรมลวดลายกราฟิคและลายการ์ตูนปลวกน้อยในโทนสีแดง Credit : Lamoonta Architects

เนื่องจากด้านหลังอาคารที่มีส่วนเชื่อมต่อกับสระว่ายน้ำเดิม มีขนาดและระดับคานไม่เท่ากัน ดูแล้วไม่เป็นระเบียบ จึงมีการต่อเติมเส้นตั้งให้เส้นสายทางสถาปัตยกรรมมีระเบียบเรียบง่ายในทิศทางเดียวกัน พร้อมปรับวงกบกระจกห้องพักใหม่และเพิ่มพื้นที่ระเบียงให้แต่ละห้องพักไปด้วยในตัว

“ต้องยอมรับนะว่าในนิคมอุตสาหกรรมคนที่เป็นคนปลวกแดงจริงๆไม่ได้เยอะ แต่เป็นคนต่างจังหวัดที่มาอยู่เพื่อทำงาน ความหลากหลายทางผู้คนมันทำให้คำว่าปลวกแดงค่อยๆหายไป แต่พอเราทำตรงนี้ขึ้นมา มันเหมือนเรากำลังขุดมันขึ้นมาใหม่ ทำให้ทุกคนตระหนักขึ้นมาว่า ที่นี่คือปลวกแดงนะ เป็นแรงขับเคลื่อนบางอย่างให้บริบท มองเห็นความเป็นไปได้จากสิ่งที่เราออกแบบ” สถาปนิกกล่าวปิดท้าย แน่นอนว่าปลวกอาจไม่ใช่สัตว์ที่น่ารักในสายตาของทุกคน แต่ความเป็นปลวกแดงที่สะท้อนผ่านการออกแบบ Platinum Place Hotel นี้ ก็ทำให้เจ้าของเห็นคุณค่าของงานออกแบบและช่างก่อสร้างมีสกิลในการดูแบบที่ไม่เคยทำมาก่อน ความสุขของโปรเจกต์นี้อาจไม่ใช่แค่ตัวงาน แต่เป็นความรู้สึกภูมิใจของทุกคนที่ร่วมกันสร้างผลงานชิ้นนี้จนสำเร็จ

Discover more from Design Makes A Better Life.

Subscribe now to keep reading and get access to the full archive.

Continue reading