OPENING HOURS: MONDAY – SUNDAY: 10.00 AM TO 8.00 PM

info@sitename.com | 987654321

Design Makes A Better Life.

การออกแบบ สถาปนิก สถาปัตยกรรม ไลฟ์สไตล์

Fallingwater house เมื่อบ้านกับน้ำตก รวมเป็นหนึ่งเดียวกัน เกิดสถาปัตยกรรมระดับ master piece

ยินดีต้อนรับผู้อ่านทุกคนอย่างเป็นทางการสู่เดือนสิงหาคมนะครับ เดือนที่สายฝนกำลังโปรยปรายอยู่ไม่ขาดสาย พื้นถนนและทางเดินที่เจิ่งนองไปด้วยน้ำจากก้อนเมฆกลั่นตัว เราอยู่ในช่วงฤดูฝนกันมาพักนึงแล้ว หลายคนอาจจะไม่ชอบหน้าฝน กับการเดินทางที่ติดขัดมากขึ้นและต้องเปียกปอนหากเตรียมตัวมาไม่พร้อมรับมือกับฝนที่ทักทายเราแบบไม่ทันตั้งตัว แต่เดาว่าคงมีผู้อ่านไม่น้อยเช่นกันชื่นชอบอากาศที่ชุ่มชื้นแบบนี้อยู่เหมือนกัน แล้วถ้าหากเราสามารถเติมความฉ่ำเย็นแบบนี้ให้กับบ้านของเราได้ เรียนการการดีไซน์สถาปัตยกรรมให้อยู่ร่วมกันกับน้ำ ก็น่าจะเป็นเรื่องน่าสนุกไม่น้อยใช่มั้ยละครับ

1(ภาพจาก http://www.archdaily.com/60022/ad-classics-fallingwater-frank-lloyd-wright)

เป็นที่มาของ concept ใหม่ของเราประจำเดือนนี้ water house ,moisturizing life “บ้านชุ่มชื้น ชีวิตชุ่มฉ่ำ” เรื่องราวสาระการรังสรรค์บ้านพักอาศัยของคุณให้ใกล้ชิดกับแหล่งน้ำมากขึ้น เติมความชุ่มฉ่ำ เย็นสบายให้กับชีวิตในบ้านของคุณเอง เริ่มต้นการเดินทางครั้งนี้ด้วยการพาผู้อ่านทุกคนให้มารู้จักกับสุดยอดงานสถาปัตยกรรมติดน้ำระดับโลก แหล่งน้ำที่ว่านี้ก็ไม่ใช่เป็นเพียงบ่อ หนอง คลอง หรือบึงซะด้วย แต่เป็นน้ำตกใจกลางธรรมชาติที่ยังอุดมสมบูรณ์อยู่เลยละครับ ชวนคุณมาติดตามทำความรู้จักกันได้เลย แล้วคุณจะรู้ว่า ทำไมเราถึงอยากแนะนำผู้อ่านทุกคนให้รู้จักกับบ้านน้ำตกหลังนี้

3

(ภาพจาก http://the189.com/architecture/admiring-the-work-of-architect-frank-lloyd-wright/)
2

(ภาพจาก https://en.wikipedia.org/wiki/Fallingwater)

บ้านน้ำตก Fallingwater house (1935)

หลานคนอาจจะเพิ่งเคยได้ยินชื่อของ Fallingwater house เป็นครั้งแรก แต่ถ้าหากคุณเป็น 1ในนักเรียนสายออกแบบอาคารบ้านพักอาศัย ย่อมต้องคุ้นหูกับชื่อนี้เป็นอย่างดี เพราะเป็นผลงานการออกแบบที่ได้รับการกล่าวถึงอยู่อย่างไม่ขาดสายจนถึงในปัจจุบัน สถาปัตยกรรมตัวอย่างชิ้นอมตะ เทียบเคียงได้กับหนังชั้นคลาสสิคอย่าง star war ของ josh lucas ได้เลยถ้าคุณยังไม่เห็นภาพ ส่วนผู้กำกับผลงานชิ้นนี้คือ Frank Lloyd Wright สถาปนิกชื่อก้องชาวอเมริกันชื่อดังแห่งยุคสถาปัตยกรรมสมัยใหม่ (Modern Architecture) ผู้ที่เป็นทั้งนักวิชาการความรู้ นักเขียน สถาปนิกที่ออกแบบทั้งภายนอกและภายใน ฝากผลงานการออกแบบที่มือชื่อเสียงมากมาย ตั้งแต่โรงแรม โรงเรียน สำนักงาน พิพิธภัณฑ์ โบสถ์ และมีบ้านน้ำตก Fallingwater ก็เป็นหนึ่งในผลงานเหล่านั้น

4

 

(ภาพจาก https://mohammedvocation.wordpress.com/tag/falling-water/)

ผลงานการสร้างสรรค์ภายใต้การขับเคลื่อนแนวคิดสำคัญด้วยการสร้างงานสถาปัตยกรรมแบบ organic architecture การยึดธรรมชาติเป็นศูนย์กลาง ปรัชญาการออกแบบที่เน้นความสัมพันธ์ กลมกลืนกัน ของวิถีชีวิตมนุษย์กับธรรมชาติหลอมรวมเป็นหนึ่งเดียว การจัดวางสถานที่ตั้ง ตัวอาคาร ส่วนตกแต่ง และสภาพแวดล้อม ให้เป็นชิ้นส่วนของกันและกันอย่างลงตัว เป็นการเปิดโอกาสให้ผู้คนที่อยู่อาศัยในอาคารได้สัมผัสและลิ้มรสธรรมชาติรอบตัวได้อย่างชุ่มฉ่ำมากขึ้นนั่นเอง จากผลงานที่มีสไตล์โดเด่นเฉพาะตัวเช่นนี้ทำให้ Wright ได้รับการยกย่องเป็นเจ้าแห่ง organic architecture เลยละครับ

6

 

(ภาพจาก http://www.archdaily.com/60022/ad-classics-fallingwater-frank-lloyd-wright)

5

(ภาพจาก http://www.modernismweek.com/jack-lenor-larsen-my-iconic-clients-the-architects/)

บ้านน้ำตกหลังนี้อยู่ที่รัฐ Pennsylvania เมือง Mill Run ข้างๆเมืองใหญ่ประจำรัฐอย่าง Pittsburgh ประเทศสหรัฐอเมริกา เจ้าของบ้านคือนาย Edgar J. Kaufmann Sr. ด้วยลักษณะตัวบ้านอันโดดเด่นตั้งอยู่เหนือคล่อมกลางน้ำตก ทำให้สามารถลงไปสัมผัสน้ำตกได้จากในตัวบ้าน หรือจะนอนเอกเขนกตอนบ่ายวันอาทิตย์ฟังเสียงน้ำตกพร้อมหนังสือนิยายเล่มโปรดในมือของคุณไปด้วยก็ได้ ย้อนกลับไปตอนแรกเริ่มนาย Kaufmann มีความคิดอยากสร้างบ้านพักผ่อนเพื่อสถานที่สังสรรค์กับกลุ่มลูกค้าและพักผ่อนสุดสัปดาห์ของครอบครัว พร้อมชมวิวน้ำตกที่สวยงามจากพื้นที่ละแวกน้ำตก จึงติดต่อไปหาสถาปนิกที่กำลังมีผลงานน่าจับตามองอย่าง Frank Lloyd Wright เมื่อ Wright ได้พูดคุยและตกลงที่จะรับทำงานชิ้นนี้ เขาเริ่มต้นกระบวนการออกแบบด้วยการออกสำรวจบริเวณน้ำตกโดยรอบอย่างละเอียด หินทุกก้อนที่วางตัวรอบๆบริเวณน้ำตก จังหวะการเหลื่อมทับกัน ขนาดพื้นที่ของก้อนหิน กลับมาครุ่นคิดแล้วจึงนำเสนอแนวความคิดสุดเซอร์ไพรส์ให้กับ Kaufmann ว่าควรจะสร้างบ้านขึ้นคล่อมกลางน้ำตกเสียเลย นาย Kaufmann ได้รับฟังแล้วก็ตกลงรับไอเดียสุดท้าทายในครั้งนี้
8

 

(ภาพจาก http://www.fallingwater.org/)

ลักษณะพิเศษของอาคาร

การสร้างบ้านคร่อมอยู่กลางลำน้ำของน้ำตกเป็นไอเดียฟังดูน่ามหัศจรรย์และไม่เคยมีใครพบเห็นมาก่อนครั้งนี้ ไม่ได้ถูกก่อสร้างขึ้นง่ายๆเหมือนอย่างที่แค่พูดออกไป ย้อนกลับไปในสมัยนั้นที่วิทยาการณ์เทคโนโลยีการก่อสร้างยังไม่ค่อยมีการทำพื้นยื่นออกไปกลางอากาศ (cateliever) ออกมาเป็นระยะทางยาวๆเหมือนในปัจจุบัน แต่โครงสร้างบ้านน้ำตกหลังนี้ท้าทายแรงโน้มถ่วงของธรรมชาติและความแข็งแรงของโครงสร้างด้วยการยื่นพื้นผิวอาคารให้ลอยตัวกลางอากาศออกจากน้ำตกจากลำธาร Mill Run เป็นระยะทางกว่า 30 ฟุต ! (9 เมตร)
9

 

(ภาพจาก http://www.utdallas.edu/~pradiptaray/fireplace.html)

ฐานการก่อสร้างที่ไม่ได้อยู่บนชั้นดินแบบทั่วไป แต่วางฐานรากลงบนก้อนหินดั้งเดิมของน้ำตก หินที่ย่อมต้องเปียกน้ำจากน้ำตกอยู่เสมอย่อมต้องเป็นอุปสรรคในการทำงานโครงสร้าง แต่ Wright ก็เลือกที่จะเก็บก้อนหินทุกก้อนไว้ดังเดิมอย่างที่มันเคยอยู่ ไม่มีการเลื่อน ตัด ย้ายออกไป รักษาสภาพของธรรมชาติเอาไว้เพื่อการรบกวนให้น้อยที่สุด ทำให้เราได้เห็นตัวอย่างได้จากแท่งหินขนาดใหญ่ในห้องนั่งเล่น หินของน้ำตกที่โผล่ออกมาขวางเตาผิงเอาไว้ ไม่มีการดัดแปลงใดๆกับเจ้าหินก้อนนี้ แต่เลือกที่จะเสริมวัสดุปูพื้นให้ทีพื้นผิว ที่คล้ายคลึงกันเข้าไปแทน ไปจนถึงรูปแบบสถาปัตยกรรม การยื่นและหดของผนังแต่ละส่วนให้สอดคล้องกับชั้นหินของน้ำตก คล้ายกับการพยายามจะเจรจาภาษาเดียวกันของทั้งสถาปัตยกรรมและธรรมชาติ เป็นบทสนทนาที่แสนสุภาพและละมุนละม่อมต่อกัน นับว่านี่คือการออกแบบที่เน้นการแนบเนียนไปกับธรรมชาติ ทั้งรูปฟอร์มอาคารภายนอกไปจนถึงพื้นที่ภายในได้อย่างสวยงามลงตัว

10

 

(ภาพจาก http://www.busyboo.com/2010/09/01/modern-house-fallingwater/)

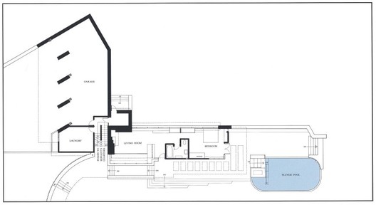
ตัวบ้านไม่ได้สร้างให้ใหญ่โตมากนัก เพราะต้องการลดขนาดให้สร้างพื้นที่เท่าที่จำเป็น ไม่ทับฉากหลังความสวยงามของน้ำตกมากจนเกินไป อาคารทีมีส่วนบริการ และโรงรถแยกออกมา มีสระว่ายน้ำที่ใช้น้ำจากน้ำตกไหลผ่านโดยตรง สัมผัสกับน้ำเย็นจากธรรมชาติได้โดยไม่ต้องมีระบบกรองน้ำ ใช้น้ำที่จะไหลเวียนถ่ายเทอยู่ตลอดเวลา เป็นระบบเครื่องกรองตามธรรมชาติ มีระเบียงกว้างขนาดใหญ่จำนวนมาก เพื่อชมวิวของธรรมชาติที่สมบูรณ์ภายนอก บ้านน้ำตกสามารถแบ่งเป็นสองส่วนหลักๆ ได้แก่11(ภาพจาก http://www.fallingwater.org/)

 

 

Fallingwater

(ภาพจาก http://www.fallingwater.org/)

– Main House อาคารหลักเป็นส่วนพักอาศัยหลักของครอบครัว จัดเป็นพื้นที่ส่วนตัว (Private Zone) ของบ้าน เป็นส่วนของอาคารที่ยื่นออกไปกลางอากาศคร่อมอยู่กลางน้ำตกของลำธาร Mill Run นั้นเอง มีสามชั้น ส่วนที่น่าสนใจอยู่ที่ชั้นหนึ่ง นั่นคือการทำให้เป็นเหมือนพื้นที่เปิดโล่ง ไม่ใช่ผนังอาคารทึบมาปิดล้อม แต่ใช้แนวผนังกระจกแทน พร้อมกับใช้กรอบวงกบกระจกขนาดใหญ่ขึ้น ลดจำนวนความถี่ของวงกบที่จะไปบดบังสายตาเอาได้ เพื่อที่จะแก้ปัญหาความสูงของห้องที่ค่อนข้างเตี้ยในชั้นนี้   ให้คนที่เข้าไปใช้งานหันเหความรู้สึกกดดันจากเพดานเตี้ยๆ เบนความสนใจสู่แนวทัศนียภาพกว้างที่สวยงามภายนอก เปิดมุมมองโปร่งโล่งทางสายตาที่กว้างออกไปในพื้นที่นี้ สร้างบรรยากาศสบายๆ ให้ความรู้สึกแวดล้อมจากธรรมชาติบรรเทาความอึดอัดจากพื้นที่ภายใน13

(ภาพจาก http://www.archdaily.com/60022/ad-classics-fallingwater-frank-lloyd-wright

 

14

(ภาพจาก http://www.archdaily.com/60022/ad-classics-fallingwater-frank-lloyd-wright)

– Guest Wing ปีกอาคารรอง จัดเป็นส่วน Public Zone ของอาคารที่ใช้เป็นพื้นที่ต้อนรับ มีไว้สำหรับการรับแขก พบปะพูดคุย และส่วนจัดประชุมกันระหว่างครอบครัว Kaufmann กับกลุ่มลูกค้าของเครือธุรกิจของพวกเค้า

– แม้จะได้ทำเลที่ตั้งและทัศนียภาพที่สวยงามใกล้ชิดสุดๆ อยู่ติดกับธรรมชาติที่สมบูรณ์ แต่ก็มีปัญหาเกิดกับตัวบ้านอยู่ด้วยเหมือนกันครับ โดยเฉพาะเรื่องของความชื้นในอากาศที่สูงเกินความพอดีในบางครั้ง ทำให้ข้าวของที่อยู่ภายนอกมีไอน้ำเกาะ และปัญหามีน้ำจากน้ำตกรั่วซึมมาที่ตัวบ้านอยู่เสมอๆ

15

 

(ภาพจาก http://www.archdaily.com/60022/ad-classics-fallingwater-frank-lloyd-wright)

16

(ภาพจาก http://www.busyboo.com/2010/09/01/modern-house-fallingwater/(

1 ในงานสถาปัตยกรรมยอดนิยมที่สุดของคนอเมริกันตลอดกาล

ด้วยความยอดเยี่ยมในหลายๆด้านที่เราได้พูดถึงกันมา คงจะเป็นตัวพิสูจน์ได้เป็นอย่างดีถึงงานชิ้น master piece ของ Frank Lloyd Wright ที่ทำให้ทั้งเค้าและบ้านหลังนี้โด่งดังขึ้นในระดับโลก จนได้รับการจัดอันดับเข้าเป็น 1 ในงานสถาปัตยกรรมยอดนิยมของคนอเมริกันตลอดกาล ( America’s Favorite Architecture of all times) อยู่ในลำดับงานสถาปัตยกรรมหมายเลขที่ 29 จากลิสต์ลายชื่อทั้งหมด 150 อันดับ เป็นอาคารตัวอย่างในแบบเรียนการศึกษา ถูกเล่าขานรุ่นต่อรุ่นจากนักออกแบบรุ่นพี่สู่เหล่านักศึกษาสถาปัตยกรรมรุ่นหลัง ที่ยังคงความคลาสสิค ร่วมสมัยอยู่ ไม่เคยดูเชยล้าสมัยลงไปนับตั้งแต่สร้างเสร็จเมื่อปี 1935 รวมอายุจนถึงตอนนี้กว่า 80 ปีแล้วก็ตาม

17

 

(ภาพจาก http://www.busyboo.com/2010/09/01/modern-house-fallingwater/)

ในปัจจุบันทายาทของ Kaufmann ยกบ้านน้ำตก Fallingwater house ให้กับองค์กรที่ทำหน้าที่อนุรักษ์พื้นที่ธรรมชาติ Western Pennsylvania Conservancy ทำหน้าที่คอยดูแลรักษาความดั้งเดิมของบ้านเอาไว้ โดยไม่มีการปรับเปลี่ยนโครงสร้างไปจากเดิมแม้แต่น้อย ทำแค่การซ่อมแซมสภาพให้ดีอยู่ดังเดิมเท่านั้น แล้วเปิดบ้านให้เป็นแหล่งท่องเที่ยวเชิงพิพิธภัณฑ์ ให้คนทั่วไปได้เข้าชม ได้ร่วมสัมผัสกับตัวอย่างงานออกแบบอันยอดเยี่ยม ดื่มด่ำสุนทรียภาพที่เกิดขึ้นสถาปัตยกรรมกับสิ่งแวดล้อมโดยรอบ การถูกโอบล้อมและผสมผสานเป็นหนึ่งเดียวระหว่าง คน สถาปัตยกรรมและสถานที่ตั้งตามธรรมชาติอันสวยงาม

Discover more from Design Makes A Better Life.

Subscribe now to keep reading and get access to the full archive.

Continue reading