PA House บ้านที่เลือกเปิดและปิดอย่างมีเหตุผล เพื่อสร้างพื้นที่ส่วนตัวให้กับผู้พักอาศัย โดยมีองค์ประกอบของการมองเห็นและความรู้สึก ที่ช่วยเติมเต็มชีวิตครอบครัวให้สมบูรณ์มากยิ่งขึ้น
สำหรับบ้านในเขตที่พักอาศัยของกรุงเทพมหานครที่มีพื้นที่จำกัด ในการสร้างบ้านแต่ละหลัง เราไม่สามารถหลีกเลี่ยงบ้านหรืออาคารรอบข้างได้เลย และการที่จะปรับเปลี่ยนพื้นที่บริบทรอบข้างนั้นแทบจะเป็นไปไม่ได้ ในทางตรงกันข้ามการปรับเปลี่ยนพื้นที่ภายในบ้าน ดูจะเป็นเรื่องที่ทำได้ง่ายกว่า เช่นเดียวกับบ้านหลังนี้ PA House ซึ่งออกแบบภายใต้แนวคิด “ปิดแต่เปิด” โดยมีอาคารและบริบทรอบข้างเปรียบดั่ง ตัวแปรสำคัญ ที่ช่วยในการวางพื้นที่และออกแบบบ้าน PA House ออกแบบโดย คุณ เป้ จีรเวช หงสกุล บริษัท IDIN Architects
PA House เป็นบ้านขนาดกลาง มีพื้นที่ทั้งหมด 530 ตารางเมตร ตั้งอยู่ย่านปิ่นเกล้า ซึ่งบริบทรอบข้างพื้นที่บ้าน มีทั้งที่พักอาศัย และอาคารพาณิชย์ล้อมรอบ โดยเจ้าของต้องการ “บ้าน” ที่มีพื้นที่ส่วนตัว แต่ยังสามารถมองเห็นผู้คนนอกบ้าน เห็นสภาพแวดล้อมและบริบทรอบข้างได้เมื่อยามที่ต้องการ
l บ้านที่บริบทเป็นผู้ช่วยในการออกแบบ l
“Form Follow Function” คือประโยคคลาสสิคที่ใช้ในการออกแบบมาทุกยุคทุกสมัย บ้าน PA House ก็คงนำความคิดนี้มาใช้ในการออกแบบเช่นกัน และยังเพิ่มเติมด้วยการนำ Context (บริบทรอบข้าง) มาเป็นปัจจัยสำคัญอีกเรื่องในการออกแบบ บ้าน PA House ถูกสร้างสรรค์ด้วยการคำนึงถึงการใช้งานที่ตอบโจทย์การใช้ชีวิตของเจ้าของบ้าน รวมทั้งสภาพแวดล้อมรอบอาคาร ทั้งแดด ลม ฝน จนถึงทิศทางการตั้งของอาคารใกล้เคียง มาเป็นส่วนสำคัญในการออกแบบเป็นอันดับแรก หลังจากนั้นจึงจะเกิดรูปลักษณ์อาคารที่สอดคล้องกับปัจจัยทั้งสองอย่างขึ้นมา
การออกแบบบ้าน PA House เริ่มต้นจากการสำรวจทิศทางแดดและลม เพื่อสร้างสภาวะน่าสบายให้กับผู้พักอาศัย จากนั้นจึงออกแบบบ้านตามการใช้งานที่เจ้าของบ้านเป็นผู้กำหนดโจทย์มา เช่น ต้องการพื้นที่เปิดโล่งกลางบ้าน มีสระว่ายน้ำตรงกลาง และจากทุกมุมมองภายในบ้านต้องมีต้นไม้ มีธรรมชาติ เพื่อทำให้เกิดความผ่อนคลาย และมีพื้นที่โปร่ง โล่งในบ้าน
เมื่อจัดสรรการใช้งานภายในบ้านได้อย่างลงตัว ขั้นตอนต่อมาคือการสร้างความเป็นส่วนตัวให้กับผู้พักอาศัย คุณเป้จึงออกแบบผนัง (Plane) เพื่อบล็อควิวจากอาคารเพื่อนบ้านที่รอบล้อมบ้าน โดยในการออกแบบแต่ละ Plane จะถูกวิเคราะห์มาอย่างดีแล้วว่า การสร้าง Plane ในลักษณะนี้ สามารถกั้นสายตาจากคนภายนอกได้หรือไม่ และในขณะเดียวกันแต่ละ Plane ก็จะกลมกลืนไปกับผนังส่วนอื่นของบ้าน ผู้อยู่อาศัยจะไม่รู้สึกว่ามีผนังคอยปิดกั้นมุมมองเลยแม้แต่น้อย
อาคารรอบข้างเปรียบเสมือนสถาปนิกเป็นผู้ช่วยสร้าง ผนัง (Plane) ขึ้นมา โดยแต่ละ Plane ในบ้าน จะได้รูปลักษณ์มาจากอาคารรอบข้าง ซึ่งจะแตกต่างกันตามแต่ละมุมมอง เมื่อนำ Plane ทั้งหมดมารวมกัน จะถูกสอดประสานจนเกิดเป็นพื้นที่ว่าง โดยพื้นที่ว่างเหล่านี้จะกลายเป็นส่วนของที่พักอาศัยนี่เอง
นอกจากผนังจะสร้างความเป็นส่วนตัวให้กับเจ้าของบ้านแล้ว ยังสามารถเป็นแผงกันแดดและกันความร้อนในเวลากลางวันได้อีกด้วย
ด้วยความต้องการของเจ้าของบ้าน ที่ต้องการบ้านที่เรียบง่ายแต่ดูดี มีพื้นที่โปร่ง โล่ง และดูแลรักษาความสะอาดได้ง่าย การเลือกใช้วัสดุและสไตล์การตกแต่งภายในบ้าน จึงออกมาในรูปแบบโมเดิร์นผสมมินิมอล เช่นการใช้กระจกบานใหญ่รอบบ้าน การออกแบบฝ้าเพดานเป็นแบบ Double Volume ที่สูงโปร่ง และการเลือกใช้วัสดุและโทนสีในบ้านเป็นสีอ่อน ที่ทำให้รู้สึก เบา สบาย และอบอุ่น เป็นต้น
เสาถูกซ่อนไว้อย่างแนบเนียนกับผนังภายในบ้าน ผู้ใช้งานจะรู้สึกเหมือนภายในบ้านไม่มีเสา มีแต่ผนังซึ่งสอดกันไปมา
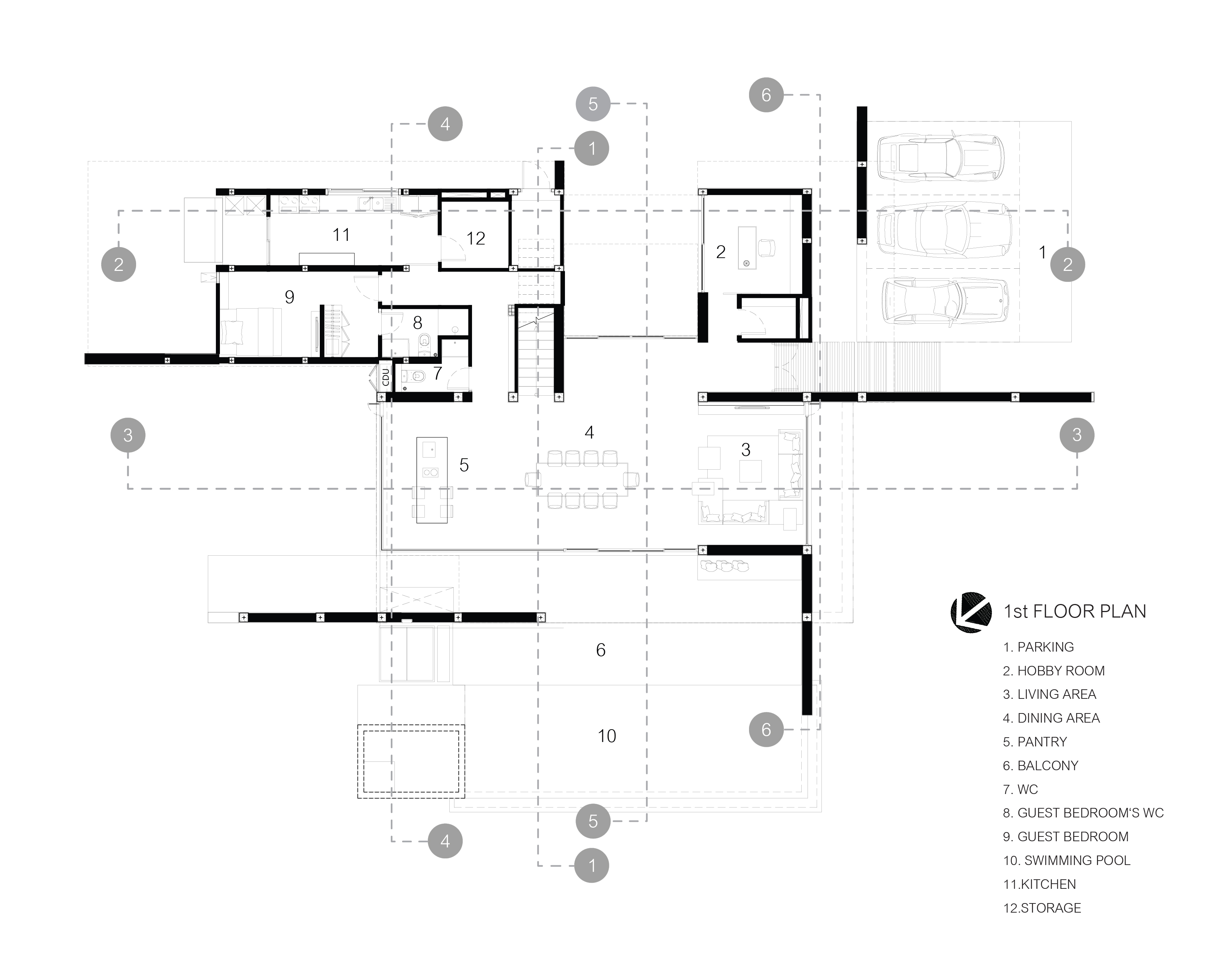
แปลนชั้น 1
l ส่วนใช้งานภายในบ้าน l
เมื่อมองจากแปลนบ้านจะเห็นว่า ผนังแต่ละด้านสอดประสานซึ่งกันและกัน โดยมีสวนและฟังก์ชันอยู่ในพื้นที่ว่างแต่ละพื้นที่
เมื่อเดินเข้ามาจากบริเวณจอดรถ จะพบกับสระว่ายน้ำและสวนกลางบ้าน จากนั้นจึงเป็นแกลลอรี่ที่เจ้าของบ้านสะสมผลงานศิลปะเป็นงานอดิเรก เมื่อเดินต่อมาตามทางเรื่อยๆ จะพบกับพื้นที่ ที่เปรียบเสมือนหัวใจของบ้านหลังนี้ นั่นคือส่วนของพื้นที่นั่งเล่นและรับประทานอาหาร
บริเวณพื้นที่นั่งเล่นจะรวมกับส่วนรับประทานอาหาร มี Pantry เล็กๆ ไว้เตรียมอาหาร จากพื้นที่นี้สามารถมองเห็นสวนที่อยู่ล้อมรอบบ้าน รวมถึงสระว่ายน้ำที่อยู่ใจกลางบ้านได้ ด้วยไลฟ์สไตล์ของเจ้าของบ้าน ที่เป็นคนรุ่นใหม่ชอบการสังสรรค์กับเพื่อนฝูง ห้องนั่งเล่นจึงเป็นสเปซที่สำคัญของบ้านหลังนี้
พื้นที่ภายในเป็นแบบ Double Volume มีกระจกสูงจนสุดฝ้าเพดาน และ Plane สีขาว จะอยู่ถัดมาข้างนอกจากกระจกอีกชั้นหนึ่ง Plane นี้ มีไว้เพื่อบังแดดและสามารถบล็อกวิวจากผู้คนภายนอกได้ อีกทั้งผู้พักอาศัยจะเห็นวิวได้กว้างและไกลมากขึ้น ก่อให้เกิดความรู้สึกที่โล่ง สบาย ไม่อึดอัดในการใช้งาน และในบางช่วงเวลาจะเห็นแสงเงาไล่จากข้างบนผนังลงมาที่พื้น ทำให้บ้านดูมีชีวิตชีวามากขึ้น
สระว่ายน้ำจะอยู่ในพื้นที่สวนกลางบ้าน วิวจากห้องนั่งเล่นจะสามารถมองเห็นสระว่ายน้ำและสวนได้
พื้นที่เก็บไวน์ของเจ้าของบ้าน อยู่ในบริเวณบันไดขึ้นสู่ชั้น 2
บันไดขึ้นสู่พื้นที่ชั้น 2 ของบ้าน
แปลนชั้น 2
พื้นที่บริเวณชั้น 2 ประกอบด้วยห้องนอน 2 ห้อง และห้องทำงานซึ่งอยู่ในส่วนของ Master Bedroom และมีทางเชื่อมระหว่างห้องนอนทั้งสองห้อง
ทางเชื่อมระหว่างห้องนอนทั้ง 2 ห้อง เป็นโครงสร้างไร้เสา และใช้กระจกเป็นผนังทั้งหมด
l วัสดุที่แตกต่าง ก่อเกิดความรู้สึกที่แปลกใหม่ l
วัสดุที่ใช้ภายในบ้าน PA House ประกอบด้วย ผนังคอนกรีตทาสีขาว กระจก หิน และไม้ แต่ละวัสดุจะแสดงถึงความแตกต่างกันอย่างเห็นได้ชัด ทั้งในเรื่องของสีและลักษณะที่เลือกใช้ ผนัง (Plane) จะตัดกันและเห็นได้ชัดถึงผนังแต่ละส่วนที่ประกอบรวมกันอยู่ในบ้านหลังนี้
ไม้และกระจกช่วยลดความหนักของคอนกรีตสีขาว ให้ดูเบา สบายมากขื้น
PA House บ้านเรียบแต่อยู่สบาย ออกแบบโดยคำนึงถึงการใช้งานและบริบทรอบข้าง ซึ่งเป็นแนวคิดที่สะท้อนถึงการจัดวางพื้นที่ภายในบ้านอย่างเห็นได้ชัด เพื่อการสร้างสรรค์บ้านที่เข้ากันได้ดีที่สุดกับลักษณะและตัวตนของผู้อยู่อาศัย
PA House
Location: Pinkao, Thailand
Area: 530 Sq.M.
Architects: IDIN Architects (จีรเวช หงสกุล, เอกลักษณ์ ศิริจริยวัตร, วิชาญ ก่องนอก)
Architect Firm: IDIN Architects
Year: 2016 – 2017



























