OPENING HOURS: MONDAY – SUNDAY: 10.00 AM TO 8.00 PM

info@sitename.com | 987654321

Design Makes A Better Life.

การออกแบบ สถาปนิก สถาปัตยกรรม ไลฟ์สไตล์

KOKULO BEACH CLUB : พื้นที่แห่งความสุขทรงสามเหลี่ยม ที่เป็นหนึ่งเดียวกันกับบริบท

“การสอดแทรกสถาปัตยกรรมสามเหลี่ยมภายใต้ความงามของบริบทอย่างหาดทรายและทิวสน”

Kokulo Beach Club

Location : เขาหลัก, พังงา ประเทศไทย

Architect : IF Integrated Field

หากคุณเป็นคนหนึ่งที่ชื่นชอบบรรยากาศริมทะเล ต้องรู้จักกับทะเลภาคใต้ของไทยอย่างจังหวัดพังงา ซึ่งมีพื้นที่ที่ล้อมรอบไปด้วยบริบทธรรมชาติอันสวยงาม ไม่ว่าจะเป็นชายหาดที่ทอดยาวกับน้ำทะเลอันดามันที่ใสสะอาด พร้อมภาพแนวทิวสนที่เรียงราย คงไม่ง่ายสำหรับการมีสถาปัตยกรรมหนึ่งเกิดขึ้นท่ามกลางบริบทอันสมบูรณ์ในทุกๆด้านเหล่านี้

Kokulo Beach Club” ร้านอาหารริมทะเลที่รวมเป็นหนึ่งเดียวกับธรรมชาติ ทั้งความเขียวของทิวสน และสีฟ้าใสของผืนน้ำทะเลได้อย่างแนบเนียน ภายใต้การออกแบบของบริษัท IF ที่สร้างภาพรวมของสถาปัตยกรรมรูปทรงสามเหลี่ยมหลอมรวมกับธรรมชาติไว้ได้อย่างลงตัว

Kokulo Beach Club เป็นร้านอาหารที่ตั้งอยู่ริมหาดบางเนียน เบื้องหน้าเปิดสู่วิวทะเลและทิวสน เป็นบีชคลับแห่งแรกและแห่งเดียวในเขาหลัก ซึ่งเป็นส่วนหนึ่งของรีสอร์ท La vela khao lak ที่โดดเด่นด้วยการออกแบบภูมิทัศน์สามเหลี่ยมที่สร้างภาพจำในการพักผ่อนสุดหรูหราไม่เหมือนใคร

– ซ่อนตัวอย่างกลมกลืน ในสามเหลี่ยม –

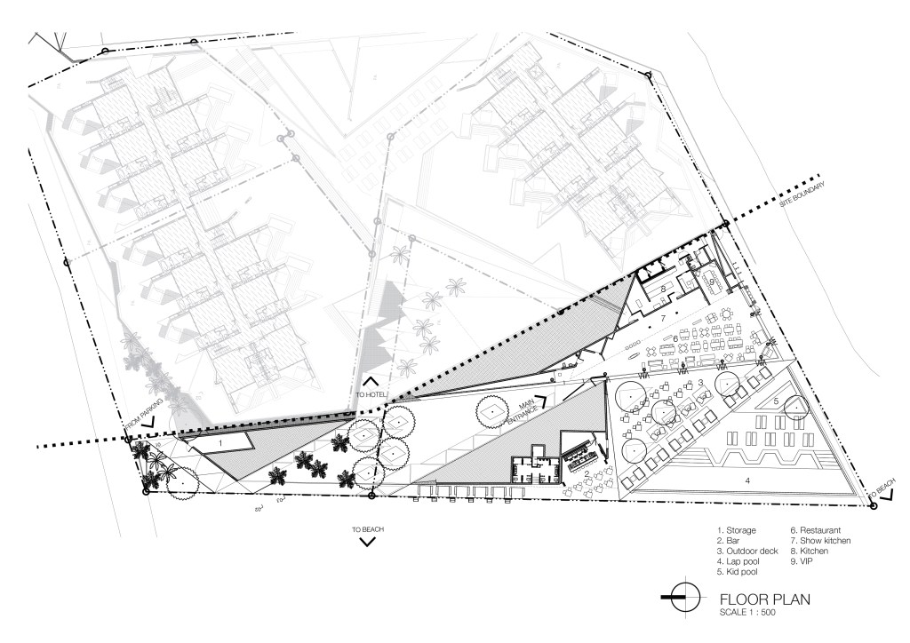
ภาพอาคารรูปทรงสามเหลี่ยมที่เกิดขึ้น เป็นความตั้งใจที่จะสอดแทรกสถาปัตยกรรมให้แนบเนียนไปกับบริบทมากที่สุด และคงความสวยงามของสภาพภูมิประเทศเดิมไว้ จึงถ่ายทอดออกมาในแนวคิด “DIS / APPEAR” เสมือนการซ่อนตัวอยู่ภายใต้ธรรมชาติ โดยเริ่มต้นจากการใช้มุมมองพุ่งไปยังธรรมชาติเป็นหลัก และค่อยๆกรีดยกพื้นขึ้น เผยเป็นอาคารรูปทรงสามเหลี่ยมอย่างที่เห็น ซึ่งประกอบไปด้วยสามอาคารย่อยๆ ได้แก่ ร้านอาหาร บาร์ และส่วนบริการ เชื่อมต่อกันผ่านหลังคาหญ้าสีเขียวที่สามารถเข้าไปใช้งานได้จริง

ซึ่งนอกจากอาคารจะมีรูปทรงสามเหลี่ยมแล้ว ภูมิทัศน์ต่างๆ รวมถึงการตกแต่งภายในร้าน ยังนำองค์ประกอบของสามเหลี่ยมมาใช้ในการออกแบบอีกด้วย นอกจากจะทำให้ภาพลักษณ์ของพื้นที่แห่งนี้ดูโฉบเฉี่ยว ทันสมัยแล้ว ยังเป็นพื้นที่แห่งกิจกรรมที่น่าใช้งานอยู่ตลอดเวลา โดยมีทิศทางการออกแบบเดียวกับภายในรีสอร์ทนั่นเอง

การจัดภูมิทัศน์โดยใช้เส้นสามเหลี่ยมเป็นองค์ประกอบเดียวกันกับสระว่ายน้ำของรีสอร์ท

– เล่นระดับ แต่กลับเพิ่มฟังก์ชั่น –

ด้วยข้อจำกัดทางกฏหมายต่างๆของอาคารที่อยู่ริมทะเล ทำให้อาคารในส่วนของร้านอาหาร และบาร์ เป็นอาคารชั้นเดียวที่มีความสูงไม่มากนัก ซึ่งไม่ได้เป็นอุปสรรคที่ทำให้ความสวยงามในการออกแบบลดลงเลย เพราะด้วยการไล่ระดับของแต่ละอาคารที่ซ้อนทับกัน กลับช่วยทำให้องค์ประกอบของอาคารดูลงตัวและน่าค้นหา อีกทั้งยังมีพื้นที่ใช้งานบนหลังคาที่ปกคลุมไปด้วยสีเขียวของหญ้าไว้สำหรับจัดอีเว้นท์ต่างๆอีกด้วย

นอกจากนี้มีการออกแบบพื้นต่างระดับไม้รูปทรงสามเหลี่ยมเล็กๆบนหลังคาหญ้า เพื่อเพิ่มพื้นที่แห่งความสุขสำหรับการนั่งพักผ่อนท่ามกลางบรรยากาศแห่งธรรมชาติในมุมมองใหม่แตกต่างจากมุมมองเดิมในระดับพื้นดิน

รูปด้านของร้านอาหาร Kokulo Beach Club ที่แสดงให้เห็นถึงรูปทรงอาคารสามเหลี่ยม

– ความสุขบนมื้ออาหาร ในพื้นที่สามเหลี่ยม –

แม้พื้นที่ภายในมีรูปร่างสามเหลี่ยม ดูใช้งานยากเพราะมีเหลี่ยมมุมเยอะ แต่การจัดสรรพื้นที่การใช้งานทุกอย่างกลับลงตัวได้อย่างไม่น่าเชื่อ ด้วยการตกแต่งฝ้าเพดานไม้ที่มีรูปแบบการเรียงแนวเฉียง เข้ากับแผงโคมไฟสีดำรูปสามเหลี่ยม ทำให้ไม่รู้สึกอึดอัด และโปร่งโล่งด้วยการจัดวางโต๊ะเก้าอี้ ที่ไม่เบียดเสียดกันจนเกินไป

รวมถึงการตกแต่งภายในแบบ Eclectic Style เป็นสไตล์ที่ผสมผสานสีสัน รูปทรง ในการตกแต่ง ซึ่งในKokulo Beach Clubนี้ ก็หยิบเอาความหลากหลายของสิ่งของ เครื่องเรือน มาจัดวางรวมกัน โดยใช้เฟอร์นิเจอร์ลอยตัวทั้งหมด เพื่อการนั่งลิ้มรสอาหารท่ามกลางบริบทธรรมชาติที่เป็นไปอย่างมีความสุข และความสะดวกในการเคลื่อนย้าย หรือปรับเปลี่ยนรูปแบบการตกแต่ง ตลอดจนรองรับกิจกรรมต่างๆ ที่จะเกิดขึ้นภายในพื้นที่

– ภาพสะท้อนของธรรมชาติ –

ในส่วนของบาร์ มีการเลือกใช้วัสดุกระจก เพื่อเพิ่มมิติและสะท้อนภาพที่สวยงามของธรรมชาติ ทั้งแนวเส้นขอบฟ้า และแสงระยิบระยับจากดวงอาทิตย์ที่ส่องกระทบกับผืนน้ำทะเล และระเบียงไม้ที่ทอดยาวออกมาจากพื้นปูนด้านใน บรรจบกับสระว่ายน้ำเบื้องหน้า ช่วยสร้างบรรยากาศในการพักผ่อนและทำให้ตัวอาคารดูกลมกลืนกับสภาพแวดล้อมอีกด้วย

– สระว่ายน้ำสามเหลี่ยม –

อีกหนึ่งไฮไลท์อย่างสระว่ายน้ำ ที่ยังคงแนวคิดการออกแบบฟอร์มสามเหลี่ยมแปลกใหม่ไม่เหมือนใคร โดยถูกจัดวางให้สอดคล้องกันกับรูปทรงของอาคาร เป็นจุดเชื่อมสายตาตั้งแต่ภายในบีชคลับไปยังทัศนียภาพด้านหน้าด้วยเช่นกัน ซึ่งในตอนกลางคืนมีการออกแบบแสงไฟของสระให้เป็นสีน้ำเงินและสีส้ม เพื่อปรับเปลี่ยนความรู้สึกเข้าสู่ความเงียบสงบและโรแมนติก แตกต่างจากความรู้สึกในตอนกลางวันนั่นเอง

ส่วนอาหารเป็นแบบฟิวชั่น มีความหลากหลายทั้งไทย อิตาเลี่ยน และบุฟเฟ่ต์อาหารญี่ปุ่นทุกวันศุกร์ เพื่อรองรับนักท่องเที่ยวภายนอกและผู้ที่มาพักในรีสอร์ทที่ส่วนใหญ่มีหลายเชื้อชาตินั่นเอง รวมถึงในส่วนบาร์มีซิกเนเจอร์คอกเทล เครื่องดื่มที่เป็นเอกลักษณ์ของที่นี่อีกด้วย โดยเปิดบริการตั้งแต่ 6:30 –00:00 น. ของทุกๆวัน

สถาปัตยกรรมที่สร้างอยู่ท่ามกลางธรรมชาติ ถ้าหากได้รับการออกแบบที่ดี นอกจากจะมีความลงตัวในด้านการใช้งาน และความกลมกลืนกับบริบทที่หลอมรวมสถาปัตยกรรมให้เป็นหนึ่งเดียวกับธรรมชาติแล้ว อาจจะสร้างภาพจำที่งดงามให้กับสถานที่นั้นๆ เช่นเดียวกันกับ Kokulo Beach Club แห่งนี้ ที่เป็นหนึ่งในหลายตัวอย่างการออกแบบสถาปัตยกรรมริมทะเลที่สวยงามอย่างมีเอกลักษณ์

Kokulo Beach Club

Tel : +66(0)76 428-555

Email : contact@lavelakhaolak.com

ขอบคุณรูปภาพจาก IF , Facebook KOKULO BEACH CLUB และ lavelakhaolak.com

Discover more from Design Makes A Better Life.

Subscribe now to keep reading and get access to the full archive.

Continue reading