บ้านที่กลมกลืนกับธรรมชาติและบริบทรอบข้าง โดยใช้วัสดุจากธรรมชาติเป็นองค์ประกอบสำคัญ ซึ่งทำให้ความเรียบง่ายของบ้าน เข้ามาเติมเต็มความต้องการของเจ้าของบ้านได้อย่างลงตัว
Maxime Residence
Architect Firm: Blankstudio
Area: 240 S.QM.
Year: 2017
Location: Mae-rim, Chiangmai, Thailand
Photography: BLINE SPACE
บ้านขนาดเล็กที่ถูกโอบล้อมด้วยแปลงดอกไม้ แม่น้ำ และธรรมชาติอันอุดมสมบูรณ์ หากต้องการหาความสงบ ความผ่อนคลาย ที่สามารถตอบสนองต่อการใช้งานได้อย่างตรงตามความต้องการ ที่บ้าน Maxime Residence แห่งนี้คือคำตอบ ด้วยสถานที่ตั้งของบ้านอยู่ที่อำเภอแม่ริม จังหวัดเชียงใหม่ จึงทำให้บรรยากาศนั้นเงียบสงบ และเป็นส่วนตัว อีกทั้งการจัดสรรพื้นที่ภายในบ้านระหว่าง Public Space และ Private Space ก็สามารถแบ่งแยกเป็นสัดส่วนอย่างลงตัว เพราะพื้นที่ส่วนไหนที่ควรเปิด ก็มีการเปิดรับเข้าหาธรรมชาติ และส่วนไหนที่ควรปิด ก็ปิดเพื่อสร้างความเป็นส่วนตัวให้กับผู้พักอาศัย
บ้านหลังนี้ออกแบบโดย Blankstudio บริษัทสถาปนิกรุ่นใหม่ ที่ชื่นชอบในรูปแบบของความเรียบง่าย เพราะถึงแม้บ้านจะดูเรียบง่าย ไม่ซับซ้อน แต่เส้นสายทุกเส้นในอาคารที่เกิดขึ้นนั้น ล้วนเกิดจากการไตร่ตรองและลงรายละเอียดในทุกขั้นตอนการออกแบบ เพื่อสร้างสรรค์สถาปัตยกรรมที่ตอบโจทย์ความต้องการของผู้พักอาศัยนั่นเอง
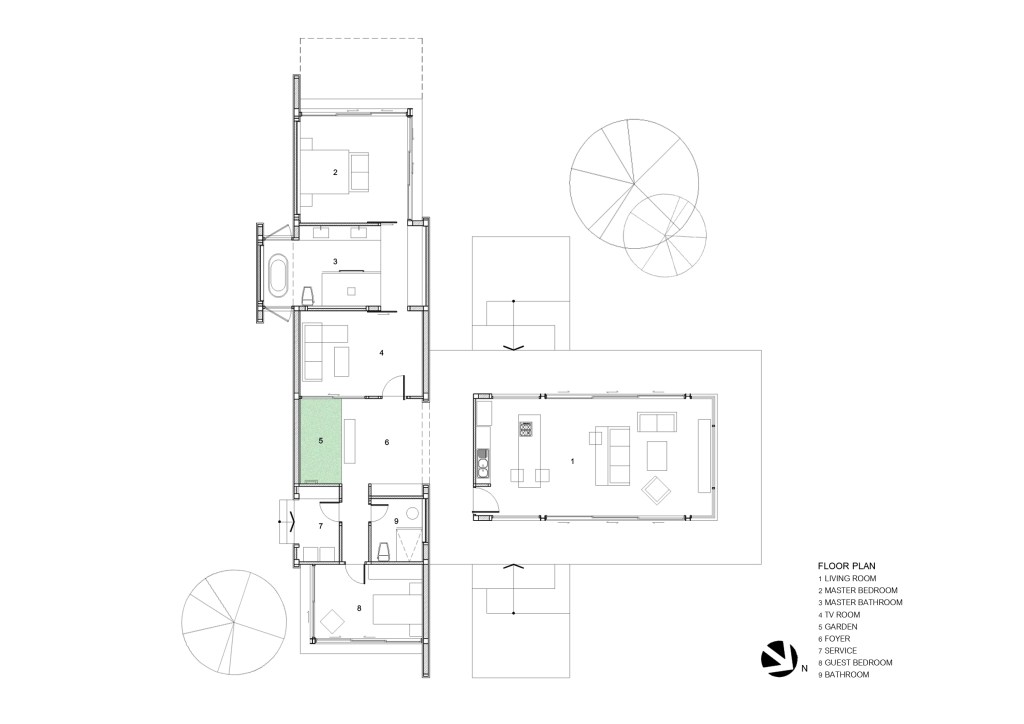
ตัวบ้านเป็นบ้านขนาด 1 ชั้น มีพื้นที่ 240 ตารางเมตร พื้นที่การใช้งานในบ้านแบ่งเป็น 2 ส่วนด้วยกัน ได้แก่ ส่วนห้องนอน ซึ่งประกอบไปด้วยห้องนอนใหญ่และห้องนอนแขก ส่วนห้องนั่งเล่นเป็นพื้นที่ Open Space ที่รวมห้องรับประทานอาหาร ครัว และห้องรับแขกไว้ด้วยกัน
– แนวคิดที่เกิดจากบริบทรอบข้าง –
บริบทของพื้นที่ตั้งอาคารเป็นพื้นที่โล่ง มีแปลงดอกไม้ขั้นบันได มีแม่น้ำ ต้นไม้ อากาศบริสุทธิ์ สถาปนิกได้เล็งเห็นความสำคัญของบริบทบ้านตรงนี้ จึงนำมาใช้เป็นปัจจัยสำคัญในการออกแบบบ้าน โดยภายในบ้านจะมีช่องเปิดขนาดใหญ่ เพื่อเชื่อมต่อกับธรรมชาติ ไม่ว่าผู้ใช้งานจะเดินไปส่วนไหนในบ้าน ก็สามารถเห็นบริบทรอบบ้านได้ตลอดเวลา เช่นในบริเวณห้องนั่งเล่น มีกระจกยาวตั้งแต่พื้นถึงฝ้า ผู้ใช้งานจะรู้สึกราวกับได้นั่งอยู่ท่ามกลางธรรมชาติ
องค์ประกอบสำคัญของบ้านคือมีพื้นที่เปิดโล่่ง มีระเบียงยาว และใช้ผนังหินกาบซึ่งเป็นวัสดุธรรมชาติ ทำให้ผู้ใช้งานสามารถสัมผัสถึงธรรมชาติเมื่ออยู่ทั้งภายในและภายนอกบ้าน
ภาพไดอะแกรมแสดงวิธีการออกแบบฟอร์มอาคาร โดยเริ่มจากออกแบบพื้นที่ส่วน Private Space เป็นส่วนที่ปิดทึบด้วยผนังกรุหินกาบ จากนั้นจึงขยับผนังออกบางส่วน สร้างช่องเปิดให้กับพื้นที่ส่วนตัว เป็นการเปิดรับวิวธรรมชาติเข้ามาในพื้นที่ จากนั้นจึงนำส่วน Public Space ซึ่งเป็นพื้นที่เปิดโล่งมาวางเชื่อมต่อกับส่วนพื้นที่ส่วนตัว
ภายในอาคารจะแบ่งเป็นส่วน Public Space และ Private Space ซึ่งทั้ง 2 ส่วนนี้ จะถูกแบ่งด้วยผนังทึบกรุด้วยหินกาบ โดยผนังหินกาบจะห่อหุ้มส่วน Private Space เอาไว้ ประกอบไปด้วยห้องนอนใหญ่ ห้องนอนแขก ห้องชมภาพยนตร์ และห้องน้ำ ผนังหินกาบมีหน้าที่สร้างความเป็นส่วนตัวให้กับผู้ใช้งาน และส่วน Public Space ประกอบด้วยห้องนั่งเล่น ห้องรับประทานอาหาร ห้องครัว และโถงทางเดิน เป็นพื้นที่เปิดโล่ง มีช่องเปิดจากพื้นถึงฝ้า ไม่มีผนังหินกั้น และมีแสงเข้ามาในพื้นที่ตลอดทั้งวัน
Dtip: Public Space คือพื้นที่สาธารณะ โดยถ้านำมาใช้กับสเปซภายในบ้าน Public Space จะเป็นส่วนห้องรับแขก ห้องนั่งเล่น หรือเป็นส่วนที่แขกสามารถเข้ามาใช้งานได้ โดยเจ้าของไม่รู้สึกอึดอัด และPrivate Space คือพื้นที่ส่วนตัว เช่นห้องนอน และห้องทำงาน
แผนผังอาคาร
– ฟังก์ชัน ที่เกิดจากองค์ประกอบและแนวคิดหลักของบ้าน –
ภายในบ้านแบ่งฟังก์ชันเป็น 2 ส่วนหลัก คือส่วนห้องนอน และส่วนห้องนั่งเล่น โดยทั้ง 2 ส่วนจะถูกเชื่อมต่อด้วยโถงทางเดินขนาดใหญ่และแยกออกไปยังส่วนต่างๆภายในบ้าน ซึ่งโถงทางเดินตรงนี้จะเป็นพื้นที่กึ่งภายใน–ภายนอก มีการเจาะช่องบนหลังคา เพื่อนำแสงแดด ลม ธรรมชาติเข้ามาภายในบ้าน และยังช่วยเรื่องการระบายอากาศภายในบ้านได้เป็นอย่างดี
สถาปนิกได้นำระแนงไม้วางพาดในส่วนที่ถูกเจาะบนหลังคา เพื่อลดปริมาณน้ำที่จะไหลเข้าบ้านในช่วงเวลาฝนตก แต่ในขณะเดียวกันระแนงไม้ชิ้นนี้ ก็ยังช่วยเรื่องการระบายอากาศภายในบ้านได้อีกด้วย
การออกแบบห้องนั่งเล่นที่เปิดโล่ง โดยใช้กระจกขนาดใหญ่ล้อมรอบส่วนพื้นที่นั่งเล่น มีเพียงเคาน์เตอร์ครัวที่เลือกใช้ผนังหินกาบเป็นส่วนปิดทึบ เมื่อใช้งานภายในห้องจะรู้สึกราวกับได้อยู่ในห้องที่ไม่มีกำแพง และกำแพงที่สัมผัสได้ คือต้นไม้ขนาดใหญ่ที่เห็นไกลๆเท่านั้น เป็นพื้นที่ ที่ก้ำกึ่งระหว่างภายในและภายนอกบ้าน
ระเบียงซึ่งมีความกว้าง 2.5 เมตร ได้ถูกใช้เป็นพื้นที่นั่งเล่นและพักผ่อนในตอนกลางวัน และยังสามารถกป้องกันความร้อนและแสงแดดที่จะเข้ามาในบ้านได้อีกด้วย
ห้องนอนใหญ่และห้องนอนแขกจะมีสไตล์การตกแต่งที่คล้ายคลึงกัน เพราะมีการใช้ผนังหินมาห่อหุ้มในส่วนที่ต้องการความเป็นส่วนตัว โดยการออกแบบผนังหินกาบในส่วนนี้ สถาปนิกออกแบบให้มีการใช้ผนังหินกาบทั้งในและนอกบ้าน โดยเริ่มจากการใช้ผนังหินภายนอก และไหลเชื่อมต่อมายังภายในที่ต้องการความเป็นส่วนตัว ในส่วนของห้องนอนนั้นผนังหินจะอยู่บริเวณด้านหัวเตียง และส่วนด้านข้างจะใช้กระจกเปิดโล่ง เพื่อรับวิวธรรมชาตินั่นเอง
Dtip: ในส่วนของผนังสถาปนิกเลือกใช้หินกาบ นำมาตัดเป็นแผ่นยาว โดยตัดออกมา 2 ขนาด เพื่อสร้างแพทเทิร์นที่แตกต่างกัน เป็นการสร้างลูกเล่นให้กับบ้านดูน่าสนใจไม่น่าเบื่อ
บ้านหลังเล็กที่เพียบพร้อมไปด้วยสิ่งแวดล้อมอันอุดมสมบูรณ์รอบบ้าน และการออกแบบที่ให้ความสำคัญกับธรรมชาติ เช่น มีช่องเปิดขนาดใหญ่ล้อมรอบห้องรับแขก เพื่อรับแสงแดดและวิวทิวทัศน์ตลอดทั้งวัน ใช้ช่องแสง Sky Light เพื่อปลูกสวนในบ้านและยังช่วยเพิ่มการระบายอากาศให้ถ่ายเทมากขึ้น ทำให้ผู้พักอาศัยรู้สึกผ่อนคลายและอบอุ่นทุกครั้งเมื่อได้เข้ามาใช้งานที่บ้านหลังนี้
ขอขอบคุณ Blankstudio
Website: www.bsalp.com
Facebook: Blankstudio














