OPENING HOURS: MONDAY – SUNDAY: 10.00 AM TO 8.00 PM

info@sitename.com | 987654321

Design Makes A Better Life.

การออกแบบ สถาปนิก สถาปัตยกรรม ไลฟ์สไตล์

สถาปัตยกรรมสีขาวและแรงบันดาลใจในการออกแบบของ Richard Meier

สถาปนิกผู้ใช้เวลากว่าครึ่งศตวรรษในการศึกษาสถาปัตยกรรมสีขาว อันเกิดจากแรงบันดาลใจจากอดีตถึงปัจจุบัน

เมื่อถามตัวเองว่าสิ่งที่เชื่อคืออะไร … ผมก็ตอบอย่างไม่ลังเลว่า ผมเชื่อและศรัทธาในงานสถาปัตยกรรม เพราะสถาปัตยกรรมสามารถเชื่อมต่อปัจจุบันเข้าด้วยกันกับอดีตและอนาคต บางครั้งจับต้องได้แต่บางครั้งก็ไม่สามารถจับต้องได้” Richard Meier

Cittadella Bridge

เป็นที่ทราบกันดีว่าสถาปัตยกรรมของ Richard Meier นั้นแตกต่าง เพราะทุกงานออกแบบมักจะมีสีขาวเป็นองค์ประกอบหลัก และสถาปัตยกรรมของเขาก็เกิดจากความเคารพและเชื่อมั่นปรัชญาจากปรมาจารย์สถาปนิกในยุคต่างๆ ไม่ว่าจะเป็น Bernini, Borromini, Le Corbusier และ Louis Kahn

Richard Meier จบการศึกษาปริญญาตรี สาขาสถาปัตยกรรม จาก Cornell University ในปี 1957 และได้ร่วมงานกับ Skidmore Owings & Merill และ Marcel Breuer (SOM) หลังสำเร็จการศึกษา จากนั้นเขาจึงออกมาทำงานด้วยตนเองในปี 1963 และเริ่มเป็นที่รู้จักจนเป็นหนึ่งใน “New York Five” ปี 1970

Dtip: New York Five คือกลุ่มของสถาปนิกผู้โด่งดังและมากประสบการณ์ในเมือง New York ประกอบด้วย Richard Meier, Peter Eisenman, Charles Gwathmey, Michale Graves และ John Hedjuk โดยพวกเขาทั้ง 5 นิยมชมชอบในสถาปัตยกรรมสไตล์โมเดิร์น ซึ่งมีกลิ่นอายของ Le Corbusier แฝงอยู่

The Getty Center

“Le Corbusier มีอิทธิพลต่อการออกแบบสถาปัตยกรรมของผม มากไปกว่านั้นก็ยังมีสถาปนิกอื่นๆ อีก เช่น Frank Lloyd Wright เพราะผมจะไม่มีทางสร้างบ้านให้พ่อกับแม่ได้เสร็จสมบูรณ์ ถ้าหากไม่ได้แรงบันดาลใจจาก Falling Water House” Richard Meier

Leblon offices

“ผมได้รับแนวทางการออกแบบจาก Le Corbusier, Frank Lloyd Wright, Alvar Aalto และ Mies van der Rohe แต่ก็ไม่มาก ไม่น้อยไปกว่า Bramante, Borromini และ Bernini ผมเชื่อว่าสถาปัตยกรรมคือสิ่งที่เชื่อมต่อประเพณีอันยาวนาน ไม่ว่าเราจะทำตาม เปลี่ยนแปลง หรือแหกกฎก็ตาม เพราะสุดท้ายแล้ว สถาปัตยกรรมก็ยังเชื่อมต่อกับอดีตอยู่ดี” Richard Meier กล่าวถึงแนวคิดการออกแบบของเขา

Bodrum Houses

เขามักจะใช้ ‘สีขาว’ ในการออกแบบอาคาร เพราะเขาเชื่อว่า สีขาวจะแสดงคุณภาพของแสงที่ตกกระทบกับที่ว่างได้ดีที่สุด เช่นเดียวกับการสื่อแนวคิดของสถาปัตยกรรม ผ่านความโปร่งแสง ที่ว่าง โครงสร้าง และพื้นผิววัสดุ ได้ชัดเจนที่สุดเช่นกัน

Douglas House

Rachofsky House

จากการทำงานในแวดวงสถาปัตยกรรมมามากกว่า 50 ปี จุดเริ่มต้นของเขานั้น เริ่มต้นจากโปรเจคขนาดเล็ก เช่นบ้าน Douglas House และ Rachofsky House จนปัจจุบัน เขาได้ออกแบบสถาปัตยกรรมมากมาย ทั้งห้างสรรพสินค้า โรงแรม คอนโดมิเนียม พิพิธภัณฑ์ หรือสำนักงานขนาดใหญ่ เช่น The Getty Center, Barcelona Museum of Contemporary Art หรือ Paley Center เป็นต้น

International Coffee Plaza, Rothschild Tower และ Jesolo Lido Condominium

Teachers Village

Location: Newark, New Jersey

Richard Meier ออกแบบ Teachers Village ในเมือง Newark, New Jersey บ้านเกิดของเขา Teachers Village เป็นอาคาร Mixed – use ที่รวบรวมฟังก์ชันต่างๆ ไว้มากมาย ไม่ว่าจะเป็นโรงเรียนกฎหมาย 3 แห่ง ศูนย์รับเลี้ยงเด็ก ที่พักอาศัย และร้านค้าปลีกที่ตั้งในพื้นที่ชั้น 1 โดยทางรัฐบาลคาดหวังไว้ว่าอาคารแห่งนี้จะช่วยฟื้นฟูเมือง Newark ให้มีพื้นที่ส่วนรวมมากขึ้น

อาคารแต่ละหลังออกแบบมาเพื่อสร้างความกลมกลืน ต่อเนื่องตามบริบทเมือง และวางผังอาคารโดยอิงจากกฎหมายเมืองที่ระบุไว้ว่า หากอาคารตั้งเผชิญหน้ากับถนนต้องมีความสูงไม่เกิน 18 เมตร Teachers Village จึงแบ่งเป็น 3 ตึก และมีความสูงแค่ 18 เมตรตามกฎหมายอาคาร

องค์ประกอบของแต่ละอาคารล้วนมีลูกเล่นต่างๆ แอบซ่อนไว้ ไม่ว่าจะเป็นการสร้างระเบียงส่วนกลางขนาดใหญ่ให้กับส่วนที่พักอาศัย เพื่อรับลมและแสงแดด หรือแม้แต่การเจาะช่อง Skylight ที่ช่วยให้แสงสว่างเข้าถึงพื้นที่ในอาคารมากขึ้น

Teachers Village คือโปรเจคแรกของอเมริกาที่ผ่านมาตรฐาน LEED ซึ่งหมายถึงการเป็นสถาปัตยกรรมยั่งยืน เป็นอาคารที่ถูกออกแบบและก่อสร้างตามลักษณะการประหยัดพลังงาน ใช้น้ำอย่างมีประสิทธิภาพ และลดการปล่อยก๊าซคาร์บอนไดออกไซด์

Engel & Völkers Headquarters and Apartments

Location: Hamburg, Germany

Richard Meier & Partners Architects ถูกคัดเลือกให้ออกแบบอาคาร Mixed – use แห่งใหม่ ภายใต้ชื่อ Engel & Völkers Headquarters and Apartments เป็นอาคารที่ประกอบด้วยออฟฟิศ ที่พักอาศัย และพื้นที่ผ่อนคลาย ในเมือง Hamburg, Germany

การออกแบบอาคารเริ่มต้นจากการจับคู่ระหว่างคอร์ทยาร์ดและการวางผังอาคารที่มีฟังก์ชันแตกต่างกัน เช่น ที่พักอาศัย สถาบันการเรียนการสอน ออฟฟิศ และร้านค้า โดยใช้ Double Facade ที่ต่อเนื่องและสม่ำเสมอครอบคลุมผิวอาคารด้านใน โดย Facade แต่ละด้านจะแตกต่างกันตามฟังก์ชันอาคาร

จากนั้นคอร์ทยาร์ดที่ถูกแบ่งพื้นที่ในตอนแรก จะถูกปรับเปลี่ยนเป็นโถงทางเดิน ห้องนั่งเล่น ส่วนต้อนรับโรงแรมขนาดใหญ่ และในพื้นที่ชั้น 1 จะมีร้านกาแฟ แกลเลอรี่ และร้านค้าต่างๆ ชั้นบนเป็นส่วนที่พักอาศัย ซึ่งมีการเจาะช่อง Skylight ไว้ด้วย

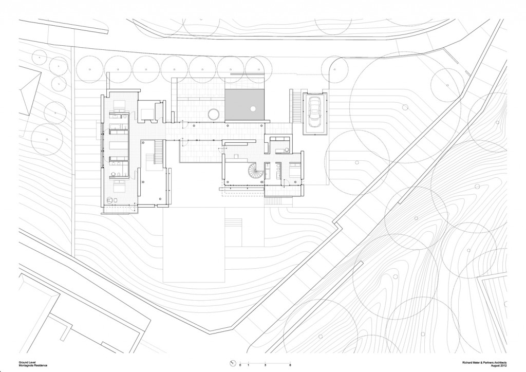
Montagnola Residence

Location: Lugano, Switzerland

Montagnola Residence เป็นบ้านพักอาศัยของนักสะสมงานศิลปะ ผู้เลือกที่จะสร้างบ้านบนเนินเขาที่สูงชันในเทือกเขา Swiss Alps เมือง Lugano ประเทศ Switzerland

Richard Meier ออกแบบโดยคำนึงถึงบริบทรอบข้าง ทั้งจากบริเวณที่อยู่อาศัยใกล้เคียง และทิศทางการขึ้นลงของดวงอาทิตย์ ซึ่งเป็นองค์ประกอบสำคัญของการออกแบบบ้านโดยทั่วไป

รูปแบบของบ้านถูกออกแบบให้เป็นสี่เหลี่ยมผืนผ้า 2 รูป วางขนานกัน และมีระเบียงโปร่ง โล่ง ตรงกลางคอยเชื่อมต่อพื้นที่ทั้ง  2 ส่วน ห้องนอนและพื้นที่ส่วนตัวจะตั้งอยู่ในบริเวณเหนือสุดของพื้นที่แต่ละด้าน เพื่อเปิดรับทิวทัศน์จากทะเลสาบ Lugano พื้นที่ถัดมาเป็นห้องครัวที่มีระเบียงกลางแจ้งเชื่อมต่อแต่ละฟังก์ชัน ส่วนโถงกลางเป็นแกลเลอรีและห้องนั่งเล่นนั่นเอง

พื้นที่ทุกส่วนในบ้านสามารถเข้าถึงสวนและระเบียงได้ แต่จะมีมุมมองที่แตกต่างกันโดยขึ้นอยู่กับความเป็นส่วนตัวของห้องนั้นๆ

ห้องทุกห้องภายในบ้านหลังนี้ล้วนได้รับภูมิทัศน์จากธรรมชาติที่เปลี่ยนแปลงอยู่ตลอดเวลา ทำให้ Mood & Tone ภายในบ้านเปลี่ยนแปลงตามวันและเวลาด้วยเช่นกัน 

Richard Meier ในวัย 49 ปี ได้รับรางวัล Pritzker Prize 1984 ซึ่งในตอนนั้น เขาเป็นสถาปนิกอายุน้อยที่สุด ที่ได้รางวัล และในเวลาต่อมาเขายังได้รับรางวัลชนะเลิศจาก AIA Gold Medal อีกด้วย งานของเขามักใช้วัสดุและสีขาวเป็นหลัก เพื่อแสดงแสง เงา และแนวคิดอาคารได้อย่างครบถ้วน เพราะบางครั้งการไม่มีสี ก็สามารถสื่อสารถึงตัวตนและแนวคิดออกมาได้ชัดเจนที่สุดเช่นกัน …

ขอบคุณภาพและข้อมูลจาก Richardmeier, Pritzker prize, Archdaily, Designboom, Archpaper, Archinect

Discover more from Design Makes A Better Life.

Subscribe now to keep reading and get access to the full archive.

Continue reading