“เมื่อตู้คอนเทนเนอร์ถูกเปลี่ยนจากตู้บรรจุสินค้า เป็นสถาปัตยกรรมสุดเท่ที่ให้รถอาศัยเป็นหลัก”
Muangthongthani Carcare
Location: เมืองทองธานี, นนทบุรี
Owner: ธรรมลักษณ์ อินทรโยธา
Architects: Archimontage Design Fields Sophisticated
Team: เชิงชาย เรียวเรืองแสงกุล และ ธนกฤต วิริยะสถิตย์
Photographs: จิณณวัตร บริหารกิจอนันต์
การจะสร้างอาคารสักหนึ่งหลัง คุณคิดว่าต้องใช้ระยะเวลาสักเท่าไหร่?
ในแต่ละวัน มีสิ่งก่อสร้างที่เรียกว่า “สถาปัตยกรรม” เกิดขึ้นมากมาย หากลองนึกย้อนตั้งแต่กระบวนการออกแบบไปจนถึงกระบวนการก่อสร้างแล้ว นับรวมๆคงต้องใช้ระยะเวลายาวนานเป็นแรมปี อีกทั้งวัสดุก่อสร้างใช้ในปริมาณที่มาก เมื่อเวลาผ่านพ้นไปก็เสื่อมโทรมจนอาจถูกทิ้งร้างไปในที่สุด แต่สิ่งเหล่านี้กลับไม่ใช่ปัญหาของ “Muangthongthani Carcare” สถาปัตยกรรมจากตู้คอนเทนเนอร์สีดำส่วนต่อเติมร้าน Muangthongthani Carcare ที่สร้างทางเลือกในการนำตู้คอนเทนเนอร์เก่ามาใช้ประโยชน์อีกครั้ง และสามารถย่นระยะเวลาในการก่อสร้างกว่าเท่าตัว
จุดเริ่มต้นจากปริมาณลูกค้าที่เพิ่มมากขึ้น ทำให้ “คุณขวัญ-ธรรมลักษณ์ อินทรโยธา” เจ้าของร้าน Muangthongthani Carcare ย่านเมืองทองธานีตัดสินใจขยับขยายพื้นที่ โดยให้สถาปนิกจาก Archimontage Design Fields Sophisticated มาช่วยออกแบบส่วนขยายนี้ในสไตล์ที่ตนชอบ โดยใช้ตู้คอนเทนเนอร์สีดำทั้งหมด 8 ตู้ ประกอบไปด้วย 2 ขนาดที่แตกต่างกัน มาเรียบเรียงใหม่ให้เกิดเป็นสถาปัตยกรรม 3 ชั้น สุดเท่และโดดเด่นนี้
ความสำเร็จรูปใน 75 ตารางวา
รูปแบบของความสำเร็จรูปที่ออกมาผ่านสถาปัตยกรรมตู้คอนเทนเนอร์ภายในพื้นที่ทั้งหมด 75 ตารางวา ด้านทิศตะวันตกของร้านคาร์แคร์เดิม ภายใต้รูปแบบความเท่นี้ ยังคงมีเรื่องราวของความแข็งแรงที่กลายเป็นอีกทางเลือกหนึ่งของการนำมันกลับมาใช้เป็นโครงสร้างของสถาปัตยกรรม รวมถึงใช้งานได้หลากหลาย ประกอบกับต้นทุนที่มีราคาไม่สูงมาก หาได้ไม่ยาก ซึ่งนี่เป็นหนึ่งเหตุผลที่ทำให้เราเห็นร้านคาร์แคร์แห่งนี้ทำจากตู้คอนเทนเนอร์ วางเรียงตัวรูปแบบที่ดูเรียบง่าย และทางเดินที่ไม่ซับซ้อน
ไม่ใช่แค่คน แต่รถอาศัย
“ด้วยขนาดมาตรฐานของรถยนต์ เป็นตัวกำหนดขนาดของตู้คอนเทนเนอร์ที่ควรใช้อย่างคร่าวๆ” คุณไก่-เชิงชาย เรียวเรืองแสงกุล สถาปนิกผู้ออกแบบเล่าถึงเบื้องหลังสาเหตุในการเลือกขนาดของตู้คอนเทนเนอร์ให้เหมาะสม ได้แก่ตู้ขนาดเล็ก 2.34 x 2.40 x 6.00 เมตร จำนวน 4 ตู้ และตู้ขนาดใหญ่ 2.34 x 2.40 x 12 เมตร จำนวน 4 ตู้
อาคารสามชั้น ถูกแบ่งฟังก์ชันหลักๆออกเป็นสามฟังก์ชันคือ ด้านล่างสุดของอาคารประกอบด้วยห้องเคลือบสีสองคัน ชั้นสองถูกจัดเตรียมไว้เป็นร้านอาหารในอนาคตโดยมีลานอเนกประสงค์ด้านหน้าไว้รองรับส่วนร้านเครื่องดื่ม และชั้นสามเป็นพื้นที่สำนักงาน สำหรับการทำงานปริ้นท์ตัดแปะฟิล์มสำหรับติดรถยนต์
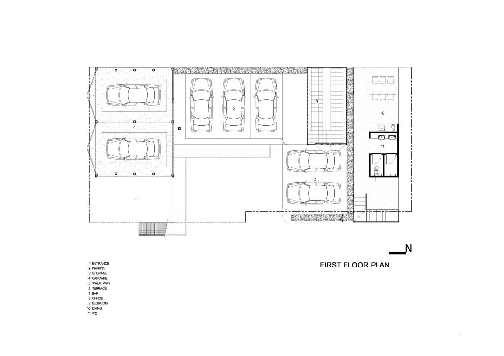
แปลนชั้น 1 ที่มีการวางผังเป็นรูปตัว L แสดงให้เห็นห้องเคลือบสีด้านหน้า ที่จอดรถ และด้านหลังที่เป็นบ้านพักพนักงาน
แปลนชั้น 2 ที่จัดเตรียมพื้นที่ไว้สำหรับร้านอาหารและเครื่องดื่ม และมีบันไดด้านข้างเพื่อไปยังสำนักงานชั้น 3
พื้นที่ภายในสำนักงานชั้น 3 ที่เชื่อมต่อพื้นที่สองตู้คอนเทนเนอร์เข้าด้วยกัน
ซึ่งมีสะพานหรือส่วนเชื่อมต่อกับร้านกาแฟเดิม พาดผ่านทางเข้าของพื้นที่ใหม่
นอกดำเท่ ในขาวโปร่ง
ภาพภายนอกสีดำด้าน แต่ภายในสีขาวสะอาดตาของตู้คอนเทนเนอร์นั้น เป็นความตั้งใจของสถาปนิกที่ต้องการให้ภาพจำของภายนอกและภายในมีความแตกต่างกัน ภายนอกต้องการให้ดูเท่ขรึม ส่วนด้านในให้มีความโปร่งโล่ง มีการเจาะช่องเปิดและติดตั้งกระจกใสกว้างในทิศตะวันออกเพื่อเปิดรับแสงธรรมชาติเข้ามาในเวลากลางวัน ส่วนทิศตะวันตกที่เป็นทิศทางที่แสงส่องเข้ามาโดยตรงจึงเลือกออกแบบช่องเปิดขนาดเล็กในบางจุด และมีตะแกรงเหล็กฉีกเพื่อกันความร้อนจากแสงแดดเข้ามาสู่ภายในด้วย
ตะแกรงเหล็กฉีกที่เป็นเหมือน Double Skin ในทิศตะวันตกของอาคาร
นอกจากนี้ การออกแบบแสงภายในเกือบทั้งหมด ยังใช้แสงไฟจากฟลูออเรสเซนซ์ติดตั้งกับรางเหล็กที่ถูกออกแบบมาตามลักษณะเฉพาะอีกด้วย
“แนวโน้มของสถาปัตยกรรมจากตู้คอนเทนเนอร์เป็นไปในทางที่ดี เป็นที่นิยม เพราะปัจจุบันคนเริ่มให้ความสนใจจากความสำเร็จรูปที่จัดการง่ายและราคาไม่แพง สู่การดัดแปลงที่หลากหลาย” คือค่านิยมในการนำตู้คอนเทนเนอร์มาออกแบบงานสถาปัตยกรรมในปัจจุบัน ซึ่งคาร์แคร์แห่งนี้คงเป็นอีกหนึ่งงาน ที่จุดประกายแนวคิดในการนำตู้เทนเนอร์เก่ามาดัดแปลงให้เกิดสิ่งสร้างสรรค์ใหม่ๆได้อย่างน่าสนใจ




















