การอาศัยในพื้นที่เมือง แม้สะดวกสบายแต่หลายครั้งนั้นแลกมาด้วยข้อจำกัดด้านพื้นที่ เราจะอยู่อาศัยในเมืองที่มีพื้นที่จำกัดได้อย่างไร เพราะมันไม่ใช่แค่การอยู่ได้ แต่ต้องอยู่ด้วยคุณภาพชีวิตที่ดีด้วยนั่นเอง…
เรามักมองหาทางออกสำหรับข้อจำกัดดังกล่าวด้วยวิธีที่หลากหลาย แต่นี่น่าจะเป็นอีกไอเดีย ที่จะช่วยให้คุณตกแต่งห้องพื้นที่จำกัด ด้วยสินค้าจาก IKEA ที่ทั้งตอบโจทย์เรื่องการใช้งาน และสวยงามลงตัวในสไตล์ที่ชอบด้วย
ดาวน์โหลดแบบทั้งหมดได้ ที่นี่

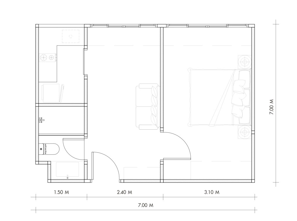
โดยแปลนห้องเปล่านี้คือตัวอย่างของห้องในคอนโดมิเนียมที่เราพบเห็นได้บ่อย เป็นขนาด 35 ตารางเมตร ที่มีครบทั้งห้องน้ำและครัว นำเสนอผ่าน 3 แบบ 3 สไตล์
ส่วนใหญ่แล้วนั้น การออกแบบตกแต่งห้องของคอนโดมิเนียม มีข้อจำกัดเรื่องห้องน้ำ ที่ไม่สามารถย้ายตำแหน่งได้ สิ่งที่สามารถทำได้คือการออกแบบส่วนใช้งานให้สามารถใช้ได้จริง เกิดประโยชน์สูงสุด ส่วนครัวหรือเตรียมอาหารก็เช่นกัน ที่ยังคงต้องคงตำแหน่งเดิมไว้ ส่วนของผนังก็เช่นกัน ส่วนใหญ่แล้วเป็นผนังคอนกรีตสำเร็จรูป ที่ไม่สามารถทุบหรือกั้นห้องใหม่ได้ การจัดพื้นที่ภายในจึงเป็นทางเดียวที่สามารถทำได้
TYPE A
Modern

ห้องสไตล์ Modern ของคนยุคใหม่ ตกแต่งด้วยโทนสีขาว เทา และน้ำตาล เน้นความโปร่งโล่ง และการใช้งานที่สะดวกสบาย มีส่วนนั่งทำงานในห้องนอน ส่วนทานข้าวเล็กๆ จะอยู่ในห้องนั่งเล่น
กับยุคสมัยที่คนต้องการรวมพื้นที่ทุกอย่างเข้ามาไว้ด้วยกัน การมีพื้นที่นั่งทำงานเล็กๆภายในห้องนอน อาจตอบโจทย์ผู้ใช้งานไม่น้อย หากแต่การจัดสรรเวลาในการทำงานและพักผ่อนให้สมดุลก็เป็นสิ่งที่สำคัญตามมานั่นเอง

[envira-gallery id=”36822″]

[envira-gallery id=”36938″]
โทนสีเอิร์ธโทน คือสีที่เหมาะกับการออกแบบตกแต่งสไตล์นี้ที่สุด หากกลัวน่าเบื่อเกินไป อาจเลือกสิ่งของตกแต่งสีสดใสมาแทรก อย่างหมอนอิงสีน้ำเงินและส้ม ช่วยให้ห้องดูสดใสน่าใช้งานมากขึ้น

เรียบง่ายด้วยการออกแบบเส้นสาย “น้อยแต่มาก” เน้นความโปร่งสบาย และยังแฝงด้วยฟังก์ชั่นการใช้งานที่สะดวกสบาย

[envira-gallery id=”36940″]
การใช้ผนังหินอ่อน ช่วยให้การตกแต่งสไตล์นี้ดูแปลกตามากขึ้น แต่ก็อย่าลืมถึงการใช้งาน ที่สามารถสร้างพื้นที่เก็บของเหนือศีรษะได้อย่างเหมาะสม สวยงาม

[envira-gallery id=”36946″]
ห้องนอนในโทนสีขาวสบายตา เพิ่มความน่าสนใจด้วยคิ้วบัวตกแต่งหัวเตียงด้วยเส้นสายน้อยชิ้น ซ่อนไฟหลืบเพื่อให้ได้แสงแบบ Indirect light เพิ่มบรรยากาศให้ห้องนอนดูสบายขึ้น ข้างโต๊ะทำงานมีที่นั่งริมหน้าต่างที่สามรถเก็บของที่ด้านใต้ได้ด้วย ส่วนเตียงเลือกแบบที่มีที่เก็บของใต้เตียง สะดวก สะอาด จัดเก็บง่าย

[envira-gallery id=”36964″]
ตู้เสื้อผ้า เลือกแบบบานเลื่อนเพื่อประหยัดพื้นที่ในการใช้งาน และรุ่น PAX เองก็สามารถเลือกรูปแบบชั้นภายในและปรั

[envira-gallery id=”36972″]
ห้องน้ำที่ดีความปลอดภัยและใช้งานง่าย ออกแบบชั้นเก็บของเพิ่มในส่วนเหนือโถส้วม โทนสีขาว ดำ ดูดีแบบทันสมัย

[envira-gallery id=”36978″]
ครัวที่ดีควรทำความสะอาดง่าย เป็นระเบียบ การเลือกหน้าบานที่มีผิวมัน เป็นผิวที่ทำความสะอาดง่าย รวมถึงจัดเก็บอุปกรณ์ทำครัวที่บอร์ดที่ผนัง ช่วยให้ใช้งานได้สะดวกและสวยงาม ซึ่งโดยส่วนใหญ่แล้ว คอนโดมิเนียมมักมาพร้อมเคาท์เตอร์ครัวอยู่แล้ว แต่ใครที่สนใจจะตกแต่งครัวใหม่ ที่ IKEA ก็มีชุดครัว METOD ให้เลือกหลากหลายแบบ สามารถดูรายละเอียดที่ >>> IKEA METOD
TYPE B
Modern Mixed Traditional
สไตล์การออกแบบตกแต่งหนึ่ง ที่สร้างบรรยากาศน่าพักผ่อนได้เป็นอย่างดี นั่นคือสไตล์ Traditional แต่หากใครตัวว่ามันจะดูแก่ ดูล้าสมัยเกินไป เราขอแนะนำการผสมผสานความโมเดิร์นเข้าไป เป็นสไตล์ Modern Mixed Traditional ที่เน้นโทนสีเอิร์ธโทน เช่น ขาว ครีม น้ำตาล น้ำเงิน เทา เช่นเดิม บวกกับการตกแต่งที่มีเส้นสายขอบคิ้ว เพิ่มรายละเอียดของห้องให้ดูน่าอยู่มากยิ่งขึ้น แต่เป็นเส้นสายที่ลดทอนความเป็นดั้งเดิมลงมาแล้ว เหลือเพียงบางส่วนที่ยังสื่อสารถึงความเป็น Traditional อยู่นั่นเอง

สำหรับหลายคน ที่อยากให้บ้านเป็นพื้นที่แห่งการพักผ่อนจริงๆ การจัดพื้นที่การใช้งานอาจเน้นที่ความชัดเจนของพื้นที่ เช่นแบบนี้จะมีการแยกพื้นที่ทำงานไว้ที่ห้องนั่งเล่น และห้องนอนนั้นทำเป็นที่นั่งริมหน้าต่าง เพื่อการพักผ่อนอย่างแท้จริง

[envira-gallery id=”36981″]
ภายในดูผ่อนคลายแบบสุขุมด้วยโทนสีเทาเข้ม เลือกปูพื้นด้วยไม้มีตา ลายชัด เพื่อเพิ่มความน่าสนใจให้กับห้อง

[envira-gallery id=”36992″]
เพิ่มความเป็น Modern Mixed Traditional ด้วยการตกแต่งผนังเป็นสายสายแนวตั้งถี่ วัสดุไม้สังเคราะห์ง่ายต่อการดูแลรักษา ดูเข้ากับเฟอร์นิเจอร์สีขาวและเทา และไม้สีอ่อน เพื่อส่งเสริมความเป็น Traditional แบบโมเดิร์นมากขึ้น

[envira-gallery id=”36996″]
ห้องนอนใช้รูปแบบผนังเส้นสายแนวตั้งเช่นเดิมมาตกแต่งที่หัวเตียง ใช้ผ้าม่านและเฟอร์นิเจอร์สีโทนน้ำตาลอ่อน เข้มตามความชอบ และเพื่อไม่ให้น่าเบื่อเกินไป เลือกผ้าปูที่นอนสีน้ำเงินเข้ม ช่วยให้ห้องดูสงบนิ่งน่าพักผ่อนมากขึ้นไปอีก

[envira-gallery id=”37003″]
ห้องน้ำปูกระเบื้องแกรนิตโต้ที่มีสีและลายคละกัน ในโทนสีเทาและขาวควันบุหรี่ เพิ่มชั้นวางของที่จำเป็นช่วยให้การใช้งานลื่นไหลยิ่งขึ้น

[envira-gallery id=”37007″]
ที่ครัวเลือกใช้หน้าบานผิวมันเพื่อความสะดวกสบายในการทำความสะอาด และยังคงดูสว่างตาด้วยสีขาว ซึ่งโดยส่วนใหญ่แล้ว คอนโดมิเนียมมักมาพร้อมเคาท์เตอร์ครัวอยู่แล้ว แต่ใครที่สนใจจะตกแต่งครัวใหม่ ที่ IKEA ก็มีชุดครัว METOD ให้เลือกหลากหลายแบบ สามารถดูรายละเอียดที่ >>> IKEA METOD
TYPE C
Scandinavian Modern
สีขาวและไม้โทนอ่อน ช่วยส่งเสริมให้สไตล์ Scandinavian Modern ดูเด่นชัดขึ้น เพิ่มความน่าสนใจโดยการแต่งแต้มสีสันสดใสจากพรม หมอน หรือผ้าม่าน ให้บรรยากาศภายในดูสนุกสนานขึ้น

ชิคๆสบายๆ ด้วยสไตล์ Scandinavian Modern ที่ดูลงตัวด้วยการจัดวางเฟอร์นิเจอร์แบบหลวมๆแต่ใช้งานได้ดี บวกกับการเลือกใช้สีและพื้นผิวที่สื่อถึงความเป็น Scandinavian Modern เช่นไม้ขัดเสี้ยน สีขาว และพื้นผิวแบบผ้า มาใช้มากขึ้น

[envira-gallery id=”37009″]
เพิ่มความสดใสให้ห้องด้วยโซฟาลายสวยสีสด ทำให้เกิดสไตล์ Scandinavian Modern ที่ผสมผสานความเป็นเอเชียเข้าไปได้อย่างน่าสนใจ

[envira-gallery id=”37015″]
ทางเข้าห้องที่ดีควรมีพื้นที่เพียงพอให้การจัดเก็บสิ่งของ เช่นที่เก็บรองเท้า ที่วางสิ่งของเล็กๆน้อยๆ ที่แขวนเสื้อ แขวนร่ม เป็นต้น

[envira-gallery id=”37021″]
ภายในพื้นที่เล็กๆนี้ สามารถใช้งานได้อย่างมีประสิทธิภาพ เพราะการจัดเก็บของและแบ่งสัดส่วนการใช้งานที่ชัดเจน

[envira-gallery id=”37025″]
ห้องนอนเรียบง่าย เน้นการใช้งานที่สะดวกและไม่แออัด

[envira-gallery id=”37033″]
ห้องน้ำโทนสีขาว ที่สะดวกสบายด้วยที่วางของที่พอเพียงและดูสะอาดตา

[envira-gallery id=”37034″]
เจ้าของบ้านที่ชอบพื้นผิวไม้ แนะนำปิดหน้าบานด้วยวัสดุไม้ดู จะช่วยให้ครัวของคุณดูน่าใช้งานมากยิ่งขึ้น ซึ่งโดยส่วนใหญ่แล้ว คอนโดมิเนียมมักมาพร้อมเคาท์เตอร์ครัวอยู่แล้ว แต่ใครที่สนใจจะตกแต่งครัวใหม่ ที่ IKEA ก็มีชุดครัว METOD ให้เลือกหลากหลายแบบ สามารถดูรายละเอียดที่ >>> IKEA METOD
ทั้งหมดนี้เป็นเพียงตัวอย่าง ที่เรานำมาเสนอเพื่อให้เกิดไอเดียและนำไปต่อยอด คิดแบบต่อไปเพื่อให้ได้แบบที่เป็นตัวคุณมากที่สุด และจำไว้เสมอว่า พื้นที่เล็กๆ ที่เราคิดว่าไม่สามารถทำอะไรได้นั้น ยังมีไอเดียและมุมมองมากมายที่จะช่วยให้การอยู่อาศัยของเราดีขึ้น หวังเป็นอย่างยิ่งว่าการเสนอไอเดียของการตกแต่งห้องเล็กๆครั้งนี้ จะเป็นประโยชน์ต่อผู้ที่ได้รับชมไม่มากก็น้อย
ที่สำคัญตอนนี้คุณสามารถช้อปสินค้า IKEA แบบออนไลน์ได้แล้ว ถือเป็นอีกช่องทางที่สำคัญและช่วยให้การออกแบบวางแผนการตกแต่งบ้านของเรา เป็นไปอย่างรวดเร็วและสะดวกมากขึ้น เข้าไปช้อปได้ที่ IKEA.co.th
ดาวน์โหลดแบบทั้งหมดได้ ที่นี่

