“ออกแบบร่วมกับคนและธรรมชาติ เท่ากับบ้านในฉบับที่สมบูรณ์แบบที่สุด”
N House
Location: อุดรธานี
Architect: ปองพล ยุทธรัตน์ hed design studio
Photographs: ปองพล ยุทธรัตน์
วัชพืช หรือพืชพรรณที่เกิดขึ้นเองตามธรรมชาติอาจไม่ใช่สิ่งที่สวยงามนัก แต่หากจะออกแบบบ้านสักหนึ่งหลัง อย่างน้อยๆ วัชพืชก็เป็นเข็มทิศบ่งบอกสภาพพื้นดิน และนำทางไปสู่การออกแบบบ้านที่ดีได้.. การออกแบบบ้านจากคอนเซปต์ Design with Human และ Design with Nature จึงเป็นหัวใจหลักในการออกแบบ “N House” บ้านชานเมืองจังหวัดอุดรธานี ที่ออกแบบโดย “คุณเต้ย-ปองพล ยุทธรัตน์ จาก hed design studio” ที่บอกกับเราว่า แท้จริงแล้วฝีมือการออกแบบบ้านหลังนี้ไม่ใช่เพียงเขา แต่คือทุกคนที่เกี่ยวข้อง ไม่เว้นแม้แต่วัชพืชในพื้นที่
ปิดนอกเปิดใน ใส่คอร์ทยาด
เนื่องจากเจ้าของบ้านเป็นคู่สามี-ภรรยา ที่มีลูกชายตัวเล็กๆหนึ่งคน โจทย์แรกที่สถาปนิกได้รับคือ เรื่องของความเป็นส่วนตัวจากมุมมองภายนอก แต่ภายในซุกซ่อนความโปร่งสบายไว้ให้ได้มากที่สุด สถาปนิกจึงออกแบบกรอบของบ้านเป็นผนังที่ค่อนข้างทึบ และเลือกใช้วัสดุ “อิฐช่องลม” ในขนาดสี่เหลี่ยมจตุรัส วางในตำแหน่งที่ต้องการเพื่อให้พื้นที่ภายในมองเห็นภายนอกได้ ในขณะที่ภายนอกมองเข้ามาได้ค่อนข้างยาก อีกทั้งยังทำให้เกิด Ventilation ลมพัดผ่านเข้าสู่ตัวบ้านได้ ในขณะที่ภายในสร้างคอร์ทยาด และเปิดมุมมองทุกห้องภายในบ้านให้เชื่อมต่อ
ผิดทิศแต่ถูกทาง
การจัดวางผังภายในบ้านออกแบบเป็นรูปตัว L ทำให้พื้นที่ที่เหลือกลายเป็นคอร์ทยาดโดยอัตโนมัติ ด้วยความที่ด้านทิศตะวันออกของบ้านมีพื้นที่ติดกับบ้านอีกหลัง ทำให้สถาปนิกตัดสินใจเลือกวางคอร์ทยาดไว้ทางทิศตะวันตก เพราะเป็นทิศทางที่ติดกับพื้นที่ว่าง มีความโปร่งโล่ง และมีวิวทิวทัศน์ที่สวยงามกว่า แม้จะผิดหลักที่ควรวางไว้ในทิศตะวันออก เพื่อให้เกิดร่มเงาภายในคอร์ทจากตัวบ้านในช่วงบ่ายถึงเย็นก็ตาม
“เรายอมแลกเอาคอร์ทยาดหันไปทางทิศตะวันตก แล้วช่วยด้วยการปลูกต้นไม้ใหญ่ เพื่อให้เป็นร่มเงาในช่วงบ่าย และทำให้เกิดบรรยากาศที่ดีของทุกห้องในตอนเย็น” สถาปนิกกล่าว และด้วยเหตุนี้เองเราจึงเห็นต้นเสม็ดแดง หรือที่ภาคอีสานเรียกว่าต้นผักเมกอยู่ภายในคอร์ทยาด ทำหน้าที่ให้ร่มเงา และสร้างบรรยากาศอันร่มรื่นให้กับบ้านหลังนี้ บวกกับการออกแบบห้องทำงานเล็กๆวางไว้ภายในคอร์ทยาดติดกับส่วนหลังบ้าน ซึ่งเป็นส่วนสำคัญที่ทำให้ขอบเขตของคอร์ทยาดนี้ชัดเจนมากยิ่งขึ้น และกลายเป็นหัวใจหลักของบ้านในที่สุด
ภาพสามมิติของบ้าน
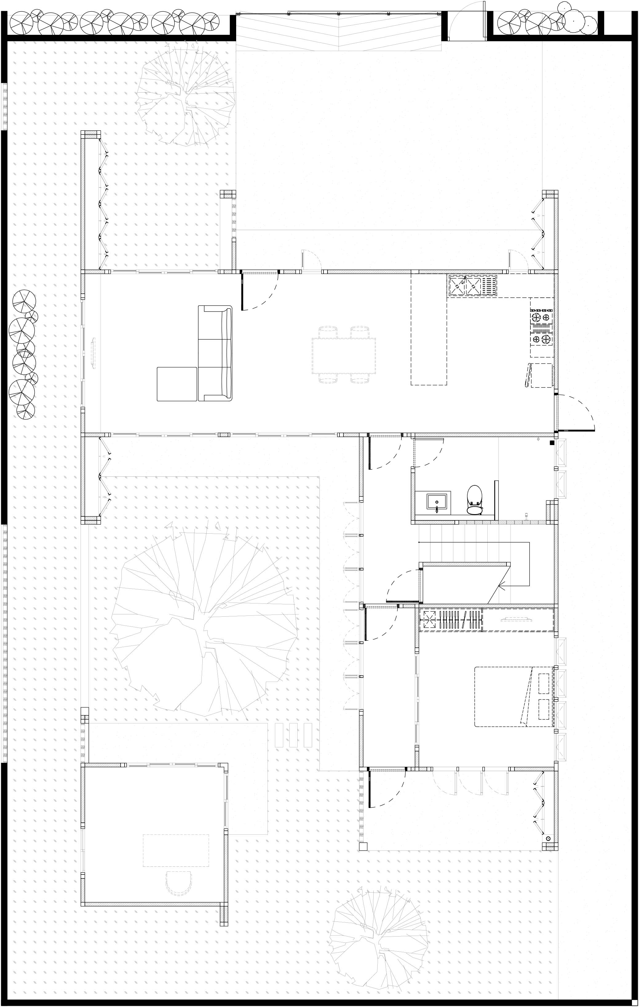
แปลนชั้น 1และชั้น 2 ของบ้าน
เชื่อมต่อระหว่างทาง เปิดสู่ธรรมชาติ
เมื่อก้าวเข้าสู่ตัวบ้าน พื้นที่แรกที่เห็นเรียกว่า “LDK” คือ Living Dining Kitchen ที่มีความเชื่อมต่อกันแบบ Open Space แบ่งพื้นที่จากเฟอร์นิเจอร์ ซึ่งในส่วนของ Living จะมีช่องเปิดเชื่อมต่อพื้นที่ระหว่างคอร์ทเล็กๆหน้าบ้าน กับคอร์ทกลางบ้าน ที่เมื่อเปิดหน้าต่างสองด้านพร้อมกัน จะเหมือนนั่งอยู่ใต้ต้นไม้ที่มีลมพัดเอื่อยๆ อากาศพัดผ่านไปมาได้สะดวก ในทางเดียวกันขณะที่พ่อแม่นั่งอยู่ในห้องนั่งเล่นนั้น ก็สามารถมองเห็นลูกที่กำลังเล่นอยู่ในคอร์ทยาดได้อย่างปลอดภัย
พื้นที่ภายใน LDK
ความพิเศษของการออกแบบช่องเปิดภายในบ้านหลังนี้ ไม่ว่าจะเป็นส่วนของทางเดิน และห้องนอน ก็มีช่องเปิดที่เปิดสู่คอร์ทยาด โดยเป็นหน้าต่างแบบดับเบิ้ลสกิน หรือหน้าต่างสองชั้น ด้านนอกเป็นบานเกล็ดที่มีมุ้งลวดซ่อนอยู่ภายใน หากต้องการความเป็นส่วนตัว ก็สามารถปิดตัวบานเกร็ดนี้เพื่อพรางมุมมองจากภายนอกได้ ในขณะที่ยังมีการระบายอากาศได้ดี หากต้องการให้พื้นที่เปิดโล่ง เชื่อมต่อกับบรรยากาศภายนอกอย่างเต็มที่ ก็เพียงแค่เปิดทั้งหมด
Design with Human
“ถ้าถามว่าบ้านที่ดีต้องเป็นอย่างไร ก็คงจะหยิบคำว่า “Design With Human” มาพูด โดยส่วนตัวคิดว่าไม่จำเป็นต้องเป็นสถาปนิกคนเดียวในการออกแบบ สถาปนิกอาจจะเป็นคนนำ แต่งานที่ดีมันต้องเกิดจากการทำงานของทุกคนร่วมกันทั้งหมดครับ” คุณเต้ยกล่าวหลังจากเล่าภาพรวมของบ้านให้เราเข้าใจถึงพื้นที่ แต่ในส่วนสำคัญที่หลอมรวมบ้านนี้ให้เกิดขึ้น มาจากการออกแบบของทุกคน ที่มีส่วนร่วมสถาปนิกในการออกแบบ ไม่ว่าจะเป็น เจ้าของบ้าน ที่ตั้งโจทย์ความต้องการ หรือช่างที่มาก่อสร้าง ที่ให้แนวคิดในเรื่องของการออกแบบโครงสร้างต่างๆ ให้ผลลัพธ์ออกมาสมบูรณ์มากที่สุดเท่าที่จะทำได้
“สถาปนิกควรต้องเป็นคนพาทุกคนมาทำงานร่วมกัน คำว่าทุกคนในที่นี้ก็มีตั้งแต่ตัวสถาปนิกเอง เจ้าของบ้าน ช่างที่ทำงานก่อสร้าง รวมไปถึงบริบทรอบๆ พืชพรรณที่อยู่รอบบ้าน ทุกอย่างเขามีพลังของเขา เขามีพลังที่จะมาช่วยเราทำงานนี้ได้”
Design with Nature
นอกเหนือจากแนวคิดของบุคคลแล้ว คำว่า “ทุกคน” ยังคงหมายถึง สัตว์ และพืชพรรณต่างๆที่อยู่รอบๆพื้นที่ด้วย ถึงแม้ไม่ได้ช่วยออกแบบ แต่สิ่งเหล่านี้ก็สามารถบ่งบอกความเป็นไป รวมถึงลักษณะทางกายภาพของพื้นที่นี้ได้เป็นอย่างดี อย่างที่นี่มีต้นไมยราพขึ้นทั่วบริเวณ เป็นวัชพืชที่ขึ้นเองตามธรรมชาติ ซึ่งเป็นสัญญาณที่บ่งบอกให้รู้ว่า ดินเป็นดินที่มีความชื้นค่อนข้างสูง เพราะฉะนั้นไมยราพจึงเป็นดั่งเข็มทิศที่ช่วยชีทางการออกแบบระบบพื้นไม่ให้สัมผัสกับดินโดยตรง เพราะเมื่อความชื้นของดินขึ้นมาที่พื้น อาจทำให้ความชื้นสัมพัทธ์ภายในบ้านเกินมาตรฐานของภาวะน่าสบาย
และด้วยความที่รอบข้างคือธรรมชาติทั้งหมด มีนกมาอาศัยอยู่ภายในอิฐช่องลมด้านหน้าบ้าน และส่งเสียงร้องปลุกเจ้าของบ้านในทุกๆเช้า ซึ่งเป็นปรากฏการณ์ที่ทำให้เจ้าของบ้านค่อนข้างประหลาดใจและประทับใจ ที่เขาได้อยู่ร่วมกับเสียงแห่งธรรมชาติจริงๆ ส่วนในแง่ของสถาปนิกนั้นก็เป็นสิ่งที่เกินคาด สิ่งที่เราไม่คาดคิดว่าจะเกิดขึ้น และทำให้บ้านหลังนี้ผสานกับการออกแบบของธรรมชาติอย่างแท้จริง




















