OPENING HOURS: MONDAY – SUNDAY: 10.00 AM TO 8.00 PM

info@sitename.com | 987654321

Design Makes A Better Life.

การออกแบบ สถาปนิก สถาปัตยกรรม ไลฟ์สไตล์

“ปิดกั้น แต่โปร่งโล่ง” รีโนเวทตึกแถวหนึ่งคูหาให้กลายเป็นสองห้องพักสุดคลาสสิค…บ้านบุญจันทร์งาม

“หนึ่งคูหา สองอาศัย ในย่านสามเสน”

บุญจันทร์งาม
Interior Designer:
สมุทรขจี เกตุบรรลุ และสุทธิดา ประหยัดทรัพย์ จาก LEAN ARCHITECT

Owner: ต้องปอง จันทรางกูร และ ศศิดารา บุญญฤทธิ์
Photographer: จิณณวัตร บริหารกิจอนันต์

“ตึกแถว” หนึ่งในประเภทอาคารที่หลายคนคุ้นเคย กับภาพคุ้นตาที่หนึ่งคูหาจะมีหน้ากว้างเพียง 4-5เมตร ซึ่งทำให้คนส่วนใหญ่เลือกปรับปรุงตึกแถวโดยพยายามรักษาพื้นที่ภายในไว้ให้ได้มากที่สุด แต่กับ“บ้านบุญจันทร์งาม สามเสน” แห่งนี้แตกต่างออกไป เพราะ เป็นการรีโนเวทตึกแถวสามชั้นในย่านสามเสนให้กลายเป็นที่พักAirbnb ต้อนรับนักท่องเที่ยวย่านพระนคร ด้วยการปิดกั้นกำแพงสูงเพื่อแบ่งมิติพื้นที่ภายในตึกแถวหนึ่งคูหาออกเป็นสองยูนิต ผ่านการออกแบบของ LEAN ARCHITECT บริษัทอินทีเรียดีไซน์เนอร์ ผู้บอกเล่าเรื่องราวผ่านการออกแบบและสร้างความวินเทจ ที่ซุกซ่อนอยู่เบื้องหลังประตูสองบานตรงหน้านี้ บ้านบุญจันทร์งาม สามเสน แห่งนี้ เป็นบ้านหลังที่สามของโปรเจกต์ที่พักบุญจันทร์งาม ตั้งอยู่บนถนนพระสุเมรุ

ที่คุณอ๊อง-ต้องปอง จันทรางกูร หนึ่งในหุ้นส่วนต้องการทดลองแบ่งพื้นที่ในรูปแบบที่แตกต่างออกไปจากบ้านบุญจันทร์งามหลังอื่นๆ เพื่อตอบโจทย์นักท่องเที่ยวส่วนใหญ่ที่มาพักแบบเป็นคู่ โดยมีโจทย์สำคัญคือ พื้นที่ทั้งสองห้องพักแยกออกจากกันอย่างอิสระ และเข้าถึงได้จากด้านหน้าถนนโดยต้องไม่รบกวนซึ่งกันและกัน

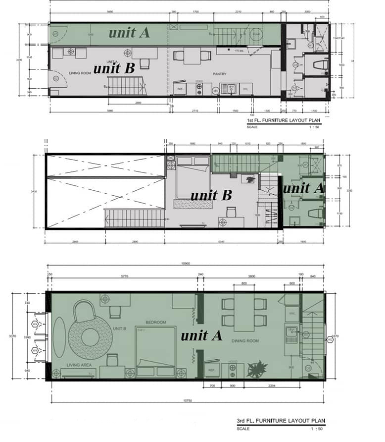
มีสามแบ่งสอง

“ถึงแม้พื้นที่มี 3 ชั้น แต่เราอยากแบ่งแค่ 2 ห้อง เราอยากให้แต่ละห้องมีฟังก์ชันทุกอย่างครบ อยู่สบาย บรรยากาศอบอุ่นเหมือนอยู่บ้าน” คำตอบของคุณอ๊อง เมื่อถามถึงเหตุผลที่ทำห้องพักเพียงสองห้อง ซึ่งวิธีการแบ่งสัดส่วนของตึกแถวที่มีหน้ากว้างเพียง 4 เมตร และมีชั้นสองเป็นชั้นลอย ด้วยสัดส่วนเท่าๆกันซ้าย-ขวาไม่สามารถทำได้เพราะพื้นที่ใช้งานจะแคบเกินไป สุดท้ายแล้วความลงตัวจึงเริ่มต้นจากสัดส่วน 1:3 ในชั้นล่าง ‘Unit A’ เป็นเพียงทางเดินกว้าง 1 เมตร ยาวไปจนสุดบันไดที่ขึ้นไปจะเจอกับห้องน้ำในชั้นสอง และห้องพักในชั้นสาม ส่วน ‘Unit B’ หน้ากว้าง 3 เมตรเป็นห้องในลักษณะ duplex หรือ double Volumn ครอบคลุมพื้นที่สองชั้น ชั้นล่างเป็นห้องนั่งเล่น ครัว และห้องน้ำ มีบันไดภายในเชื่อมต่อขึ้นไปยังส่วนชั้นลอยซึ่งเป็นห้องนอน

แปลนที่แสดงถึงการแบ่งสัดส่วนพื้นที่ทั้งสามชั้น

ภาพทางเดินเมื่อเปิดประตูเข้าสู่ Unit A

ห้องพักที่อยู่บนชั้นสามของ Unit A

ภาพภายใน Unit B

แบ่งปันพื้นที่ แบ่งปันแสง

“ทางเดินกว้าง 1 เมตรนี่ถือว่าแคบมาก แต่เราทำพื้นที่ให้เป็น Double Space และดึงแสงธรรมชาติจากภายนอกเข้ามาใช้ให้มากที่สุด เพื่อให้ความรู้สึกขณะที่เดินผ่านสเปซนี้ไม่รู้สึกอึดอัด” สถาปนิกเล่าถึงวิธีการออกแบบพื้นที่แคบให้โปร่งโล่ง ด้วยวิธีดึงแสงธรรมชาติเข้ามาใช้ภายในพื้นที่ นอกจากการออกแบบช่องเปิดด้านบนด้านหน้าของตึกแถวแล้ว ยังออกแบบพื้นที่ด้านหลังของ Unit A โดยแบ่งปันพื้นที่ส่วนเล็กๆในฟังก์ชันห้องน้ำ ให้ทะลุเชื่อมต่อสู่ส่วนซักล้างใน Unit B ด้านล่าง เพื่อเปิดรับแสงธรรมชาติเข้าสู่พื้นที่ภายใน และทำให้พื้นที่ภายในสามารถปลูกต้นไม้จริงได้ด้วย

พื้นที่เชื่อมต่อแสงธรรมชาติระหว่างชั้น 2 และ ชั้น1

รักษาความทรงจำสุดคลาสสิค

ความตั้งใจที่จะเก็บรักษาความทรงจำพื้นที่แห่งนี้ไว้ให้ได้มากที่สุด ทำให้เรายังคงเห็นความคลาสสิคของโครงสร้างและวัสดุเดิมภายในตึกแถวนี้อย่างครบถ้วน ไม่ว่าจะเป็นคานรับน้ำหนัก พื้นไม้ และกระเบื้องที่มีลวดลายเป็นเอกลักษณ์ ส่วนผนัง เนื่องจากผนังเดิมที่เป็นผนังปูนฉาบเรียบเกิดการสึกกร่อน สถาปนิกจึงใช้วิธีสกัดปูนออกบางส่วน โชว์แนวอิฐด้านใน กลายมาเป็นการตกแต่งสุดคลาสสิคที่สร้างเอกลักษณ์ เพื่อถ่ายทอดความเป็นตัวตนของพื้นที่แห่งนี้และระลึกภาพของรูปแบบอาคารเก่าไม่ให้จางหายไป

กระเบื้องเดิมที่มีลวดลายเป็นเอกลักษณ์

บันไดที่มีอยู่เดิม แต่เพิ่มเติมสีเขียวเข้าไปเพื่อให้การตกแต่งของ Unit A ดูโดดเด่นมากยิ่งขึ้น

เก่าใช้ใหม่ ใส่ใจโลก

ห้องพักทั้งสองจะไม่สมบูรณ์แบบเลย หากขาดการตกแต่งที่ผสมผสานความวินเทจตามกลิ่นอายของย่านสามเสน ที่เป็นย่านท่องเที่ยวกรุงเก่า ซึ่งนอกจากนี้เจ้าของและสถาปนิกยังให้ความสำคัญกับการนำวัสดุเหลือใช้ มาประยุกต์ใหม่ เพื่อใช้ทรัพยากรอย่างคุ้มค่าที่สุดและลดปริมาณของเสียโลกให้เหลือน้อยลง (Zero Waste) เฟอร์นิเจอร์เกือบทุกชิ้นจึงเป็นเฟอร์นิเจอร์มือสองสภาพดี มีความวินเทจทำจากไม้ บางชิ้นก็เป็นของสะสมของเจ้าของเอง

บันไดภายใน Unit B ถึงแม้จะถูกสร้างขึ้นใหม่ แต่ลูกนอนของบันไดทำจากไม้เหลือใช้

กระเบื้องลายดอกไม้เล็กๆที่ฝังอยู่ตามพื้นปูนในชั้นล่าง เป็นกระเบื้องที่เหลือใช้จากงานอื่นๆของสถาปนิก

เนื่องจากหน้าต่างด้านหน้าตึกในชั้นสาม ซึ่งพื้นที่เป็นห้องพักของ Unit A มีสภาพผุพังจนใช้งานไม่ได้ จึงนำมาแขวนประดับผนังในส่วนของห้องครัว เพื่อคงรักษาร่องรอยอันมีค่าของตึกแห่งนี้ให้สมบูรณ์ที่สุด

ความคลาสสิคที่หลอมรวมอยู่ภายในตึกแถวแห่งนี้อย่างกลมกล่อม กับวิธีการแบ่งพื้นที่อย่างมีประสิทธิภาพ แม้จะออกแบบด้วยการปิดกั้น แต่พื้นที่ภายในกลับให้ความรู้สึกโปร่งโล่งจนมองข้ามเรื่องของขนาดไป บ้านบุญจันทร์งามสามเสนแห่งนี้เป็นอีกหนึ่งผลงานดีๆ ที่สามารถแก้ไขปัญหาเรื่องการจัดสรรพื้นที่ การนำวัสดุเก่ามาใช้อย่างคุ้มค่า และอนุรักษ์รูปแบบอาคารดั้งเดิมไว้ได้อย่างครบถ้วน

Discover more from Design Makes A Better Life.

Subscribe now to keep reading and get access to the full archive.

Continue reading