Location : วิภาวดี 60 หลักสี่ กรุงเทพฯ
Gross Built Area : 450 ตารางเมตร
Owner : กฤษณ์ สินธวานนท์ และ ภัทร์วลัย ชาญเชี่ยว
Architects : ธาวิน หาญบุญเศรษฐ และ พศวัต อปริมาณ WARchitect
Interior & Landscape Designer : WARchitect
Builder : บริษัท นายช่างไทย จำกัด
Photo credits : รุ่งกิจ เจริญวัฒน์

‘บ้าน’ เปรียบเสมือนสถานที่พักผ่อนที่ช่วยเติมพลังใจและร่างกายให้พร้อมสำหรับเช้าวันใหม่ การออกแบบบ้านสักหนึ่งหลังจึงมาพร้อมโจทย์ที่ส่งมอบความสะดวกสบาย ความอบอุ่น ความเป็นตัวเอง การหลีกหนีชั่วโมงทำงานหลบเข้าสู่เซฟโซนอย่างบ้าน จึงนำมาซึ่งการออกแบบ ‘V60’ บ้านของสองกัปตันผู้ใช้เวลาส่วนมากของวันไปกับห้องโดยสารภายในเครื่องบิน โดยได้ทีมสถาปนิกจาก WARchitect มาเป็นผู้ออกแบบ ด้วยความตั้งใจให้ผู้อยู่อาศัยสัมผัสถึงความเป็นธรรมชาติพร้อมเส้นสายของสถาปัตยกรรมที่บ่งบอกความเป็นตัวเองไปพร้อมๆ กัน

หลบหลีกชั่วโมงทำงาน สู่การพักอาศัยภายในบ้าน V60
ด้วยความที่เจ้าของบ้านทั้งสามีและภรรยาต่างประกอบอาชีพกัปตันเครื่องบิน ซึ่งเป็นอาชีพที่ต้องใช้เวลาอยู่ภายในห้องขนาดเล็กนานหลายชั่วโมง ช่วงเวลาของการทำงานจึงแทบจะไม่มีการขยับร่างกายหรือสัมผัสอากาศธรรมชาติได้เลย ประกอบกับตารางบินของทั้งคู่ไม่ค่อยตรงกัน จึงเป็นความตั้งใจของสถาปนิกในการสร้างบรรยากาศและสเปซโดยรวมให้สามารถดื่มด่ำกับธรรมชาติได้มากที่สุด รวมทั้งออกแบบพื้นที่ให้มองเห็นซึ่งกันและกันได้เกือบทุกจุดของบ้าน

เนื่องจากอยู่อาศัยกันเพียงสองคน โดยอาจจะมีคุณพ่อคุณแม่แวะมาอยู่อาศัยบ้างเป็นครั้งคราว ทั้งคู่จึงไม่ต้องการบ้านที่มีขนาดใหญ่มากจนเกินตัว ทำให้บ้านหลังนี้มีความต้องการฟังก์ชันพื้นฐานทั่วไปอย่าง โซนห้องนอน ที่จอดรถ โซนห้องนั่งเล่นพร้อมครัวที่รองรับการทำอาหารได้เล็กน้อย โซนฟิตเนสและสระว่ายน้ำ แต่สิ่งที่ต้องการเป็นพิเศษคือพื้นที่รองรับการปาร์ตี้กับเหล่าเพื่อนฝูงและห้องนอนหลักที่ซ่อนห้องนอนย่อยอยู่ภายใน เผื่อไว้สำหรับวันที่ทั้งคู่มีตารางบินไม่ตรงกัน ป้องกันการรบกวนเวลาพักผ่อนของอีกฝ่าย


ความต้องการที่ถูกแปรเปลี่ยนเป็นเส้นสายสถาปัตยกรรม
ข้อดีของบริบทโดยรอบของที่ตั้งโครงการ ซึ่งอยู่ภายในซอยลึกอย่างวิภาวดี 60 ทำให้บรรยากาศค่อนข้างเงียบสงบ มีสิ่งรบกวนน้อย ประกอบกับเป็นที่ดินกงสี ซึ่งอยู่ในรั้วร่วมกับที่ดินของเครือญาติหลายแปลง บรรยากาศภายในรั้วจึงค่อนข้างอบอวลไปด้วยความเป็นครอบครัวผสมผสานความร่มรื่นภายใต้ต้นไม้ใหญ่ที่ปลูกบริเวณโดยรอบ

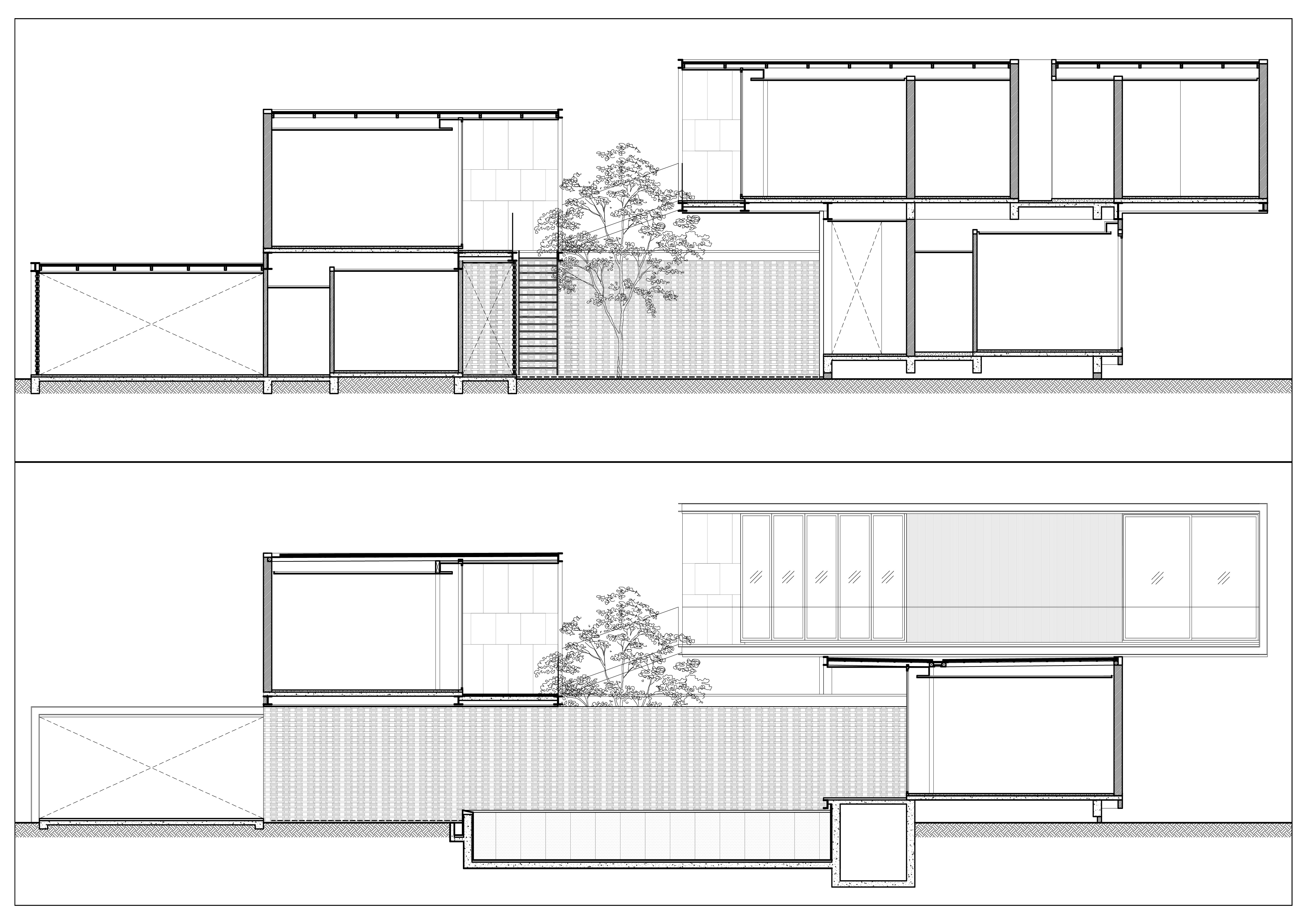
และด้วยขนาดที่ดิน 200 ตร.วา ซึ่งถือว่ามีขนาดใหญ่เมื่อเทียบกับพื้นที่ใช้สอยที่เจ้าของบ้านต้องการ สถาปนิกจึงออกแบบโดยแยกองค์ประกอบของบ้านออกเป็น 3 ส่วนตามการใช้งานได้แก่ ส่วนห้องนั่งเล่น ส่วนห้องนอนบริเวณชั้นสอง และอีกหนึ่งส่วนคือพื้นที่บริเวณชั้นหนึ่งที่เป็นห้องนอนคุณพ่อคุณแม่และส่วนห้องฟิตเนส โดยองค์ประกอบทั้งสามส่วนต่างอยู่คนละระดับ สอดรับกัน พร้อมด้วยการแทรกที่ว่างระหว่างองค์ประกอบแต่ละส่วนด้วยสวนสีเขียว ผู้รับบทพระเอกทำหน้าที่สร้างสุนทรียภาพให้กับเจ้าของบ้าน


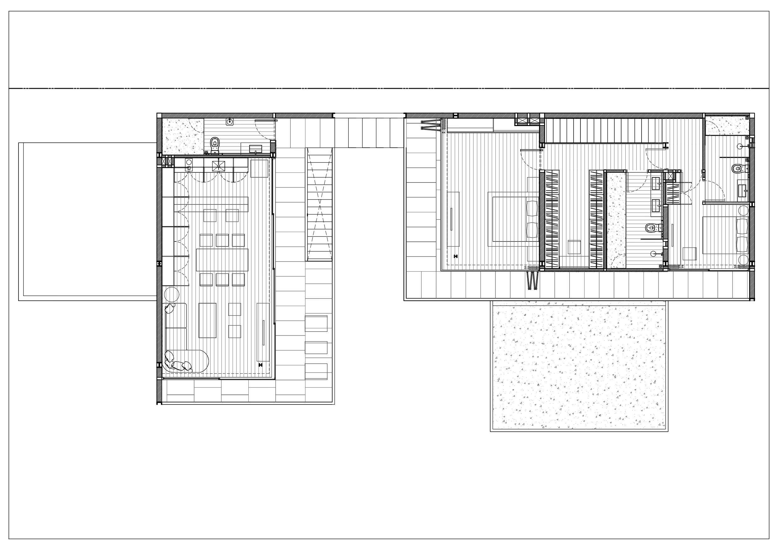
แปลนบ้าน V60 ชั้น 1 และชั้น 2 Photo Credits: WARchitect
หากเรามองจากแปลนบ้านบริเวณชั้นหนึ่ง จะเห็นว่าพื้นที่ส่วนฟิตเนสและสระว่ายน้ำถูกแยกจากโซนบ้านหลัก เพื่อให้สมาชิกครอบครัวจากบ้านหลังอื่นสามารถแวะเวียนมาใช้งานได้ เมื่อมี Mass หนึ่งส่วนของอาคารที่ยื่นยาวออกมา สถาปนิกจึงเติมเต็มภาพรวมให้สัดส่วนอาคารออกมาสวยงามลงตัวด้วยการก่อกำแพงอิฐสีเทา ซึ่งใช้อิฐก้อนใหญ่ที่ไม่มีผิวสัมผัสก่อสลับกับอิฐก้อนเล็กที่มีลวดลาย เมื่อถึงเวลาที่แสงแดดธรรมชาติส่องถึง กำแพงจะเกิดแพทเทิร์นของแสงเงาที่มีมิติบริเวณทางเดินทำให้บ้านดูน่าสนใจมากยิ่งขึ้น นอกจากนี้ยังทำหน้าที่เป็นองค์ประกอบของระนาบแนวนอนที่เชื่อม Mass อาคารทั้งสามก้อนให้สมบูรณ์เป็นหนึ่งเดียวกัน


รูปตัดบ้าน V60 Photo Credits: WARchitect
ความพิเศษของห้องฟิตเนสยังมีการใช้กระจกเงาบริเวณผนังสำหรับการออกกำลังกายเพื่อช่วยพรางตาให้รู้สึกเสมือนว่าก้อนอาคารของห้องฟิตเนสถูกสอดเข้าไปใต้ห้องนอนหลักบริเวณชั้นสอง ทำให้บ้านดูลึกและดูกว้างมากขึ้น ส่วนบริเวณชั้นสองถูกแบ่งโซนอย่างชัดเจน โดยแบ่งเป็นส่วนห้องนั่งเล่นที่รองรับการสังสรรค์กับกลุ่มเพื่อน และส่วนของห้องนอนหลัก โดยยังคงเชื่อมพื้นที่ทั้งสองด้วยบันไดภายนอกและคอร์ดพื้นที่สีเขียวส่วนกลาง
“เรามองว่ามันเป็นบ้านที่คลี่ตัว กระจายตัวออกมากที่สุดเท่าที่เราเคยทำมา จะสังเกตได้เลยว่ากระจกภายในบ้านจะมีปริมาณเยอะเพราะเราอยากให้เขาเห็นสวนได้ทุกมุมของบ้านจริงๆ อันนี้อาจจะเป็นคีย์หนึ่งที่ทำให้บ้านหลังนี้แตกต่าง” สถาปนิกเล่าเสริม
การจัดวางพื้นที่ในลักษณะนี้ทำให้มองเห็นสีเขียวจากต้นไม้ได้โดยรอบของบ้าน และด้วยข้อดีจากการที่องค์ประกอบแต่ละส่วนไม่ได้อยู่ติดกันแบบผนังชนผนัง ประกอบกับการกั้นพื้นที่ระหว่างภายในและภายนอกที่ไม่ชัดเจน จึงทำให้เจ้าของบ้านสามารถเปิดกระจกได้ทั้งหมดเพื่อรับลมธรรมชาติ รวมถึงทางสัญจรที่เปิดโอกาสให้เจ้าของบ้านได้ออกมาเดินเล่นนอกห้องปิด


กรอบความเท่ที่สะท้อนสไตล์และบ่งบอกตัวตน
เพื่อตอบโจทย์ความชื่นชอบของทางเจ้าของ ในสไตล์ที่ออกไปโทนสีเข้ม ดิบและเท่มากกว่าโทนสว่าง ขาว ไม้แบบมินิมอล สถาปนิกตั้งใจออกแบบภายนอกของบ้านให้ดูดุ แข็งแกร่ง ดิบและมีความเท่โดดเด่น ต่างจากภายในซึ่งค่อนข้างอบอุ่นแต่ยังคงแฝงความดิบเท่เอาไว้บางส่วน
วัสดุภายนอกจึงเน้นไปที่หิน เหล็ก และอิฐ โทนสีทั้งหมดยังคงความเป็นสีเทา เทาเข้ม และสีดำ แต่กลับกันเมื่อเข้าสู่ภายในจะพบกับส่วนผสมของไม้ที่ช่วยเบรกความรู้สึกแข็งกระด้าง แต่ยังคงแทรกความรู้สึกเท่ด้วยการผสมผสานผนังสนิมเอาไว้บางส่วน
Dtips : สนิมเกิดจากการนำเหล็กมาล้างด้วยกรดเกลือ ทิ้งไว้ให้ขึ้นสนิม และเคลือบด้วยน้ำยาเคลือบรถยนตร์เพื่อหยุดไม่ให้สนิมลามจนดูเกินงามไปนัก

“บ้านหลังนี้อาจจะเป็นบ้านที่ไม่ได้อยู่สบายนักสำหรับคนทั่วไป แต่สำหรับเจ้าของที่มีอายุ และความชอบประมาณนี้ ไลฟ์สไตล์แบบนี้ ผมว่าบ้านหลังนี้เป็นบ้านที่เหมาะกับเขา”
แน่นอนว่าบ้านคือสถานที่ส่วนตัว ที่ไม่ว่าใครก็คงมีความต้องการแตกต่างกันไปตามปัจจัยและบริบทรอบด้าน บ้านจึงกลายเป็นสถานที่เฉพาะของบุคคลหรือครอบครัว ที่แฝงไปด้วยความชอบ ความต้องการ กิจวัตรประจำวัน ซึ่งส่งเสริมให้การดำเนินชีวิตเป็นไปอย่างสมบูรณ์เรียบง่าย เติมเต็มพลังให้ผู้อยู่อาศัยพร้อมใช้ชีวิตในวันต่อไปได้อย่างสมบูรณ์ เช่นเดียวกับ บ้าน V60 ที่เราเห็นอยู่นี้

