OPENING HOURS: MONDAY – SUNDAY: 10.00 AM TO 8.00 PM

info@sitename.com | 987654321

Design Makes A Better Life.

การออกแบบ สถาปนิก สถาปัตยกรรม ไลฟ์สไตล์

กาแฟและการอยู่ร่วมกัน Akha Ama Living Factory

คาเฟ่ โรงคั่วกาแฟ และเรื่องราววิถีชีวิตของชาวอาข่า สู่พื้นที่ Common Space พบปะแลกเปลี่ยนประสบการณ์ใหม่ๆ ท่ามกลางธรรมชาติ ณ Akha Ama Living Factory

Location: เชียงใหม่ ประเทศไทย

Owner: อายุ จือปา

Architect: ใจบ้านสตูดิโอ

Interior: SATi Studio

 Photography: BLINE SPACEใจบ้านสตูดิโอ

เมื่อกล่าวถึง Akha Ama” แบรนด์กาแฟคุณภาพเยี่ยมที่มีโลโก้เป็นหญิงสาวชาวอาข่าแล้ว น้อยคนนักที่จะไม่รู้จัก โดยเมื่อต้นปี 2561 ที่ผ่านมาทาง Akha Ama ได้ทำการเปิดตัวโปรเจคแห่งใหม่ นั่นคือ Akha Ama Living Factory ร้านคาเฟ่ผสมโรงคั่วกาแฟที่แอบแฝงตัวอยู่ท่ามกลางธรรมชาติ โรงคั่วแห่งนี้ตั้งอยู่ที่อำเภอแม่ริม จังหวัดเชียงใหม่ โดยภายในโครงการมีพื้นที่ทั้งหมด 5 ไร่ ประกอบไปด้วยคาเฟ่ โรงคั่วกาแฟ ซึ่งคุณลี อายุ จือปา เจ้าของแบรนด์ Akha Ama ยังมีแนวคิดที่จะสร้างโรงครัว แปลงปลูกต้นโกโก้ และบ้านของเขาในอนาคตอีกด้วย ความตั้งใจของคุณลีในการสร้างพื้นที่แห่งนี้คือการสร้างพื้นที่สำหรับแลกเปลี่ยนประสบการณ์ของคนในพื้นที่และผู้คนที่แวะมาเยี่่ยมเยียน Akha Ama Living Factory นี่เอง

คุณลี อายุ จือปา เจ้าของ Akha Ama Living Factory และทีมงานใจบ้านสตูดิโอผู้ออกแบบ

แนวคิดสำคัญในการออกแบบครั้งนี้นอกจากจะมีคุณลี อายุ จือปา เจ้าของ Akha Ama แล้ว ยังมีคุณตี๋ ศุภวุฒิ บุญมหาธนากร สถาปนิกจากบริษัทใจบ้านสตูดิโอ มาเติมเต็มความฝันโรงคั่วกาแฟ Akha Ama ให้เป็นความจริง และมีSATi Studioเป็นผู้ออกแบบภายในอาคาร

– Akha Ama –

Akha Ama แบรนด์กาแฟคุณภาพของคุณลี ชาวอาข่ารุ่นใหม่ที่มีใจรักในบ้านเกิดและวัฒนธรรม ซึ่งมีแนวคิดสำคัญคือการ ”พึ่งพาอาศัย” และ “การอยู่ร่วมกับธรรมชาติ” เพราะเมล็ดกาแฟเป็นผลผลิตจากต้นไม้ในป่า โรงคั่วกาแฟแห่งนี้จึงตั้งอยู่ในสภาพแวดล้อมที่อุดมสมบูรณ์ด้วยธรรมชาติเช่นเดียวกัน โดย Akha Ama Living Factory เป็นคาเฟ่และโรงคั่วกาแฟที่แสดงถึงเอกลักษณ์ชาวอาข่า ภายใต้การออกแบบที่คำนึงถึงวัฒนธรรม การใช้ชีวิตที่เกี่ยวข้องกับชุมชนและธรรมชาติ เพราะหัวใจของแบรนด์ Akha Ama ไม่ได้อยู่ที่กาแฟ แต่อยู่ที่ความรู้สึกของผู้คนซึ่งได้ลิ้มลองกาแฟนั่นเอง

– ผืนป่ากลับมามีชีวิต –

“ถ้าจะออกแบบพื้นที่ให้สิ่งมีชีวิต เราจะต้องทำพื้นที่นั้นๆให้มีชีวิตก่อน และเหตุผลที่เราใส่ใจถึงป่า เพราะหัวใจของการทำกาแฟคือป่าครับ” คุณตี๋ สถาปนิกผู้ออกแบบกล่าว

คุณลีได้ทำการเฟ้นหาที่ดินในจังหวัดเชียงใหม่ จนได้พบกับที่แห่งหนึ่งในอำเภอแม่ริม ซึ่งพื้นที่แห่งนี้แม้จะไม่อุดมสมบูรณ์มากนัก หากก็มีต้นไม้และสัตว์ต่างๆอยู่ในพื้นที่โดยรอบ โดยมีจุดเด่นคือต้นฉำฉาหรือต้นจามจุรีต้นใหญ่ตั้งตระหง่านอยู่กลางพื้นที่ 5 ไร่

เนื่องจากระบบนิเวศและที่ดินแห่งนี้ค่อนข้างแห้งแล้ง จึงต้องมีการปรับปรุงพื้นที่ภายในโครงการเพื่อฟื้นฟูระบบนิเวศก่อนเป็นอันดับแรก เริ่มจากการปรับหน้าดินด้วยการไถและหว่านเมล็ดปอเทืองช่วยบำรุงดิน จากนั้นจึงขอกล้าไม้จาก หน่วยงานของรัฐบาลและจากเพื่อนของคุณลีประมาณ 500 ต้น ซึ่งประกอบด้วยกล้าไม้ 2 ประเภท ได้แก่ไม้ท้องถิ่น และไม้บำรุงดิน เช่น พืชตระกูลถั่ว ต้นประดู่ ต้นแคฝรั่ง เพื่อพัฒนาคุณภาพดินให้ดีขึ้น และเนื่องจากที่ดินมีความชัน คุณตี๋จึงทำการขุดร่องน้ำในพื้นที่ เพื่อให้น้ำไหลลงมารวมกันที่บ่อน้ำซึ่งอยู่ในจุดต่ำสุด โดยการขุดบ่อและการมีบ่อน้ำนี้จะสามารถนำน้ำมารดน้ำต้นไม้ในโครงการได้ และร่องน้ำที่ขุดไว้ยังช่วยให้น้ำซึมไปในดินได้ดียิ่งขึ้น

Master Plan ของ Akha Ama Living Factory

– Living Factory –

คุณลีอยากให้ Akha Ama Living Factory เป็นสถานที่สำหรับผู้ที่ชื่นชอบในการลิ้มรสกาแฟและผู้คนในชุมชนได้มาพบปะและรู้จักกันผ่านการจัดกิจกรรมเวิร์คช็อปเกี่ยวกับกาแฟ ระบบนิเวศ และเกษตรกรภายในพื้นที่ โดยนำวิถีชีวิตการอยู่ร่วมกันและชีวิตที่ผูกพันกับเมล็ดกาแฟของชาวอาข่ามาบอกเล่าผ่านทางวัสดุท้องถิ่นและสถาปัตยกรรม

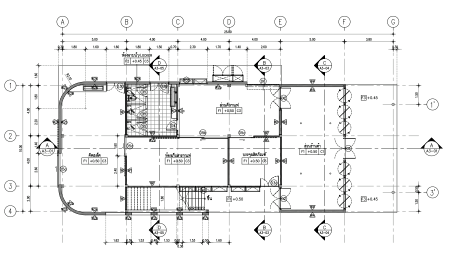
แผนผังอาคารชั้น 1

แผนผังอาคารชั้น 2

พื้นที่ภายในอาคารจะค่อนข้างหลวมและยืดหยุ่น เพื่อสร้างความเหมาะสมในการปรับการใช้งานได้หลากหลายรูปแบบ เช่น ในพื้นที่ชั้น 2 จะเป็นพื้นที่โล่ง สามารถมาจัดการประชุมแลกเปลี่ยนความคิดหรือจัดกิจกรรมเวิร์คช้อปในบริเวณนี้ได้ และยัง มีลาน ระเบียง พื้นที่โล่งในอาคารอีกหลากหลายแห่งเพื่อรองรับการจัดกิจกรรมต่างๆ เสมือน Common space ให้ผู้คนมาแลกเปลี่ยนความคิด สร้างสรรค์ประสบการณ์ความรู้ระหว่างกัน

พื้นที่ชั้น 2 ของอาคาร

สถาปนิกออกแบบภายในร้านกาแฟให้มีที่นั่งค่อนข้างน้อย เพราะอยากให้แขกที่เข้ามาใช้บริการได้ใช้ระเบียงภายนอกอาคาร ซึ่งจะมีที่นั่งล้อมรอบต้นฉำฉา ช่วยสร้างปฏิสัมพันธ์ระหว่างผู้คนและได้อยู่ใกล้ชิดธรรมชาติมากขึ้น

– Coffee Journey –

Akha Ama Living Factory เป็นสะพานเชื่อมโยงผู้ผลิตกับผู้บริโภค เพราะถึงแม้ว่าจะเป็นโรงคั่วกาแฟ แต่ก็สามารถทำให้ผู้เข้ามาใช้งานรู้สึกอบอุ่นเสมือนเข้ามาในบ้านของชาวอาข่า โดยคุณตี๋ได้นำองค์ประกอบที่แสดงถึงลักษณะของชาวอาข่ามาใช้ในการออกแบบอีกด้วย เช่น แพทเทิร์นในอาคารทั้งหมดจะเป็นลายสี่เหลี่ยมข้าวหลามตัดซึ่งมาจากลายผ้าเก่าแก่ของชาวอาข่า และ Mood & Tone โดยรวมของโรงคั่วกาแฟจะดูดิบ โปร่ง มีการเลือกใช้สีดำเข้มคล้ายคลึงกับบ้านของชาวอาข่าเป็นต้น

เคาน์เตอร์ของทางร้านออกแบบโดยสติสตูดิโอ ซึ่งนำแพทเทิร์นผ้าลายข้าวหลามตัดมาใช้เป็นรูปแบบฉากหลังเคาน์เตอร์ที่มีรูปแบบและขนาดต่างกัน

จันทันที่ยื่นทะลุมาข้างนอกอาคารคล้ายคลึงกับบ้านของชาวอาข่า

โรงคั่วกาแฟมีความสูงถึง 7 เมตร เพราะการออกแบบโรงคั่วต้องมีเพดานโปร่งสำหรับวางเครื่องคั่วกาแฟ และยังช่วยให้ภายในอาคารเกิดการระบายอากาศ ได้รับแสงธรรมชาติผ่านทางช่องเปิดด้านบนตลอดทั้งวันอีกด้วย

รูปลักษณ์ของอาคารจะคล้ายกับโรงนาในภาพยนตร์ต่างประเทศ แต่ให้ความรู้สึกอบอุ่นจากรูปแบบผนังโค้งและวัสดุจากธรรมชาติที่คุณตี๋เลือกใช้

– อนุรักษ์วัสดุท้องถิ่น –

แนวคิดสำคัญของการเลือกใช้วัสดุของ Akha Ama Living Factory คือการเลือกใช้วัสดุท้องถิ่นให้ได้มากที่สุด เพื่อสร้างองค์ความรู้และเผยแพร่วัสดุท้องถิ่นให้แก่คนรุ่นใหม่ เช่นผนังอาคารอิฐมอญปั้นมือซึ่งเป็นวัฒนธรรมเก่าแก่ของเชียงใหม่ โดยผนังอิฐมอญชิ้นนี้เป็นไซส์พิเศษใหญ่กว่าปกติ เพื่อรับแรงดันจากการเรียงอิฐเป็นแพทเทิร์นช่องเปิดในบริเวณต่างๆของอาคาร โดยแต่ละช่องจะมีเป็นลายข้าวหลามตัดเหมือนกันแต่ต่างรูปแบบและขนาดสื่อถึงลายผ้าของชาวอาข่า และยังเป็นช่องเปิดให้ลมพัดผ่านเข้ามาได้อีกด้วย

 อีกหนึ่งวัสดุที่คุณตี๋ สถาปนิกผู้ออกแบบเลือกใช้คือไม้เนื้อแข็งเก่า สีดำ เนื้อแข็ง นำมาใช้ในบริเวณด้านหน้าและด้านหลังอาคาร ซึ่งสาเหตุที่เลือกใช้ไม้เก่าเพราะนอกจากจะเป็นการนำวัสดุที่ไม่ได้ใช้นำกลับมาใช้แล้ว ความรู้สึกและอารมณ์ที่ได้จากการใช้ไม้เก่าจะมีความแตกต่างจากการใช้ไม่เก่าอีกด้วย เพราะไม้เก่าจะมีร่องรอยของการใช้งาน การอยู่อาศัย เมื่อนำแต่ละชิ้นมาประกอบด้วยกันจะมีเรื่องราวอยู่ในนั้น ชวนให้ภายในอาคารรู้สึกอบอุ่น ผ่อนคลายมากยิ่งขึ้น

“เราไม่ได้สร้างสถาปัตยกรรมอย่างเดียวแต่เราสร้างสภาพแวดล้อมตรงนั้นให้ดีขึ้นด้วย เพราะหัวใจของใจบ้านสตูดิโอคือการออกแบบให้อาคารนั้นๆมีชีวิต ซึ่งคำว่าออกแบบมันอาจจะดูเหมือนกับว่าเราไปบังคับหรือควบคุมสิ่งนั้น แต่จริงๆเราคิดว่าการออกแบบคือการร่วมสร้างสิ่งใหม่กับสิ่งมีชีวิตที่อยู่ในพื้นที่นั้น โดยเราจะออกแบบให้ธรรมชาติที่อยู่ตรงนั้น สามารถดำรงชีวิตอยู่ได้ และสถาปัตยกรรมต้องไม่ไปทำลายหรือเบียดเบียนพื้นที่ตรงนั้น” คุณตี๋กล่าวถึงแนวคิดหลักของการทำงานของใจบ้านสตูดิโอ

Akha Ama Living Factory โรงคั่วกาแฟซึ่งเป็นพื้นที่เชื่อมต่อผู้คนที่หลงใหลในการดื่มด่ำกาแฟคุณภาพเยี่ยม พูดคุยแลกเปลี่ยนความคิดเห็นกับผู้คนในชุมชน เชื่อมต่อตัวตนเข้ากับธรรมชาติ หรือแม้แต่เชื่อมต่อเรื่องราวเอกลักษณ์ในอดีตสู่ปัจจุบัน ซึ่งเป็นสิ่งที่คุณลีเชื่อมั่นและนำมาใช้ในการดำเนินชีวิตของเขา นั่นคือ “การอยู่ร่วมกัน” ร่วมสัมผัสประสบการณ์การอยู่ร่วมกันของมนุษย์ ธรรมชาติ และวัฒนธรรม ผ่านความเชื่อและสถาปัตยกรรมได้ที่ Akha Ama Living Factory โรงคั่วกาแฟที่มีชีวิตแห่งนี้

Discover more from Design Makes A Better Life.

Subscribe now to keep reading and get access to the full archive.

Continue reading